-
Aantal kamers
3 kamers
-
Aantal slaapkamers
2 slaapkamers
-
Bouwjaar
1984
-
Bouwvorm
bestaande bouw
-
Inhoud
184m3
-
Oppervlakte
59 m2
Boterstraat 54 B - 3111 ND SCHIEDAM
Altijd al in het centrum van Schiedam willen wonen, maar dan met prachtig uitzicht op de mooie molens van Schiedam, en aan de Schie zelf? Dan is dit de kans! Dit bijzonder sfeervolle 3 kamer appartement is zo te betrekken, mede door de moderne badkamer en keuken en het fijne afwerkingsniveau. De woning is gelegen op de 1e verdieping van een kleinschalig appartementencomplex, heeft een balkon en daarnaast een gemeenschappelijke tuin aan het water. De ligging is ideaal met het centrum om de hoek! Winkels en openbaarvervoer op steenworpafstand, evenals de lokale horeca, de bioscoop en het theater. Rotterdam is binnen 15 minuten te bereiken via snelweg en/of openbaar vervoer.
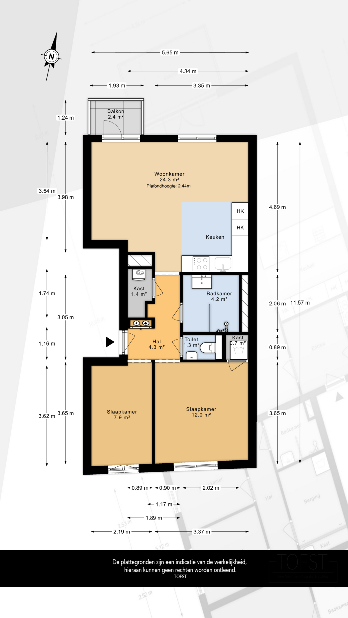
Indeling:
Begane grond:
Afgesloten entree, bellen, brievenbussen, trappenhuis. Naast de entree bevindt zich een poort, met toegang tot de gezamenlijke tuin.
1e verdieping:
Entree, hal met meterkast en toegang tot alle vertrekken. De woonkamer met open keuken van tezamen ruim 24m2 is voorzien van een laminaatvloer en geeft toegang tot het balkon. De keuken is voorzien van diverse opbergkasten, 4 zones inductiekookplaat, afzuigkap, vaatwasser en een koelkast met vriesvak. Vanuit de gang is er toegang tot de hoofdslaapkamer van ca. 12m². Deze kamer heeft een vaste kast met de wasmachine aansluiting. De 2e slaapkamer van ca. 8m2 is voorzien van een frans balkon. De tevens modern uitgevoerde badkamer beschikt over van een inloopdouche en een wastafelmeubel met spiegel. Apart toilet met fonteintje.
Berging:
De woning beschikt over een eigen berging van ruim 5m2 gelegen in de gemeenschappelijke tuin.
Overige:
-Opleveringsvoorkeur verkoper 1 februari 2026;
-Bouwjaar ca. 1984;
-Voorzien van dubbel glas;
-Energielabel C;
-Beschermd stads- of dorpsgezicht;
-VVE bijdrage van € 186,- per maand incl. erfpachtcanon;
-Recht van erfpacht tot 31 januari 2043 met een canon van € 214.91 per jaar welke verwerkt zijn in de maandelijkse VVE bijdrage;
-CV uit 2013, onderhoud uitgevoerd in 2024;
-Gebruiksoppervlakte 58.9m2 (NEN2580);
-Inhoud 183.6m3 (NEN2580);
Deze informatie is door ons met de nodige zorgvuldigheid samengesteld. Onzerzijds wordt echter geen enkele aansprakelijkheid aanvaard voor enige onvolledigheid, onjuistheid of anderszins, dan wel de gevolgen daarvan. Alle opgegeven maten en oppervlakten zijn indicatief. Van toepassing zijn de NVM voorwaarden.
Toelichtingsclausule NEN2580
De Meetinstructie is gebaseerd op de NEN2580. De Meetinstructie is bedoeld om een meer eenduidige manier van meten toe te passen voor het geven van een indicatie van de gebruiksoppervlakte. De Meetinstructie sluit verschillen in meetuitkomsten niet volledig uit, door bijvoorbeeld interpretatieverschillen, afrondingen of beperkingen bij het uitvoeren van de meting. Indien de exacte maten voor een koper van cruciaal belang zijn, adviseren wij deze zelf na te meten.
Notariskeuze en kosten
Indien de koper een notaris kiest buiten een straal van 20 kilometer van de verkochte onroerende zaak dan zijn de eventuele kosten die de notaris berekent voor een eventuele verkoopvolmacht ten behoeve van de verkoper voor rekening van de koper.



