-
Aantal kamers
4 kamers
-
Aantal slaapkamers
3 slaapkamers
-
Bouwjaar
1987
-
Bouwvorm
bestaande bouw
-
Inhoud
253m3
-
Oppervlakte
85 m2
Arendlaan 50 - 2625 AA DELFT
Prachtig 4-kamer appartement met fantastische vrije ligging aan een natuurgebied! Dit moderne appartement is gelegen op de 5e verdieping van een goed onderhouden complex en biedt een vrij uitzicht over het omliggende groen. Met een energielabel C, een actieve Vereniging van Eigenaren en een eeuwigdurende afgekochte erfpacht, is dit de ideale plek voor wie op zoek is naar rust en comfort, maar ook de nabijheid van de stad wil ervaren. De VVE draagt zorg voor het complex, met een maandelijkse bijdrage van € 225,-. Het appartement is goed en netjes onderhouden. De ligging is ideaal, nabij uitvalswegen (A13 en A4) en openbaar vervoer (station Delft Campus). Het historische centrum van Delft is snel te bereiken. Ook winkels, scholen en sportfaciliteiten bevinden zich in de directe omgeving.
Indeling:
Begane grond:
Afgesloten gemeenschappelijke entree met bellentableau. Toegang tot de bergingen, trappenhuis en lift.
5e verdieping:
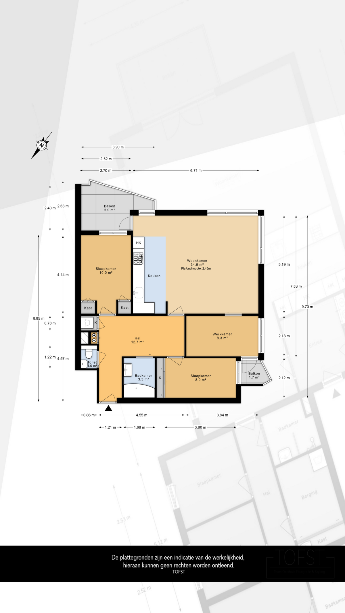
Entree met hal en meterkast. De ruime woonkamer met open keuken van tezamen ruim ca. 35m² heeft veel ramen en licht door de hoekligging en biedt een prachtig uitzicht over het natuurgebied. De open keuken is voorzien van een praktische indeling en beschikt over diverse inbouwapparatuur, waaronder een vaatwasser, koelkast, oven en gaskookplaat. Vanuit de woonkamer is het balkon te bereiken, dat heerlijk op het zonnige zuiden is gelegen. De woning heeft drie slaapkamers. De kamer die gebruikt wordt als werkkamer kan bij de woonkamer worden getrokken om meer ruimte in de woonkamer te creëren. Ook kan deze kamer als extra slaapkamer dienen. De badkamer is voorzien van een douche en wastafelmeubel. Het separate toilet is modern uitgevoerd. In de CV ruimte is voldoende ruimte voor de wasmachine en droger.
Balkon:
Zonnig balkon op het zuiden van ca. 8m², met een prachtig vrij uitzicht over het natuurgebied. Het kleine balkon dat gelegen is op het westen wordt gebruikt voor de vaste airco unit.
Berging:
Op de begane grond bevindt zich een ruime eigen berging met elektra van ca. 6m².
Overige:
-Opleveringsvoorkeur verkoper eind maart/begin april 2026;
-Energielabel C;
-Roelstoel/rollator vriendelijk complex en appartement;
-Eeuwigdurende afgekochte erfpacht, geen jaarlijkse erfpachtlasten;
-Actieve Vereniging van Eigenaren met een maandelijkse bijdrage van € 225,-;
-Voorzien van sunscreens (2021);
-Airco aanwezig (2022);
-Gezien het bouwjaar wordt er een asbestclausule en een ouderdomsclausule opgenomen in de koopovereenkomst;
-CV ketel voor warmwater en verwarming (2022);
-Het appartement is voorzien van houten kozijnen met dubbele beglazing;
-Bouwjaar 1987;
-Gebruiksoppervlakte 84.6m² (NEN2580).
Deze informatie is door ons met de nodige zorgvuldigheid samengesteld. Onzerzijds wordt echter geen enkele aansprakelijkheid aanvaard voor enige onvolledigheid, onjuistheid of anderszins, dan wel de gevolgen daarvan. Alle opgegeven maten en oppervlakten zijn indicatief. U kunt indien gewenst de woning voor het tekenen van de koopakte zelf inmeten en controleren.
Toelichtingsclausule NEN2580
De Meetinstructie is gebaseerd op de NEN2580. De Meetinstructie is bedoeld om een meer eenduidige manier van meten toe te passen voor het geven van een indicatie van de gebruiksoppervlakte. De Meetinstructie sluit verschillen in meetuitkomsten niet volledig uit, door bijvoorbeeld interpretatieverschillen, afrondingen of beperkingen bij het uitvoeren van de meting.
Notariskeuze en kosten
In principe ligt de notariskeuze bij de koper. Het doorhalen van de hypothecaire inschrijving in het kadaster moet door de verkoper betaald worden. Zijn de kosten voor deze doorhaling hoger dan € 400,- inclusief BTW dan wordt het meerdere bij de koper in rekening gebracht. Indien de koper een notaris kiest buiten een straal van 20 kilometer van de verkochte onroerende zaak dan zijn de eventuele kosten die de notaris berekent voor een eventuele verkoopvolmacht ten behoeve van de verkoper voor rekening van de koper.



