-
Aantal kamers
3 kamers
-
Aantal slaapkamers
2 slaapkamers
-
Bouwjaar
1962
-
Bouwvorm
bestaande bouw
-
Inhoud
275m3
-
Oppervlakte
87 m2
Havendijk 567 3114 EL Schiedam
Wat een fantastische ligging en panoramisch uitzicht!
Ervaar de ideale ligging op de 7e etage (top hoek appartement) aan de Maasboulevard te Schiedam. Er is altijd wat te zien! U heeft een vrij uitzicht over het haventje, het park en de Nieuwe Maas waar u oceaanstomers maar ook binnenvaartschepen en cruiseliners ziet passeren. Elke paar minuten een ander uitzicht.
Het appartement is door de hoekligging anders ingedeeld dan andere appartementen waardoor de woonkamer ook zicht heeft richting het westen. Het betreft een sfeervol 3 kamer hoek appartement met een mooie lichte woonkamer. Het appartement ligt op een praktische locatie met alle voorzieningen in de nabijheid; buurtwinkels, supermarkt, scholen, openbaar vervoer, snelwegennet en natuur recreatie. Er is een eigen berging. Parkeren kan voor de deur. Aan de straat kan nog openbaar worden geparkeerd.
Geniet van uw rust op het zonnige balkon op het zuiden gesitueerd. Ervaar de voordelen van een actieve VVE, een recreatiepromenade voor de deur, een gezellige winkelstraat met supermarkt nabij, openbaar vervoer op loopafstand en binnen 10 minuten in het hart van Rotterdam. In enkele minuten rijdt u naar de uitvalswegen.
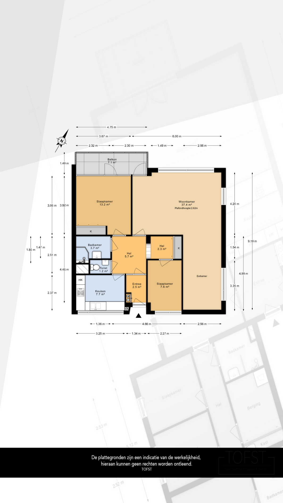
Indeling
Begane grond:
Het goed onderhouden appartementencomplex "Triton" biedt een nette en afgesloten entreehal met lift en toegang tot de bergingen.
7e verdieping:
Entree, tochtportaal, meterkast. Ruime hal. Heerlijke lichte L- vormige woonkamer van ca. 37,4m2 (zuiden ligging) met toegang naar het balkon voorzien van een prachtige eikenvloer, gestuukte wanden, plafond met inbouwverlichting, radiatorombouw en een in 2023 nieuw geplaatste kunststof pui met HR++ glas. Door de hoekligging is er een mooi zicht richting de Nieuwe Maas en jachthaven.
De hoekkeuken (3,25m x 2,37m) bevindt zich aan de galerijzijde en is voorzien van diverse apparatuur; koelkast/vriesladen, oven, vaatwasser, gaskookplaat en een afzuigkap. Vanuit de keuken is een mooi zicht op de Molens van Schiedam. De badkamer is voorzien van een riante inloopdouche, wastafelmeubel en een designradiator. Separaat toilet met een handwasbakje. Riante slaapkamer aan de achterzijde van ca. 13,2m2 met een grote schuifkastenwand en ingebouwde boiler. Tevens toegang naar het balkon. Aan voorzijde is nog een 2e kamer van ca. 7,6m2
Balkon
De woning heeft een ruim zonnig balkon (4,75 x 1,49) op het zuiden aan het park met een direct zicht op de Waterweg, het haventje en park.
Berging:
In de onderbouw van de flat bevindt zich een eigen berging van ca. 5m2.
Overige:
- Oplevering is per direct.
- Warm water d.m.v. 80 Liter boiler.
- Verwarming d.m.v. blokverwarming.
- Bouwjaar van de woning ca. 1962.
- Eigen grond.
- Actieve vereniging van eigenaren met een bijdrage van € 174,15,- service kosten, € 148,- voorschot stookkosten.
- Aangezien verkoper de woning niet zelf heeft bewoond, wordt er in de koopakte een niet zelf bewoond clausule opgenomen in combinatie met een as is is were is clausule.
- Door het bouwjaar van de woning, wordt er een ouderdoms- en asbestclausule in de koopakte opgenomen.
- Woonoppervlak ca. 87,1m2 (Nennorm 2580).
Deze informatie is door ons met de nodige zorgvuldigheid samengesteld. Onzerzijds wordt echter geen enkele aansprakelijkheid aanvaard voor enige onvolledigheid, onjuistheid of anderszins, dan wel de gevolgen daarvan. Alle opgegeven maten en oppervlakten zijn indicatief. Van toepassing zijn de NVM voorwaarden.
Toelichtingsclausule NEN2580
De Meetinstructie is gebaseerd op de NEN2580. De Meetinstructie is bedoeld om een meer eenduidige manier van meten toe te passen voor het geven van een indicatie van de gebruiksoppervlakte. De Meetinstructie sluit verschillen in meetuitkomsten niet volledig uit, door bijvoorbeeld interpretatieverschillen, afrondingen of beperkingen bij het uitvoeren van de meting. Indien de exacte maten voor een koper van cruciaal belang zijn, adviseren wij deze zelf na te meten.
Notariskeuze en kosten
In principe ligt de notariskeuze bij de koper. Het doorhalen van de hypothecaire inschrijving in het kadaster moet door de verkoper betaald worden. Zijn de kosten voor deze doorhaling hoger dan € 400,- inclusief BTW dan wordt het meerdere bij de koper in rekening gebracht. Indien de koper een notaris kiest buiten een straal van 20 kilometer van de verkochte onroerende zaak dan zijn de eventuele kosten die de notaris berekent voor een eventuele verkoopvolmacht ten behoeve van de verkoper voor rekening van de koper



