-
Aantal kamers
4 kamers
-
Aantal slaapkamers
3 slaapkamers
-
Bouwjaar
1932
-
Bouwvorm
bestaande bouw
-
Inhoud
285m3
-
Oppervlakte
86 m2
Groen van Prinstererstraat 174 3131 GJ VLAARDINGEN
Modern uitgevoerd riant 4 kamer appartement voorzien van een moderne keuken en sanitair en een hoog afwerkingsniveau. De ruim 85m2 gebruiksoppervlakte is verdeeld over 2 woonlagen en het appartement heeft een eigen berging op de begane grond. De VVE is zeer actief en er is een energielabel C aanwezig! De ligging in het centrum is zeer centraal nabij de winkels, bioscoop, casino, theater en stadspark 't Hof. Ook zijn er een aantal goede scholen in de buurt en zijn openbaar vervoer als bus en metro op loopafstand en uitvalswegen als de A4 en de A20 heel goed bereikbaar om binnen 25 minuten in Rotterdam, Delft of Hoek van Holland uit te komen.
Indeling:
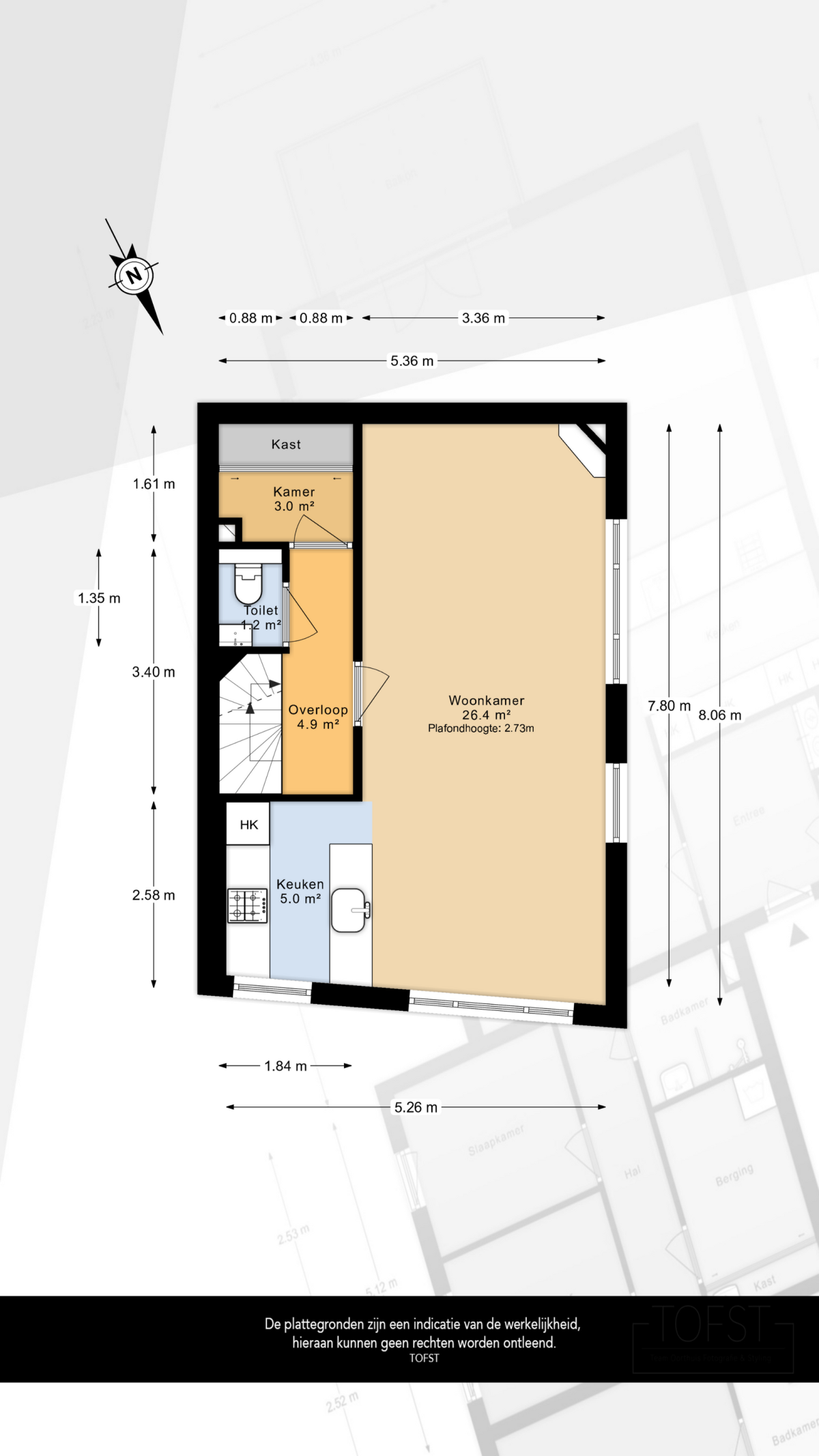
Begane grond:
Entree, trapopgang naar de 1e verdieping.
1e verdieping:
Overloop, aparte toilet ruimte, modern uitgevoerd met hangend toilet en fonteintje. Op deze verdieping bevindt zich nog een aparte kamer van ca. 3m2, ideaal te gebruiken als werkkamer of garderobe. De woonkamer en open keuken zijn tezamen meer dan 31m2. Door de hoekligging zijn er veel ramen aanwezig, wat zorgt voor veel en een prettige lichtinval. De keuken is uitgevoerd met een spoeleiland, veel kastruimte en de volgende inbouwapparatuur: koelkast, vriezer, combimagnetron, gaskookplaat, afzuigkap en een vaatwasser.
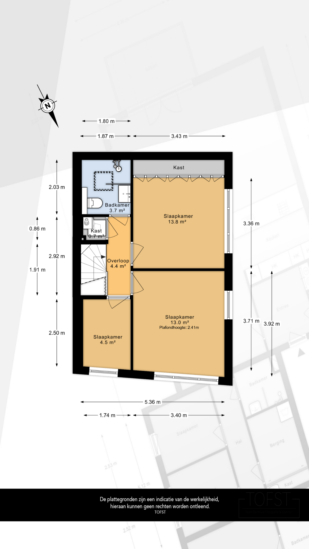
2e verdieping:
Overloop, diepe bergkast met aansluiting voor de wasmachine. Slaap/werkkamer van ca. 4.5m2. Modern uitgevoerde badkamer met mechanische ventilatie en voorzien van neutraal modern tegelwerk, een lichtkoepel, radiator, 2e toilet, inloopdouche en een wastafelmeubel. De hoofdslaapkamer is ca. 14m2 en is voorzien van een vaste kastenwand. De andere grote slaapkamer op deze verdieping is ca. 13m2.
Berging:
Achter de woning ligt een eigen berging van ca. 4m2, ideaal voor het veilig plaatsen van je fiets!
Overige:
-Oplevering in overleg;
-CV ketel uit 2016, in 2024 voorzien van een onderhoudsbeurt;
-Kozijnen zijn voorzien van dubbelglas;
-Zeer actieve VVE met een maandelijkse bijdrage van € 170,-;
-De woning is in 2017 door een gerenommeerd aannemersbedrijf volledig gerenoveerd;
-Bouwjaar appartement 1932;
-Eeuwigdurende erfpacht met een canon van € 28,21 per jaar voor de woning en € 7,78,- voor de berging;
-Gezien het bouwjaar van de woning worden er in de koopakte een ouderdomsclausule en asbestclausule opgenomen;
-Gebruiksoppervlakte 85.6m2 (NEN2580);
-Inhoud 284.5m3 (NEN2580).
Deze informatie is door ons met de nodige zorgvuldigheid samengesteld. Onzerzijds wordt echter geen enkele aansprakelijkheid aanvaard voor enige onvolledigheid, onjuistheid of anderszins, dan wel de gevolgen daarvan. Alle opgegeven maten en oppervlakten zijn indicatief. Van toepassing zijn de NVM voorwaarden.
Toelichtingsclausule NEN2580
De Meetinstructie is gebaseerd op de NEN2580. De Meetinstructie is bedoeld om een meer eenduidige manier van meten toe te passen voor het geven van een indicatie van de gebruiksoppervlakte. De Meetinstructie sluit verschillen in meetuitkomsten niet volledig uit, door bijvoorbeeld interpretatieverschillen, afrondingen of beperkingen bij het uitvoeren van de meting. Indien de exacte maten voor een koper van cruciaal belang zijn, adviseren wij deze zelf na te meten.



