-
Aantal kamers
4 kamers
-
Aantal slaapkamers
3 slaapkamers
-
Bouwjaar
1933
-
Bouwvorm
bestaande bouw
-
Inhoud
240m3
-
Oppervlakte
67 m2
Van Marumstraat 15 B 3112 XR SCHIEDAM
Een sfeervol, ruim, modern vier kamer bovenwoning met 2 balkons gelegen op de hele 1e verdieping en halve 2e verdieping voorzijde.
De woning is de afgelopen jaar gemoderniseerd en geoptimaliseerd:
-plat dak is vernieuwd in 2024.
-alle wanden zijn recent gestuukt en gesausd (juni 2025).
-keuken is deels uitgebreid. .
-balkon is voorzien van vloertegels.
De locatie is ideaal met alle voorzieningen in de directe omgeving, buurtwinkels, openbaar vervoer (NS station Schiedam), maar ook dichtbij het centrum van Schiedam. Rotterdam is ook binnen 10 min te bereiken.
Indeling:
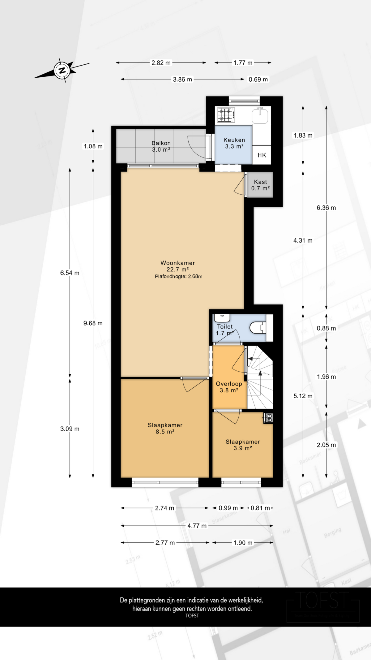
Eerste verdieping
Eigen opgang via straatniveau naar de 1e verdieping.
Overloop, diep toilet met een handwasbakje. Sfeervolle woonkamer van ca. 23m2 met een trapkast. Half open keuken 1,83m x 1,77m voorzien van een hoekopstelling met een kokend waterkraan, gaskookplaat, afzuigkap, oven en een losse vaatwasser. Twee slaapkamers aan de voorzijde van ca. 8,5m2 en 3,9m2.
Tweede verdieping
Ruime overloop met opstelling cv ketel en wasmachine, toegang naar het balkon. Moderne badkamer voorzien van een inloopdouche en wastafelmeubel.|
Hoofdslaapkamer van ca. 10,5m2.
Buitenruimten:
Balkon op de 1e verdieping aan de achterzijde van ca. 2m x 3,19m.
Balkon op de 2e verdieping aan de voorzijde van ca. 0,9m x 4,94m.
Overige:
- Oplevering in overleg, kan eventueel snel;
- De woning staat op eigen grond;
- VvE is actief en wordt professioneel uitbesteed;
- VvE bijdrage € 75,- per maand.
- CV HR Remeha uit 2009;
- Alle kozijnen zijn van kunststof met dubbelglas;
- Energielabel F, 10-07-2027;
- Bouwjaar ca. 1933;
- De woning is gelegen in een gebied waar opkoopbescherming van kracht is;
- Vanwege het bouwjaar wordt er een asbest- en ouderdomsclausule in de koopakte opgenomen;
- Woonoppervlakte ca. 67m2 NEN2580.
Deze informatie is door ons met de nodige zorgvuldigheid samengesteld. Onzerzijds wordt echter geen enkele aansprakelijkheid aanvaard voor enige onvolledigheid, onjuistheid of anderszins, dan wel de gevolgen daarvan. Alle opgegeven maten en oppervlakten zijn indicatief. Van toepassing zijn de NVM voorwaarden.
Toelichtingsclausule NEN2580
De Meetinstructie is gebaseerd op de NEN2580. De Meetinstructie is bedoeld om een meer eenduidige manier van meten toe te passen voor het geven van een indicatie van de gebruiksoppervlakte. De Meetinstructie sluit verschillen in meetuitkomsten niet volledig uit, door bijvoorbeeld interpretatieverschillen, afrondingen of beperkingen bij het uitvoeren van de meting. Indien de exacte maten voor een koper van cruciaal belang zijn, adviseren wij deze zelf na te meten.
Notariskeuze en kosten
In principe ligt de notariskeuze bij de koper. Het doorhalen van de hypothecaire inschrijving in het kadaster moet door de verkoper betaald worden. Zijn de kosten voor deze doorhaling hoger dan € 400,- inclusief BTW dan wordt het meerdere bij de koper in rekening gebracht. Indien de koper een notaris kiest buiten een straal van 20 kilometer van de verkochte onroerende zaak dan zijn de eventuele kosten die de notaris berekent voor een eventuele verkoopvolmacht ten behoeve van de verkoper voor rekening van de koper.



