-
Aantal kamers
5 kamers
-
Aantal slaapkamers
3 slaapkamers
-
Bouwjaar
1970
-
Bouwvorm
bestaande bouw
-
Inhoud
328m3
-
Oppervlakte
109 m2
Chopinplein 45 3122 VM Schiedam (met garagebox Chopinplein 11!)
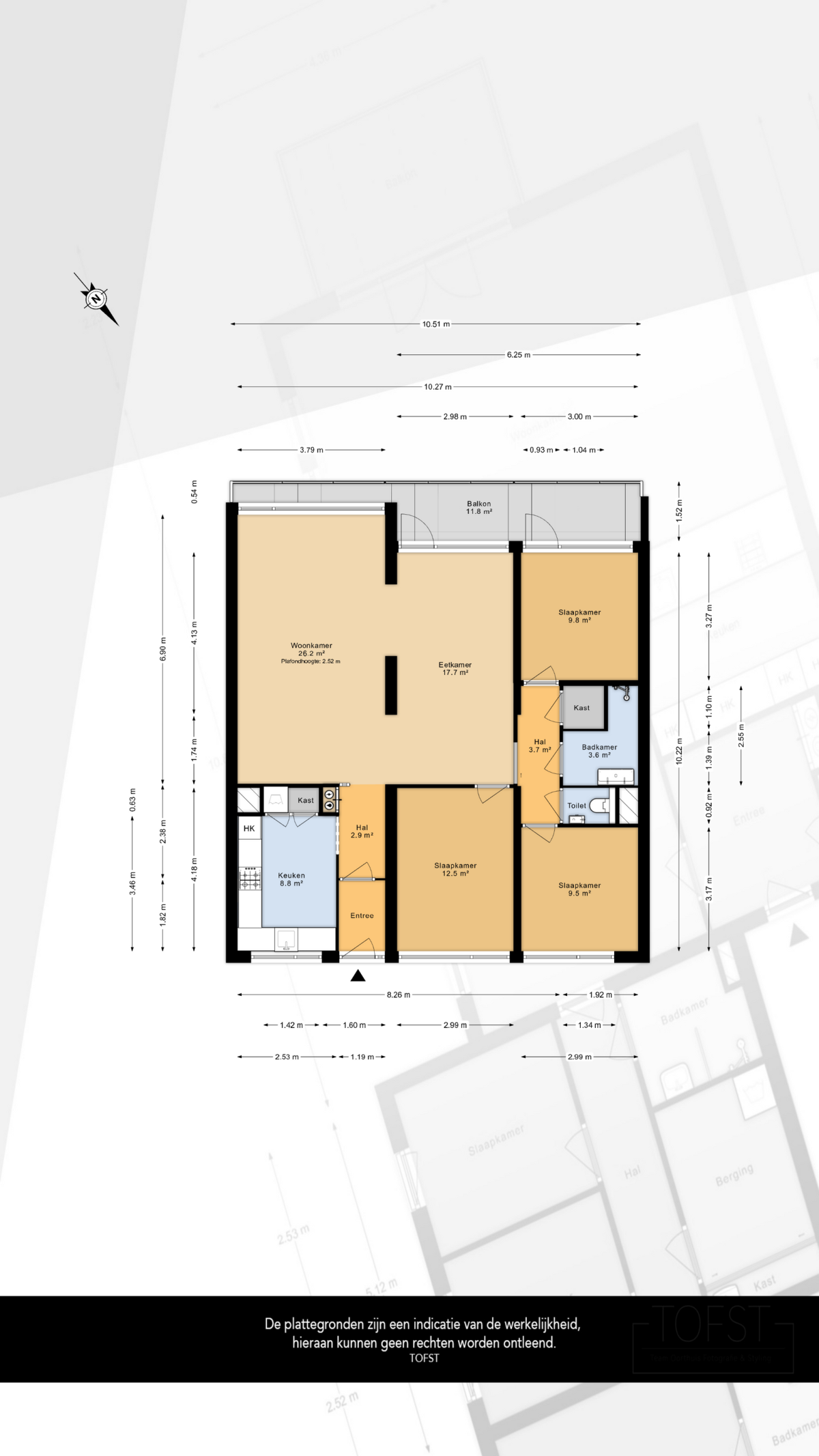
Een schitterend, ruim, modern uitgevoerd 5 kamer appartement van ca.108m2 (grootste type) met een zonnig balkon en met een eigen garagebox. Dit sfeervolle appartement is gelegen op de 1e verdieping in een goed onderhouden appartementencomplex. Het appartement heeft o.a. een royale woon/eetkamer van ca. 46m2 (samengevoegd door verwijderen van de scheidingswanden), luxe keuken, badkamer en toilet, fraaie paneeldeuren, pvc vloer, gestuukte wanden, airco-unit, vernieuwde elektra en een elektrisch zonnescherm. Er zijn daarnaast 3 ruime slaapkamers. Het appartement heeft een fijne lichtval, prettige atmosfeer en een vrij zicht over het park. De locatie is ideaal met met alle voorzieningen in de nabijheid; buurtwinkels, supermarkt, scholen, openbaar vervoer, fitness, sauna, restaurants, snelwegennet en natuur recreatie.
Indeling:
Begane grond:
Afgesloten entree, brievenbussen en bellentableau, entree tot bergingen, liften, trappenhuis.
1e verdieping:
Entree, hal met meterkast. Videofoon-installatie. Moderne luxe keuken voorzien van een Quooker, gaskookplaat, rvs afzuigkap, combi magnetron, koelkast/vriesladen, vaatwasser, veel kastruimten en een plafond met inbouw ledverlichting. Inbouwkast met opstelling wasmachine/droger. Royale woonkamer/eetkamer van totaal ca. 46m2. Door het verwijderen van de tussenwanden is een heerlijke leefruimte ontstaan. Gang naar de praktische bergkast met 120L boiler. Luxe badkamer voorzien van een inloopdouche, dubbele wastafelmeubel, halogeen verlichting. Separaat modern vrij hangend toilet met hand wasbakje. Slaapkamer van ca. 10m2 voorzien van een airco gelegen aan de balkonzijde Hoofdslaapkamer van ca. 13m2, slaapkamer van ca. 10m2 gelegen aan de galerijzijde.
Het appartement is totaal voorzien van een prachtige pvc vloer. De woonkamer, eetkamer en slaapkamer aan de balkonzijde zijn voorzien van elektrische zonneschermen.
Balkon:
Ruim balkon van ca. 14m2 gelegen op het zuid/westen
VvE:
Actieve VVE met een maandelijkse bijdrage van € 248 + 138 euro stookkosten.
Garage/berging: Chopinplein 11
Onder het appartementencomplex op begane grondniveau bevindt zich een ruime garage met een kanteldeur en naast de garage bevindt zich een extra ruimte te gebruiken als berging. Beide ruimtes (samen ca. 27m2) zijn alleen via de kanteldeur te bereiken.
Overige:
-Oplevering maart 2026;
-Bouwjaar ca. 1970;
-Groepenkast 10 groepen en 3 aardlekschakelaars en slimme meters;
-Woning gelegen op eigen grond;
-Verwarming middels blokverwarming;
-Vanwege het bouwjaar van de woning zal er een ouderdoms- en asbestclausule in de koopakte worden opgenomen;
-Het appartement is gelegen in Groenoord en maakt onderdeel uit van het plan "Nieuwe Energie voor Groenoord", verduurzamen van gebouwen;
-Energielabel E;
-Oppervlakte 108.5m2 (NEN2580);
-Inhoud 328m3 (NEN2580);
Deze informatie is door ons met de nodige zorgvuldigheid samengesteld. Onzerzijds wordt echter geen enkele aansprakelijkheid aanvaard voor enige onvolledigheid, onjuistheid of anderszins, dan wel de gevolgen daarvan. Alle opgegeven maten en oppervlakten zijn indicatief. U kunt indien gewenst de woning voor het tekenen van de koopakte zelf inmeten en controleren.
Toelichtingsclausule NEN2580
De Meetinstructie is gebaseerd op de NEN2580. De Meetinstructie is bedoeld om een meer eenduidige manier van meten toe te passen voor het geven van een indicatie van de gebruiksoppervlakte. De Meetinstructie sluit verschillen in meetuitkomsten niet volledig uit, door bijvoorbeeld interpretatieverschillen, afrondingen of beperkingen bij het uitvoeren van de meting.



