-
Aantal kamers
6 kamers
-
Aantal slaapkamers
5 slaapkamers
-
Bouwjaar
1928
-
Bouwvorm
bestaande bouw
-
Inhoud
445m3
-
Oppervlakte
131 m2
In een rustige, straat in Schiedam-West staat deze riante eengezinswoning met maar liefst vijf slaapkamers, twee balkons én een zonnige tuin met berging. De woning is verdeeld over drie woonlagen en biedt volop mogelijkheden voor een groot gezin, thuiswerken of hobby’s. Winkels, scholen, openbaar vervoer en uitvalswegen liggen allemaal in de directe omgeving, ideaal voor wie comfortabel wil wonen op een centrale locatie.
Indeling
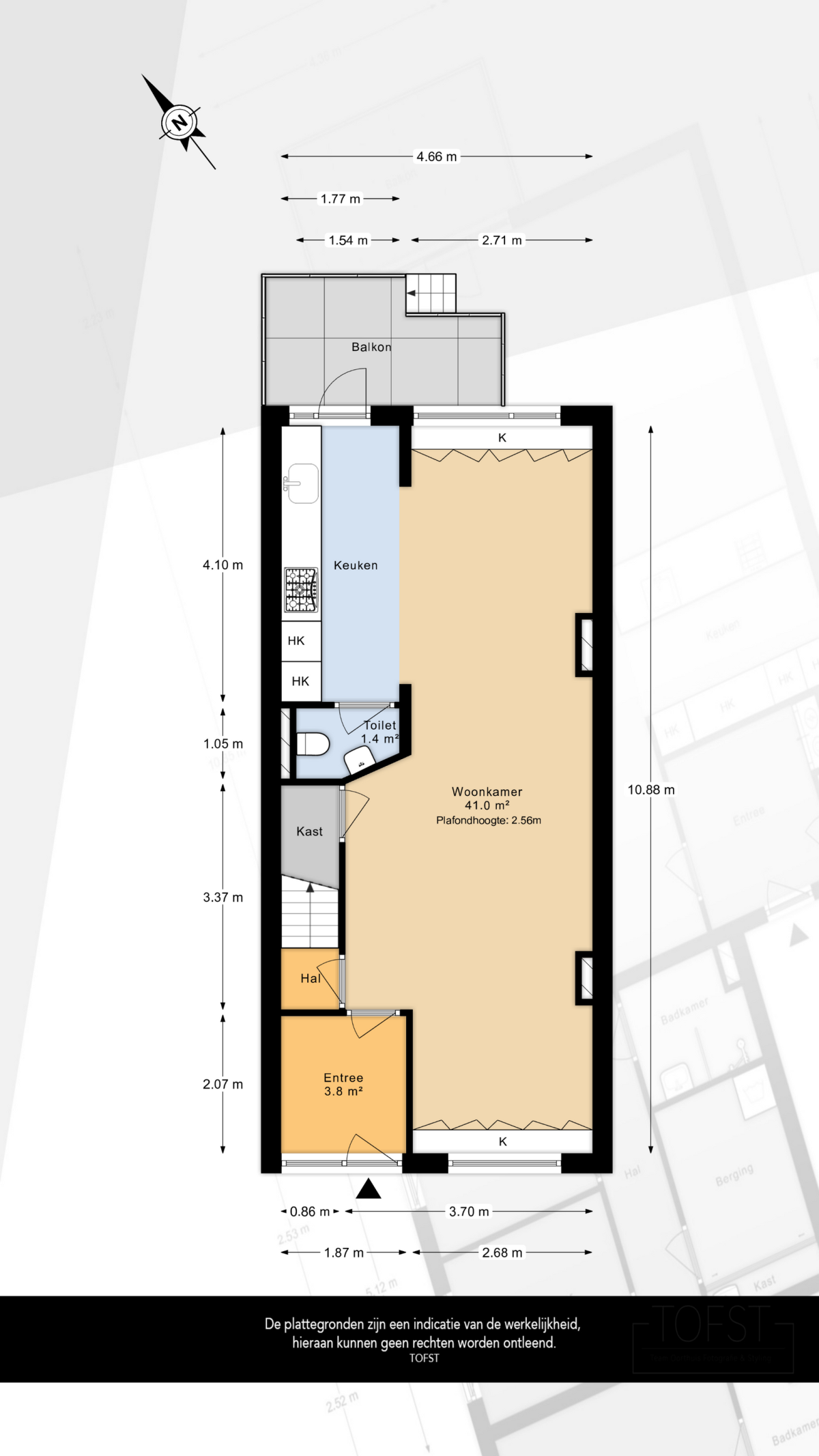
Begane grond:
Via de voortuin bereik je de entree met hal, meterkast en toiletruimte. De ruime woonkamer (circa 41 m²) is heerlijk licht dankzij de grote ramen aan de voor- en achterzijde en biedt voldoende plek voor een royale zithoek en een grote eettafel. Aan de achterzijde bevindt zich de open keuken, voorzien van een modern keukenblok met een praktische opstelling met veel kastruimte, inbouwapparatuur (koel/vrieskast, 5 pits gasklookplaat, afzuigkap, oven, magnetron en vaatwasser) en toegang tot het balkon en de tuin. Via de keuken loop je zo naar buiten: de tuin is netjes aangelegd, grotendeels voorzien van bestrating en gras, en beschikt over een overkapping en een vrijstaande berging, ideaal voor fietsen of tuingereedschap.
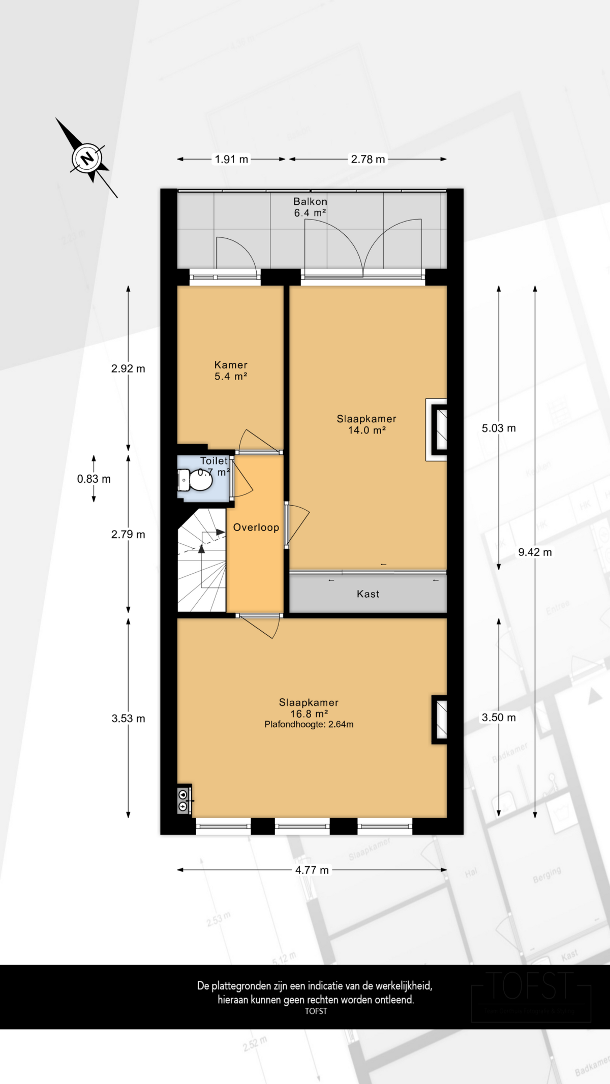
1e verdieping:
De overloop geeft toegang tot drie kamers en een separaat toilet. Slaapkamer 1 aan de achterzijde (ca. 14 m²) met toegang tot het balkon. Slaapkamer 2 aan de voorzijde (ca. 16,8 m²) en slaap/werkkamer 3 aan de achterzijde (ca. 5,4 m²). Deze verdieping heeft verder nog een praktische vaste kast en een tweede toilet.
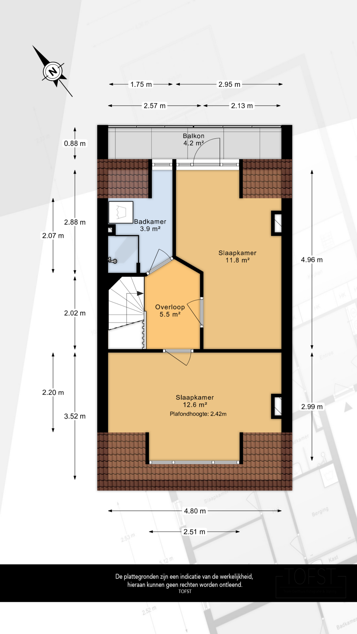
2e verdieping:
Ruime overloop. Op de bovenste etage vind je nog twee ruime slaapkamers, een badkamer en een balkon. Slaapkamer 4 (ca. 12,6 m²) ligt aan de voorzijde en heeft een dakkapel. Slaapkamer 5 (ca. 11,8 m²) bevindt zich aan de achterzijde, met toegang tot het tweede balkon. De badkamer is voorzien van douche, wastafel en aansluiting voor de wasmachine.
Buitenruimte:
De woning beschikt over een zonnige achtertuin met overkapping en berging, perfect voor zomerse avonden of een gezellige barbecue. Daarnaast zijn er twee balkons, waardoor je op elk moment van de dag van de zon kunt genieten.
Kelder:
De woning heeft een bijzonder ruime kelder met een hoogte van 1.70 meter, welke vanuit de achtertuin te bereiken is.
Overige:
-Oplevering 6 weken na nieuwe woning verkoper, uiterlijk 1 juni 2026;
-Energielabel D;
-Bouwjaar 1928;
-Verwarming middels gaskachel en warmwater middels geiser;
-Kunststof kozijnen met dubbel glas;
-Gebruiksoppervlakte 131.1m² + 16.8m² gebouw gebonden buitenruimte (NEN2580);
-Perceeloppervlakte 124 m² (Kadaster);
Deze informatie is door ons met de nodige zorgvuldigheid samengesteld. Onzerzijds wordt echter geen enkele aansprakelijkheid aanvaard voor enige onvolledigheid, onjuistheid of anderszins, dan wel de gevolgen daarvan. Alle opgegeven maten en oppervlakten zijn indicatief. Van toepassing zijn de NVM voorwaarden.
Toelichtingsclausule NEN2580
De Meetinstructie is gebaseerd op de NEN2580. De Meetinstructie is bedoeld om een meer eenduidige manier van meten toe te passen voor het geven van een indicatie van de gebruiksoppervlakte. De Meetinstructie sluit verschillen in meetuitkomsten niet volledig uit, door bijvoorbeeld interpretatieverschillen, afrondingen of beperkingen bij het uitvoeren van de meting. Indien de exacte maten voor een koper van cruciaal belang zijn, adviseren wij deze zelf na te meten.
Notariskeuze en kosten
Indien de koper een notaris kiest buiten een straal van 20 kilometer van de verkochte onroerende zaak dan zijn de eventuele kosten die de notaris berekent voor een eventuele verkoopvolmacht ten behoeve van de verkoper voor rekening van de koper.



