-
Aantal kamers
3 kamers
-
Aantal slaapkamers
2 slaapkamers
-
Bouwjaar
1930
-
Bouwvorm
bestaande bouw
-
Inhoud
298m3
-
Oppervlakte
85 m2
Professor Kamerlingh Onneslaan 90 A 1 3112 VJ SCHIEDAM
Starters opgelet!
We hebben weer een hele mooie, direct te betrekken modern, luxe uitgevoerde bovenwoning in de verkoop gekregen met energielabel A!
Een in 2021 grotendeels compleet vernieuwde en verduurzaamde 3 kamer bovenwoning (1e en halve 3e verdieping achterzijde) met een balkon bij de woonkamer en slaapverdieping.
In 2021 is vernieuwd:
-Keuken, badkamer en toilet;
-CV ketel en radiatoren;
-Alle installaties van gas, water, licht, riool;
-Nieuwe kunststof kozijnen inclusief HR++ glas;
-Alle wanden en plafonds zijn gestuukt en gesausd;
-Nieuwe vloeren;
-Nieuwe groepenkast
-Gevels voor en achter zijn geïsoleerd.
De woning is mooi ruim, licht en heeft een prettige ambiance. De locatie is ideaal met alle voorzieningen in de directe omgeving en ook dichtbij het centrum van Schiedam en NS station.
Locatie:
Het appartement met eigen grond heeft een ideale centrale ligging naast het NS Station van Schiedam. Hierdoor ben je in 5 min in Rotterdam en tevens snel in andere steden, zoals Den Haag of Amsterdam.
Alle voorzieningen zijn voorhanden, NS station en het stationsplein met allerlei winkeltjes. Supermarkt. Centrum, bioscoop, theater, snelweg, restaurants, cafe's etc. zijn ook in de nabije omgeving.
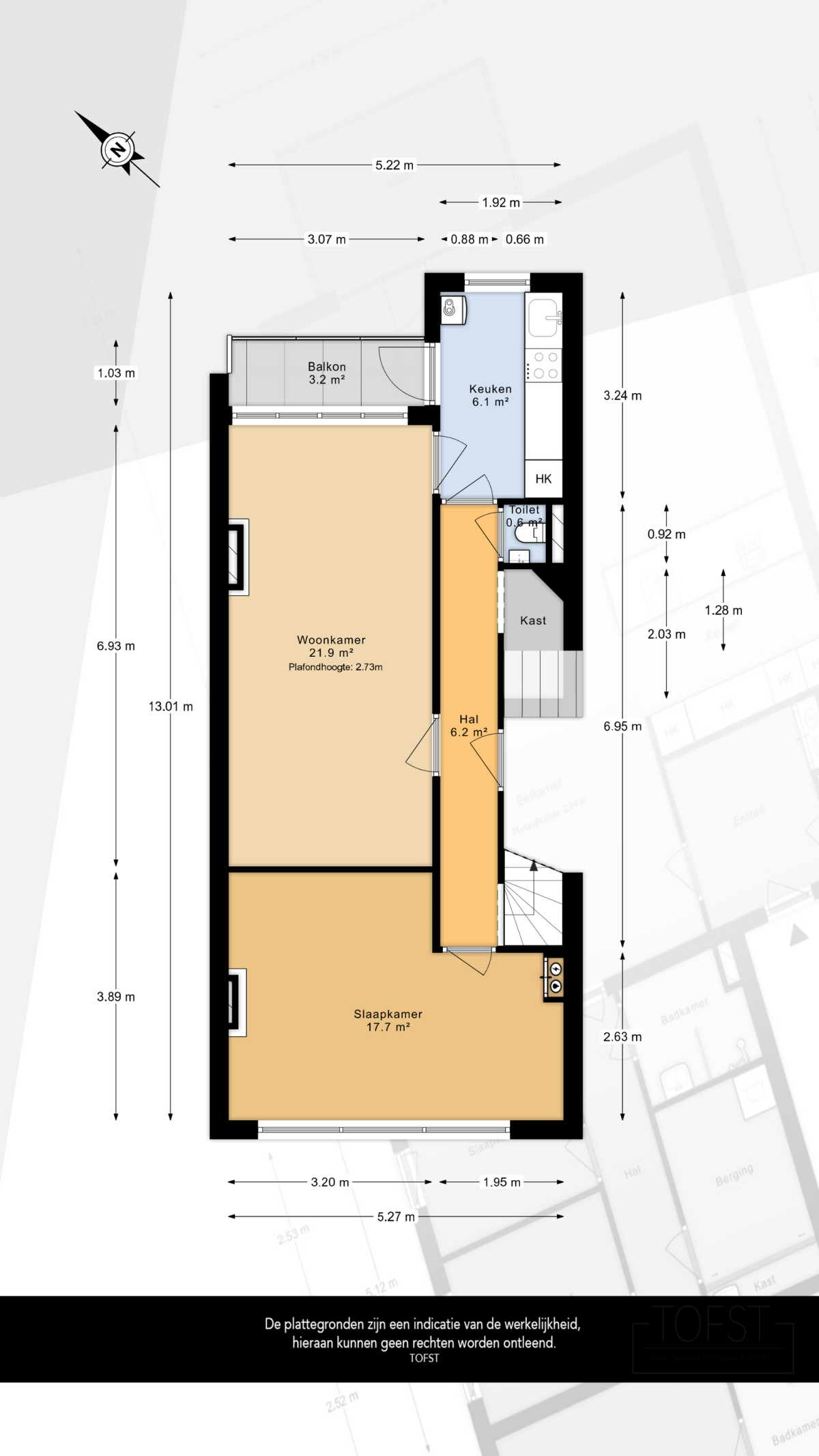
Indeling
Entree naar de woonverdieping.
Gang, trapkast. Toilet met handwasbakje. Moderne keuken voorzien van een vaatwasser, oven, afzuigkap, kookplaat en koelkast-vriescombinatie.
Woonkamer van ca. 22m2. Slaapkamer van ca. 18m2. Meterkast. Balkon aan de achterzijde van ca. 3,2m2.
De gehele woonverdieping is voorzien van een nieuwe laminaatvloer.
3e verdieping:
Overloop. Moderne badkamer voorzien van een wastafelmeubel, inloopdouche, designradiator, opstelling wasmachine en droger. Toegang naar het balkon.
Grote slaapkamer van ca. 17,3m2 met deels open kastruimten. Ook deze verdieping is voorzien van een nieuwe laminaatvloer.
Balkons:
Balkon aanwezig op de woonverdieping van ca. 3,2m2 en de slaapverdieping van 3,5m2.
Overige:
-Een aantal foto's zijn impressies;
-Oplevering kan per direct:
-CV combi ketel uit 2021;
-Volledig voorzien van nieuwekunststof kozijnen met HR++ glas;
-Nieuwe groepenkast (11 groepen).
-Actieve VVE met een bijdrage van 115,72- per maand;
-Energielabel A!
-Bouwjaar 1930;
-Ouderdoms-/asbestclausule van toepassing;
-Aangezien de verkoper het appartement niet zelf heeft bewoond, wordt er een niet zelf bewoond clausule in de koopakte opgenomen.
-Gebruiksoppervlakte wonen 85m2 (Nennorm 2580).
-Voor de afmetingen en indeling verwijzen wij graag door naar de plattegronden;
Deze informatie is door ons met de nodige zorgvuldigheid samengesteld. Onzerzijds wordt echter geen enkele aansprakelijkheid aanvaard voor enige onvolledigheid, onjuistheid of anderszins, dan wel de gevolgen daarvan. Alle opgegeven maten en oppervlakten zijn indicatief. Van toepassing zijn de NVM voorwaarden.
Toelichtingsclausule NEN2580
De Meetinstructie is gebaseerd op de NEN2580. De Meetinstructie is bedoeld om een meer eenduidige manier van meten toe te passen voor het geven van een indicatie van de gebruiksoppervlakte. De Meetinstructie sluit verschillen in meetuitkomsten niet volledig uit, door bijvoorbeeld interpretatieverschillen, afrondingen of beperkingen bij het uitvoeren van de meting. Indien de exacte maten voor een koper van cruciaal belang zijn, adviseren wij deze zelf na te meten.
Notariskeuze en kosten
In principe ligt de notariskeuze bij de koper. Het doorhalen van de hypothecaire inschrijving in het kadaster moet door de verkoper betaald worden. Zijn de kosten voor deze doorhaling hoger dan € 400,- inclusief BTW dan wordt het meerdere bij de koper in rekening gebracht.
Indien de koper een notaris kiest buiten een straal van 20 kilometer van de verkochte onroerende zaak dan zijn de eventuele kosten die de notaris berekent voor een eventuele verkoopvolmacht ten behoeve van de verkoper voor rekening van de koper.



