-
Aantal kamers
2 kamers
-
Aantal slaapkamers
1 slaapkamers
-
Bouwjaar
2015
-
Bouwvorm
bestaande bouw
-
Inhoud
163m3
-
Oppervlakte
47 m2
Scheepmakersteeg 9, 3131 BX Vlaardingen
Een super leuk 2 kamer appartement in het hartje centrum Vlaardingen!
In dit pand aan de Hoogstraat was voorheen een bakkerij gevestigd en in 2015/2016 is het kleinschalige complex opnieuw ontwikkeld naar totaal 7 appartementen.
De sfeer van toen is terug te vinden in de gevel van de woning, terwijl je binnen alle gemakken van het hedendaags comfort hebt.
Dit sfeervolle, moderne appartement is ruim en speels opgezet met aan de achterzijde een directe toegang naar de gezellige en karakteristieke Hoogstraat.
Er is ook nog een ruime berging voor je fiets én scooter en parkeren kan je goed aan de Havenstraat via een parkeervergunning.
Vanwege de centrale ligging heb je werkelijk alles binnen handbereik: cafés, restaurants, supermarkten, bioscoop, theater en allerlei winkels voor alle benodigdheden. Houd je van natuur, dan loop je zo het stadspark in. Ook fiets je binnen 5 minuten naar natuurgebied de Broekpolder en het Midden Delfland gebied.
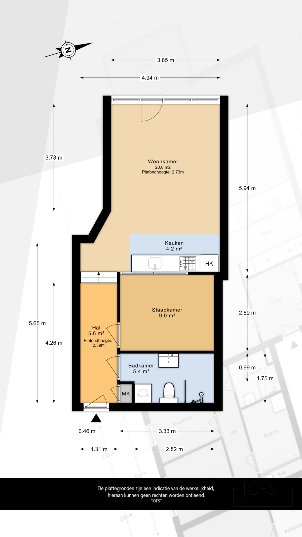
Indeling:
Begane grond:
Hoofdentree via de Scheepmakersteeg met toegang naar het appartement, berging en meterkast.
Entree appartement, gang. Moderne ruime badkamer 3,33m x 1,75m voorzien van een inloopdouche, wastafelmeubel, vrijhangend toilet, badkamermeubel, handdoekradiator en een wasmachine aansluiting.
Grote slaapkamer van ca.9 m2. Aan het eind van de gang bereik je de hoger gelegen woonkamer. Deze splitlevel geeft een leuk effect aan de ruimte!
De woonkamer van ca. 25m2 is ook weer voorzien van strakke wanden en een deur naar de Hoogstraat. In de woonkamer is een open keuken. Deze is voorzien van een koelkast, vriezer, combi-oven, vaatwasser, afzuigkap en een 4 pits gaskookplaat.
Berging:
Naast de woning bevindt zich een eigen bergruimte van ca. 5,2m2.
Bijzonderheden:
-Oplevering in overleg, kan snel.
-Bouwjaar: ca. 1900, her-ontwikkeld in 2015/2016;
-Gelegen op eigen grond;
-Bijdrage actieve VVE € 72,93 per maand;
-Voorzien hardhouten- en stalen kozijnen met dubbel glas;
-Verwarming en warm water door middel CV ketel Remeha Avanta (2016);
-Dakpannen vervangen en dakisolatie aangebracht in 2018 (vanuit VvE)
-Energielabel B;
-Woonoppervlakte: ca. 47m2, gemeten volgens NEN2580.
-De grote kast in de slaapkamer blijft achter.
Deze informatie is door ons met de nodige zorgvuldigheid samengesteld. Onzerzijds wordt echter geen enkele aansprakelijkheid aanvaard voor enige onvolledigheid, onjuistheid of anderszins, dan wel de gevolgen daarvan. Alle opgegeven maten en oppervlakten zijn indicatief. Van toepassing zijn de NVM voorwaarden.
Toelichtingsclausule NEN2580
De Meetinstructie is gebaseerd op de NEN2580. De Meetinstructie is bedoeld om een meer eenduidige manier van meten toe te passen voor het geven van een indicatie van de gebruiksoppervlakte. De Meetinstructie sluit verschillen in meetuitkomsten niet volledig uit, door bijvoorbeeld interpretatieverschillen, afrondingen of beperkingen bij het uitvoeren van de meting. Indien de exacte maten voor een koper van cruciaal belang zijn, adviseren wij deze zelf na te meten.
Notariskeuze en kosten
In principe ligt de notariskeuze bij de koper. Het doorhalen van de hypothecaire inschrijving in het kadaster moet door de verkoper betaald worden. Zijn de kosten voor deze doorhaling hoger dan € 400,- inclusief BTW dan wordt het meerdere bij de koper in rekening gebracht. Indien de koper een notaris kiest buiten een straal van 20 kilometer van de verkochte onroerende zaak dan zijn de eventuele kosten die de notaris berekent voor een eventuele verkoopvolmacht ten behoeve van de verkoper voor rekening van de koper



