-
Aantal kamers
3 kamers
-
Aantal slaapkamers
3 slaapkamers
-
Bouwjaar
1966
-
Bouwvorm
bestaande bouw
-
Inhoud
214m3
-
Oppervlakte
70 m2
Johann Straussplein 306 3122 ZE SCHIEDAM
Zo zie je ze maar zelden!
Een schitterend, recent (2019) luxe gemoderniseerd 4 kamer appartement.
Het hele appartement is op een hoogwaardige wijze, exclusief verbouwd met oog voor detail:
-Badkamer inclusief toilet;
-Alle WCD's en schakelaars;
-Alle wanden/plafonds zijn gestuukt met inbouwverlichting;
-Cinewall in de woonkamer;
-Hoofdslaapkamer met een airco unit;
-Nieuwe plinten en vloer;
-Alle elektra vernieuwd inclusief nieuwe groepenkast
-De ruiten zijn voorzien van dubbelglas en een folie (tegen inkijk en warmte werend).
-De meubels, tv/sonos kunnen in overleg worden overgenomen.
Dit schitterende appartement is gelegen op de 4e verdieping in een appartementencomplex met een lift en berging in de onderbouw. Er zijn 3 slaapkamers. Het appartement heeft een fijne lichtval en prettige atmosfeer.
De locatie is ideaal met met alle voorzieningen in de nabijheid; buurtwinkels, diverse supermarkten, scholen, openbaar vervoer, fitness, sauna, restaurants, snelwegennet en natuur recreatie. Ook het snelwegenet A120, A4 en A13 is binnen 5 minuten te bereiken.
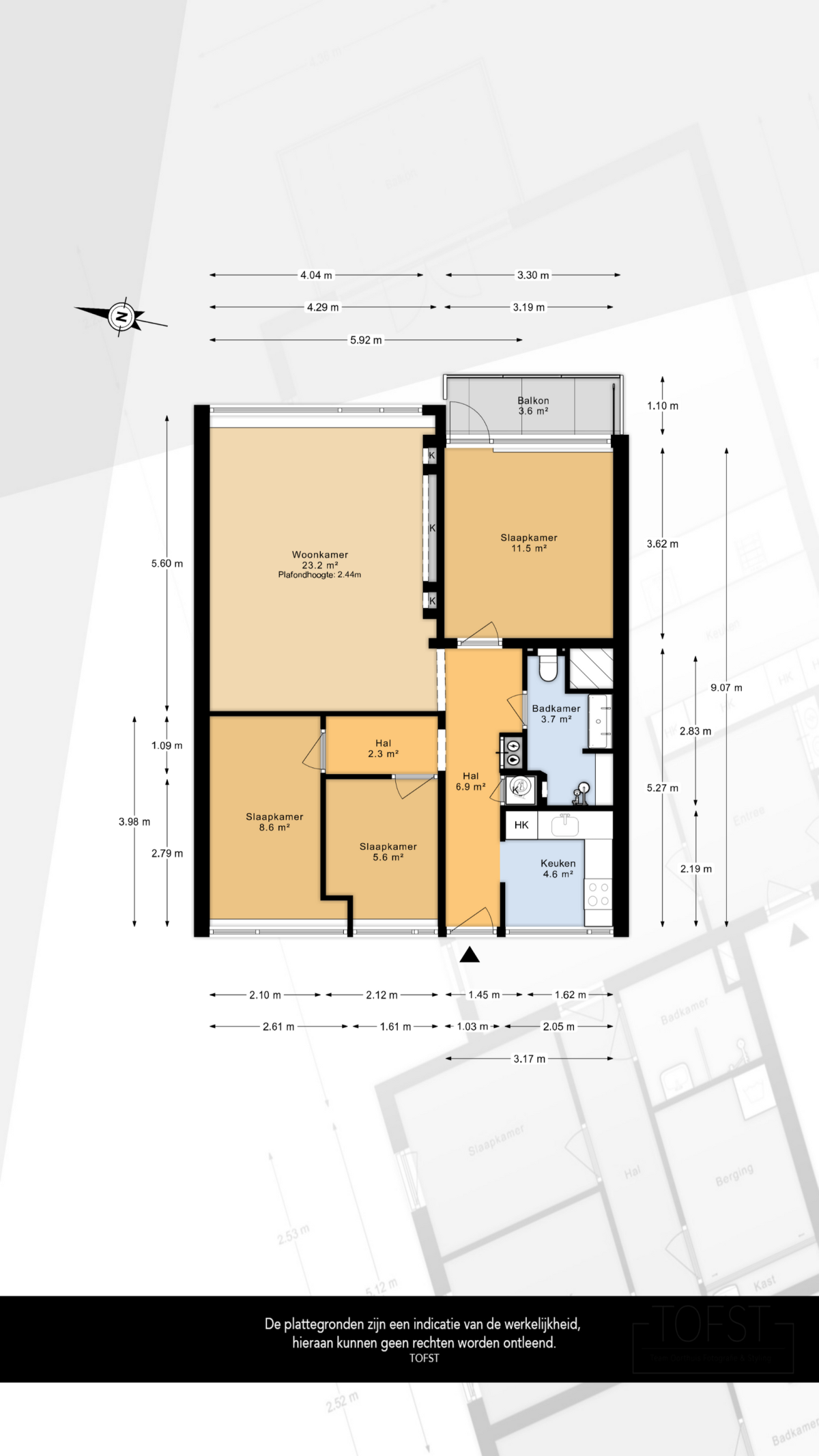
Indeling:
Begane grond:
Afgesloten entree, brievenbussen en bellentableau, entree tot bergingen, liften, trappenhuis.
4e verdieping:
Entree, hal met meterkast. Videofoon-installatie. Luxe uitgevoerde badkamer voorzien van een dubbele wastafelmeubel met een verwarmde spiegel, inloopdouche, vrijhangend toilet, mechanische afzuiging en heeft een verlaagd plafond met inbouwverlichting. Sfeervolle, strak uitgevoerde woonkamer van ca. 23,2,m2 voorzien van een cinema wall. Dichte keuken aan de voorzijde met een hoekopstelling en de volgende apparatuur: afzuigkap, oven, magnetron, vaatwasser, koelkast, vriesladen en veel kastruimten.
De woonkamer is voorzien een randsfeerverlichting. Slaapkamer van ca. 11,5m2. Toegang naar het balkon. Slaapkamer van ca. 5,6m2 (nu een walk in closet). Slaapkamer van ca. 8,6m2. Gangkast met een 100L boiler en wasmachine aansluiting.
Het appartement is totaal voorzien van een prachtige laminaatvloer, gestuukte wanden, verlaagd plafond met inbouwverlichting, nieuwe plinten, nieuwe schakelaars en wandcontactdozen.
Balkon:
Ruim balkon van ca. 4m2 gelegen op het zuiden
VvE:
Actieve VVE met een maandelijkse bijdrage van:
€ 157,04 service kosten
€ 78,64 voorschot stookkosten
€ 7,88 berging
Berging:
Onder het appartementencomplex op begane grondniveau bevindt zich een eigen berging van ca. 6m2.
Overige:
-Oplevering in overleg, planning eind januari 2026.
-Bouwjaar ca. 1966
-Nieuwe groepenkast en elektra 8 groepen en 2 aardlekschakelaars (2019), slimme meters, gasloos.
-De erfpacht is afgekocht tot 1 juli 2041 en loopt tot en met 30 juni 2065.
-Verwarming middels blokverwarming
-Warmwater middels 100L boiler (Tesy uit 2019).
-Vanwege het bouwjaar van de woning zal er een ouderdoms- en asbestclausule in de koopakte worden opgenomen.
-Het appartement is gelegen in Groenoord en maakt onderdeel uit van het plan "Nieuwe Energie voor Groenoord", verduurzamen van gebouwen.
-Energielabel D.
-Oppervlakte ca. 70m2 (NEN2580)
Deze informatie is door ons met de nodige zorgvuldigheid samengesteld. Onzerzijds wordt echter geen enkele aansprakelijkheid aanvaard voor enige onvolledigheid, onjuistheid of anderszins, dan wel de gevolgen daarvan. Alle opgegeven maten en oppervlakten zijn indicatief. Van toepassing zijn de NVM voorwaarden.
Toelichtingsclausule NEN2580
De Meetinstructie is gebaseerd op de NEN2580. De Meetinstructie is bedoeld om een meer eenduidige manier van meten toe te passen voor het geven van een indicatie van de gebruiksoppervlakte. De Meetinstructie sluit verschillen in meetuitkomsten niet volledig uit, door bijvoorbeeld interpretatieverschillen, afrondingen of beperkingen bij het uitvoeren van de meting. Indien de exacte maten voor een koper van cruciaal belang zijn, adviseren wij deze zelf na te meten.
Notariskeuze en kosten
In principe ligt de notariskeuze bij de koper. Het doorhalen van de hypothecaire inschrijving in het kadaster moet door de verkoper betaald worden. Zijn de kosten voor deze doorhaling hoger dan € 400,- inclusief BTW dan wordt het meerdere bij de koper in rekening gebracht. Indien de koper een notaris kiest buiten een straal van 20 kilometer van de verkochte onroerende zaak dan zijn de eventuele kosten die de notaris berekent voor een eventuele verkoopvolmacht ten behoeve van de verkoper voor rekening van de koper.



