-
Aantal kamers
4 kamers
-
Aantal slaapkamers
3 slaapkamers
-
Bouwjaar
1973
-
Bouwvorm
bestaande bouw
-
Inhoud
455m3
-
Oppervlakte
124 m2
Arnoldipad 35 3123 NA SCHIEDAM
Een moderne sfeervolle 5 kamer eengezinswoning, type eindwoning van ca. 124m2 GBO woonoppervlak, gelegen op met een rustige ligging (autovrij). De woning is voorzien van kunststof kozijnen met HR++ glas en kenmerkt zich door zijn ruimte, mooie lichtinval en ruime woonkamer van ca. 45m2. In 2018 is de badkamer en toilet luxe vernieuwd. De keuken is ook modern uitgevoerd. De achtertuin heeft een prachtige vrije ligging op het westen met nog een eigen chaletberging, carport en achterom. De woning ligt in een rustige straat met op loopafstand diverse scholen en winkelcentra Hof van Spaland. Via het openbaar vervoer is er een rechtstreekse verbinding naar Schiedam centrum, Rotterdam en Vlaardingen. Daarnaast zijn op enkele (fiets)minuten het natuurgebied Midden Delfland, diverse sportfaciliteiten en sportverenigingen te bereiken en liggen de uitvalswegen binnen handbereik.
INDELING
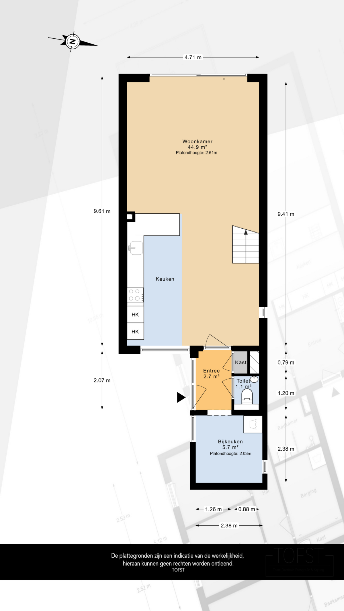
Begane grond:
Entree woning, hal, diepe meterkast, toilet met hand wasbakje. Riante woonkamer inclusief keuken van totaal ca. 45m2 voorzien van een mooie grote kunststof schuifpui. De woonkamer heeft een ruime zithoek, woonkeuken, een mooie lichtinval en een leuk zicht op de tuin. De moderne keuken is voorzien van een granietenblad en wand, een vaatwasser, koelkast, oven, inductie kookplaat, afzuigkap en veel kastruimte. Aan de voorzijde is een directe toegang naar de bijkeuken/wasruimte, ook met opstelling wasm.droger en voorzien van veel kastruimten. Heel praktisch in gebruik.
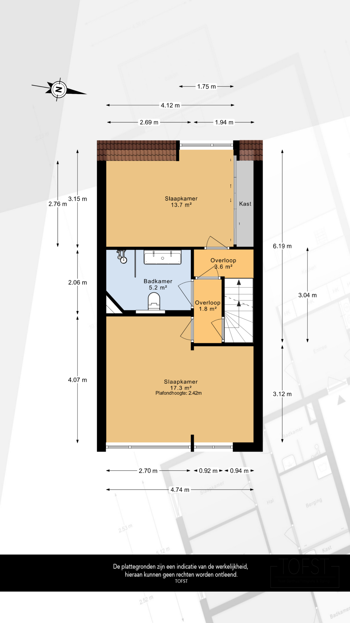
1e verdieping:
Overloop. Hoofd slaapkamer van ca. 17,3 m², gelegen aan de voorzijde, over de volle breedte van de woning. Voorheen waren dit 2 slaapkamers. Indien gewenst kunnen er weer 2 slaapkamers teruggebracht worden. Grote slaapkamer aan de achterzijde van ca. 13,7m2 met een grote kastenwand. Luxe badkamer voorzien van een dubbele wastafelmeubel, inloopdouche, vrij hangend toilet en mechanische afzuiging.
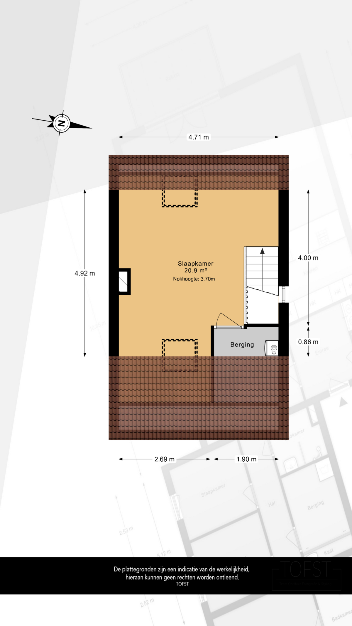
2e verdieping:
Een mooi ingerichte zolderverdieping, ideaal voor de ouders of voor een tiener. Deze ruimte is voorzien van een grote slaapkamer van ca.21m2 met een 2 velux dakramen. Het dak is geïsoleerd. Aparte cv ruimte voorzien van een ATAG cv combi ketel en bergruimte. De zolder heeft een mooie nokhoogte van ca. 3,7m hoog.
Tuin:
Mooi aangelegde achtertuin van ca. 9,7m diep en 4,7m breed voorzien van elektrische zonwering, een terras, beplanting, houten chaletberging (3,2m x 2,44) met elektra en een carport.
Berging:
Aangebouwde berging in de voortuin van ca. 5,6m2.
Bijzonderheden:
- Oplevering kan per direct;
- Alle kozijnen zijn van kunststof met HR++ glas in voorzien van horren;
- In 2025 is de kruipruimte gevuld met isolatieparels.
- Er is een nieuwe groepenkast geplaatst.
- Elektrische zonwering bij de woonkamer;
- Verwarming en warm water middels een CV ATAG combi ketel geplaatst in 2017;
- Bouwjaar 1973;
- De erfpacht is afgekocht tot 30 juni 2048. Het erfpachtrecht loopt tot en met 2072.
- Glasvezelkabel aanwezig;
- Ouderdoms- en asbestclausule van toepassing i.v.m. bouwjaar 1973;
- Woonoppervlak 124 m2 (nennorm 2580);
- Inhoud 455,3m3 (nennorm 2580);
- Perceel van 127 m2 (kadaster).
Deze informatie is door ons met de nodige zorgvuldigheid samengesteld. Onzerzijds wordt echter geen enkele aansprakelijkheid aanvaard voor enige onvolledigheid, onjuistheid of anderszins, dan wel de gevolgen daarvan. Alle opgegeven maten en oppervlakten zijn indicatief. U kunt indien gewenst de woning voor het tekenen van de koopakte zelf inmeten en controleren.
Toelichtingsclausule NEN2580
De Meetinstructie is gebaseerd op de NEN2580. De Meetinstructie is bedoeld om een meer eenduidige manier van meten toe te passen voor het geven van een indicatie van de gebruiksoppervlakte. De Meetinstructie sluit verschillen in meetuitkomsten niet volledig uit, door bijvoorbeeld interpretatieverschillen, afrondingen of beperkingen bij het uitvoeren van de meting.
Notariskeuze en kosten
In principe ligt de notariskeuze bij de koper. Het doorhalen van de hypothecaire inschrijving in het kadaster moet door de verkoper betaald worden. Zijn de kosten voor deze doorhaling hoger dan € 400,- inclusief BTW dan wordt het meerdere bij de koper in rekening gebracht.
Indien de koper een notaris kiest buiten een straal van 20 kilometer van de verkochte onroerende zaak dan zijn de eventuele kosten die de notaris berekent voor een eventuele verkoopvolmacht ten behoeve van de verkoper voor rekening van de koper.



