-
Aantal kamers
6 kamers
-
Aantal slaapkamers
3 slaapkamers
-
Bouwjaar
1924
-
Bouwvorm
bestaande bouw
-
Inhoud
449m3
-
Oppervlakte
121 m2
Voorstraat 28, 3135 HX VLAARDINGEN
(English below:
Een sfeervol, recent, luxe gemoderniseerde 2 laags-hoek-eengezinswoning gelegen in de geliefde woonwijk Vlaardingen Ambacht op EIGEN GROND. Deze leuke woning is in de breedte gebouwd, ca 9m breed, voelt fijn aan en heeft nog diverse jaren 30 details; paneeldeuren, hoge plafonds, granito vloer en een erker. Eind 2023 is de gehele begane grond vernieuwd met een prachtige luxe woonkeuken met een nieuwe achterpui voorzien van HR++ glas, een bijkeuken, apart zitgedeelte met een werkkamer met een erker aan de voorzijde. De vloer is volledig voorzien van vloerverwarming en alle wanden zijn geïsoleerd en voorzien van HR++ kozijnen. De badkamer is vernieuwd in 2019. Het dakterras is voorzien van een nieuwe bitumen laag. Hoofd dak is rond 2015 vernieuwd. Er zijn 14 zonnepanelen (2023). Ook de tuin is voor stadse begrippen, zeer ruim, mooi breed, heeft een vrije ligging en de hele dag zon en schaduwplekken. Door de grote boom in de voortuin is er een fijne sfeer en voldoende schaduw op het huis in de zomer.
Locatie
De woning ligt in een kindvriendelijke fijne wijk met een dorps gevoel en met alle gemakken van een stad binnen handbereik. Ook de uitvalswegen, goede scholen en kinderopvangcentra zijn in directe nabijheid aanwezig. Parkeren kan hier nog voor de deur en is gratis. Ook het centrum van Vlaardingen is binnen 3 minuten fietsafstand te bereiken met diverse winkels, restaurants en terrasjes. Diverse openbaar vervoersmogelijkheden en uitvalswegen liggen op korte afstand waardoor steden als Rotterdam, Delft en Den Haag goed en snel bereikbaar zijn. Maar ook het strand richting Hoek van Holland. Houdt u van natuur, dan loop je zo binnen 2 minuten het Broekpolder gebied in.
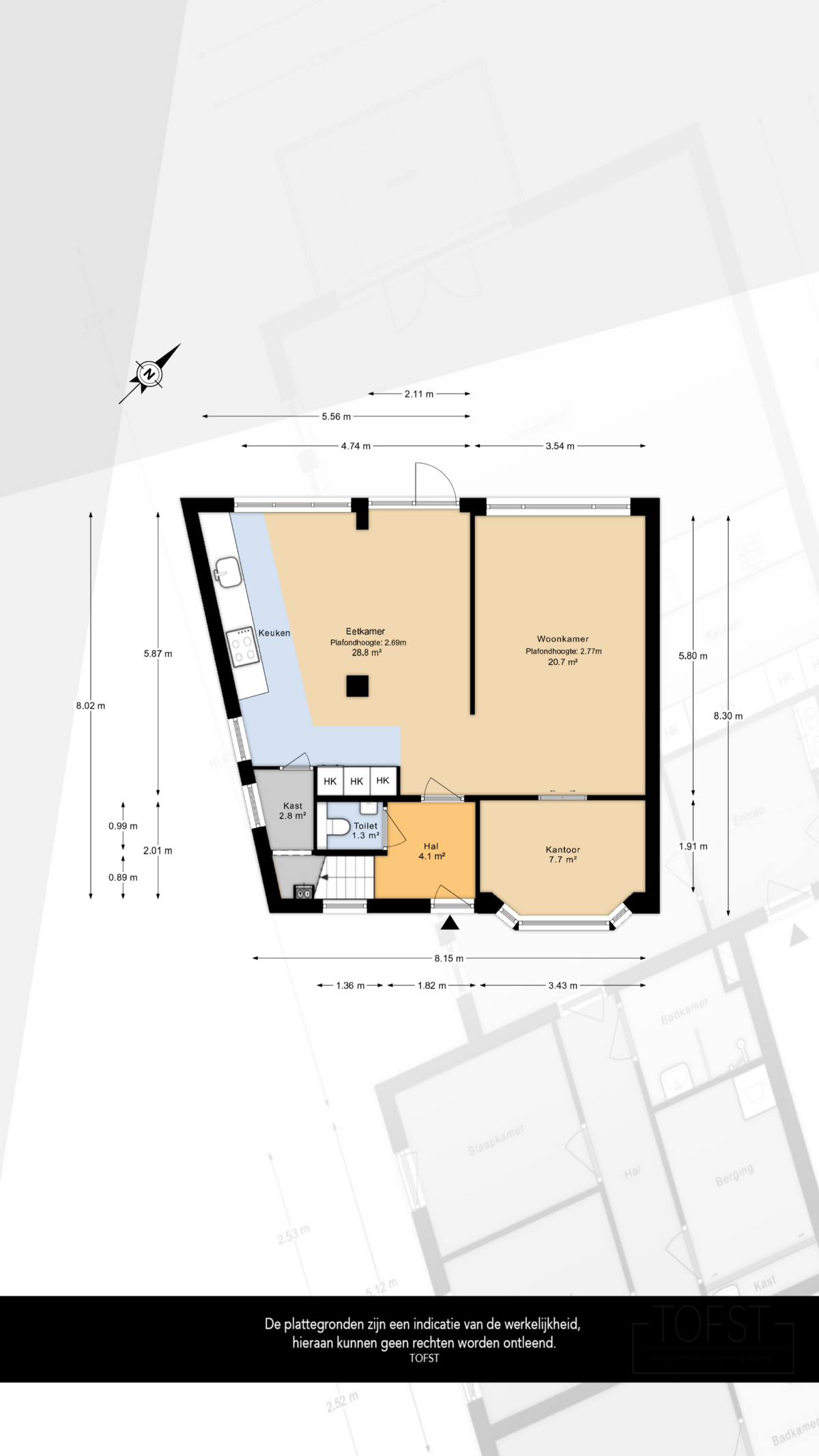
Indeling
Begane grond:
Entree, tochtportaal met een granitovloer, vergroot toilet met een handwasbakje. Heerlijke ruim in 2023 vernieuwde woonkeuken/zitkamer van totaal ca. 50m2. De woonkeuken is een heerlijke plek om de tafelen met vrienden, spelletjes te doen met de kids en of uw kookkunsten uit te proberen. De voetjes blijven door de vloerverwarming behaaglijk warm. Direct naast de keuken bevindt zich het zitgedeelte. Even verdwijnen in uw favoriete boek of leuke film kan hier uitstekend, terwijl je toch contact houdt met de keuken. Aan de voorzijde bevindt zich nog een mooie karaktervolle werkkamer van ca.7,7m2 voorzien van een origine erker. Achter de keuken is een praktische bijkeuken/berging gecreëerd. Ideaal voor provisie. De meterkast is hier ook geplaatst. De uitgebreide luxe keuken is voorzien van diverse apparatuur; koelkast/vriesladen, een oven, vaatwasser, Bora kookplaat een Quooker en veel kastruimen. Vanuit de keuken is een leuk zicht op de tuin.
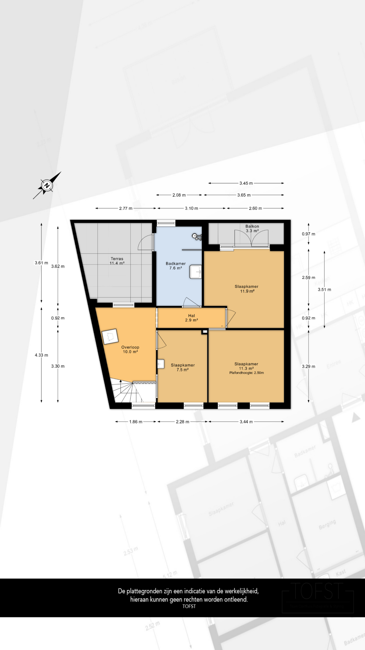
1e verdieping:
Riante overloop, was-, bergruimte. Overloop. Twee voorslaapkamers van ca. 11,3m2 en 7,5m2. Achterslaapkamer van ca.12 m2 met toegang naar het balkon. Klassiek-modern, sfeervol ingerichte ruime badkamer van ca. 3,6m x 2,1m. De badkamer is voorzien van een wastafelmeubel en grote inloopdouche. Toegang naar het terras van ca. 11,4m2.
Tuin
Heerlijke zonnige achtertuin van ca. 9m/12m breed x ca. 9m diep gelegen op het Noordwesten. De tuin is voorzien van diverse beplanting, terras en een houten berging van ca. 9m2.
Parkeren:
Uitzonderlijk veel parkeerplaats in deze wijk achter de woning op de parkeerplaats en in de straat (gratis).
Overige
-Oplevering in overleg;
-Eigen grond;
-Bouwjaar ca. 1924;
-In 2019 bovenste verdieping volledig vernieuwd incl. elektra, leidingen en isolatie.
-In 2023 beneden verdieping volledig vernieuwd incl. elektra, groepenkast, leidingen en isolatie.
-Het hoofd dak is rond 2015 vernieuwd. Dakterras is rond 2023 vernieuwd;
-14 zonnepanelen (2023);
-De badkamer is in 2019 vernieuwd;
-CV ketel uit 2020;
-Airco in de slaapkamer;
-Kunstwerk "Eeuwig venster van verleden en toekomst" aan de zijgevel.
-Gezien het bouwjaar van de woning zal er in de koopovereenkomst een asbest- ouderdomsclausule worden opgenomen;
-Woonoppervlak ca. 121m2 (nennorm 2580);
-Inhoud ca. 449m3. (nennorm 2580);
-Perceeloppervlak 193m2. (kadaster).
Deze informatie is door ons met de nodige zorgvuldigheid samengesteld. Onzerzijds wordt echter geen enkele aansprakelijkheid aanvaard voor enige onvolledigheid, onjuistheid of anderszins, dan wel de gevolgen daarvan. Alle opgegeven maten en oppervlakten zijn indicatief. U kunt indien gewenst de woning voor het tekenen van de koopakte zelf inmeten en controleren.
Toelichtingsclausule NEN2580
De Meetinstructie is gebaseerd op de NEN2580. De Meetinstructie is bedoeld om een meer eenduidige manier van meten toe te passen voor het geven van een indicatie van de gebruiksoppervlakte. De Meetinstructie sluit verschillen in meetuitkomsten niet volledig uit, door bijvoorbeeld interpretatieverschillen, afrondingen of beperkingen bij het uitvoeren van de meting.
Notariskeuze en kosten
In principe ligt de notariskeuze bij de koper. Het doorhalen van de hypothecaire inschrijving in het kadaster moet door de verkoper betaald worden. Zijn de kosten voor deze doorhaling hoger dan € 400,- inclusief BTW dan wordt het meerdere bij de koper in rekening gebracht.
Indien de koper een notaris kiest buiten een straal van 20 kilometer van de verkochte onroerende zaak dan zijn de eventuele kosten die de notaris berekent voor een eventuele verkoopvolmacht ten behoeve van de verkoper voor rekening van de koper.
English version:
Voorstraat 28, 3135 HX Vlaardingen
A charming, recently and luxuriously modernised two-storey corner family home, located in the popular residential area Vlaardingen Ambacht on freehold land.
This attractive property, approximately 9 metres wide, offers a spacious feel and still features various characteristic 1930s details such as panel doors, high ceilings, a granito floor and a bay window. At the end of 2023, the entire ground floor was fully renovated, including a stunning luxury kitchen, a new rear façade fitted with HR++ glazing, a utility room, a separate sitting area and a study with a bay window at the front.
The entire ground floor is equipped with underfloor heating, and all walls have been insulated and fitted with HR++ window frames. The bathroom was renovated in 2019. The roof terrace has been renewed with a new bitumen layer, and the main roof was replaced around 2015. The property also features 14 solar panels (2023).
For urban standards, the garden is exceptionally spacious and wide, offering both sun and shaded areas throughout the day. The large tree in the front garden creates a pleasant atmosphere and provides natural shade during the summer.
Location
The property is situated in a pleasant, child-friendly neighbourhood with a village-like atmosphere, yet with all urban amenities within easy reach. Main roads, good schools and childcare facilities are nearby. Parking is available directly in front of the house and is free of charge.
The centre of Vlaardingen can be reached within approximately 3 minutes by bike and offers a variety of shops, restaurants and terraces. Public transport connections and major roads are nearby, providing quick access to cities such as Rotterdam, Delft and The Hague, as well as the beach at Hoek van Holland. Nature lovers can reach the Broekpolder recreational area within a two-minute walk.
Layout
Ground floor:
Entrance, vestibule with granito flooring, enlarged toilet with washbasin. Spacious living kitchen/sitting room of approximately 50 m², fully renovated in 2023. The kitchen is a wonderful space for dining with friends, playing games with the children or showcasing your cooking skills. Underfloor heating ensures a comfortable temperature throughout.
Adjacent to the kitchen is the sitting area, perfect for relaxing with a book or film while still maintaining connection with the kitchen. At the front of the house there is a charming study of approximately 7.7 m², featuring an original bay window.
Behind the kitchen, a practical utility/storage room has been created, ideal for provisions, with the meter cupboard also located here. The luxurious kitchen is equipped with various built-in appliances, including a fridge/freezer drawers, oven, dishwasher, Bora induction hob, Quooker tap and ample cupboard space. The kitchen also offers a pleasant view of the garden.
First floor:
Spacious landing with laundry and storage area. Two front bedrooms of approximately 11.3 m² and 7.5 m². Rear bedroom of approximately 12 m² with access to the balcony.
The stylish, classic-modern bathroom (approx. 3.6 m x 2.1 m) features a washbasin unit and a large walk-in shower. Access to the roof terrace of approximately 11.4 m².
Garden
A lovely sunny rear garden of approximately 9 to 12 metres wide and approximately 9 metres deep, facing northwest. The garden is landscaped with various plants, a terrace and a wooden storage shed of approximately 9 m².
Parking
An exceptional amount of parking is available in this area, both behind the property and on the street (free of charge).
Additional information
-Delivery in consultation
-Freehold property
-Year of construction: approximately 1924
-First floor fully renovated in 2019, including electrics, piping and insulation
-Ground floor fully renovated in 2023, including electrics, fuse box, piping and insulation
-Main roof replaced around 2015; roof terrace renewed around 2023
-14 solar panels (2023)
-Bathroom renovated in 2019
-Central heating boiler (2020)
-Air conditioning in the bedroom
-Artwork “Eternal Window of Past and Future” on the side façade
-Due to the age of the property, an age clause and asbestos clause will be included in the purchase agreement
-Living area approximately 121 m² (NEN 2580)
-Volume approximately 449 m³ (NEN 2580)
-Plot size 193 m² (Land Registry)
This information has been compiled with due care. However, no liability is accepted for any incompleteness, inaccuracies or consequences thereof. All stated dimensions and surface areas are indicative. Buyers may, if desired, measure and verify the property themselves prior to signing the purchase agreement.
NEN 2580 explanatory clause
The measurement instruction is based on the NEN 2580 standard and aims to apply a more uniform method of measuring usable floor area. Differences in measurement outcomes cannot be fully excluded due to interpretation differences, rounding or practical limitations during measurement.
Notary choice and costs
In principle, the buyer chooses the notary. The cost of cancelling the existing mortgage registration in the land registry must be paid by the seller. If these costs exceed €400 including VAT, the excess will be charged to the buyer.
If the buyer selects a notary located more than 20 kilometres from the property, any additional costs charged by the notary for a power of attorney for the seller will be at the buyer’s expense.



