-
Aantal kamers
6 kamers
-
Aantal slaapkamers
4 slaapkamers
-
Bouwjaar
1898
-
Bouwvorm
bestaande bouw
-
Inhoud
538m3
-
Oppervlakte
132 m2
Welkom aan de Hofsingel 32 in Vlaardingen! Deze sfeervolle woning is ideaal gelegen in een groene en rustige straat, op steenworp afstand van het levendige centrum en alle dagelijkse voorzieningen. Hier woont u heerlijk centraal met winkels, scholen, sportfaciliteiten én goede openbaarvervoerverbindingen naar Rotterdam en Hoek van Holland binnen handbereik. Voor ontspanning liggen het stadspark 't Hof en de uitgestrekte Broekpolder vlakbij, waar u volop kunt genieten van natuur en recreatie. Wat deze woning extra bijzonder maakt, is de ruime tuin, waar u in alle rust kunt ontspannen, kinderen veilig kunnen spelen en waar volop mogelijkheden zijn om gezellig buiten te leven. Een unieke combinatie van een gunstige ligging én heerlijk veel buitenruimte! Binnen geniet u van een lichte en riante woonkamer, perfect voor gezellige avonden met familie en vrienden. De hoge plafonds en glas-in-lood details geven deze woning een karaktervolle uitstraling. De woning beschikt daarnaast over drie comfortabele slaapkamers, ideaal voor een gezin of om ruimte te creëren voor een werk- of hobbykamer. De begane grond verdieping grenst niet aan buurpanden. De slaapverdieping grenst aan 1 zijde aan het buurpand en ligt aan de andere zijde ook vrij.
Indeling:
Op de begane grond treft u een ruime hal met toilet, trapopgang en handige opbergruimte. Vanuit hier loopt u door naar de lichte en riante woonkamer van maar liefst ca. 40m², met een plafondhoogte van 3,22 meter. De grote ramen zorgen voor een fijne lichtinval en maken dit tot een plek waar u zich direct thuis voelt. Aansluitend vindt u de moderne keuken van ca. 15m², voorzien van alle ruimte voor kookliefhebbers. De aangrenzende bijkeuken biedt extra gemak en geeft toegang tot zowel de tuin als de ruime berging van ca. 9m².
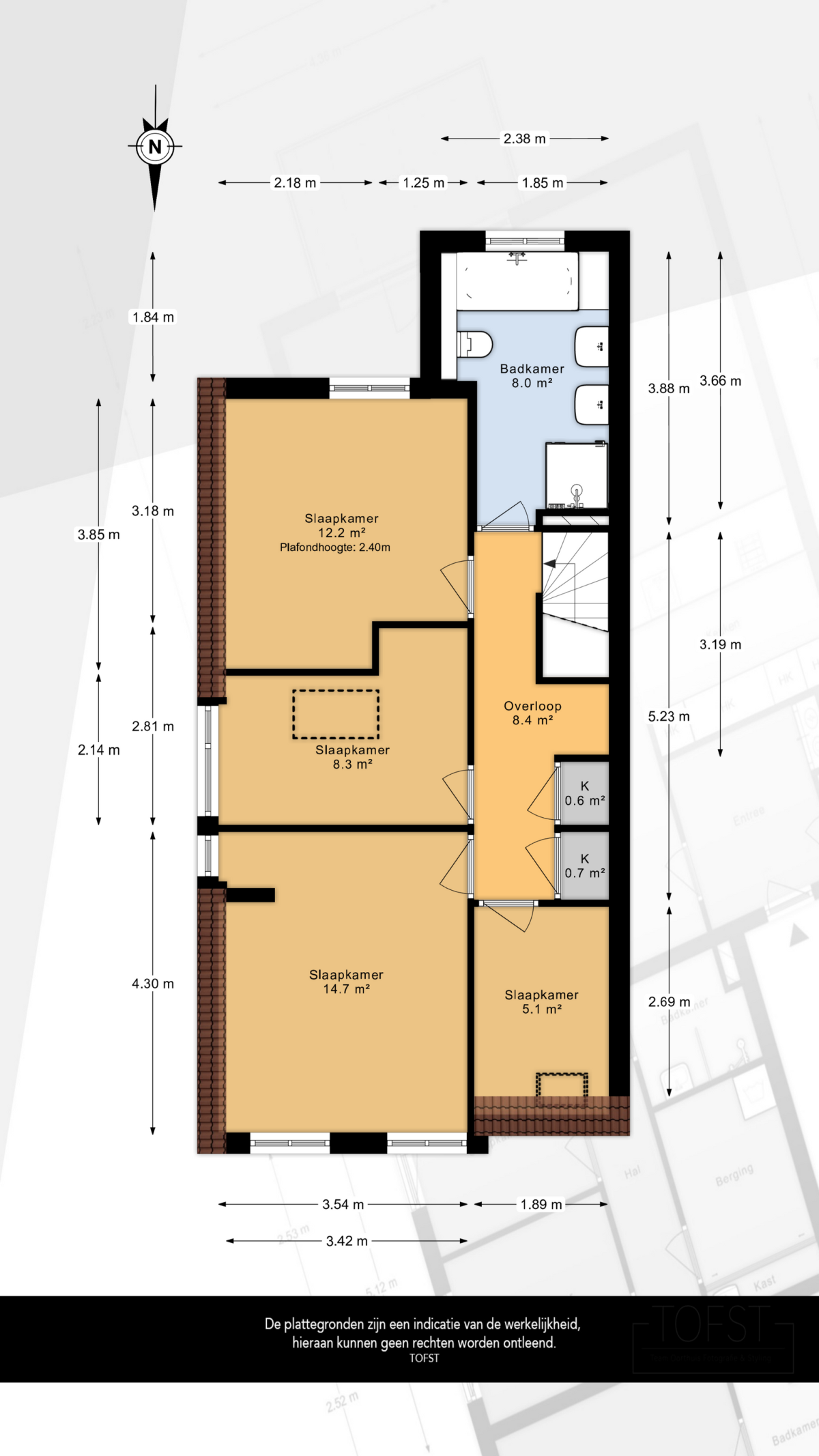
Op de eerste verdieping bevinden zich vier slaapkamers, variërend van ca. 5m² tot bijna 15m². Of u nu een gezin heeft, een thuiskantoor nodig heeft of juist hobbyruimte zoekt, hier is voor ieder wat wils. De nette badkamer is uitgerust met een ligbad, douche, dubbele wastafel en toilet.
De woning beschikt daarnaast over een ruime vliering van ruim 32 m²(vloeroppervlak), ideaal als extra bergruimte voor alles wat u uit het zicht wilt houden of als extra slaap/logeerplek.
En dan de tuin: wat een genot! De ruime en zonnige achtertuin biedt volop mogelijkheden om te ontspannen, kinderen te laten spelen of lange zomeravonden door te brengen met vrienden en familie. Dankzij de royale afmetingen heeft u alle vrijheid om de tuin naar eigen wens in te richten, van een speelparadijs tot een groene oase. Het breedste punt van de tuin is ca. 6.45 en de tuin is meer dan 15 meter diep vanaf de gevel (woonkamer).
Kortom, deze woning aan de Hofsingel combineert een ideale ligging met verrassend veel ruimte, zowel binnen als buiten. Een perfecte kans voor wie op zoek is naar een fijn familiehuis met alle voorzieningen dichtbij.
Bijzonderheden:
-Oplevering eind februari 2026;
-9 zonnepanelen aanwezig;
-Dakisolatie en vloer isolatie aanwezig;
-Bouwjaar 1898;
-Gezien het bouwjaar van de woning wordt er een ouderdoms- en asbestclausule in de koopakte opgenomen;
-De verkoper heeft een bouwkundige keuring uit laten voeren door Perfect Keur welke op te vragen is bij de makelaar;
-Eeuwigdurende erfpacht met een jaarlijkse canon van 13,57 euro;
-Gebruiksoppervlak 131.7m2 gebruiksoppervlakte + 9.1m2 inpandige ruimte (NEN2580);
-Inhoud 537.9m3 (NEN2580);
-Perceel van 160m2 (Kadaster).
Deze informatie is door ons met de nodige zorgvuldigheid samengesteld. Onzerzijds wordt echter geen enkele aansprakelijkheid aanvaard voor enige onvolledigheid, onjuistheid of anderszins, dan wel de gevolgen daarvan. Alle opgegeven maten en oppervlakten zijn indicatief. Van toepassing zijn de NVM voorwaarden.
Toelichtingsclausule NEN2580
De Meetinstructie is gebaseerd op de NEN2580. De Meetinstructie is bedoeld om een meer eenduidige manier van meten toe te passen voor het geven van een indicatie van de gebruiksoppervlakte. De Meetinstructie sluit verschillen in meetuitkomsten niet volledig uit, door bijvoorbeeld interpretatieverschillen, afrondingen of beperkingen bij het uitvoeren van de meting. Indien de exacte maten voor een koper van cruciaal belang zijn, adviseren wij deze zelf na te meten.
Notariskeuze en kosten
In principe ligt de notariskeuze bij de koper. Het doorhalen van de hypothecaire inschrijving in het kadaster moet door de verkoper betaald worden. Zijn de kosten voor deze doorhaling hoger dan € 400,- inclusief BTW dan wordt het meerdere bij de koper in rekening gebracht. Indien de koper een notaris kiest buiten een straal van 20 kilometer van de verkochte onroerende zaak dan zijn de eventuele kosten die de notaris berekent voor een eventuele verkoopvolmacht ten behoeve van de verkoper voor rekening van de koper.



