-
Aantal kamers
4 kamers
-
Aantal slaapkamers
3 slaapkamers
-
Bouwjaar
2000
-
Bouwvorm
bestaande bouw
-
Inhoud
323m3
-
Oppervlakte
97 m2
Burgemeester Kieboomlaan 16 3135 WS VLAARDINGEN
Een sfeervol, modern, twee laags hoekwoning (Bouwjaar 2000) op EIGEN GROND met een heerlijke tuin en vrije ligging. Deze fijne 4 kamer woning heeft een prettige ambiance, mooi lichtinval wat mede door de 2 extra ramen in de zijgevel wordt versterkt. Een woonkamer met vloerverwarming en ruime praktische slaapkamers. In 2024 is de achtertuin nieuw aangelegd en in 2025 zijn alle kozijnen nog geschilderd.
Locatie:
De woning heeft een unieke vrije, rustige ligging in een kindvriendelijke wijk met speeltuintjes, voldoende parkeerruimte naast de woning en alle voorzieningen in de nabijheid; winkelcentra Van Hogendorpkwartier, diverse parken, sportverenigingen, scholen, snelwegennet en openbaar vervoer.
Indeling
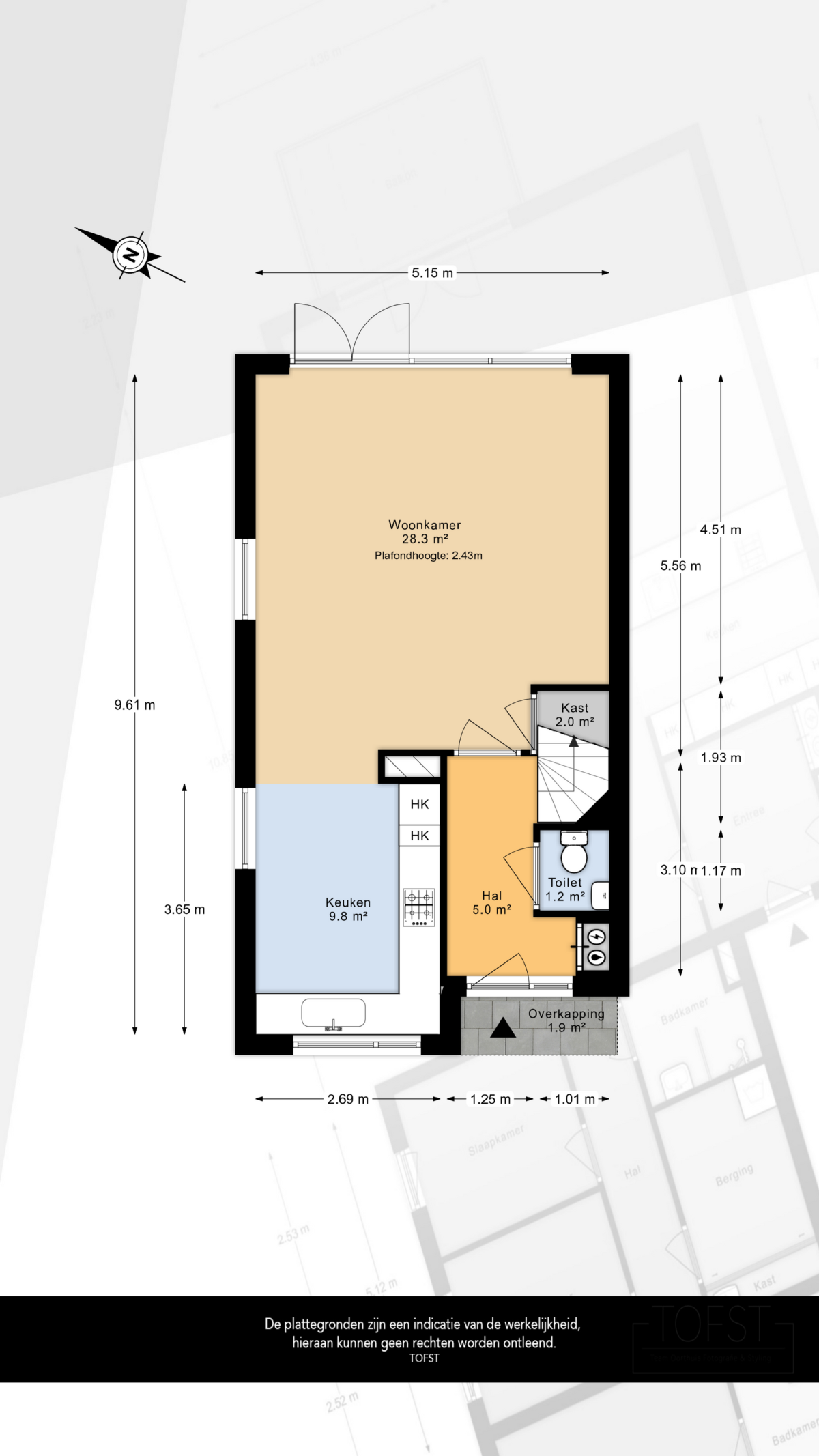
Mooie voortuin, entree woning, meterkast, gang, toilet met een handwasbakje en toegang tot de woonkamer. Mooie ruime L- vormige woonkamer met een half open keuken van totaal ca 38m2.
De woonkamer is voorzien van comfortabele vloerverwarming met een plavuizenvloer, een praktische trapkast en geeft via de openslaande deuren toegang naar de tuin. Door de extra 2 ramen in de zijgevel heeft de woonkamer een mooie lichtinval. Er is een elektrische screen geplaatst aan de keukenzijde en zijgevel. De achtergevel is nog voorzien van een elektrisch zonnescherm. De hoekkeuken is voorzien van een gaskookplaat, afzuigkap, oven (2020), vaatwasser (2020), koelkast, vriesladen, apothekerskast, carrousel en veel kasruimten.
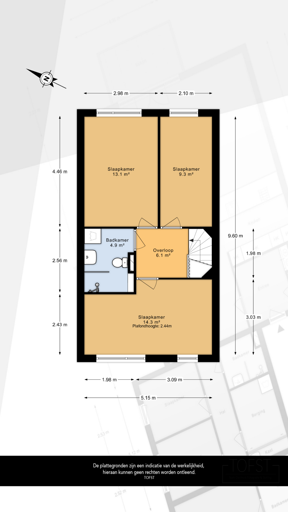
1e verdieping
Ruime overloop. Hoofdslaapkamer van ca. 14,3m2 aan de voorzijde. Slaapkamer van ca. 13,1m2 en een slaapkamer van ca. 9,1m2 aan de achterzijde. Moderne badkamer voorzien van een wastafelmeubel, toilet, designradiator en met een in 2015 geplaatste grote nieuwe inloopdouche. Bij alle slaapkamers zijn er elektrische rolluiken geplaatst. Ideaal tegen warmte en verduisteren.
Achtertuin:
Via de openslaande deuren met cassette hor bereikt u de tuin. De tuin is in 2024 nieuw aangelegd met mooie tuintegels en divers borders. Achterin de tuin staat een vrijstaande berging (6,3m2) met elektra. De achtergevel is nog voorzien van een elektrisch zonnescherm en een buitenkraan. Achterom aanwezig.
De voortuin is ook netjes ingericht en voorzien van een buitenkraan.
Overige:
-Oplevering per maart 2026.
-Cassettehor aanwezig bij de openslaande deuren.
-Verwarming en warm water middels HR CV-ketel, Remeha 2016.
-Rolgordijnen geplaatst in 2024.
-Energielabel B (02-12-2035)
-De tuin is in 2024 nieuw aangelegd (tegels en borders)
-Elektrische rolluiken op de slaapverdieping. Elektrische screens woonkamer (voor- en zijgevel).
-Vloerverwarming op begane grond niveau.
-Bouwjaar: 2000.
-Woonoppervlak 97,2 m2. (nennorm 2580)
-Gelegen op 153 m2 EIGEN GROND. (bron Kadaster).
Deze informatie is door ons met de nodige zorgvuldigheid samengesteld. Onzerzijds wordt echter geen enkele aansprakelijkheid aanvaard voor enige onvolledigheid, onjuistheid of anderszins, dan wel de gevolgen daarvan. Alle opgegeven maten en oppervlakten zijn indicatief. U kunt indien gewenst de woning voor het tekenen van de koopakte zelf inmeten en controleren.
Toelichtingsclausule NEN2580
De Meetinstructie is gebaseerd op de NEN2580. De Meetinstructie is bedoeld om een meer eenduidige manier van meten toe te passen voor het geven van een indicatie van de gebruiksoppervlakte. De Meetinstructie sluit verschillen in meetuitkomsten niet volledig uit, door bijvoorbeeld interpretatieverschillen, afrondingen of beperkingen bij het uitvoeren van de meting.
Notariskeuze en kosten
In principe ligt de notariskeuze bij de koper. Het doorhalen van de hypothecaire inschrijving in het kadaster moet door de verkoper betaald worden. Zijn de kosten voor deze doorhaling hoger dan € 400,- inclusief BTW dan wordt het meerdere bij de koper in rekening gebracht.
Indien de koper een notaris kiest buiten een straal van 20 kilometer van de verkochte onroerende zaak dan zijn de eventuele kosten die de notaris berekent voor een eventuele verkoopvolmacht ten behoeve van de verkoper voor rekening van de koper.



