-
Aantal kamers
2 kamers
-
Aantal slaapkamers
1 slaapkamers
-
Bouwjaar
1938
-
Bouwvorm
bestaande bouw
-
Inhoud
168m3
-
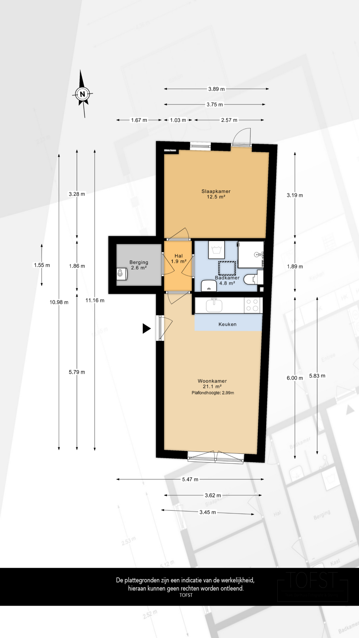
Oppervlakte
44 m2
Westvest 2B 3111 BV SCHIEDAM
2 kamer appartement gelegen op een gunstige plek midden in het centrum van Schiedam. Het kleinschalige appartementencomplex is recent gesplitst en de VVE is opgericht. Het oudste stadspark van Nederland bevindt zich letterlijk aan de overkant en de tram stopt aan de andere kant van de Koemarktbrug. Het historische centrum ligt om de hoek en eigenlijk ligt alles binnen handbereik, zoals winkels, uitvalswegen, horeca en amusement.
Indeling:
Afgesloten entree op de begane grond waar tevens de meterkast is gesitueerd.
Entree appartement op de 1e verdieping, ruime hal, inpandige berging, woonkamer met open keuken van tezamen ca. 21. De keuken bevindt zich in het midden van het appartement en is voorzien van een net keukenblok met een kookplaat, afzuigkap en een vaatwasser. Nette badkamer voorzien van douchehoek, toilet en een wastafel. De slaapkamer ligt aan de achterzijde en is ca. 12.5m2.
Buitenruimte:
De woning heeft de beschikking over een buitenruimte.
Overige:
-Bouwjaar 1938;
-Voorzien van dubbel glas;
-Energielabel D;
-CV ketel uit 2020;
-Houten kozijnen met dubbel glas;
-'As is where is' clausule van toepassing;
-Projectnotaris van toepassing;
-Verkoper heeft de woning nooit bewoond, dit wordt specifiek in de koopakte opgenomen
-VVE recent opgericht, de maandelijkse bijdrage wordt ca. 60 euro;
-Gebruiksoppervlakte volgens NEN2580 43.9m2
Deze informatie is door ons met de nodige zorgvuldigheid samengesteld. Onzerzijds wordt echter geen enkele aansprakelijkheid aanvaard voor enige onvolledigheid, onjuistheid of anderszins, dan wel de gevolgen daarvan. Alle opgegeven maten en oppervlakten zijn indicatief. Van toepassing zijn de NVM voorwaarden.
Toelichtingsclausule NEN2580
De Meetinstructie is gebaseerd op de NEN2580. De Meetinstructie is bedoeld om een meer eenduidige manier van meten toe te passen voor het geven van een indicatie van de gebruiksoppervlakte. De Meetinstructie sluit verschillen in meetuitkomsten niet volledig uit, door bijvoorbeeld interpretatieverschillen, afrondingen of beperkingen bij het uitvoeren van de meting. Indien de exacte maten voor een koper van cruciaal belang zijn, adviseren wij deze zelf na te meten.
Notariskeuze en kosten
In principe ligt de notariskeuze bij de koper. Het doorhalen van de hypothecaire inschrijving in het kadaster moet door de verkoper betaald worden. Zijn de kosten voor deze doorhaling hoger dan € 400,- inclusief BTW dan wordt het meerdere bij de koper in rekening gebracht.
Indien de koper een notaris kiest buiten een straal van 20 kilometer van de verkochte onroerende zaak dan zijn de eventuele kosten die de notaris berekent voor een eventuele verkoopvolmacht ten behoeve van de verkoper voor rekening van de koper.



