-
Aantal kamers
3 kamers
-
Aantal slaapkamers
2 slaapkamers
-
Bouwjaar
1957
-
Bouwvorm
bestaande bouw
-
Inhoud
186m3
-
Oppervlakte
59 m2
Vlaardingerdijk 338, 3117 ZT Schiedam
Starters opgelet!
Wij bieden aan een luxe uitgevoerd 3 kamer appartement op de 1e verdieping met balkon, instap klaar inclusief meubels, tafels en kasten.
Het appartement is in 2016 compleet luxe gerenoveerd/gemoderniseerd en kijkt aan de achterzijde leuk weg naar het groen. Een aantal vernieuwingen op een rij;
-nieuwe keuken, badkamer en toilet.
-nieuwe vloeren, wanden en plafonds,
-nieuwe 120L boiler (Siebel Eltron)
-nieuwe keuken apparatuur 2023 (oven)
-wasmachine uit 2024.
-nieuwe groepenkast geplaatst.
Het appartement heeft een prettige uitstraling en ziet er verzorgd uit. Kozijnen zijn voorzien van dubbelglas. Het appartementencomplex wordt goed onderhouden door een actieve vereniging van eigenaren en beschikt over een lift. Openbaar vervoersmogelijkheden liggen binnen handbereik want het complex ligt dichtbij metrostations Vijfsluizen en Vlaardingen-Oost. Tevens zijn in de directe omgeving; uitvalswegen, recreatiemogelijkheden en buurtcentra. Snelweg A20, A15 en A4 binnen 3 minuten te bereiken.
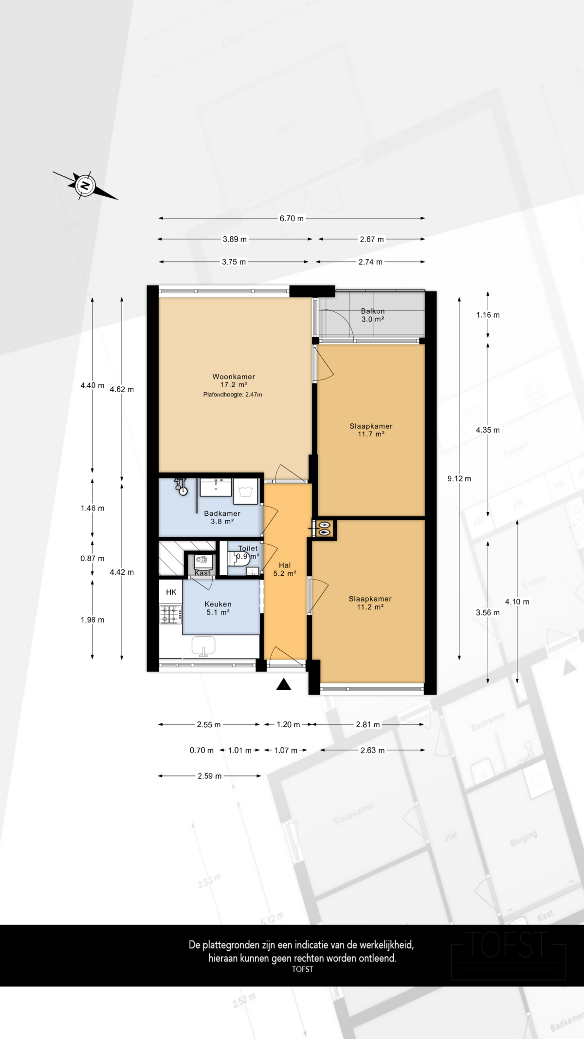
Indeling:
Entree, gang, meterkast. Toilet. Dichte hoekkeuken voorzien van gaskookplaat, afzuigkap, vaatwasser, koelkast en vriesladen, inbouwkast met opstelling van de boiler. Slaapkamer aan de voorzijde van ca. 11,2m2 met ingebouwde kledingkast. Vergrote badkamer voorzien van een inloopdouche, wastafelmeubel en ruimte voor de wasmachine. Sfeervolle woonkamer van ca. 17,2m2 met een leuk zicht naar het groen. Achterslaapkamer van ca. 11,7m2. Toegang tot het balkon.
Balkon:
Het balkon met ligging op het westen geeft een leuk zicht naar het groen.
Berging:
Op de begane grond bevindt zich een eigen berging.
Bijzonderheden:
-'As is where is' clausule van toepassing;
-Asbestclausule van toepassing.
Overige:
- Oplevering kan per direct;
- Actieve VVE met vanaf 2026 een maandelijkse bijdrage van € 188,12 en € 108,- voorschot stookkosten;
- Afgekochte erfpacht tot 01-04-2031, recht loopt tot 30-06-2052;
- Warmwater via een 120 liter boiler (2016 Siebel Eltron);
- Woning volledig voorzien van dubbele beglazing;
- Energielabel D;
- Bouwjaar 1957;
- Gebruiksoppervlakte wonen 58,5m2 (NEN2580)
Deze informatie is door ons met de nodige zorgvuldigheid samengesteld. Onzerzijds wordt echter geen enkele aansprakelijkheid aanvaard voor enige onvolledigheid, onjuistheid of anderszins, dan wel de gevolgen daarvan. Alle opgegeven maten en oppervlakten zijn indicatief. Indien de exacte maten voor een koper van cruciaal belang zijn, kunt u de woning voor het tekenen van de koopakte zelf inmeten en controleren
Toelichtingsclausule NEN2580
De Meetinstructie is gebaseerd op de NEN2580. De Meetinstructie is bedoeld om een meer eenduidige manier van meten toe te passen voor het geven van een indicatie van de gebruiksoppervlakte. De Meetinstructie sluit verschillen in meetuitkomsten niet volledig uit, door bijvoorbeeld interpretatieverschillen, afrondingen of beperkingen bij het uitvoeren van de meting.
Notariskeuze en kosten
In principe ligt de notariskeuze bij de koper. Het doorhalen van de hypothecaire inschrijving in het kadaster moet door de verkoper betaald worden. Zijn de kosten voor deze doorhaling hoger dan € 400,- inclusief BTW dan wordt het meerdere bij de koper in rekening gebracht.
Indien de koper een notaris kiest buiten een straal van 20 kilometer van de verkochte onroerende zaak dan zijn de eventuele kosten die de notaris berekent voor een eventuele verkoopvolmacht ten behoeve van de verkoper voor rekening van de koper.



