-
Aantal kamers
6 kamers
-
Aantal slaapkamers
5 slaapkamers
-
Bouwjaar
1930
-
Bouwvorm
bestaande bouw
-
Inhoud
495m3
-
Oppervlakte
136 m2
Van Ostadelaan 6, 3117 XL Schiedam
Een sfeervolle, instapklare en gerenoveerde jaren '30 eengezinswoning met een GBO woonoppervlak van 136 m² met 5 kamers in het hart van de gewilde kindvriendelijke wijk Schiedam-West.
Deze karaktervolle woning is deels verduurzaamd met zonnepanelen, magnesietdekvloeren met isolatie, vloerverwarming en dakisolatie. De woning combineert het karakter van de jaren '30 met modern wooncomfort en is grotendeels van binnen vernieuwd. Een mooi geheel van authentieke details en eigentijdse afwerking. De woning ligt in een kindvriendelijke wijk en gezellige straat met alle voorzieningen in de nabijheid: buurtwinkels, parken, snelwegennet, scholen en openbaar vervoer. Parkeren kan hier voor de deur en is gratis. Ook het centrum van Schiedam is binnen 5 minuten fietsafstand te bereiken. Met winkels, restaurants en terrasjes. Diverse openbaar vervoersmogelijkheden en uitvalswegen liggen op korte afstand waardoor steden als Rotterdam, Delft en Den Haag goed en snel bereikbaar zijn.
De woning is tussen 2021-2023 gerenoveerd, gemoderniseerd en geoptimaliseerd waaronder;
-Vloerverwarming, alle verdiepingen
-Vloeren waterpas gemaakt en geïsoleerd middels magnesietdekvloeren (lichtgewicht toepassing)
-Plafond vernieuwd, wanden gestuukt en gesausd
-De kozijnen op de begane grond zijn pas geschilderd, deels enkel en dubbelglas
-Nieuwe schakelmateriaal en wcd's
-Dakisolatie toegepast
-Voor- en achtertuin vernieuwd
-Nieuwe elektra en groepenkast
-Nieuwe luxe keuken 2022
-Zonnepanelen 12 stuks
-Nieuwe binnendeuren, begane grond steviger deuren, 1e verdieping lichter materiaal
-2 toiletten
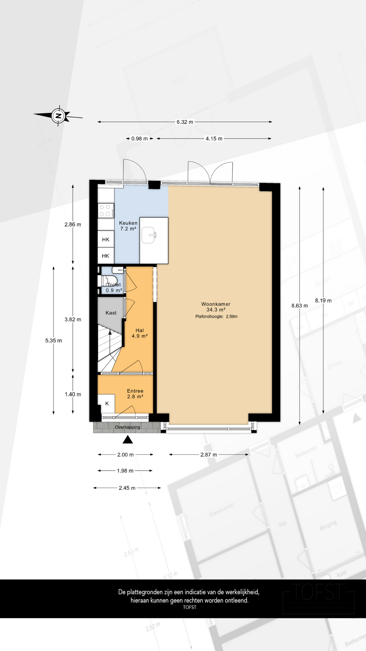
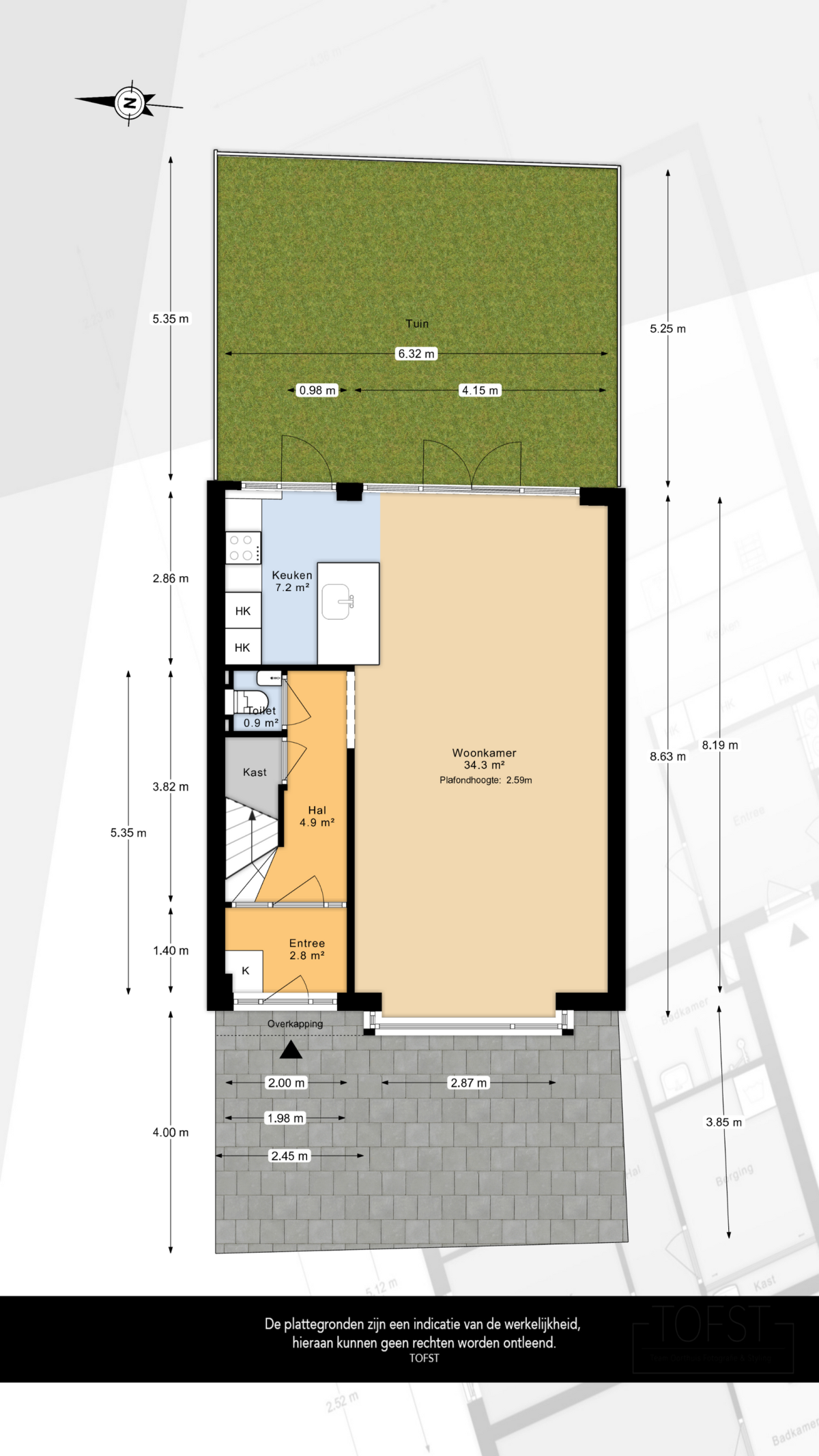
Indeling
Begane grond:
Entree, tochtportaal met granitovloer. Gang voorzien van trapkast, berging en meterkast. Toilet met fonteintje. Royale sfeervolle L-vormige woonkamer van ca. 42 m² met vloerverwarming, een karakteristieke erker, half openkeuken met een kookeiland. Via openslaande deuren en de keukendeur bereik je de tuin. De luxe keuken beschikt over veel kastruimten en de volgende apparatuur: koelkast/vriesladen, vaatwasser, oven, magnetron, afzuigkap, inductie kookplaat en een kokend water kraan.
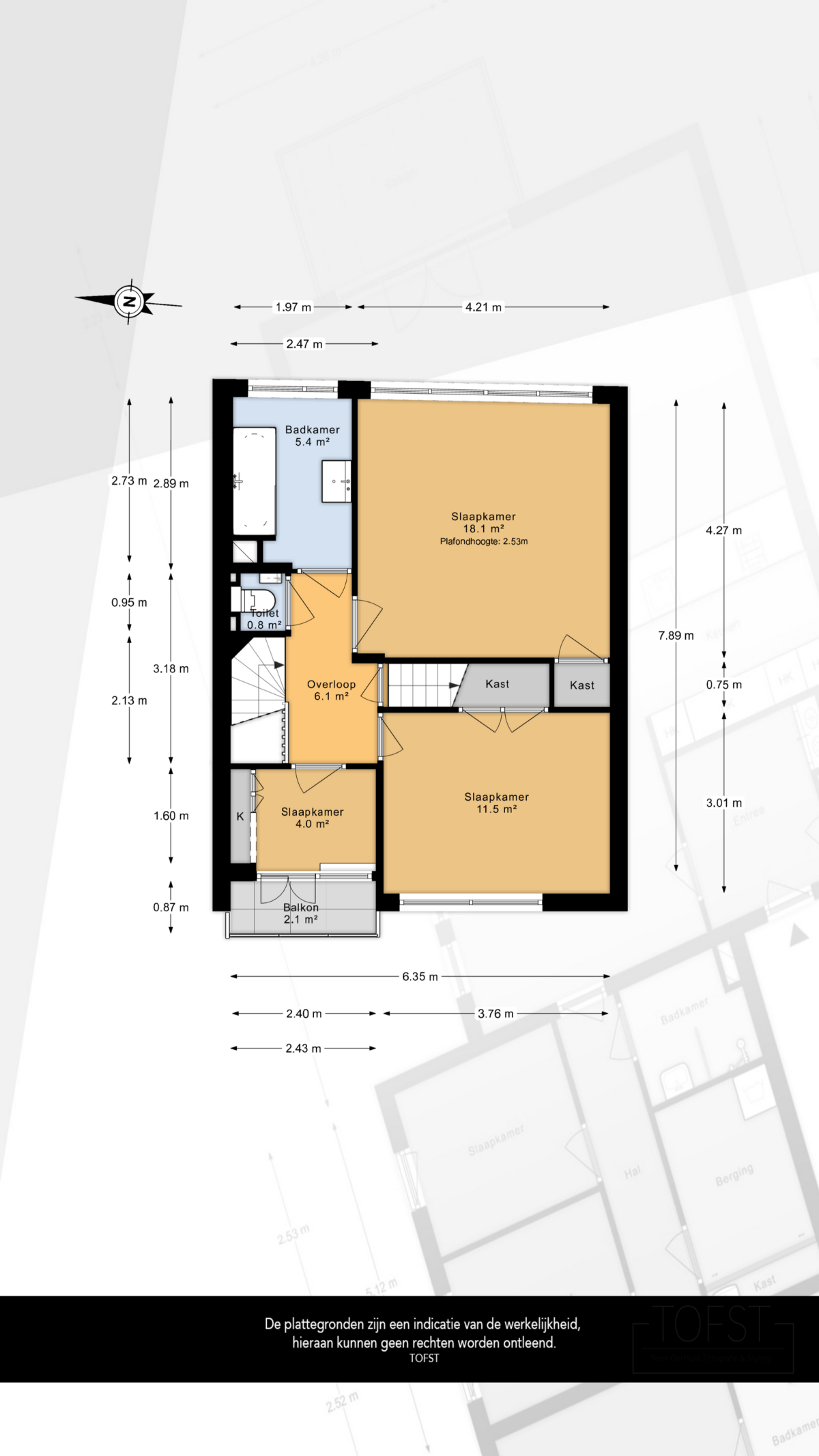
1e verdieping:
Overloop. Ruime hoofdslaapkamer aan de voorzijde van ca. 12m2 met inbouwkast onder de trap. Slaapkamer van ca. 18m2 aan de achterzijde met een inbouwkast. Praktische werkkamer van ca. 4m2 met op maat gemaakt bureau en inbouwopberging — ideaal voor thuiswerkers en toegang naar het balkon. Moderne badkamer voorzien van ligbad/douche combinatie, toilet, wastafelmeubel, hangend meubel en een designradiator.
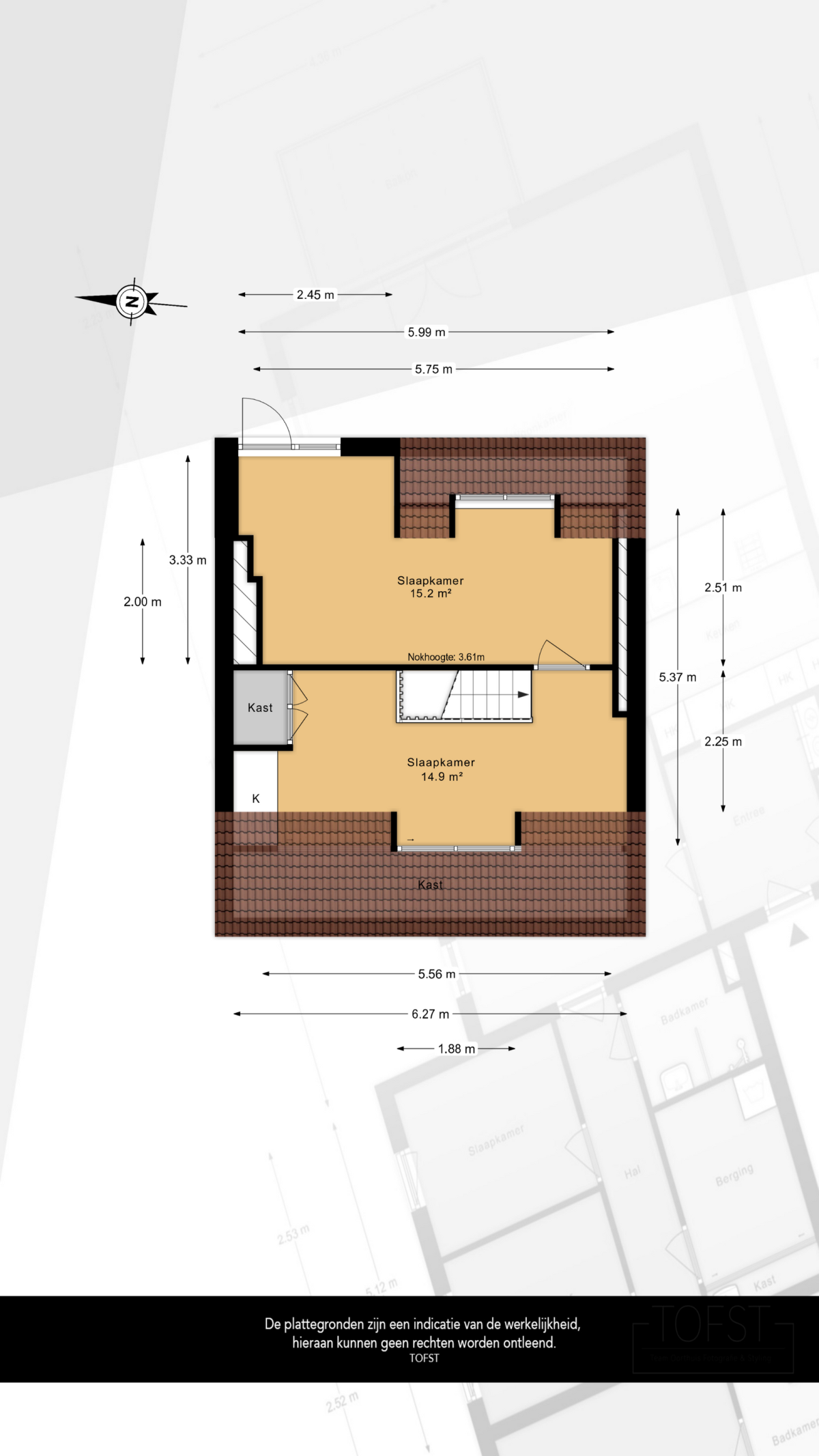
2e verdieping:
Via vaste trap is de toegang naar de sfeervolle zolderverdieping met authentieke houten spanten. Ruime voorzolder/slaapkamer van ca. 14,9m2 met een dakkapel. In een op maat gemaakt wandmeubel bevindt zich de cv ketel en opstelling wasm/droger. Onder het dak zijn er nog praktische knieschotkasten. Ruime slaapkamer van ca. 15,2m2 aan de achterzijde met een airco, dakkapel en uitbouw.
Feitelijk zijn de slaapkamers op de 2e verdieping veel groter, echter door de verplichte nennorm 2580 meetnorm zijn alle m2 onder de 1,5m niet meegerekend.
Tuin
Mooi aangelegde tuin van ca. 6,32m breed en 5,25m diep voorzien van een ruim terras. Ook de ruime voortuin is ideaal voor een gezellig avondje.
Parkeren:
Vrij parkeren kan naast de woning en in de straat (gratis).
Overige
-Oplevering in overleg;
-Eigen grond;
-Energielabel C;
-Bouwjaar ca. 1930;
-Vloerverwarming, alle verdiepingen;
-Zonnepanelen 12 stuks;
-Airconditioning in slaapkamer;
-Nieuwe binnendeuren, begane grond stevigere deuren, 1e verdieping lichter materiaal;
-In 2013 is de cv combi ketel vernieuwd;
-Gezien het bouwjaar van de woning zal er in de koopovereenkomst een asbest- ouderdomsclausule worden opgenomen;
-Woonoppervlak ca. 135,7m2 (nennorm 2580);
-Inhoud ca. 494.6 m3. (nennorm 2580);
-Perceeloppervlak 108m2. (kadaster).
Deze informatie is door ons met de nodige zorgvuldigheid samengesteld. Onzerzijds wordt echter geen enkele aansprakelijkheid aanvaard voor enige onvolledigheid, onjuistheid of anderszins, dan wel de gevolgen daarvan. Alle opgegeven maten en oppervlakten zijn indicatief. Van toepassing zijn de NVM voorwaarden.
Toelichtingsclausule NEN2580
De Meetinstructie is gebaseerd op de NEN2580. De Meetinstructie is bedoeld om een meer eenduidige manier van meten toe te passen voor het geven van een indicatie van de gebruiksoppervlakte. De Meetinstructie sluit verschillen in meetuitkomsten niet volledig uit, door bijvoorbeeld interpretatieverschillen, afrondingen of beperkingen bij het uitvoeren van de meting. Indien de exacte maten voor een koper van cruciaal belang zijn, adviseren wij deze zelf na te meten.
Notariskeuze en kosten
In principe ligt de notariskeuze bij de koper. Het doorhalen van de hypothecaire inschrijving in het kadaster moet door de verkoper betaald worden. Zijn de kosten voor deze doorhaling hoger dan € 400,- inclusief BTW dan wordt het meerdere bij de koper in rekening gebracht.
Indien de koper een notaris kiest buiten een straal van 20 kilometer van de verkochte onroerende zaak dan zijn de eventuele kosten die de notaris berekent voor een eventuele verkoopvolmacht ten behoeve van de verkoper voor rekening van de koper.
English below.
Van Ostadelaan 6, 3117 XL Schiedam
A charming, move-in ready and renovated 1930s family home with a usable living area (GBO) of 136 m², offering five rooms, located in the heart of the popular and child-friendly Schiedam-West district.
This characterful home has been partially made more sustainable with solar panels, insulated magnesite screed floors, underfloor heating and roof insulation. The property combines authentic 1930s charm with modern living comfort and has been largely renovated internally. A beautiful blend of original details and contemporary finishes.
The house is situated in a pleasant, child-friendly street with all amenities nearby, including local shops, parks, main roads, schools and public transport. Parking is available directly in front of the property and is free of charge. The centre of Schiedam can be reached within approximately 5 minutes by bike, offering a variety of shops, restaurants and terraces. Cities such as Rotterdam, Delft and The Hague are easily accessible due to excellent public transport connections and nearby highways.
The property was renovated, modernised and optimised between 2021–2023, including:
-Underfloor heating on all floors
-Floors levelled and insulated with magnesite screed (lightweight application)
-Ceilings renewed; walls plastered and painted
-Ground floor window frames recently painted; partly single and double glazing
-New switches and electrical outlets
-Roof insulation installed
-Front and rear gardens renewed
-New electrical wiring and fuse box
-New luxury kitchen (2022)
-12 solar panels
-New interior doors (heavier quality on the ground floor, lighter on the first floor)
-Two toilets
Layout
Ground floor:
Entrance, vestibule with granito flooring. Hallway with under-stairs cupboard, storage space and meter cupboard. Toilet with washbasin. Spacious and attractive L-shaped living room of approximately 42 m², featuring underfloor heating, a characteristic bay window and a semi-open kitchen with cooking island. French doors and a separate kitchen door provide access to the garden.
The luxury kitchen offers ample storage space and is equipped with a fridge/freezer drawers, dishwasher, oven, microwave, extractor hood, induction hob and a boiling water tap.
First floor:
Landing. Spacious master bedroom at the front (approx. 12 m²) with built-in cupboard under the stairs. Bedroom at the rear of approximately 18 m² with built-in wardrobe. Practical study of approximately 4 m² with custom-made desk and built-in storage, ideal for working from home, with access to the balcony.
Modern bathroom featuring a bathtub/shower combination, toilet, washbasin unit, wall-mounted cabinet and designer radiator.
Second floor:
Accessible via a fixed staircase. Attractive attic floor with authentic wooden beams. Spacious landing/bedroom of approximately 14.9 m² with dormer window. A custom-made cabinet houses the central heating boiler and connections for washing machine and dryer. Additional storage space is available behind the knee walls.
Spacious rear bedroom of approximately 15.2 m² with air conditioning, dormer window and extension.
In reality, the bedrooms on the second floor are larger; however, in accordance with the mandatory NEN 2580 measurement standard, floor space below 1.5 metres height is not included in the stated surface area.
Garden
Beautifully landscaped garden of approximately 6.32 metres wide and 5.25 metres deep, featuring a spacious terrace. The generous front garden is also ideal for relaxing outdoors.
Parking
Free parking is available next to the property and in the street.
Additional information
-Delivery in consultation
-Freehold property
-Energy label C
-Year of construction: approximately 1930
-Underfloor heating on all floors
-12 solar panels
-Air conditioning in bedroom
-New interior doors (heavier doors on ground floor, lighter on first floor)
-Central heating combi boiler renewed in 2013
-Due to the age of the property, an age clause and asbestos clause will be included in the purchase agreement
-Living area approximately 135.7 m² (NEN 2580)
-Volume approximately 494.6 m³ (NEN 2580)
-Plot size 108 m² (Land Registry)
This information has been compiled with due care. However, no liability is accepted for any incompleteness, inaccuracies or consequences thereof. All stated measurements and surface areas are indicative. NVM terms and conditions apply.
NEN 2580 explanatory clause
The measurement instruction is based on the NEN 2580 standard and aims to apply a more uniform method of measuring usable floor area. Differences in measurement outcomes cannot be fully excluded due to interpretation differences, rounding or practical limitations during measurement. If exact measurements are of crucial importance to a buyer, we recommend measuring the property independently.
Notary choice and costs
In principle, the buyer chooses the notary. The cost of cancelling the existing mortgage registration in the land registry must be paid by the seller. If these costs exceed €400 including VAT, the excess will be charged to the buyer.
If the buyer selects a notary located more than 20 kilometres from the property, any additional costs charged by the notary for a power of attorney for the seller will be at the buyer’s expense.



