-
Aantal kamers
4 kamers
-
Aantal slaapkamers
3 slaapkamers
-
Bouwjaar
1967
-
Bouwvorm
bestaande bouw
-
Inhoud
230m3
-
Oppervlakte
73 m2
Toon Verheystraat 105 - 3122 TS SCHIEDAM
4-kamer hoekappartement met balkon en berging. Op zoek naar een ruim appartement en hou je van klussen? Dankzij de ligging op de hoek en een eigen, niet-gedelde galerij geniet je hier van rust en privacy. Het ruime balkon op het zuiden ligt aan een groenstrook. De ligging in Groenoord is centraal ten opzichte van winkels, scholen en openbaar vervoer.
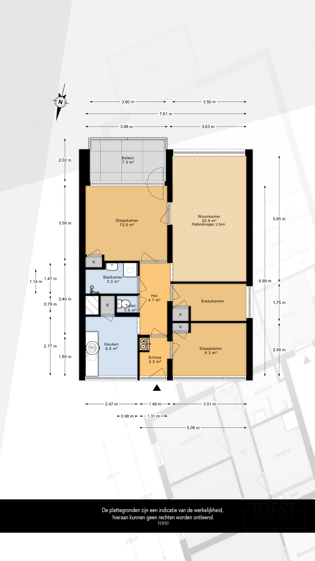
Begane grond:
Afgesloten entree, bellen, brievenbussen, lift, toegang tot bergingen.
1e verdieping:
Eigen prive galerij met alleen het appartement Toon Verheijstraat 105.
Entree appartement, hal, meterkast, aparte keuken met eenvoudig keukenblok, vaste kast en boiler. Separaat toilet. Badkamer met douche wastafel en wasmachineaansluiting. 3 slaapkamers van respectievelijk 8.3m2, 6.4m2 en 13.5m2. De grootste slaapkamer geeft toegang tot het balkon. De woonkamer is bijna 21m2.
Balkon:
Riant balkon van meer dan 7m2 gelegen op het zuiden.
Berging:
Eigen berging op de begane van ca. 5m2.
Bijzonderheden:
- Projectnotaris: Van der Valk Netwerk Notarissen;
- Zelfbewoningsplicht;
- As is where is clausule van toepassing;
- Verkoop regulerend beding van toepassing;
- Ouderdomsclausule van toepassing;
- Asbestclausule van toepassing;
- Verkoper heeft woning zelf nooit bewoond, dit wordt specifiek in de koopakte genoemd.
Overige:
-Oplevering in overleg, kan snel
-Recht van erfpacht tot en met 30-06-2064, afgekocht tot 01-07-2040;
-Grotendeels voorzien van dubbel glas;
-VVE bijdrage van 267.52 euro incl. voorschot stookkosten van ca. 60 euro (woning) + 19.19 euro (berging);
-Warmwater middels boiler en verwarming via blokverwarming;
-Gebruiksoppervlakte 73m2 (NEN2580);
-Inhoud 230m3 (NEN2580);
Deze informatie is door ons met de nodige zorgvuldigheid samengesteld. Onzerzijds wordt echter geen enkele aansprakelijkheid aanvaard voor enige onvolledigheid, onjuistheid of anderszins, dan wel de gevolgen daarvan. Alle opgegeven maten en oppervlakten zijn indicatief. Van toepassing zijn de NVM voorwaarden.
Toelichtingsclausule NEN2580
De Meetinstructie is gebaseerd op de NEN2580. De Meetinstructie is bedoeld om een meer eenduidige manier van meten toe te passen voor het geven van een indicatie van de gebruiksoppervlakte. De Meetinstructie sluit verschillen in meetuitkomsten niet volledig uit, door bijvoorbeeld interpretatieverschillen, afrondingen of beperkingen bij het uitvoeren van de meting. Indien de exacte maten voor een koper van cruciaal belang zijn, adviseren wij deze zelf na te meten.



