-
Aantal kamers
5 kamers
-
Aantal slaapkamers
4 slaapkamers
-
Bouwjaar
1924
-
Bouwvorm
bestaande bouw
-
Inhoud
301m3
-
Oppervlakte
82 m2
Spoorbaanstraat 26 3119 JH SCHIEDAM
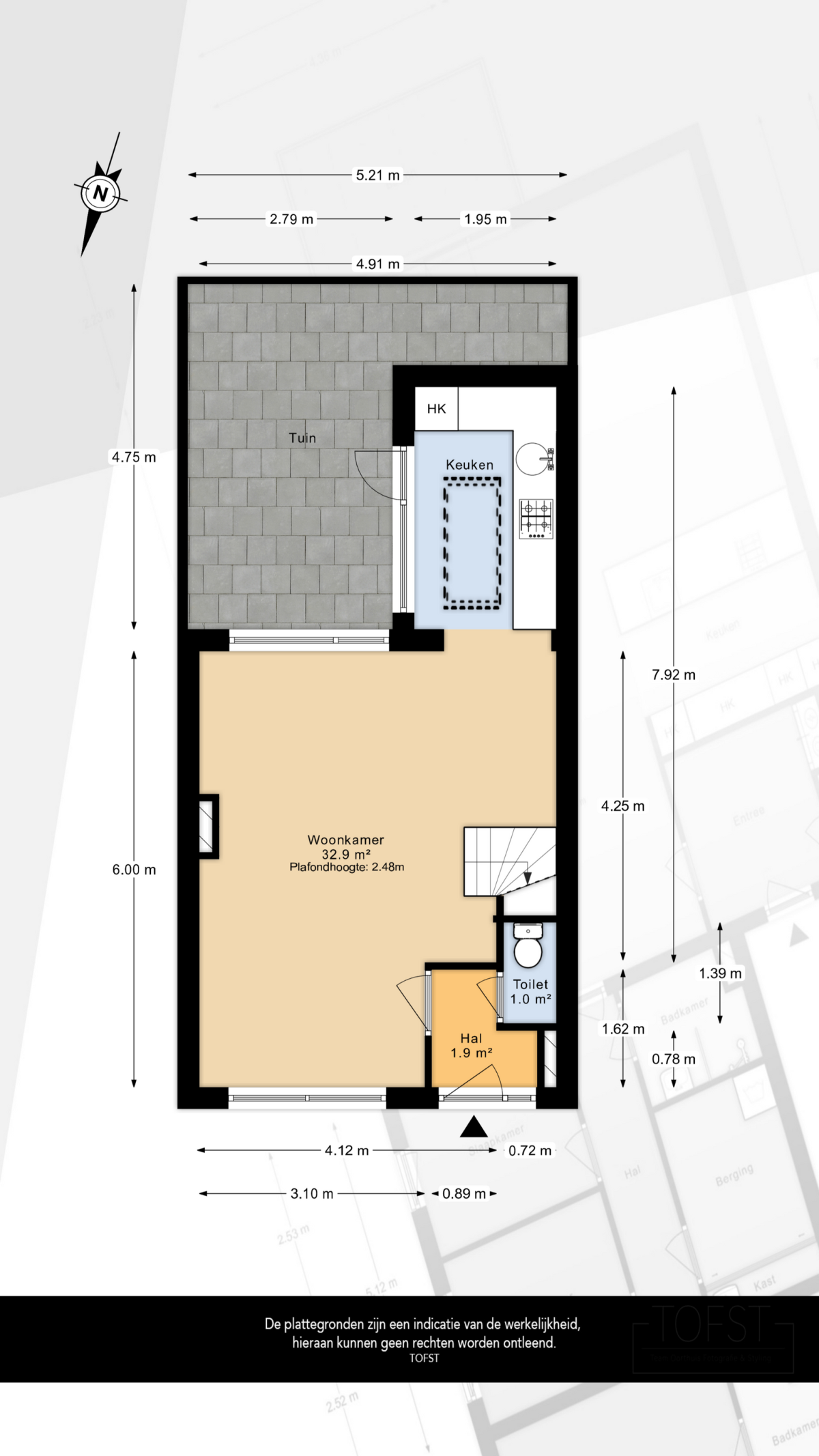
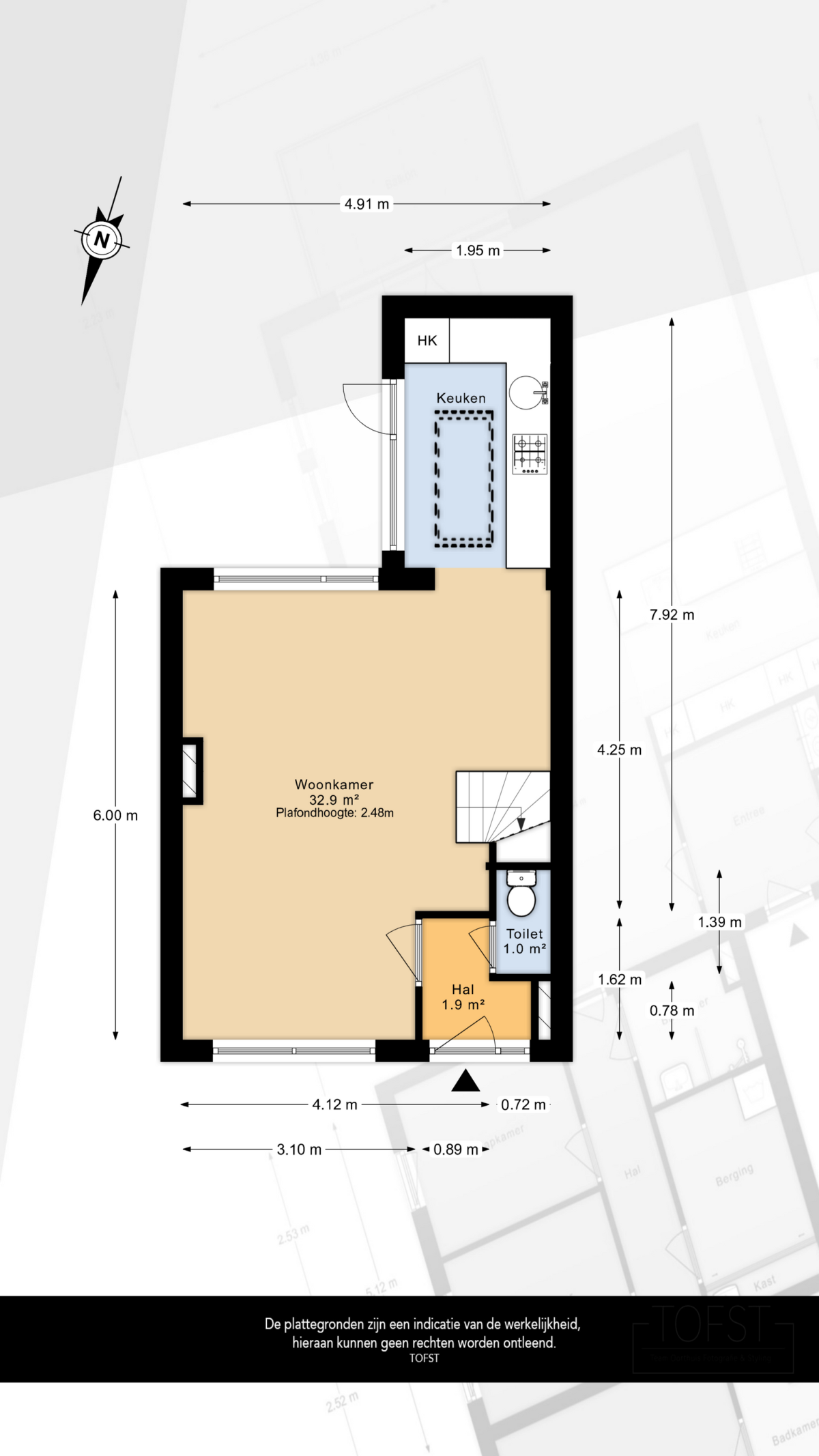
Een sfeervol 3 laags 5 kamer eengezinswoning (BJ 1924) voorzien van een sfeervolle woonkamer van ca. 33m2 met een keuken aan de tuinzijde. Vanuit de keuken bereik je de de tuin.
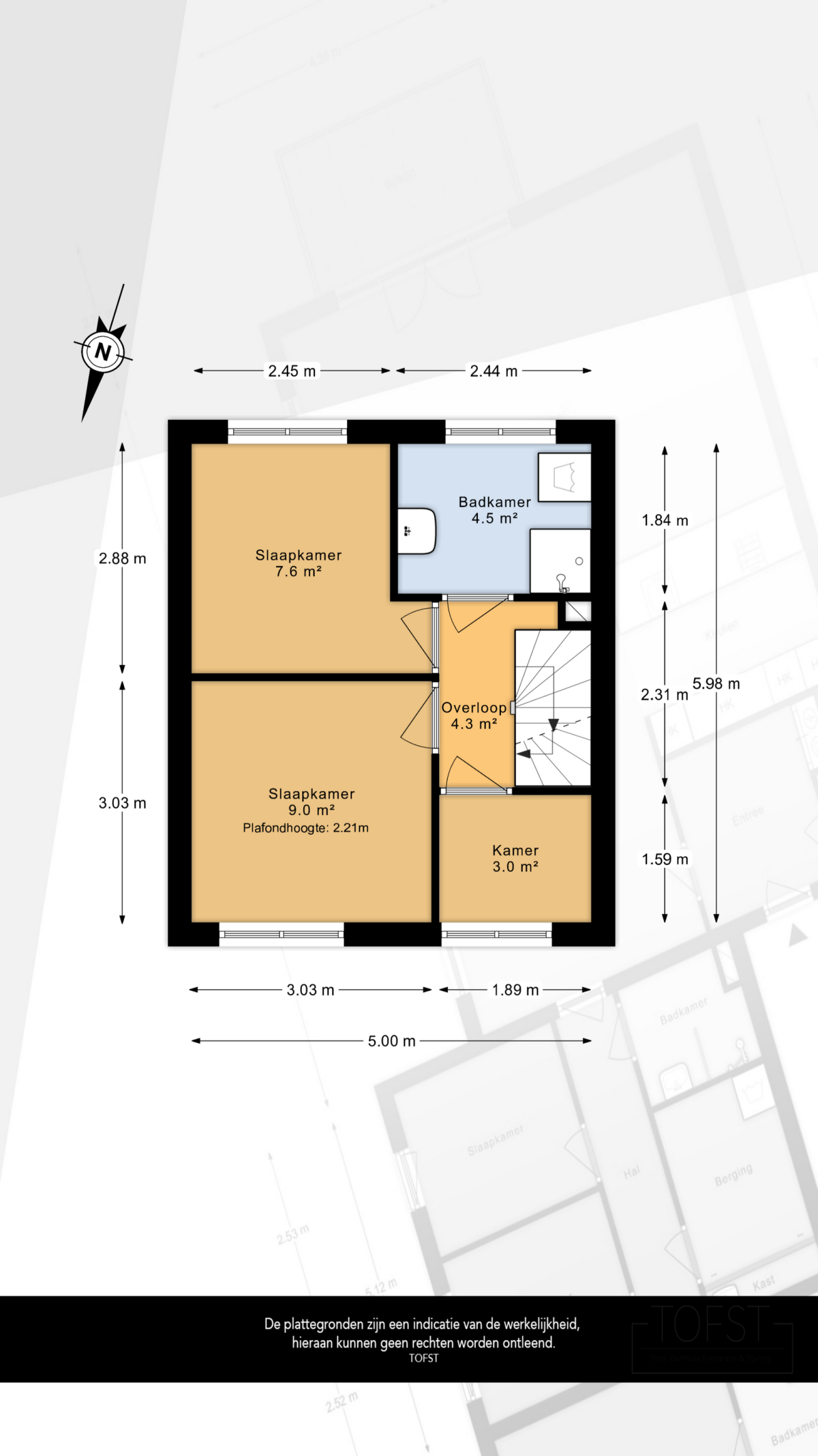
De 1e verdieping is voorzien van 2 ruime slaapkamers en een kleine kamer aan de voorzijde. Badkamer aan de achterzijde.
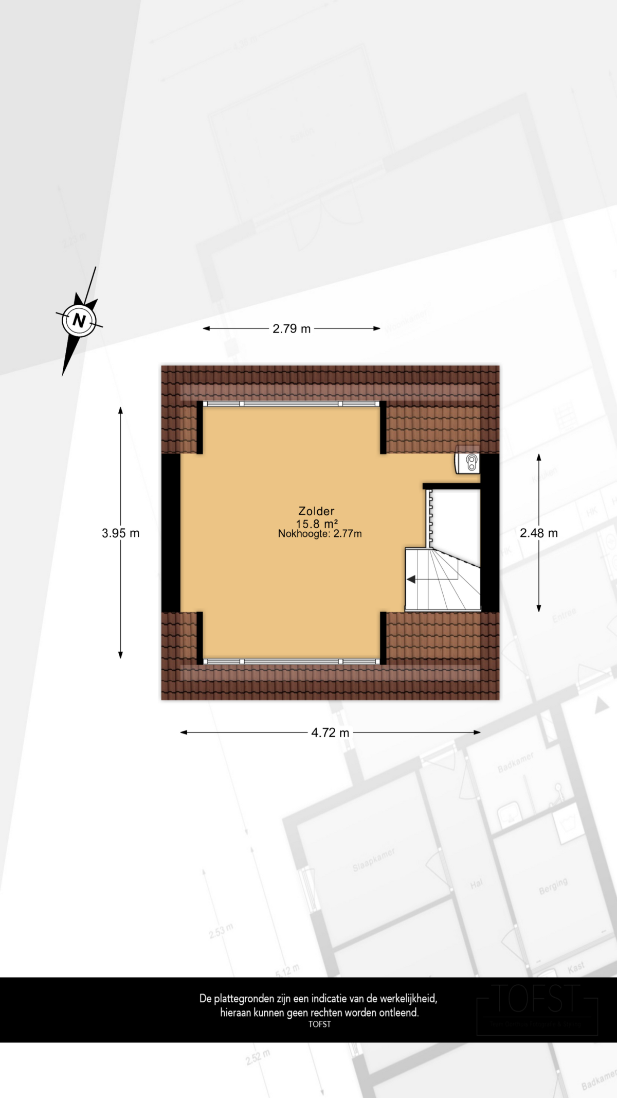
In 2003 is er een dakopbouw geplaatst (2e verdieping met een vast trap) hierdoor is er een extra grote slaapkamer gerealiseerd met 2 dakkapellen.
Alle kozijnen zijn van hardhout, gedeeltelijk net geschilderd en voorzien van dubbelglas.
LOCATIE
De woning ligt in de leuke wijk Bijdorp, een gezellige sociale wijk (dorpsgevoel) aan de rand van het Beatrix park. Alle voorzieningen zijn in de directe omgeving: openbaar vervoer, snelwegennet, winkels, parken, ziekenhuis, sportscholen, restaurants en wellness. Ook ligt de woning binnen 2 minuten rijden van de snelweg naar A20, A4, A15 en A13.
INDELING
Begane grond:
Entree, hal, toilet. Sfeervolle woonkamer van ca. 33m2 met een aan de achterzijde de keuken. Vanuit de keuken bereik je de tuin.
Eerste verdieping:
De 1e verdieping is voorzien van 2 ruime slaapkamers van ca. 9m2 en 7,6m2. Aan de voorzijde is nog een kleine kamer van ca. 3m2 (ook voorzien van een wasmachine aansluiting).
De badkamer is voorzien van een wastafel, douche en wasmachine aansluiting.
Tweede verdieping (Dakopbouw 2003)
In 2003 is er een tweede verdieping gerealiseerd met een mooie grote slaapkamer met 2 dakkapellen.
Het dak is voorzien van nieuwe dakpannen en isolatie.
Tuin:
Zonnige tuin op het zuiden van ca. 4,8m x 2,8m met in de voormalige steeg nog een inham.
Achterom aanwezig.
Overige:
- Oplevering in overleg.
- Remeha CV ketel uit 2013.
- Energielabel D, geldig tot 2035.
- Eigen grond.
- Nieuwe groepenkast geplaatst.
- Bouwjaar 1924
- Buitenschilderwerk is in 2025 gedeeltelijk gedaan.
- Kozijnen zijn voorzien van hardhout en dubbelglas.
- Dakgoot aan de voorzijde is vernieuwd rond 2018.
- Vanwege het bouwjaar van de woning wordt er in de koopakte een ouderdoms/asbest clausule opgenomen.
- Woonoppervlak bedraagt 82,3m2 (nennorm 2580).
- Inhoud bedraagt 301m3 (nennorm 2580).
- Perceeloppervlak bedraagt 52m2 (Kadaster).
- Voor de afmetingen en indeling verwijzen wij graag door naar de plattegronden;
Deze informatie is door ons met de nodige zorgvuldigheid samengesteld. Onzerzijds wordt echter geen enkele aansprakelijkheid aanvaard voor enige onvolledigheid, onjuistheid of anderszins, dan wel de gevolgen daarvan. Alle opgegeven maten en oppervlakten zijn indicatief. Van toepassing zijn de NVM voorwaarden.
Toelichtingsclausule NEN2580
De Meetinstructie is gebaseerd op de NEN2580. De Meetinstructie is bedoeld om een meer eenduidige manier van meten toe te passen voor het geven van een indicatie van de gebruiksoppervlakte. De Meetinstructie sluit verschillen in meetuitkomsten niet volledig uit, door bijvoorbeeld interpretatieverschillen, afrondingen of beperkingen bij het uitvoeren van de meting. Indien de exacte maten voor een koper van cruciaal belang zijn, adviseren wij deze zelf na te meten.
Notariskeuze en kosten
In principe ligt de notariskeuze bij de koper. Het doorhalen van de hypothecaire inschrijving in het kadaster moet door de verkoper betaald worden. Zijn de kosten voor deze doorhaling hoger dan € 400,- inclusief BTW dan wordt het meerdere bij de koper in rekening gebracht.
Indien de koper een notaris kiest buiten een straal van 20 kilometer van de verkochte onroerende zaak dan zijn de eventuele kosten die de notaris berekent voor een eventuele verkoopvolmacht ten behoeve van de verkoper voor rekening van de koper.



