-
Aantal kamers
4 kamers
-
Aantal slaapkamers
3 slaapkamers
-
Bouwjaar
1880
-
Bouwvorm
bestaande bouw
-
Inhoud
253m3
-
Oppervlakte
69 m2
Sommelsdijksestraat 12 3114 PR SCHIEDAM
Wat een leuke straat is de Sommelsdijkestraat. In deze straat hebben mensen nog oog en aandacht voor elkaar. "Beter een goede buur dan een verre vriend"
Een sfeervol, modern 4 kamer eengezinswoning, gelegen in de gezellige wijk ‘De Gorzen’ in een auto vrije straat. Deze leuke woning is in 2020 voorzien van een nieuwe keuken en badkamer. Ook zijn alle wanden, vloeren vernieuwd en is de woning bijna gas loos gemaakt. Het unieke is dat de woning een omgekeerde indeling heeft. De woonkamer/woonkeuken bevindt zich op de 1e verdieping. Alle slaapkamers zitten op de begane grond. Er is een leuke voortuin en de mogelijkheid om nog een dakterras te realiseren. De woning is centraal gelegen in een kindvriendelijke buurt, nabij de winkelstraat ‘De Groenelaan’. met alle voorzieningen in de nabijheid; buurtwinkels, supermarkt, scholen, openbaar vervoer, snelwegennet en recreatie aan de Maas.
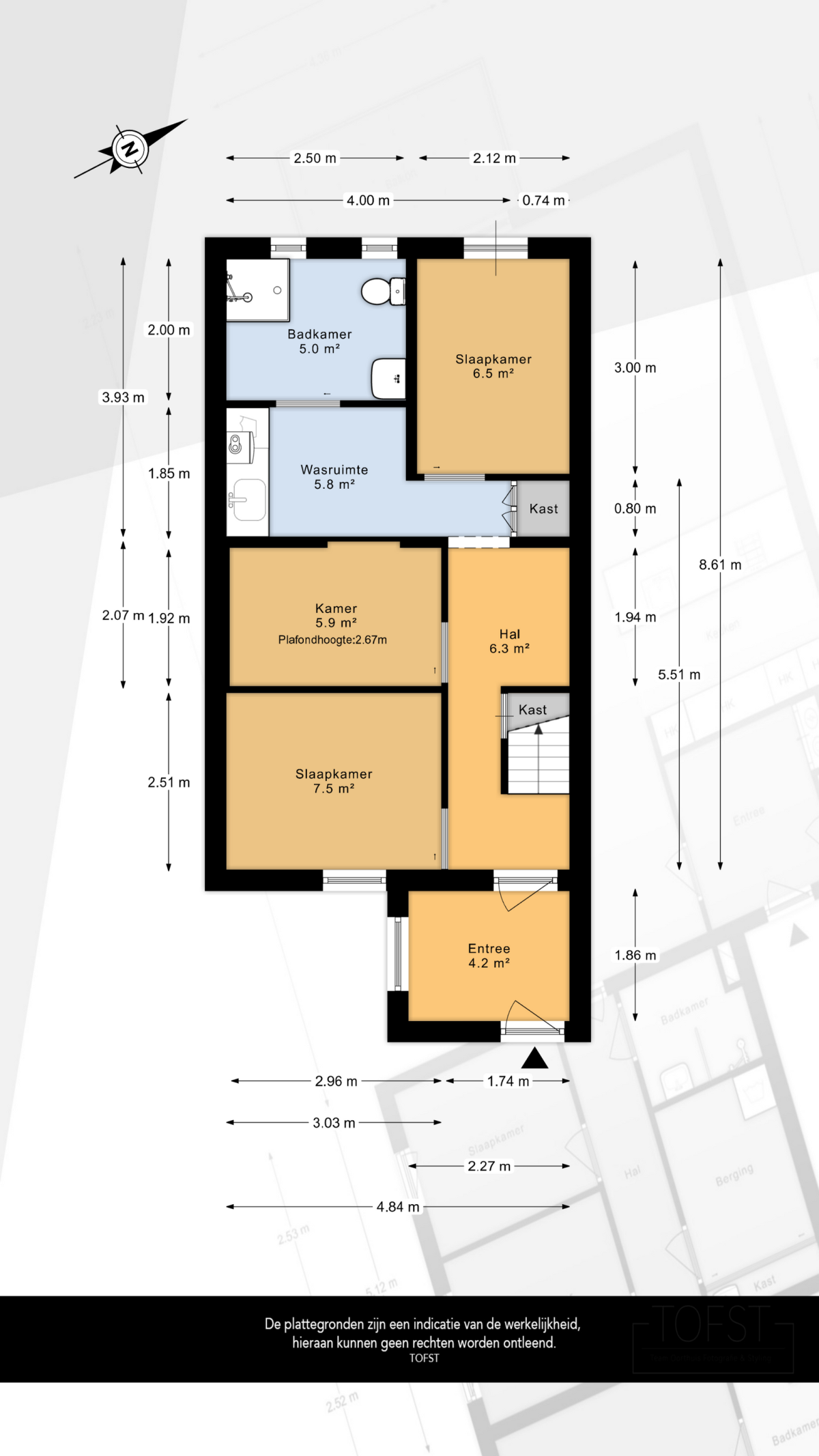
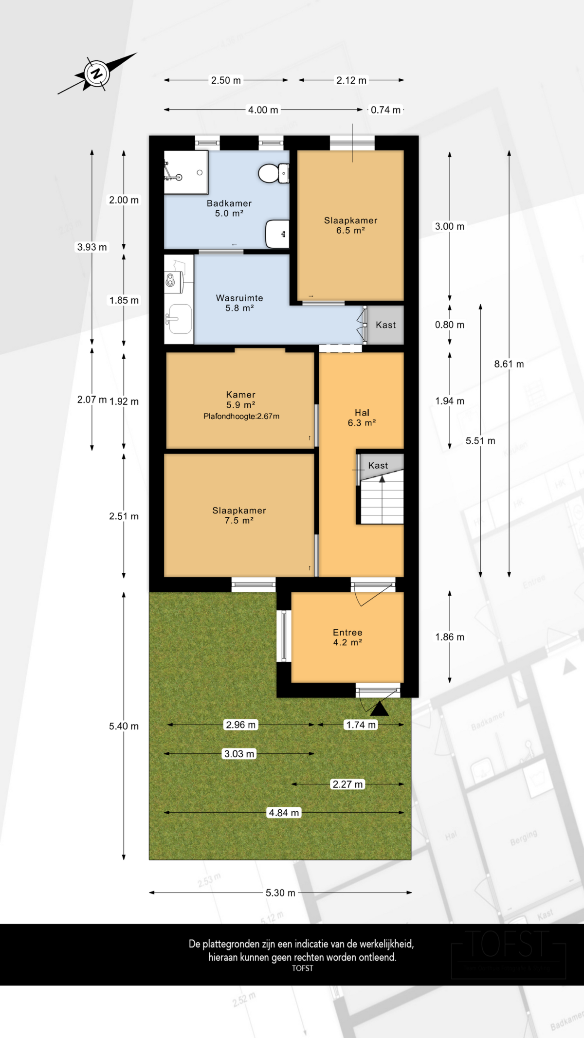
Indeling
Begane grond:
Entree, gang meterkast. Ruime hal, toegang naar drie slaapkamers van ca. 7,5m2, 5,9m2 en 6,5m2. Praktische wasruimte voorzien van een spoelbak, wasmachine aansluiting, een boiler en bergruimten.
De badkamer (5m2) is voorzien van douchecabine, wastafelmeubel en een toilet.
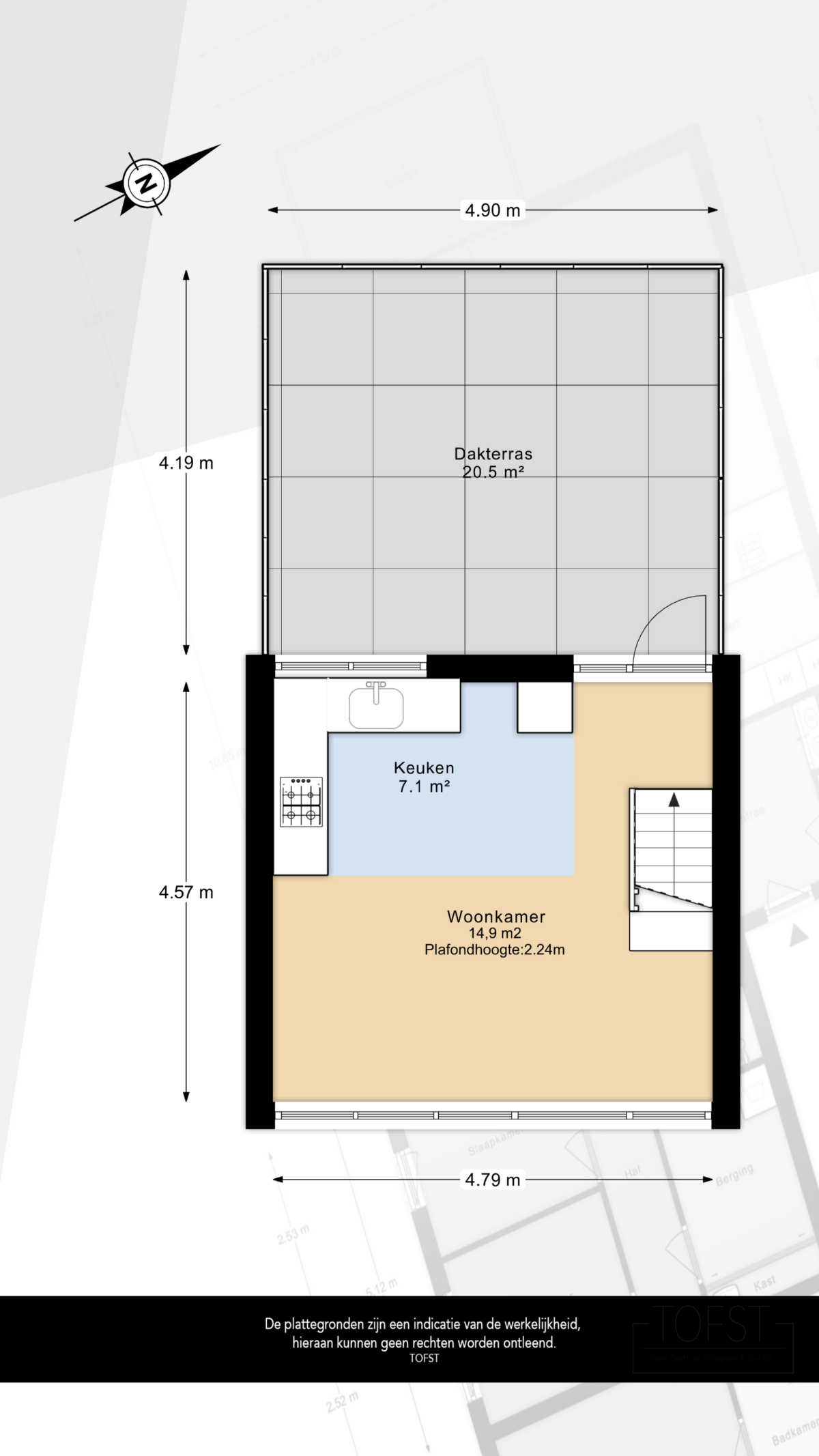
Eerste verdieping
Sfeervolle woonkamer/woonkeuken van ca.22m2 met een mooie lichtinval en prettige ambiance. De keuken (IKEA) is voorzien van een gasfornuis, afzuigkap, oven, vaatwasser en losse koelkast.
Toegang naar het dakterras van ca. 21m2.
Buitenruimte:
Gezellige voortuin van ca. 25m2. Hier kan je in het heerlijk vertoeven. Riant dakterras van ruim 21m². Het terras dient nog wel te worden ingericht.
Afmetingen:
Voor de afmetingen van de diverse vertrekken verwijzen wij u naar de bijgevoegde plattegronden.
Overige:
-Oplevering kan per direct;
-Bouwjaar 1880;
-Gelegen op eigen grond;
-Energielabel G;
-Begane grond is uitgevoerd in beton.
-Verwarming middels infrarood panelen
-Warmwater middels 80L boiler;
-Nieuwe groepenkast geplaatst 5 groepen en 2 aardlekschakelaar;
-De kozijnen aan de voorzijde zijn recent geschilderd (okt 2025)
-Vrij parkeren in de wijk;
-Ouderdoms- en asbestclausule van toepassing;
-Perceeloppervlakte 56m2 en 24m2 (totaal 80m2) (Kadaster);
-Gebruiksoppervlakte wonen totaal 68,5m² (NEN2580);
Deze informatie is door ons met de nodige zorgvuldigheid samengesteld. Onzerzijds wordt echter geen enkele aansprakelijkheid aanvaard voor enige onvolledigheid, onjuistheid of anderszins, dan wel de gevolgen daarvan. Alle opgegeven maten en oppervlakten zijn indicatief. Van toepassing zijn de NVM voorwaarden.
Toelichtingsclausule NEN2580
De Meetinstructie is gebaseerd op de NEN2580. De Meetinstructie is bedoeld om een meer eenduidige manier van meten toe te passen voor het geven van een indicatie van de gebruiksoppervlakte. De Meetinstructie sluit verschillen in meetuitkomsten niet volledig uit, door bijvoorbeeld interpretatieverschillen, afrondingen of beperkingen bij het uitvoeren van de meting. Indien de exacte maten voor een koper van cruciaal belang zijn, adviseren wij deze zelf na te meten.
Notariskeuze en kosten
In principe ligt de notariskeuze bij de koper. Het doorhalen van de hypothecaire inschrijving in het kadaster moet door de verkoper betaald worden. Zijn de kosten voor deze doorhaling hoger dan € 400,- inclusief BTW dan wordt het meerdere bij de koper in rekening gebracht. Indien de koper een notaris kiest buiten een straal van 20 kilometer van de verkochte onroerende zaak dan zijn de eventuele kosten die de notaris berekent voor een eventuele verkoopvolmacht ten behoeve van de verkoper voor rekening van de koper



