-
Aantal kamers
5 kamers
-
Aantal slaapkamers
4 slaapkamers
-
Bouwjaar
1921
-
Bouwvorm
bestaande bouw
-
Inhoud
371m3
-
Oppervlakte
102 m2
Sint Liduinastraat 92 B 3117 CW SCHIEDAM
Riante 5 kamer dubbele bovenwoning gelegen in de populaire wijk Schiedam-West. De woning dient volledig gemoderniseerd te worden. De wijk is kindvriendelijk en heeft diverse basisscholen en kinderdagopvang op korte afstand. De bereikbaarheid is goed met openbaar vervoer en uitvalswegen op korte afstand zodat omliggende steden als Rotterdam, Den Haag en Delft makkelijk en snel bereikbaar zijn.
Indeling
Begane grond:
Entree, hal, trapopgang.
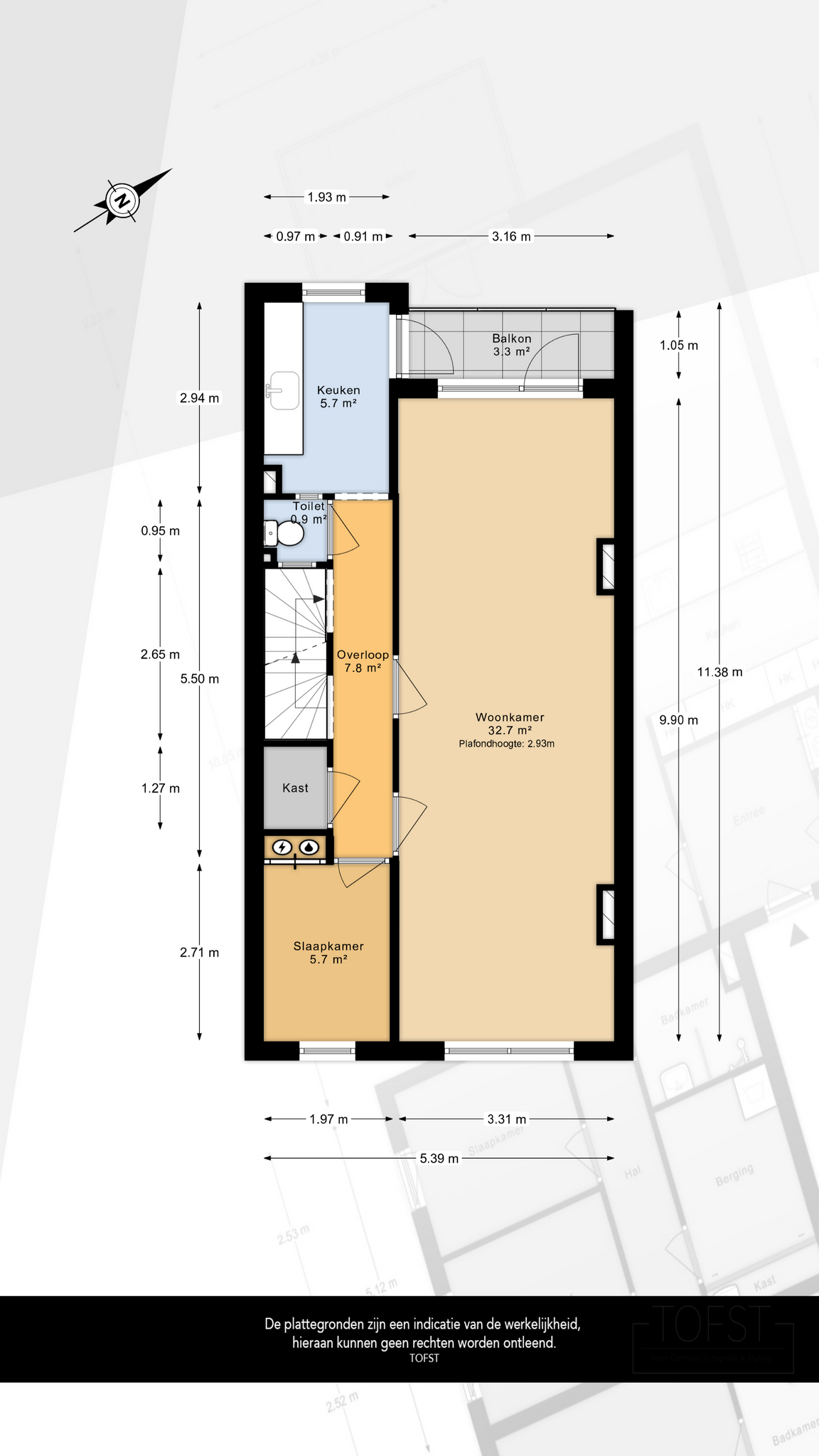
2e verdieping:
Overloop, trapopgang, kast, meterkast, toilet, dichte keuken met toegang tot het balkon. Slaapkamer van ca. 6m2. Ruime woonkamer van bijna 33m2 met tevens een deur naar het balkon.
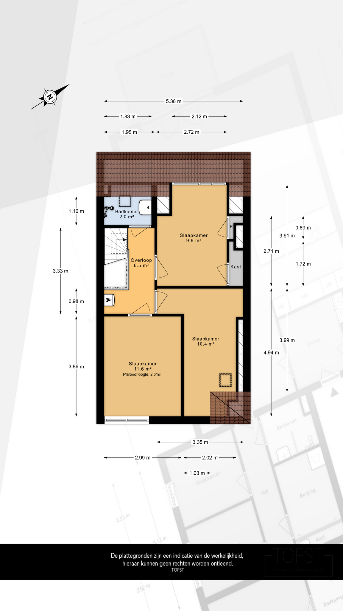
3e verdieping:
Ruime overloop met aansluiting wasmachine. Badkamer met douche en wastafel. 3 ruime slaapkamers van respectievelijk ca. 12m2, ca. 10m2 en ca. 10m2.
Overige:
-Kluswoning;
-Energielabel F;
-Verwarming en warmwater middels CV uit 2020;
-Erfpacht tot 30-06-2086, afgekocht tot 01-07-2037;
-Actieve Vereniging van Eigenaren, maandelijkse bijdrage € 115.64;
-Gebruiksoppervlakte 101.8m2 NEN2580;
-Inhoud 370.5 m3 NEN258;
-Oplevering in overleg, op korte termijn mogelijk;
Bijzonderheden:
-Projectnotaris: Van der Valk Netwerk Notarissen;
-Zelfbewoningsplicht;
-As is where is clausule van toepassing;
-Verkoop regulerend beding van toepassing;
-Ouderdomsclausule van toepassing;
-Asbestclausule van toepassing;
-Verkoper heeft woning zelf nooit bewoond, dit wordt specifiek in de koopakte genoemd.
Deze informatie is door ons met de nodige zorgvuldigheid samengesteld. Onzerzijds wordt echter geen enkele aansprakelijkheid aanvaard voor enige onvolledigheid, onjuistheid of anderszins, dan wel de gevolgen daarvan. Alle opgegeven maten en oppervlakten zijn indicatief. Van toepassing zijn de NVM voorwaarden.
Toelichtingsclausule NEN2580
De Meetinstructie is gebaseerd op de NEN2580. De Meetinstructie is bedoeld om een meer eenduidige manier van meten toe te passen voor het geven van een indicatie van de gebruiksoppervlakte. De Meetinstructie sluit verschillen in meetuitkomsten niet volledig uit, door bijvoorbeeld interpretatieverschillen, afrondingen of beperkingen bij het uitvoeren van de meting. Indien de exacte maten voor een koper van cruciaal belang zijn, adviseren wij deze zelf na te meten.



