-
Aantal kamers
2 kamers
-
Aantal slaapkamers
1 slaapkamers
-
Bouwjaar
1970
-
Bouwvorm
bestaande bouw
-
Inhoud
180m3
-
Oppervlakte
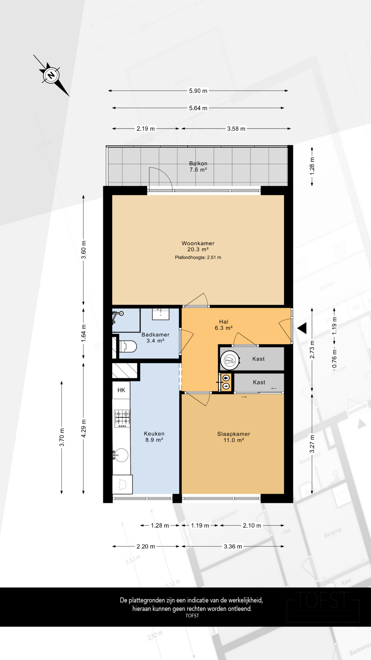
56 m2
Schubertplein 95 - 3122 NE SCHIEDAM
Wat een ontzettend leuk 2 kamer appartement is dit! De woning heeft een moderne badkamer en nette keuken en is zo te betrekken. Het gebouw heeft meerdere liften en wordt onderhouden door een actieve vereniging van huiseigenaren. Het complex is gelegen in de wijk Groenoord in Schiedam-Noord. De wijk is gelegen nabij natuurgebied Midden Delfland. In de directe omgeving zijn de uitvalsvoorzieningen naar de snelweg, openbaar vervoer en een diversiteit aan winkels, scholen en sportfaciliteiten. Winkelcentrum Hof van Spaland bevindt zich op 5 minuten afstand.
Begane grond:
Afgesloten gemeenschappelijke entree en bellentableau. Toegang tot de bergingen, trappenhuis en liften. De liften zijn recent vernieuwd en stoppen nu allebei op alle etages.
5e verdieping:
Entree, ruime kast met boiler, meterkast. Moderne badkamer met inloopdouche, toilet en wastafelmeubel. Aparte keuken voorzien van een modern uitgevoerde keukenopstelling met wit front en een antraciet aanrechtblad. De keuken is voorzien van een combimagnetron, koelkast, vriezer en een gaskookplaat met afzuigkap. In de keuken bevindt zich tevens de wasmachine aansluiting. Ruime slaapkamer van 11m2 met een vaste kast. Sfeervolle woonkamer van ruim 20m2 met toegang tot het balkon.
Balkon:
Zonnig balkon op het zuidwesten van bijna 8m2.
Berging:
Op de begane grond bevindt zich een eigen berging van ca. 4.3m2.
Bijzonderheden:
-Ouderdomsclausule van toepassing;
-Asbest clausule van toepassing;
-Het appartement is gelegen in Groenoord en maakt onderdeel uit van het plan "Nieuwe Energie voor Groenoord".
Overige:
-Oplevering in overleg;
-Bouwjaar 1967;
-Erfpacht afgekocht tot 31 december 2048, recht loopt tot 30 juni 2070;
-Actieve Vereniging van Eigenaren, bijdrage € 228 per maand, inclusief voorschot stookkosten;
-Geheel voorzien van dubbel glas;
-Verwarming d.m.v. blokverwarming, warm water d.m.v. een boiler boiler (lease €16,45 per maand);
-Gebruiksoppervlakte 56m2 NEN2580;
-Inhoud 180.1m3 NEN2580.
Deze informatie is door ons met de nodige zorgvuldigheid samengesteld. Onzerzijds wordt echter geen enkele aansprakelijkheid aanvaard voor enige onvolledigheid, onjuistheid of anderszins, dan wel de gevolgen daarvan. Alle opgegeven maten en oppervlakten zijn indicatief. U kunt indien gewenst de woning voor het tekenen van de koopakte zelf inmeten en controleren.
Toelichtingsclausule NEN2580
De Meetinstructie is gebaseerd op de NEN2580. De Meetinstructie is bedoeld om een meer eenduidige manier van meten toe te passen voor het geven van een indicatie van de gebruiksoppervlakte. De Meetinstructie sluit verschillen in meetuitkomsten niet volledig uit, door bijvoorbeeld interpretatieverschillen, afrondingen of beperkingen bij het uitvoeren van de meting.
Notariskeuze en kosten
In principe ligt de notariskeuze bij de koper. Het doorhalen van de hypothecaire inschrijving in het kadaster moet door de verkoper betaald worden. Zijn de kosten voor deze doorhaling hoger dan € 400,- inclusief BTW dan wordt het meerdere bij de koper in rekening gebracht. Indien de koper een notaris kiest buiten een straal van 20 kilometer van de verkochte onroerende zaak dan zijn de eventuele kosten die de notaris berekent voor een eventuele verkoopvolmacht ten behoeve van de verkoper voor rekening van de koper.



