-
Aantal kamers
4 kamers
-
Aantal slaapkamers
3 slaapkamers
-
Bouwjaar
1970
-
Bouwvorm
bestaande bouw
-
Inhoud
246m3
-
Oppervlakte
81 m2
Schubertplein 238 - 3122 NN SCHIEDAM
APPARTEMENT MET ZELFBEWONINGSPLICHT!
Ruim 4-kamer appartement op de 12e verdieping, tevens de bovenste verdieping. Het appartement is voorzien van een eenvoudig keukenblok en sanitair. Het appartement is onderdeel van een complex met een actieve VVE. De woning is gelegen in de wijk Groenoord in Schiedam-Noord. De wijk is gelegen nabij natuurgebied Midden Delfland. Op zeer korte afstand vindt u diverse snelwegen, uitstekend openbaar vervoer en een verschillende winkels, scholen en sportfaciliteiten.
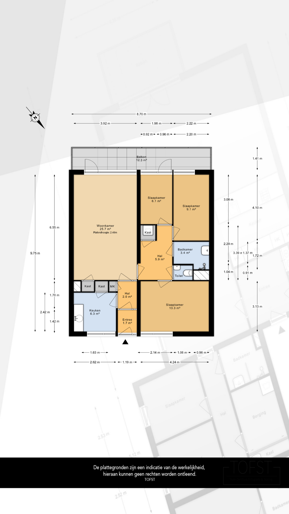
INDELING
Begane grond:
Afgesloten gemeenschappelijke entree met postbussen en bellentableau. Toegang tot de bergingen, trappenhuis en liften. De liften zijn vernieuwd en stoppen nu allebei op alle etages.
12e verdieping:
Entree, gang met meterkast. Toegang tot de keuken. De ruime woonkamer van ca. 26 m² geeft toegang tot een ruim zonnig balkon. De keukenruimte is voorzien van een eenvoudig keukenblok en een vaste kast met de boiler. Gang met toegang tot de 3 slaapkamers. De hoofdslaapkamer van ca. 14m2 ligt aan de galerijzijde en de 2 overige slaapkamers (ca. 9m2 en ca. 6m2) bevinden zich aan de balkonzijde. De badkamer is voorzien van een wastafel, wasmachineaansluiting en douchehoek. Er is een apart toilet en een bergkast.
Balkon:
Ruim balkon gelegen op het zuiden van ca. 12m2.
Berging:
Op de begane grond bevindt zich een eigen berging van ca. 6m2.
Overige:
- Energielabel |D;
- Boiler als warmwatervoorziening aanwezig;
- Erfpacht loopt t/m 30 juni 2070 en is afgekocht t/m 30 juni 2046;
- Actieve Vereniging van Eigenaren, maandelijkse bijdrage € 200,74 (woning € 172,83, berging € 27,91), exclusief voorschot stookkosten van € 53,26;
- Gebruiksoppervlakte ca. 81,3 m2 NEN2580;
- Inhoud ca. 246,3 m3 NEN258;
- Oplevering in overleg, op korte termijn mogelijk;
- Het appartement is gelegen in Groenoord en maakt onderdeel uit van het plan "Nieuwe Energie voor Groenoord".
Bijzonderheden:
- Projectnotaris: Van der Valk Netwerk Notarissen;
- Zelfbewoningsplicht;
- As is where is clausule van toepassing;
- Verkoop regulerend beding van toepassing;
- Ouderdomsclausule van toepassing;
- Asbestclausule van toepassing;
- Verkoper heeft woning zelf nooit bewoond, dit wordt specifiek in de koopakte genoemd.
Deze informatie is door ons met de nodige zorgvuldigheid samengesteld. Onzerzijds wordt echter geen enkele aansprakelijkheid aanvaard voor enige onvolledigheid, onjuistheid of anderszins, dan wel de gevolgen daarvan. Alle opgegeven maten en oppervlakten zijn indicatief. Van toepassing zijn de NVM voorwaarden.
Toelichtingsclausule NEN2580
De Meetinstructie is gebaseerd op de NEN2580. De Meetinstructie is bedoeld om een meer eenduidige manier van meten toe te passen voor het geven van een indicatie van de gebruiksoppervlakte. De Meetinstructie sluit verschillen in meetuitkomsten niet volledig uit, door bijvoorbeeld interpretatieverschillen, afrondingen of beperkingen bij het uitvoeren van de meting. Indien de exacte maten voor een koper van cruciaal belang zijn, adviseren wij deze zelf na te meten.



