-
Aantal kamers
5 kamers
-
Aantal slaapkamers
4 slaapkamers
-
Bouwjaar
1985
-
Bouwvorm
bestaande bouw
-
Inhoud
330m3
-
Oppervlakte
94 m2
Schrijnwerkerstraat 82 -3123 EK Schiedam
Hoekeengezinswoning op EIGEN GROND met 4 slaapkamers, diepe achtertuin op het zuiden en een eigen parkeerplaats voor 2 auto's. Er zijn kunststof kozijnen aanwezig met isolerende beglazing en de woning heeft een moderne keuken en sanitair! De woning ligt in een rustige en kindvriendelijke woonomgeving met diverse voorzieningen in de directe nabijheid. Scholen, winkels, openbaar vervoer en sportfaciliteiten bevinden zich op korte afstand. Daarnaast zijn de uitvalswegen richting Rotterdam, Delft en Den Haag snel bereikbaar.
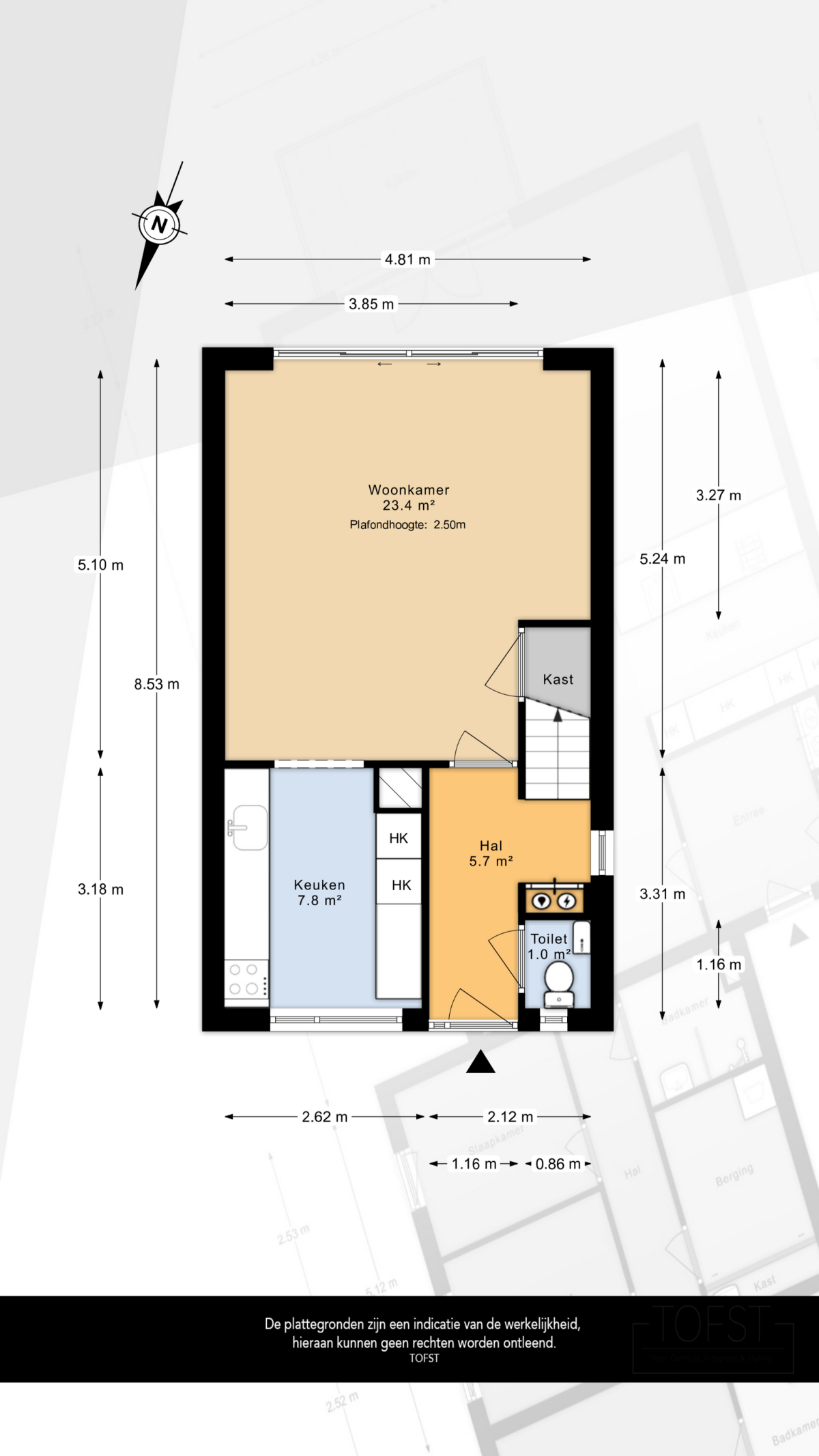
Begane grond:
Entree, hal met meterkast, toiletruimte (2024) en trapopgang naar de eerste verdieping. Aan de voorzijde van de woning bevindt zich de open keuken. De lichte woonkamer van circa 30 m² (incl. keuken) heeft een grote raampartij, waardoor er veel daglicht binnen komt, wat weer zorgt voor een aangename leefruimte. De keuken is in 2019 vervangen en voorzien van een riante opstelling met veel werkblad en de navolgende inbouwapparatuur: close in boiler (5 liter), koelkast, vriezer, vaatwasser, combimagnetron (2025), inductiekookplaat en een afzuigkap.
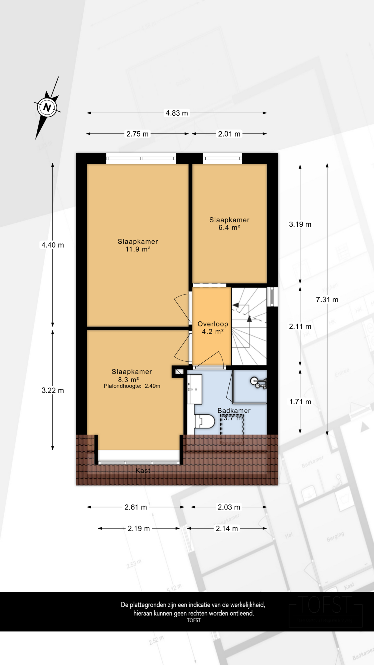
Eerste verdieping:
Overloop, trapopgang naar de 2e verdieping en toegang tot drie slaapkamers en de badkamer.
Slaapkamer 1: ca. 11,9 m², slaapkamer 2: ca. 8,3 m² en slaapkamer 3: ca. 6,4 m². De badkamer (2021) is modern uitgevoerd en voorzien van een douche, wastafelmeubel en een 2e toilet. Er is een raam aanwezig.
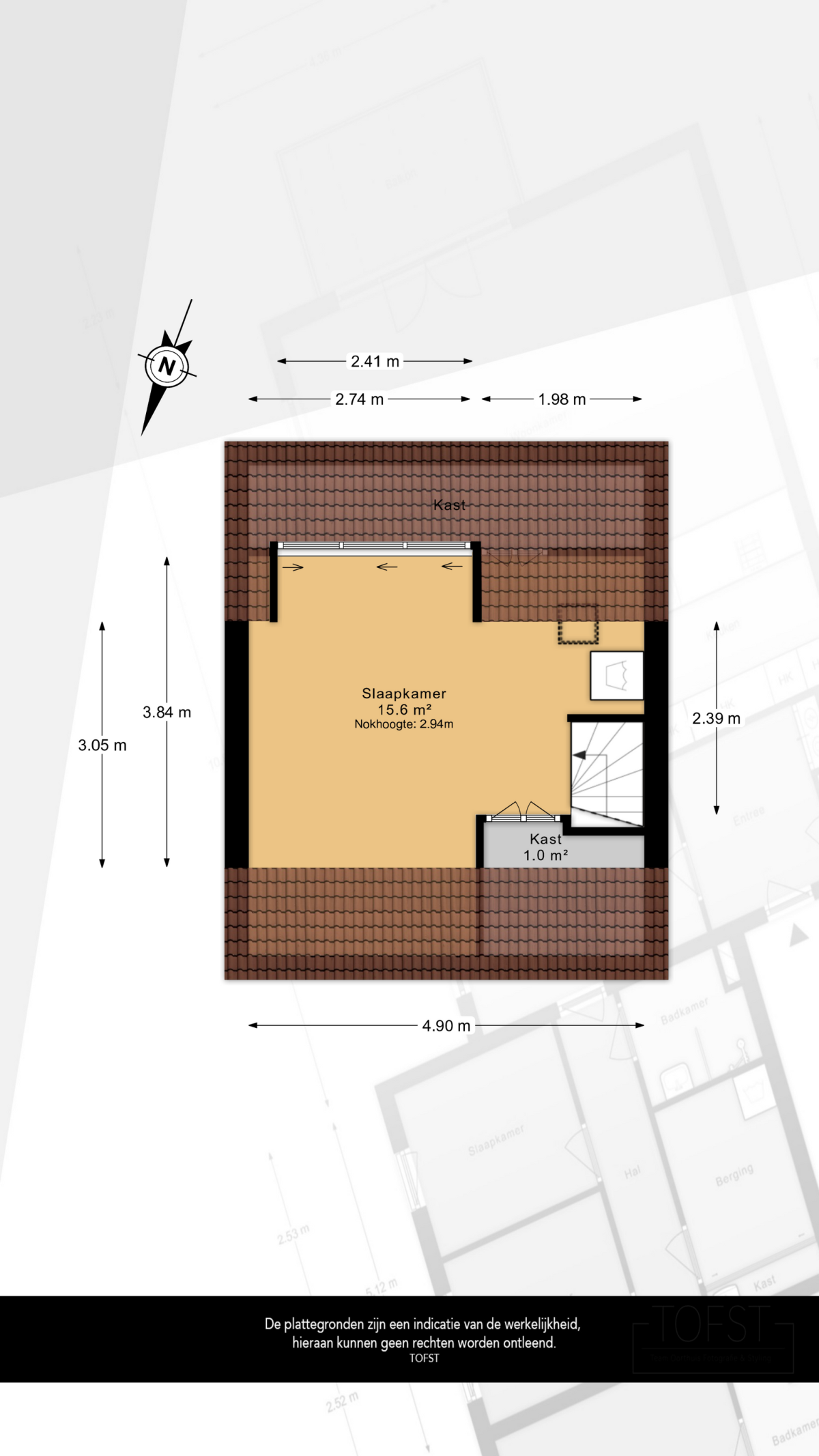
Tweede verdieping:
Ruime open zolderruimte met een vierde slaapkamer van ca. 15,6 m². Dankzij de hoge nok voelt deze ruimte bijzonder ruim aan en is deze uitstekend geschikt als slaapkamer, werkruimte of hobbykamer. Tevens is hier extra bergruimte aanwezig en bevindt zich hier het natte en technische gedeelte met de wasmachine aansluitng en de CV opstelling.
Tuin:
De woning beschikt over een diepe achtertuin van circa 11 meter, waar u heerlijk kunt genieten van rust en privacy. Met een zuidenligging ligt hij ook perfect om van de zon te genieten. Achterin de tuin bevindt zich een vrijstaande berging van circa 7,5 m², ideaal voor fietsen en extra opslag. De voortuin biedt de mogelijkheid tot parkeren voor 2 auto's.
Bijzonderheden:
-Opleveringsindicatie juli 2026;
-Bouwjaar 1985;
-Gezien het bouwjaar wordt er een ouderdomsclausule en een asbestclausule opgenomen in de koopakte;
-De woning heeft zowel voor als achter een dakkapel;
-Kunststof kozijnen met isolerende beglazing (geheel vervangen in 2006);
-Rolluiken en een zonnescherm aanwezig;
-CV ketel uit 2017, vloerverwarming aanwezig op de begane grond;
-Energielabel C;
-EIGEN GROND;
-Gebruiksoppervlakte: 93.9m² (NEN2580);
-Inhoud 329.8m³ (NEN2580);
-Perceeloppervlakte: 145 m² (Kadaster).
Deze informatie is door ons met de nodige zorgvuldigheid samengesteld. Onzerzijds wordt echter geen enkele aansprakelijkheid aanvaard voor enige onvolledigheid, onjuistheid of anderszins, dan wel de gevolgen daarvan. Alle opgegeven maten en oppervlakten zijn indicatief. Van toepassing zijn de NVM voorwaarden.
Toelichtingsclausule NEN2580
De Meetinstructie is gebaseerd op de NEN2580. De Meetinstructie is bedoeld om een meer eenduidige manier van meten toe te passen voor het geven van een indicatie van de gebruiksoppervlakte. De Meetinstructie sluit verschillen in meetuitkomsten niet volledig uit, door bijvoorbeeld interpretatieverschillen, afrondingen of beperkingen bij het uitvoeren van de meting. Indien de exacte maten voor een koper van cruciaal belang zijn, adviseren wij deze zelf na te meten.
Notariskeuze en kosten
Indien de koper een notaris kiest buiten een straal van 20 kilometer van de verkochte onroerende zaak dan zijn de eventuele kosten die de notaris berekent voor een eventuele verkoopvolmacht ten behoeve van de verkoper voor rekening van de koper.



