-
Aantal kamers
4 kamers
-
Aantal slaapkamers
3 slaapkamers
-
Bouwjaar
2025
-
Bouwvorm
bestaande bouw
-
Inhoud
358m3
-
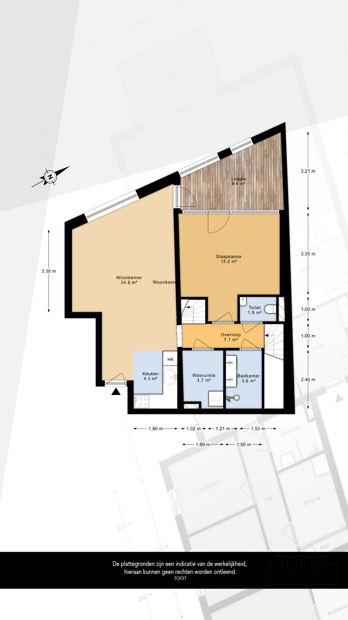
Oppervlakte
95 m2
Op één van de mooiste plekken aan de haven in het historische centrum Schiedam tegenover het monumentale Zakkendragers huisje worden 3 luxe moderne 3 en 4 kamer appartementen met A++ label gerealiseerd in het voormalige markante pand van Glasblaserij Rose.
Vele Schiedammers kennen wel het weerhuisje wat aan de voorgevel hangt van dit mooie gebouw. Op deze prachtige locatie staat dit 2 laagshoekpand met zolder en kap werd voor het laatst gebruikt door glasblazerij Rose, gespecialiseerd in de productie en reparatie van barometers en klokken. Afgelopen eeuw is het pand ook gebruikt geweest als krantendrukkerij en boekendrukkerij.
Er worden hier 3 prachtige luxe, duurzame 3 en 4 kamer appartementen gerealiseerd.
De fotopresentatie geeft een indruk van de nieuw te realiseren appartementen en van de omgeving.
VON prijzen:
Schie 21 (VERKOCHT) € 489.000,- 91,1m2 woonoppervlak en ca. 9m2 buitenruimte
Een luxe 3 kamer appartement op de begane grond. Met werkelijk een fabelachtige ligging en uitzicht.
Schie 23 € 489.500.- ca. 95m2 woonoppervlak, + zolderruimte met 2 dakramen (max hoogte 2,4m) en ca. 9m2 buitenruimte. Ook met een fabelachtige ligging en uitzicht.
Een luxe 4 kamer appartement gelegen op de 1e verdieping voorzijde, gedeelte bg en een groot gedeelte van de zolder van de 2e verdieping.
Schie 25 € 399.500,- ca. 100m2 woonoppervlak, + zolderruimte met 2 dakramen (max hoogte 2,4m) en ca. 5m2 buitenruimte (patio).
Een luxe 4 kamer appartement gelegen op de 1e verdieping achterzijde, gedeelte bg en een mooie ruime zolder op de 2e verdieping. Ook vanuit dit prachtige appartement heb je zicht op de haven, Schie en sluis.
Bergruimten voor fietsen.
Op de begane grond wordt een afgesloten gezamenlijke ruimte (ca. 8m2) gecreëerd voor het plaatsen fietsen.
De appartementen hebben allen een luxe afwerking en zicht op het mooiste plekje van Schiedam, richting het zakkendrager huisje en de oude sluis.
Voor een indruk van te ontwikkelen appartementen zijn er impressie beelden gemaakt. Ook zijn er plattegronden van elk appartement gemaakt, zodat u een goed beeld kan krijgen van de indeling van alle kamers en vertrekken.
LIGGING & SCHIEDAM
Het object ligt op een prachtige locatie aan de Schie tegenover het zakkerdragers huisje en Oude Sluis. Afgelopen jaren is de lange Haven en Schie aangepast en verbreed om meer autoluw te maken en zijn er aanlegsteigers voor woonboten en de fluisterboot aangelegd. Het betreft een mooi en uniek stukje van historisch Schiedam. Alle voorzieningen liggen op loopafstand. Winkelcentra, gezellige terrasjes/restaurants aan de Grote Markt, openbaar vervoer, bioscoop, supermarkten restaurants, cafés etc. NS station binnen 1 km afstand.
Schiedam ontpopt zich steeds meer als ideale woonstad door het dorpse karakter en met een centrale ligging tussen de Metropoolsteden Rotterdam-Den Haag. Tevens is er een uitstekende trein verbinding naar Utrecht en Amsterdam. Via de metroverbinding is Rotterdam als naastgelegen stad binnen 15 minuten te bereiken.
VERKOOPPROCEDURE/BIEDINGS TRAJECT
Bij interesse kunt u zich bij ons kantoor melden, waarna u via move.nl inzage krijgt in de verkoopdocumentatie. De weergegeven VON prijzen is een verkoop vanaf prijs. U kunt een voorstel uitbrengen via MOVE.NL in combinatie met een biedingsformulier wat te vinden is in move.nl.
HET PROJECT/APPARTEMENTEN
De appartementen worden alle 3 luxe uitgevoerd en hebben allen een prachtig zicht op de Schie en Sluis.
-Alle woningen worden behangklaar opgeleverd met een afgewerkte begane grondvloer klaar voor een door de koper te kiezen vloerafwerkingen.
-In de gemeenschappelijke entree wordt een schoonloopmat opgenomen.
-De plafonds zullen gespoten worden opgeleverd.
-De keuken is luxe uitgevoerd met een Atlas keuken van Bruynzeel. De brochure van de keuken is bij de makelaar op te vragen.
Indien gewenst kan de keuken tegen meerprijs naar eigen wens worden ingericht.
-De voorzieningen van het sanitair wordt uitgevoerd met Villeroy en Boch producten.
-De elektra voldoet aan de NEN 1010 qua aantallen en lichtpunten.
-De woning wordt geleverd met stompe binnendeuren met basis hang en sluitwerk. Ook deuren en beslag zijn naar wens/meerwerk uit te breiden.
-Voorzet wanden, nieuwe beglazing en kozijnen (partieel) zorgen voor de juiste gevelisolatie. HR++ glas.
-De begane grondvloer wordt voorzien van Estrich Platen met een nadere isolerende werking.
-Het dak is nieuw en wordt vanuit binnen geïsoleerd.
-De woningen hebben een lucht/ventilatie warmtepomp tbv warm water en vloerverwarming.
-De woningen worden gebouwd onder het woningbouw concept en wordt tenminste opgeleverd met een A++ label.
-De woningen worden geleverd met EIGEN GROND.
-De nieuwe eigenaren kunnen samen in overleg met een professionele vve beheerder de VvE inrichten. Verwachte VvE bijdrage van ca. € 150,- pm.
NOTARIS
Voor dit project geldt een projectnotaris.
Deze informatie is door ons met de nodige zorgvuldigheid samengesteld. Onzerzijds wordt echter geen enkele aansprakelijkheid aanvaard voor enige onvolledigheid, onjuistheid of anderszins, dan wel de gevolgen daarvan. Alle opgegeven maten en oppervlakten zijn indicatief. U kunt indien gewenst de woning voor het tekenen van de koopakte zelf inmeten en controleren.
Afmetingen/plattegrond appartementen
De oppervlakten die berekend zijn en komen afkomstig van plattegrondtekeningen die gemaakt zijn door de bouwkundige. Daardoor zijn de plattegronden niet gebaseerd volgens de meetinstructie NEN2580. Hierdoor kan het voorkomen dat als de appartementen zijn gerealiseerd de juiste afmeting afwijken van de plattegrond en de informatie op funda en publiciteitsuitingen.



