-
Aantal kamers
5 kamers
-
Aantal slaapkamers
3 slaapkamers
-
Bouwjaar
2006
-
Bouwvorm
bestaande bouw
-
Inhoud
417m3
-
Oppervlakte
123 m2
P J Troelstralaan 26 3118 VG SCHIEDAM
(English below)
Een modern, sfeervol, goed onderhouden eengezinswoning (Bouwjaar 2006, Energielabel A) met een aangebouwde terrasoverkapping (2020) en een zonnige tuin. Deze mooie ruime woning heeft een riante woonkamer van maar liefst ca. 40m2 exclusief een terrasoverkapping van ca. 21m2. De ligging is mooi en praktisch in een nieuw gedeelte van Nieuwland met vooral nieuwe woningen en in nabijheid van allerlei voorzieningen; buurtwinkels, supermarkten, scholen, kinderdagverblijf, recreatie Midden Delfland, openbaar vervoer op loopafstand en uitvalswegen richting Rotterdam en Den Haag welke binnen 5 minuten zijn te bereiken.
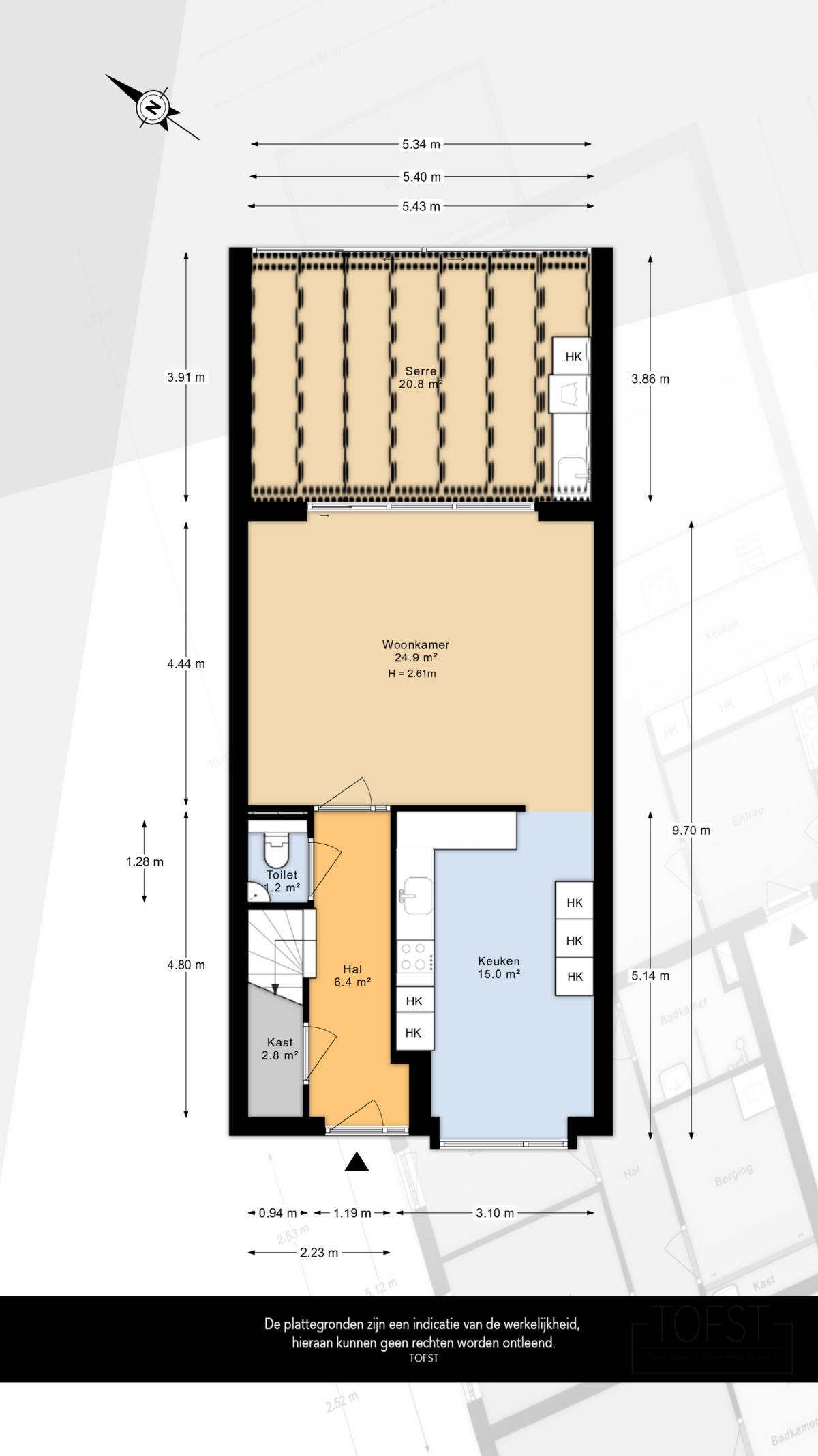
INDELING
Begane grond:
Entree, gang, meterkast, vrjihangend toilet met een handwasbakje. Heerlijk ruime, lichte woonkamer inclusief keuken van totaal ca. 40m2 voorzien van vloerverwarming. Vanuit de woonkamer is een mooi zicht op de tuinen toegang naar de terrasoverkapping. De keuken is ruim van opzet en heeft een extra wandgedeelte; voorzien van een granieten aanrecht en achterwand, kookplaat, oven (2020), combi oven, koelkast, afzuigkap, vaatwasser (2019), carrousel, apothekerskast en veel kastruimten. De terrasoverkapping van ca. 21m2 (5,4m x 3,9m) is voorzien van vloerverwarming een buitenkeuken en extra aansluiting voor wasmachine. (kan ook op zolder).
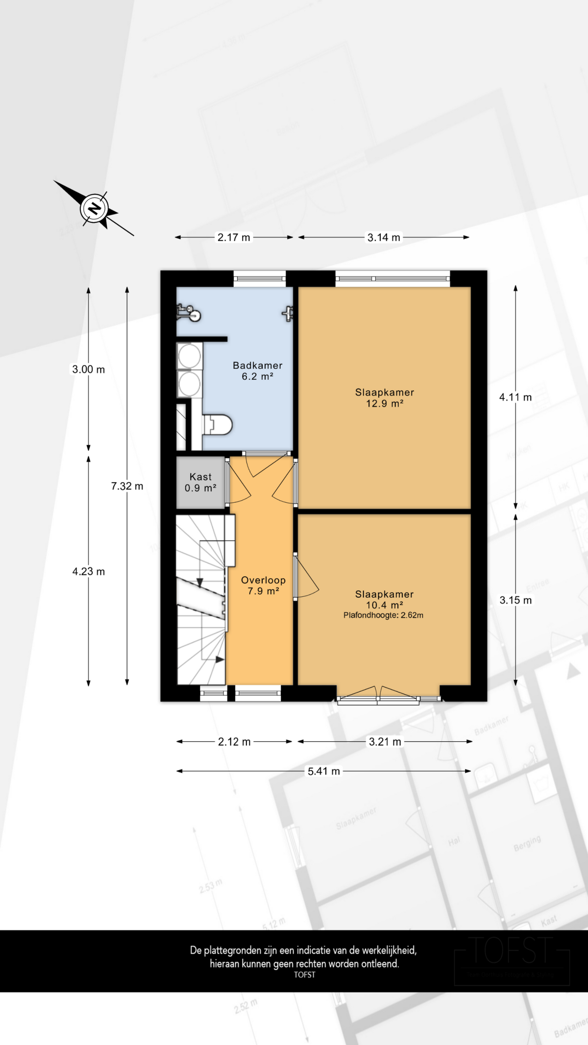
1e verdieping:
Overloop. Bergkast. Moderne ruime badkamer 3m x 2,17m voorzien van een dubbele wastafelmeubel, vrijhangend toilet en een inloopdouche. Slaapkamer aan de voorzijde van ca.10,4m2. Slaapkamer aan de achterzijde van ca.12,9m2.
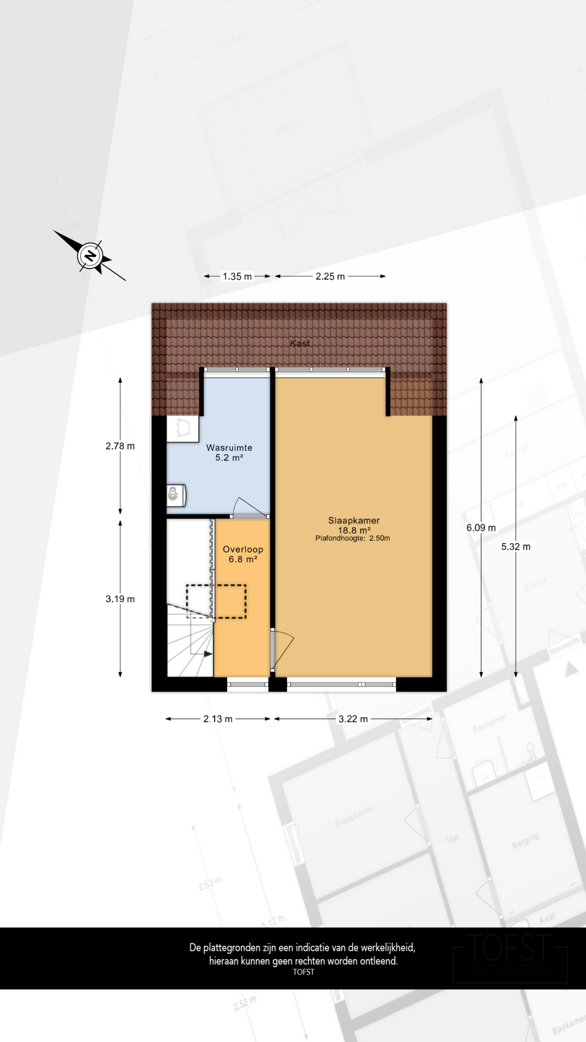
2e verdieping:
Overloop, toegang naar de wasruimte van ca. 5m2 voorzien van een cv ketel (2019) en wasmachine aansluiting. Riante riante slaapkamer/hobbyruimte van ca. 18,8m2 voorzien van een groot kunststof dakkapel.
Tuin:
Zonnige ruime tuin op het zuiden van ca. 9,60m diep voorzien van een stenen berging en een achterom.
Terrasoverkapping:
Vanuit de woonkamer bereik je de grote terrasoverkapping (5,4m x 3,9m) met vloerverwarming. In elk seizoen een heerlijke plek om te zijn. Hier is ook een buitenkeuken geplaatst en opstelling wasm.aansluiting (Deze kan ook op zolder.
Overige:
- Oplevering in overleg, kan snel.
- In 2020 voorzien van een terrasoverkapping met vloerverwarming en buitenkeuken;
- In 2020 is de achtertuin en voortuin voorzien van zandcement onderlaag waardoor er geen onkruid meer ontstaat en een betere stabiliteit;
- In 2020 is de woning deels nieuw gestuukt;
- In 2020 is de badkamer en toilet vernieuwd;
- in 2015 is de zolder vernieuwd met een groot dakkapel, wasruimte en een praktische bergvliering;
- In 2019 is de cv ketel vernieuwd.
- Alle kozijnen zijn van hardhout HR++ glas. Behoudens de kunststof dakkapel.
- Bouwjaar 2006;
- Energielabel A tm 29-12-2030;
- De erfpacht is afgekocht tot 20-04-2055. Het recht loopt tot 20-5-2097;
- Gebruiksoppervlakte ca. 123,4m2 exclusief ca. 21m2 aangebouwde terras overkapping (NEN2580);
- Inhoud ca. 416,7m3 (NEN2580);
- Perceeloppervlakte 145m2 (Kadaster)
Deze informatie is door ons met de nodige zorgvuldigheid samengesteld. Onzerzijds wordt echter geen enkele aansprakelijkheid aanvaard voor enige onvolledigheid, onjuistheid of anderszins, dan wel de gevolgen daarvan. Alle opgegeven maten en oppervlakten zijn indicatief. Van toepassing zijn de NVM voorwaarden.
Toelichtingsclausule NEN2580
De Meetinstructie is gebaseerd op de NEN2580. De Meetinstructie is bedoeld om een meer eenduidige manier van meten toe te passen voor het geven van een indicatie van de gebruiksoppervlakte. De Meetinstructie sluit verschillen in meetuitkomsten niet volledig uit, door bijvoorbeeld interpretatieverschillen, afrondingen of beperkingen bij het uitvoeren van de meting. Indien de exacte maten voor een koper van cruciaal belang zijn, adviseren wij deze zelf na te meten.
Notariskeuze en kosten
In principe ligt de notariskeuze bij de koper. Het doorhalen van de hypothecaire inschrijving in het kadaster moet door de verkoper betaald worden. Zijn de kosten voor deze doorhaling hoger dan € 400,- inclusief BTW dan wordt het meerdere bij de koper in rekening gebracht. Indien de koper een notaris kiest buiten een straal van 20 kilometer van de verkochte onroerende zaak dan zijn de eventuele kosten die de notaris berekent voor een eventuele verkoopvolmacht ten behoeve van de verkoper voor rekening van de koper.
English version:
P J Troelstralaan 26 3118 VG SCHIEDAM
A modern, atmospheric, well-maintained family home (Year of construction 2006, Energy label A) with an attached terrace canopy (2020) and a sunny garden. This beautiful and spacious home features a generous living room of approximately 40 m², excluding a terrace canopy of approximately 21 m². The location is attractive and practical in a newer part of Nieuwland, mainly consisting of recently built homes and close to various amenities; local shops, supermarkets, schools, daycare, recreation area Midden-Delfland, public transport within walking distance, and main roads towards Rotterdam and The Hague which can be reached within 5 minutes.
INDELING (LAYOUT)
Ground floor:
Entrance, hallway, meter cupboard, wall-mounted toilet with a small hand basin. Wonderfully spacious and bright living room including kitchen with a total area of approximately 40 m², equipped with underfloor heating. From the living room there is a pleasant view of the gardens and access to the terrace canopy. The kitchen is spaciously designed and has an additional wall section; equipped with a granite countertop and backsplash, cooktop, oven (2020), combi oven, refrigerator, extractor hood, dishwasher (2019), carousel cabinet, pantry cabinet and plenty of cupboard space. The terrace canopy of approximately 21 m² (5.4 m x 3.9 m) is equipped with underfloor heating, an outdoor kitchen and an additional connection for a washing machine (can also be placed in the attic).
1st floor:
Landing. Storage cupboard. Modern spacious bathroom 3 m x 2.17 m equipped with a double washbasin unit, wall-mounted toilet and a walk-in shower. Bedroom at the front of approximately 10.4 m². Bedroom at the rear of approximately 12.9 m².
2nd floor:
Landing, access to the laundry room of approximately 5 m² equipped with a central heating boiler (2019) and washing machine connection. Very spacious bedroom/hobby room of approximately 18.8 m² equipped with a large plastic dormer window.
Garden:
Sunny spacious south-facing garden of approximately 9.60 m deep, equipped with a stone storage shed and a rear entrance.
Terrace canopy:
From the living room you reach the large terrace canopy (5.4 m x 3.9 m) with underfloor heating. A wonderful place to be in every season. An outdoor kitchen has also been installed here and there is a washing machine connection (this can also be placed in the attic).
Other:
-Transfer in consultation, can be quick.
-In 2020 equipped with a terrace canopy with underfloor heating and outdoor kitchen;
-In 2020 the backyard and front garden were provided with a sand-cement base layer to prevent weed growth and improve stability;
-In 2020 the house was partially newly plastered;
-In 2020 the bathroom and toilet were renovated;
-In 2015 the attic was renovated with a large dormer window, laundry room and a practical storage loft;
- In 2019 the central heating boiler was replaced;
-All window frames are hardwood with HR++ glass, except the plastic dormer window;
-Year of construction 2006;
-Energy label A until 29-12-2030;
-The ground lease has been paid off until 20-04-2055. The right runs until 20-05-2097;
-Usable living area approx. 123.4 m² excluding approx. 21 m² attached terrace canopy (NEN2580);
-Volume approx. 416.7 m³ (NEN2580);
-Plot size 145 m² (Land Registry).
This information has been compiled by us with due care. However, we accept no liability for any incompleteness, inaccuracies or otherwise, nor for the consequences thereof. All stated sizes and surface areas are indicative. The NVM conditions apply.
Explanation clause NEN2580
The Measurement Instruction is based on the NEN2580 standard. The instruction aims to apply a more uniform method of measuring to provide an indication of the usable floor area. The Measurement Instruction does not completely exclude differences in measurement results, for example due to interpretation differences, rounding or limitations during the measurement. If exact dimensions are crucial for a buyer, we advise measuring them independently.
Choice of notary and costs
In principle, the buyer chooses the notary. The removal of the mortgage registration in the land registry must be paid by the seller. If the costs for this removal exceed €400 including VAT, the excess will be charged to the buyer. If the buyer chooses a notary outside a radius of 20 kilometers from the sold property, any costs charged by the notary for a sales power of attorney on behalf of the seller will be at the buyer’s expense.



