-
Aantal kamers
2 kamers
-
Aantal slaapkamers
1 slaapkamers
-
Bouwjaar
1979
-
Bouwvorm
bestaande bouw
-
Inhoud
130m3
-
Oppervlakte
38 m2
Oranjestraat 20 3111 AP Schiedam
Starters opgelet:
Wij hebben weer een heel leuk direct te betrekken appartement in de verkoop gekregen:
Op een leuke locatie gelegen aan een gezamenlijke hofje is de entree van dit appartement op de 1e verdieping.
Met een lichte woonkamer met zicht richting het haventje. Hardhouten kozijnen met HR++ glas.
Een slaapkamer aan de voorzijde en met veel extra bergruimten
Keuken en badkamer zijn eenvoudig uitgevoerd en hebben wat gebruiksschade.
Het appartement maakt deel uit van een karakteristiek, monumentaal appartementencomplex en wordt goed onderhouden door een actieve VVE.
De locatie is ideaal in een gezellige straat met alle voorzieningen van het centrum in de nabijheid: Plantagepark, snelwegennet, openbaar vervoer. Parkeren kan hier met een vergunning. Het centrum van Schiedam met zijn mooie grachten en monumentale panden is binnen 2 minuten loopafstand te bereiken. Met winkels, restaurants en terrasjes. Diverse openbaar vervoersmogelijkheden en uitvalswegen liggen op korte afstand waardoor steden als Rotterdam, Delft en Den Haag goed en snel bereikbaar zijn.
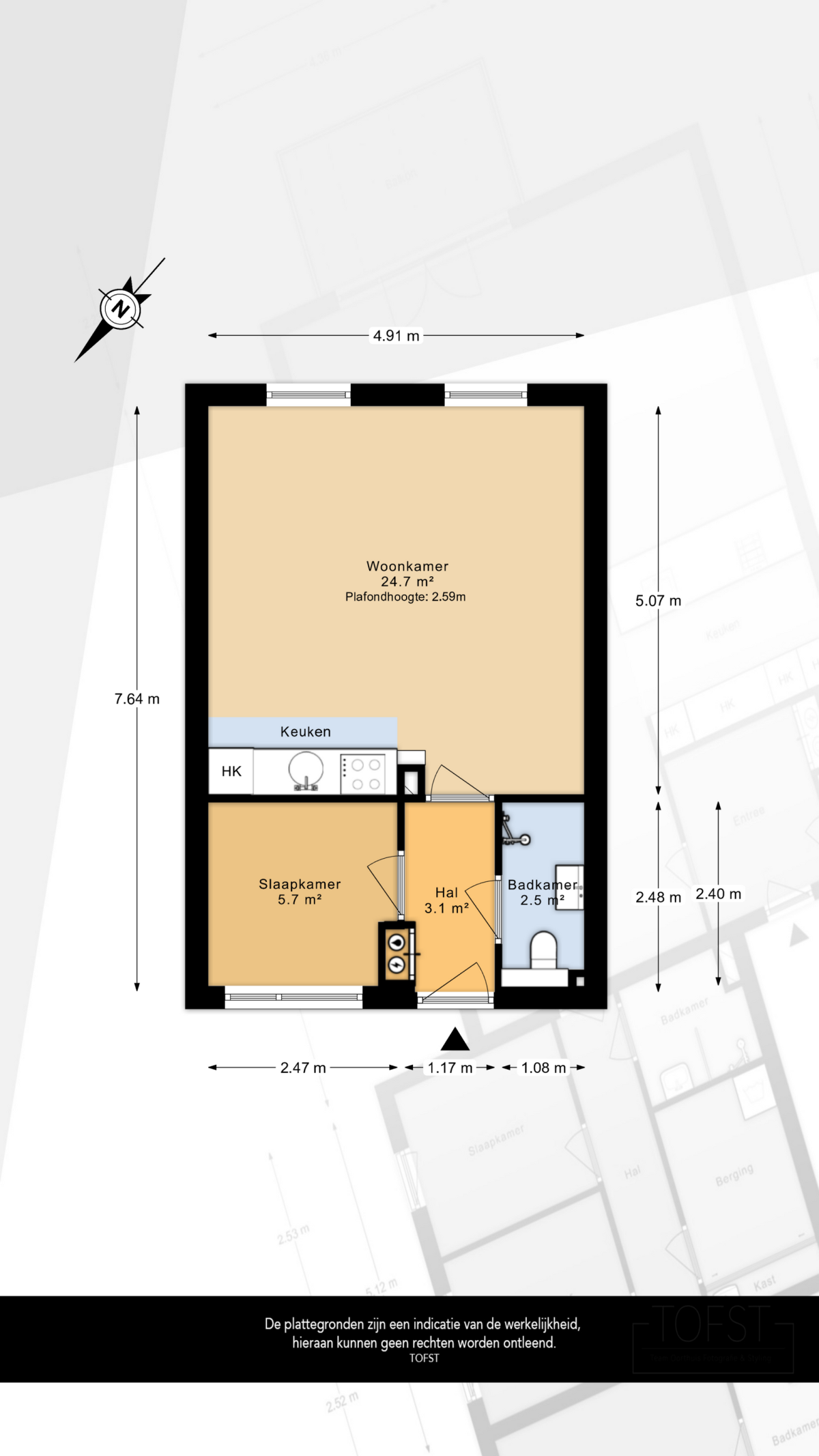
Indeling
1e verdieping
Gezamenlijke binnentuin waar de voordeur van de woning zich bevindt. Entree, meterkast.
Badkamer voorzien van een douchehoek, wastafelmeubel en hangend toilet. Slaapkamer aan de voorzijde.
Royale lichte woonkamer van ca. 25m2 voorzien een open keuken met ijsblauw front, keramische kookplaat, afzuigkap en koelkast.
Afmetingen:
- Woonkamer : 4.91m x 5.07 m
- Slaapkamer 1 : 2.40m x 2.47 m
- Badkamer : 2.48m x 1.08m
Berging:
Er zijn 2 bergingen. 1 berging gelegen in de kelder voor de fiets en dergelijke en 1 berging gelegen aan de binnentuin. Deze berging is bedoeld voor de wasmachine en andere spullen. Hier bevindt zich tevens de wasmachine aansluiting.
Overige:
-Oplevering in overleg, kan eventueel snel.
-Nieuwe kozijnen geplaatst met dubbelglas in 2010 aan woonkamer zijde.
-Warm water middels een 80L boiler uit 2013.
-Actieve vereniging van eigenaren, bijdrage van € 174,13,- per maand en € 90,- voorschot stookkosten.
-Verkoper betaalt €51,- per maand voor water/elektra.
-Eigen grond.
-Bouwjaar 1979.
-Vanwege het bouwjaar van de woning wordt er een asbest- en ouderdomsclausule in de koopakte opgenomen.
-Woonoppervlak ca. 38m2. (nennorm 2580
Deze informatie is door ons met de nodige zorgvuldigheid samengesteld. Onzerzijds wordt echter geen enkele aansprakelijkheid aanvaard voor enige onvolledigheid, onjuistheid of anderszins, dan wel de gevolgen daarvan. Alle opgegeven maten en oppervlakten zijn indicatief. Van toepassing zijn de NVM voorwaarden.
Toelichtingsclausule NEN2580
De Meetinstructie is gebaseerd op de NEN2580. De Meetinstructie is bedoeld om een meer eenduidige manier van meten toe te passen voor het geven van een indicatie van de gebruiksoppervlakte. De Meetinstructie sluit verschillen in meetuitkomsten niet volledig uit, door bijvoorbeeld interpretatieverschillen, afrondingen of beperkingen bij het uitvoeren van de meting. Indien de exacte maten voor een koper van cruciaal belang zijn, adviseren wij deze zelf na te meten.
Notariskeuze en kosten
In principe ligt de notariskeuze bij de koper. Het doorhalen van de hypothecaire inschrijving in het kadaster moet door de verkoper betaald worden. Zijn de kosten voor deze doorhaling hoger dan € 400,- inclusief BTW dan wordt het meerdere bij de koper in rekening gebracht.
Indien de koper een notaris kiest buiten een straal van 20 kilometer van de verkochte onroerende zaak dan zijn de eventuele kosten die de notaris berekent voor een eventuele verkoopvolmacht ten behoeve van de verkoper voor rekening van de koper.
English below:
Oranjestraat 20 3111 AP Schiedam
Attention first-time buyers:
We have another very nice, move-in ready apartment for sale:
Located in a pleasant location overlooking a shared courtyard, the entrance to this apartment is on the 1st floor.
Featuring a bright living room with a view towards the small harbor. Hardwood window frames with HR++ glass.
A bedroom at the front with plenty of extra storage space.
The kitchen and bathroom are simply finished and show some signs of use.
The apartment is part of a characteristic, monumental apartment complex and is well maintained by an active Owners' Association.
The location is ideal, situated on a cozy street with all city center amenities nearby: Plantagepark, the highway network, and public transport. Parking is available here with a permit. The center of Schiedam, with its beautiful canals and monumental buildings, can be reached within a 2-minute walk. Featuring shops, restaurants, and outdoor cafes. Various public transport options and arterial roads are located a short distance away, making cities like Rotterdam, Delft, and The Hague easily and quickly accessible. Layout
1st floor
Shared courtyard where the front door of the apartment is located. Entrance, meter cupboard.
Bathroom equipped with a shower cubicle, vanity unit, and wall-mounted toilet. Bedroom at the front.
Spacious, bright living room of approx. 25 m² featuring an open kitchen with ice-blue fronts, ceramic hob, extractor hood, and refrigerator.
Dimensions:
- Living room: 4.91 m x 5.07 m
- Bedroom 1: 2.40 m x 2.47 m
- Bathroom: 2.48 m x 1.08 m
Storage:
There are 2 storage units. 1 unit located in the basement for bicycles and the like, and 1 unit located overlooking the courtyard. This unit is intended for the washing machine and other items. The washing machine connection is also located here.
Other:
- Completion date by mutual agreement; can be quick if desired.
- New double-glazed window frames installed in 2010 on the living room side. -Hot water via an 80L boiler from 2013.
-Active homeowners' association, contribution of € 174.13 per month and € 90 advance payment for heating costs.
-Seller pays €51 per month for water/electricity.
-Freehold.
-Year of construction 1979.
-Due to the age of the property, an asbestos and age clause will be included in the purchase agreement.
-Living area approx. 38m2. (NEN standard 2580)
This information has been compiled by us with due care. However, we accept no liability whatsoever for any incompleteness, inaccuracy, or otherwise, or the consequences thereof. All stated dimensions and areas are indicative. The NVM conditions apply.
Explanatory Clause NEN2580
The Measurement Instruction is based on NEN2580. The Measurement Instruction is intended to apply a more consistent method of measurement to provide an indication of the usable floor area. The Measurement Instruction does not completely rule out differences in measurement results, for example due to differences in interpretation, rounding, or limitations in carrying out the measurement. If the exact dimensions are of crucial importance to a buyer, we advise them to measure them themselves.
Choice of Notary and Costs
In principle, the choice of notary rests with the buyer. The cancellation of the mortgage registration in the Land Registry must be paid for by the seller. If the costs for this cancellation exceed € 400.00 including VAT, then the multiple charged to the buyer.
If the buyer chooses a notary outside a radius of 20 kilometers from the property being sold, any costs charged by the notary for a potential power of attorney for sale on behalf of the seller shall be borne by the buyer.



