-
Aantal kamers
6 kamers
-
Aantal slaapkamers
4 slaapkamers
-
Bouwjaar
1976
-
Bouwvorm
bestaande bouw
-
Inhoud
595m3
-
Oppervlakte
152 m2
Oever 35 3121 XR SCHIEDAM
Ruime splitlevel eengezinswoning van ruim 150m2 gebruiksoppervlak gelegen in de rustige, groene, kindvriendelijke wijk Kethel-Oost aan de rand van het Beatrixpark. Aan het woonerf staat een ruime garage en zowel het terras aan de voorkant als het terras aan de achterkant is onderheid. In de directe omgeving van de woning vindt u allerlei voorzieningen, zoals een speeltuin, voetbalveld, diverse scholen, openbaar vervoer en het winkelcentrum "Hof van Spaland" met diverse winkels en restaurants. Ook het natuur- en recreatiegebied "Midden-Delfland" is snel en makkelijk bereikbaar.
De splitlevel indeling zorgt voor mooie lichte ruimtes.
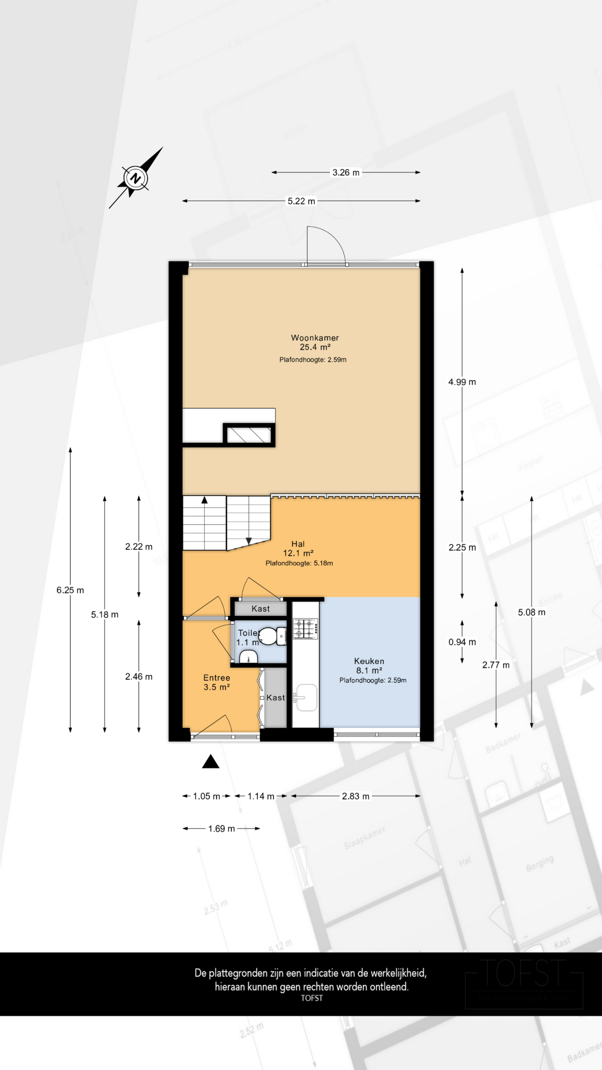
Begane grond:
Ruime hal, toilet voorzien van fonteintje. De eetkamer van ca. 12m2 grenst aan de keuken en beschikt over een vaste kast. De keuken is voorzien van een eenvoudige keukenopstelling.
1e verdieping:
Het woongedeelte van ca. 25m2 ligt aan de achterzijde en is voorzien van een openhaard en deur richting het terras en de achtertuin. De ruimte aan de straatzijde van ca. 16m2 is een ideale hobby/werkruimte.
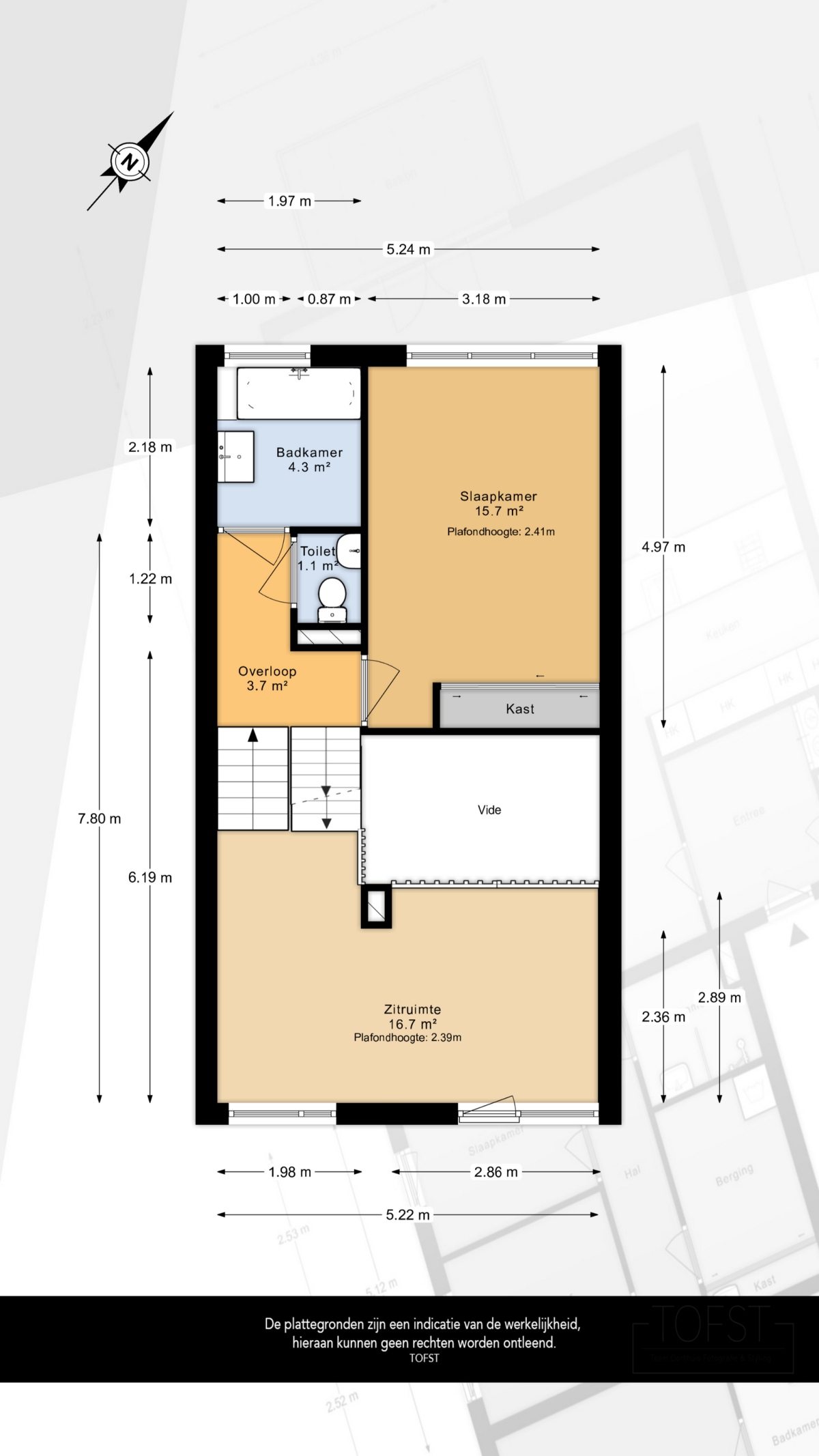
2e verdieping
Overloop, apart toilet met fonteintje. Ruime slaapkamer van ca. 15.7m2 met schuifkast. De hoofdbadkamer is voorzien van een ligbad/douche en wastafelmeubel.
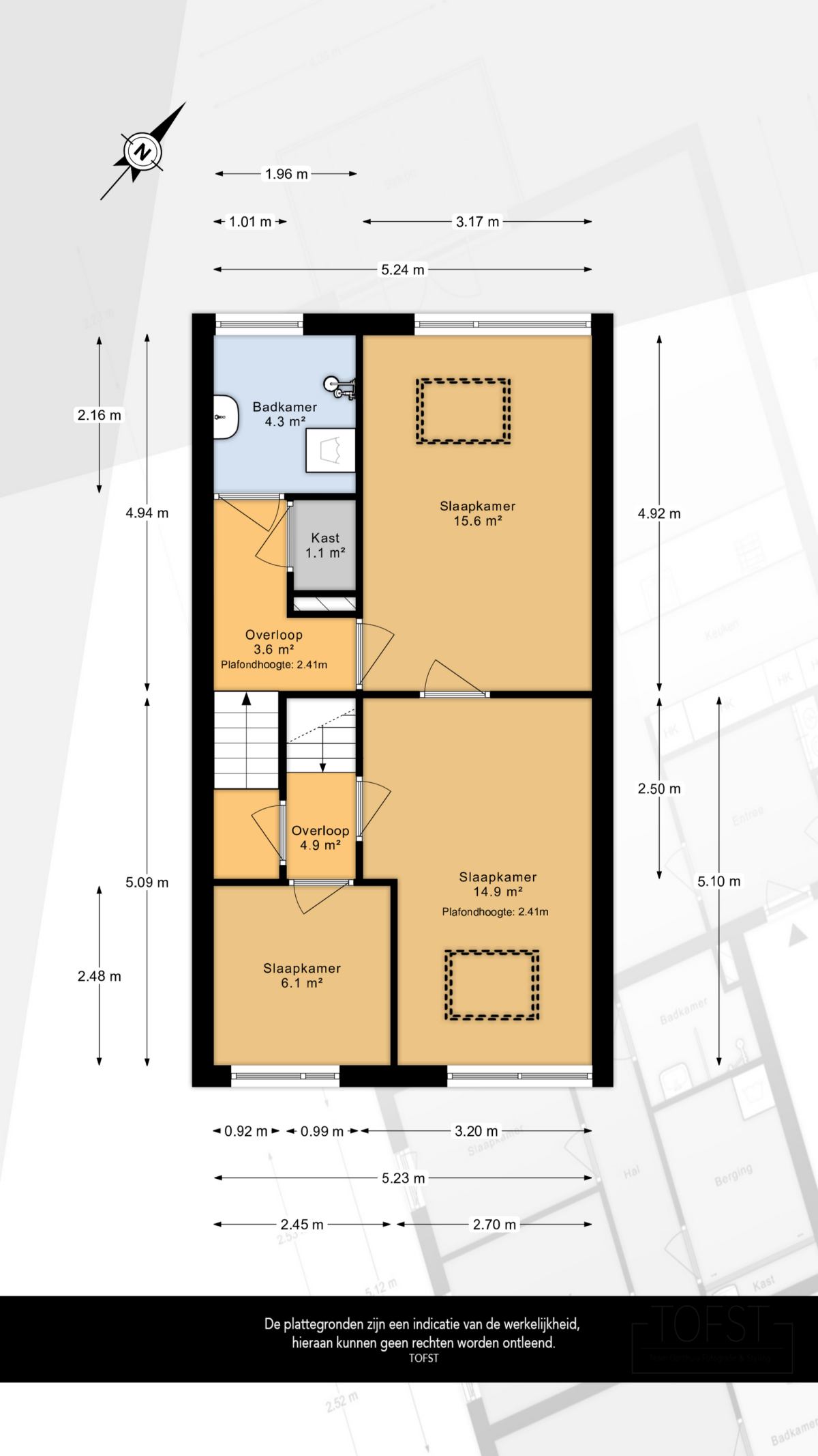
3e verdieping:
Overloop, handige ruime bergkast. Ruime slaapkamer van ca. 15.6m2 aan de tuinzijde voorzien van een dakraam. De 2e badkamer is voorzien van een wastafel, wasmachineaansluiting en douchehoek. Op deze verdieping bevinden zich tevens een ruime slaapkamer van ca. 14.9m2 aan de straatzijde voorzien van een dakraam en een slaapkamer van ca. 6m2.
Achtertuin:
De achtertuin incl. terras is ca. 7.50 meter diep en ca. 5.22 meter breed. De tuin grenst aan een gezamenlijke groenstrook. Een gedeelte van het achterterras is onderheid.
Voortuin:
De riante voortuin is tevens onderheid en is ca. 6.15 meter diep en ca. 5.22 meter breed. Hier bevindt zich tevens de garage van bijna 17m2.
Overige:
-Oplevering in overleg, kan snel;
-Bouwjaar 1976;
-Verwarming en warmwater middels CV ketel uit 2004 (in 2024 voor het laatst onderhouden);
-Gezien het bouwjaar van de woning worden er in de koopakte een ouderdomsclausule en asbestclausule opgenomen;
-De woning ligt op erfpacht, €2803.20 per jaar (tot 31-03-2035), recht loopt tot 31-03-2050;
-Voor de afmetingen en indeling verwijzen wij graag door naar de plattegronden;
-Gebruiksoppervlakte 151.6m2 exclusief overige inpandige ruimte (garage) van 16.9m2 (NEN2580);
-Inhoud 595.1m3 (NEN2580);
-Perceeloppervlakte 154m2 (Kadaster).
Deze informatie is door ons met de nodige zorgvuldigheid samengesteld. Onzerzijds wordt echter geen enkele aansprakelijkheid aanvaard voor enige onvolledigheid, onjuistheid of anderszins, dan wel de gevolgen daarvan. Alle opgegeven maten en oppervlakten zijn indicatief. Van toepassing zijn de NVM voorwaarden.
Toelichtingsclausule NEN2580
De Meetinstructie is gebaseerd op de NEN2580. De Meetinstructie is bedoeld om een meer eenduidige manier van meten toe te passen voor het geven van een indicatie van de gebruiksoppervlakte. De Meetinstructie sluit verschillen in meetuitkomsten niet volledig uit, door bijvoorbeeld interpretatieverschillen, afrondingen of beperkingen bij het uitvoeren van de meting. Indien de exacte maten voor een koper van cruciaal belang zijn, adviseren wij deze zelf na te meten.



