-
Aantal kamers
5 kamers
-
Aantal slaapkamers
4 slaapkamers
-
Bouwjaar
1914
-
Bouwvorm
bestaande bouw
-
Inhoud
506m3
-
Oppervlakte
145 m2
Nieuwe Maasstraat 20 - 3114 TK SCHIEDAM
Een schitterende 5 kamer eengezinswoning met 145m2 gebruiksoppervlakte, een fraaie keuken en 2 luxe badkamers! De woning is in de periode 2021/2022 volledig gemoderniseerd. De riante woonkamer en de 4 ruime slaapkamers maken het woonplaatje compleet. De ligging bijzonder prettig in de populaire wijk De Gorzen/Schiedam-Zuid, De wijk heeft een dorps karakter met op loopafstand allerlei handige buurtwinkels: bakkerij, slager, chocolaterie, Gall en Gall, Etos, sigarenboer, fietsenzaak, snackbar, etc. Albert Heijn is hier ook gevestigd. Via de watertaxi is Rotterdam ook snel te bereiken. Het centrum van Schiedam is binnen 5 minuten fiets afstand te bereiken. Ook snelwegen, scholen en openbaar vervoer zijn in de buurt.
Indeling:
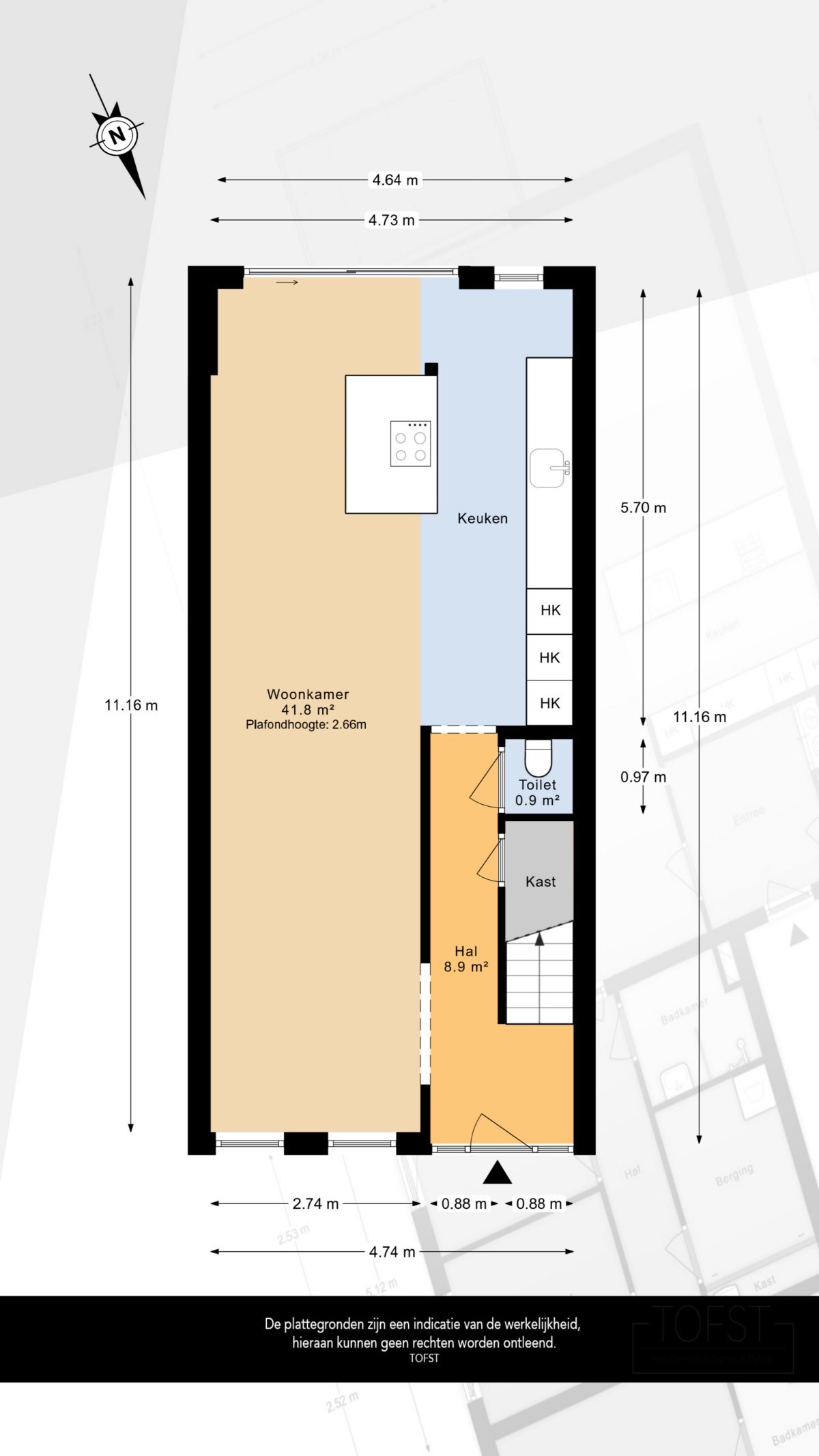
Begane grond:
Entree, ruime hal van 9m2, trapopgang naar de 1e verdieping, trapkast en toilet. De bijzonder ruime woonkamer is fraai afgewerkt met een tegel vloer met vloerverwarming en strak gestuukte wanden en plafond. Samen met de open keuken is deze ruimte bijna 42m2 groot en via een brede schuifpui is er toegang tot de tuin. De keuken is een plaatje op zich! Veel kastruimte, veel werkblad, een kookeiland en de navolgende inbouwapparatuur: keramische kookplaat, designafzuigkap, koelkast, vriezer, oven, combimagnetron en een vaatwasser.
1e verdieping:
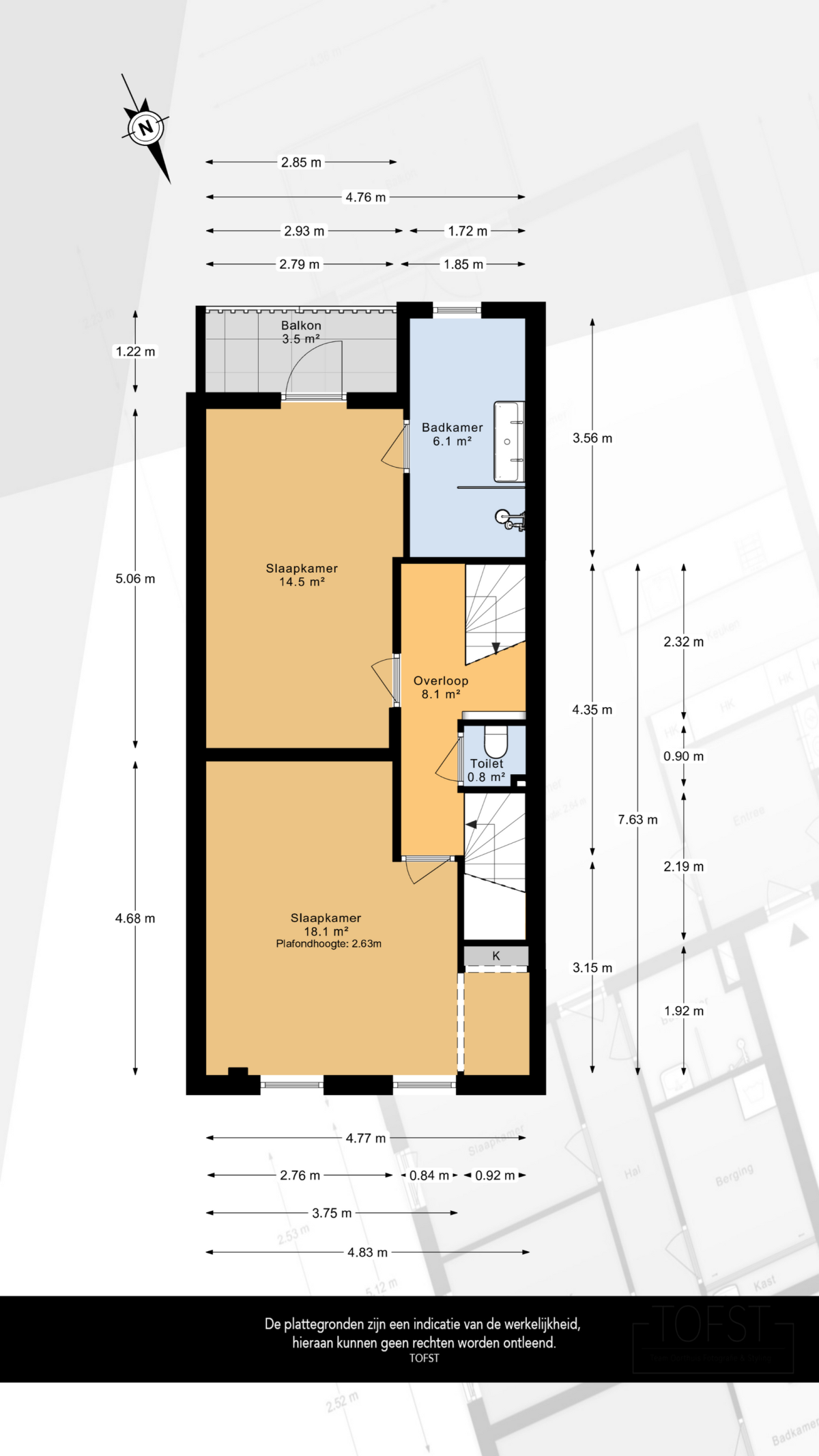
Overloop, trapopgang naar de 2e verdieping, apart 2e toilet. Zeer ruime hoofdslaapkamer van meer dan 18m2. De 2e slaapkamer op deze verdieping is ca. 14.5m2 en heeft een balkon. Luxe badkamer met fraai tegelwerk voorzien van een wastafelmeubel met dubbele kraan en spiegel, extra kast, radiator en een ruime inloopdouche.
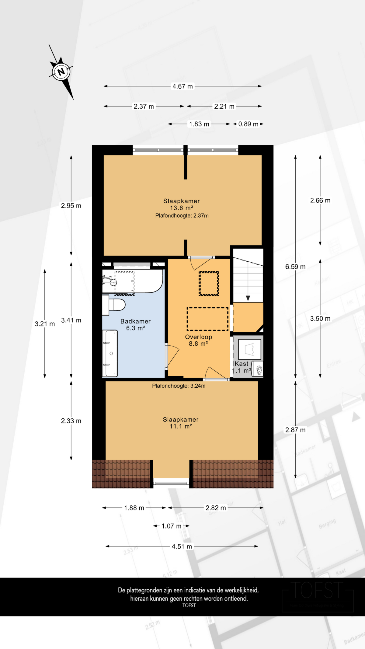
2e verdieping:
Ruime overloop, toegang tot de vliering, aparte kast met CV en wasmachine/droger aansluitingen. Schitterende 2e badkamer voorzien van een wastafelmeubel met dubbele kraan en spiegel, extra toilet en een ligbad/douche. Het plafond is gestuukt en voorzien van spotjes en er is daglicht via een Velux dakraam. Slaapkamer van ca. 11m2 en een slaapkamer van ca. 13.5m2.
Tuin:
De achtertuin is ruim 8.30 meter diep en 5.00 meter breed. De tuin is gelegen op het gunstige zuidwesten.
Overige:
-Oplevering in overleg;
-Bouwjaar 1914;
-Daken vernieuwd gedurende de periode 2022-2023;
-Energielabel C;
-Kunststof kozijnen voorzien van dubbel glas en deels HR++ glas;
-De begane grond vloer is geïsoleerd;
-CV ketel: Remeha Calenta Ace 28C CW4 uit 2021;
-Vloerverwarming aanwezig op de begane grond;
-Gezien het bouwjaar van de woning worden er in de koopakte een ouderdomsclausule en asbestclausule opgenomen;
-Gebruiksoppervlakte 145m2 (NEN2580);
-Inhoud 505.9m3 (NEN2580);
-Perceeloppervlakte 100m2 (Kadaster).
Deze informatie is door ons met de nodige zorgvuldigheid samengesteld. Onzerzijds wordt echter geen enkele aansprakelijkheid aanvaard voor enige onvolledigheid, onjuistheid of anderszins, dan wel de gevolgen daarvan. Alle opgegeven maten en oppervlakten zijn indicatief. Van toepassing zijn de NVM voorwaarden.
Toelichtingsclausule NEN2580 De Meetinstructie is gebaseerd op de NEN2580. De Meetinstructie is bedoeld om een meer eenduidige manier van meten toe te passen voor het geven van een indicatie van de gebruiksoppervlakte. De Meetinstructie sluit verschillen in meetuitkomsten niet volledig uit, door bijvoorbeeld interpretatieverschillen, afrondingen of beperkingen bij het uitvoeren van de meting. Indien de exacte maten voor een koper van cruciaal belang zijn, adviseren wij deze zelf na te meten.
Notariskeuze en kosten In principe ligt de notariskeuze bij de koper. Het doorhalen van de hypothecaire inschrijving in het kadaster moet door de verkoper betaald worden. Zijn de kosten voor deze doorhaling hoger dan € 400,- inclusief BTW dan wordt het meerdere bij de koper in rekening gebracht. Indien de koper een notaris kiest buiten een straal van 20 kilometer van de verkochte onroerende zaak dan zijn de eventuele kosten die de notaris berekent voor een eventuele verkoopvolmacht ten behoeve van de verkoper voor rekening van de koper.



