-
Aantal kamers
3 kamers
-
Aantal slaapkamers
2 slaapkamers
-
Bouwjaar
2007
-
Bouwvorm
bestaande bouw
-
Inhoud
202m3
-
Oppervlakte
69 m2
Nieuwe Haven 141 G 3117 AA SCHIEDAM
English version below.
Een modern, sfeervol 3 kamer appartement gelegen op de tweede verdieping met een schitterende zicht op en over de Nieuw Haven en het oude centrum van Schiedam.
Het appartement heeft een prettige vibe en ziet er strak onderhouden uit. Het appartementencomplex met lift is kleinschalig en wordt goed onderhouden door een actieve vereniging van eigenaren. Het appartement staat op eigen grond en ligt in een mooie locatie aan de rand van de haven en het oude centrum van Schiedam met zijn grachten en historische bebouwing.
Hippe tentjes zijn in de directe omgeving te vinden: Vlaams Broodhuys, Peachy Juicery,, Lucas Drinkwinkel aan de Grote Markt, maar ook andere gezellige pleintjes, terrasjes, leuke café's, theater aan de Schie, supermarkten. NS- en metrostation Schiedam-Centrum zijn binnen 5 minuten te bereiken, evenals de snelwegen A20, A15 en A4.
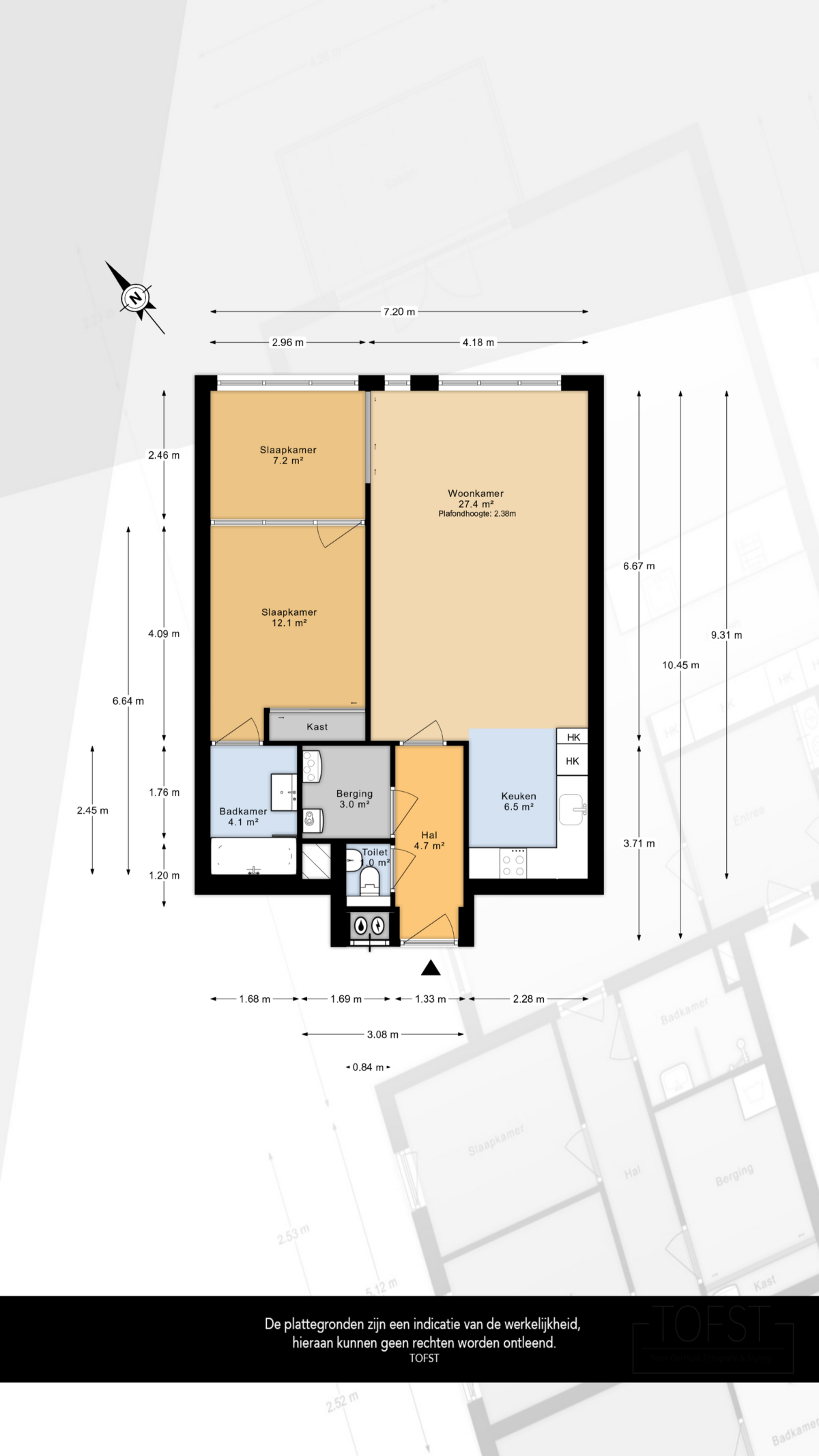
Indeling:
Afgesloten entree, bellen- en brievenbussentableau, lift en trappenhuis en toegang tot de bergingen.
1e verdieping:
Entree, hal, toilet met een handwasbakje. Sfeervolle lichte woonkamer van ca. 34m2 voorzien van een frans balkon en open keuken. Vanuit de woonkamer is een waanzinnig leuk en mooi zicht over de haven. De hoekkeuken (Bruynzeel) is voorzien van een combi-oven, inductiekookplaat, koelkast en apothekersladen. Naast de woonkamer bevindt zich een extra kamer van ca. 7,2m2. Deze kan als werkkamer worden gebruikt, maar ook bij de woonkamer worden getrokken. Slaapkamer van ca. 12,1m2 met een kastenwand. Moderne badkamer vernieuwd in 2021 en voorzien van ligbad/douchecombinatie, wastafelmeubel, radiator en mechanische afzuiging. Aan de voorzijde van het appartement is nog een praktische Cv-Wasruimte voorzien van de opstelling wasm.droger, cv ketel (2025) en WTW-unit. Hier is ook plek voor een vriezer. Modern vrijhangend toilet met een handwasbakje.
Berging:
Bij het appartement hoort een individuele berging gelegen op de begane grond van ca. 4m2.
Overige:
-Oplevering in overleg;
-CV Intergas uit 2025;
-Warmte terugwin-unit;
-VVE bijdrage € 202,- per maand.
-Videofooninstallatie in het appartement aanwezig;
-Energielabel A;
-Bouwjaar 2007;
-Glasvezel aanwezig;
-Woonoppervlakte 68,9m2 (nennorm 2580);
Deze informatie is door ons met de nodige zorgvuldigheid samengesteld. Onzerzijds wordt echter geen enkele aansprakelijkheid aanvaard voor enige onvolledigheid, onjuistheid of anderszins, dan wel de gevolgen daarvan. Alle opgegeven maten en oppervlakten zijn indicatief. Van toepassing zijn de NVM voorwaarden.
Toelichtingsclausule NEN2580
De Meetinstructie is gebaseerd op de NEN2580. De Meetinstructie is bedoeld om een meer eenduidige manier van meten toe te passen voor het geven van een indicatie van de gebruiksoppervlakte. De Meetinstructie sluit verschillen in meetuitkomsten niet volledig uit, door bijvoorbeeld interpretatieverschillen, afrondingen of beperkingen bij het uitvoeren van de meting. Indien de exacte maten voor een koper van cruciaal belang zijn, adviseren wij deze zelf na te meten.
Notariskeuze en kosten
In principe ligt de notariskeuze bij de koper. Het doorhalen van de hypothecaire inschrijving in het kadaster moet door de verkoper betaald worden. Zijn de kosten voor deze doorhaling hoger dan € 400,- inclusief BTW dan wordt het meerdere bij de koper in rekening gebracht. Indien de koper een notaris kiest buiten een straal van 20 kilometer van de verkochte onroerende zaak dan zijn de eventuele kosten die de notaris berekent voor een eventuele verkoopvolmacht ten behoeve van de verkoper voor rekening van de koper.
English below.
A modern, charming 3-room apartment located on the second floor with a magnificent view of the Nieuw Haven and Schiedam's old town center.
The apartment has a pleasant vibe and is neatly maintained. The apartment complex, with an elevator, is small and well-maintained by an active homeowners' association. The apartment is freehold and enjoys a beautiful location on the edge of the harbor and Schiedam's old town center, with its canals and historic buildings.
Trendy restaurants and cafes are nearby: Vlaams Broodhuys, Peachy Juicery, Lucas Drinkwinkel on the Grote Markt, as well as other charming squares, terraces, charming cafes, the theater aan de Schie, and supermarkets. Schiedam-Centrum train and metro station are within 5 minutes, as are the A20, A15, and A4 highways.
Layout:
Secure entrance, doorbells and mailboxes, elevator and stairwell, and access to the storage units. First floor:
Entrance hall, toilet with a sink. Cozy, bright living room of approximately 34m² with a French balcony and open-plan kitchen. The living room offers a wonderfully beautiful view of the harbor. The corner kitchen (Bruynzeel) is equipped with a combination oven, induction cooktop, refrigerator, and pantry drawers. Adjacent to the living room is an additional room of approximately 7.2m². This could be used as a study or integrated into the living room. Bedroom of approximately 12.1m² with a wall of wardrobes. Modern bathroom renovated in 2021 and equipped with a bath/shower combination, vanity unit, radiator, and mechanical ventilation. At the front of the apartment is a practical central heating/laundry room with the washer/dryer, central heating boiler (2025), and heat recovery unit. There is also space for a freezer. Modern wall-hung toilet with a sink.
Storage:
The apartment includes a private storage unit located on the ground floor of approximately 4m².
Other:
-Delivery date negotiable;
-Intergas central heating system from 2025;
-Heat recovery unit;
-Homeowners' Association (VVE) fee €202 per month.
-Video intercom system present in the apartment;
-Energy label A;
-Year of construction 2007;
-Fiber optic internet present;
-Living area 68.9m² (NEN standard 2580);
This information has been compiled with due care. However, we accept no liability for any incompleteness, inaccuracy, or otherwise, or the consequences thereof. All stated dimensions and surface areas are indicative. The NVM terms and conditions apply.
Explanatory clause NEN2580
The measurement instructions are based on NEN2580. The Measurement Instructions are intended to provide a more consistent measurement method for providing an indication of the usable area. The Measurement Instructions do not completely eliminate differences in measurement results, for example, due to differences in interpretation, rounding, or limitations in the measurement process. If exact measurements are crucial to a buyer, we recommend verifying them yourself.
Choice of Notary and Costs
In principle, the buyer is responsible for choosing the notary. Cancellation of the mortgage registration in the land registry must be paid by the seller. If the costs for this cancellation exceed €400 including VAT, the buyer will be charged the excess. If the buyer chooses a notary outside a 20-kilometer radius of the property sold, any costs charged by the notary for a potential power of attorney in favor of the seller will be borne by the buyer.



