-
Aantal kamers
5 kamers
-
Aantal slaapkamers
3 slaapkamers
-
Bouwjaar
1933
-
Bouwvorm
bestaande bouw
-
Inhoud
308m3
-
Oppervlakte
94 m2
Marconistraat 91 A 3112 EM SCHIEDAM
Een goed onderhouden, recent gemoderniseerde 6 kamer 3 laags bovenwoning met 2 balkons. De locatie van de woning is top, dichtbij het centrum, maar net er buiten en met een vrije ligging aan de voorzijde.
De woning is grotendeels in 2024/2025 vernieuwd:
-Nieuwe kozijnen, kunststof en aluminium met HR glas.
-Alle wanden en plafonds zijn gestuukt en gesausd.
-Nieuwe groepenkast 6 gr en 2 aardlekschakelaars
-Nieuwe toiletten
-Nieuwe badkamer modern uitgevoerd.
-De zolder was reeds voorzien van 2 dakramen en is geïsoleerd.
-Dak is voorzien van nieuwe dak- en panlatten, nieuwe pannen, ventilatie folie (2018).
-Mooie ruime woonkamer, grote slaapkamers. Mooie lichte woning, veel lichtinval.
De woning is mooi ruim, licht en heeft een prettige ambiance.
Locatie:
Het appartement met eigen grond heeft een ideale centrale ligging richting het centrum en openvervoer, tram/bus Koemarkt, 5 min van NS Station Schiedam. Hierdoor ben je in 5 min in Rotterdam en tevens snel in andere steden, zoals Den Haag of Amsterdam.
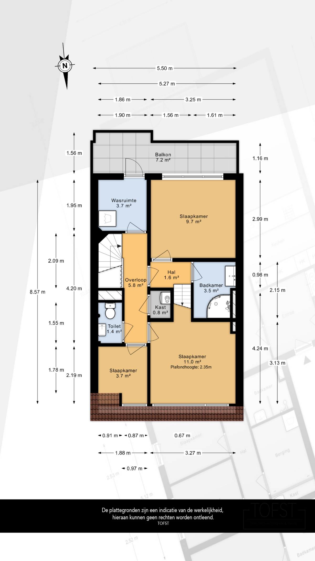
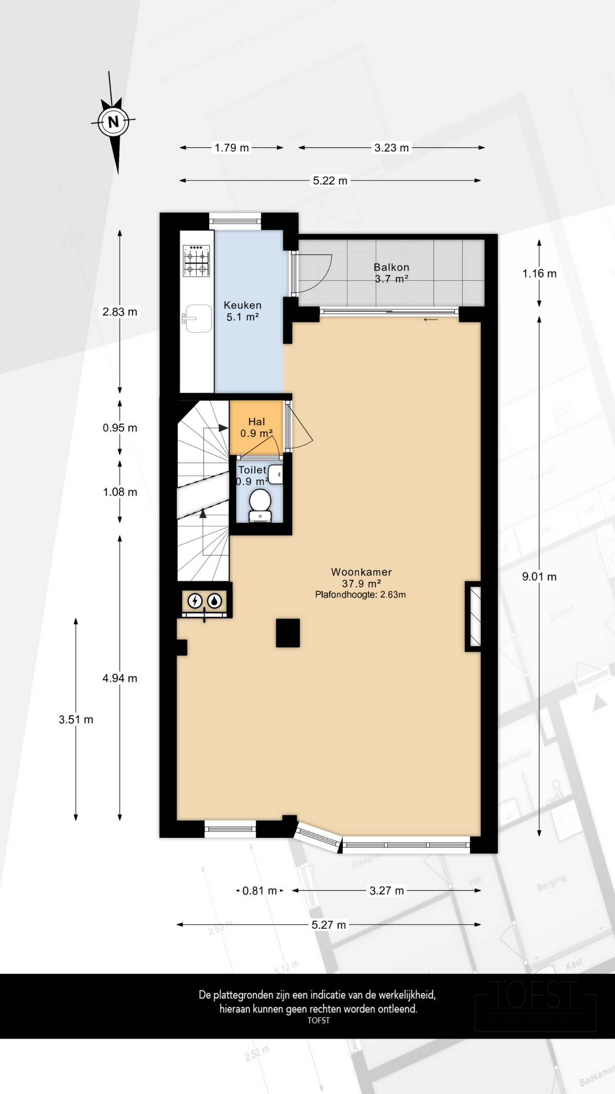
Indeling
Entree naar de woonverdieping (2e verdieping):
Hal met een toilet v.v. een handwasbakje. Sfeervolle ruime woonkamer met een erker van totaal ca. 38m2. Vanuit de woonkamer is een leuk vrij zicht aan de voorzijde. Aan de achterzijde kan je via de schuifpui en de keuken het balkon bereiken. Half open keuken aan de voorzijde van ca. 5,1m2. De keuken is voorzien van een oven, afzuigkap, gaskookplaat en een koelkast. Veel kastruimten en toegang naar het balkon.
Slaapverdieping (3e verdieping):
Overloop. Toilet met een handwasbakje. Wasruimte aan de achterzijde. Inbouwkast met cv ketel opstelling. Moderne badkamer voorzien van een wastafelmeubel en douchecabine.
Slaapkamer van ca. 11m2 aan de voorzijde. Kamer van ca. 3,7m2 aan de voorzijde. Slaapkamer van ca. 9,7m2 aan de achterzijde.
Zolderverdieping (4e verdieping)
Mooie grote slaapkamer/werkkamer met 2 dakramen (plafondhoogte van 2,43m). Door de verplichte nennorm 2580 meting zijn alle m2 onder de 1,5m niet meegenomen en is er 5,4m2 berekend. Deze kamer is feitelijk veel groter ca. 14m2.
Balkons:
Balkon aanwezig op de woonverdieping van ca. 3,7m2 en de slaapverdieping van 7,2m2.
VvE en bijdrage:
De VvE is geactiveerd door een professionele partij en bedraagt € 181,- per maand.
Inschrijving KVK - opstart notulen - opstalverzekering - zakelijke bankaccount
Overige:
-Er zijn 2 impressie foto's van de woonkamer met meubels.
-Oplevering kan per direct:
-Nieuwe kozijnen, kunststof en aluminium met HR glas.
-Alle wanden en plafonds zijn gestuukt en gesausd.
-Nieuwe groepenkast 6 gr en 2 aardlekschakelaars
-Nieuwe toiletten.
-Nieuwe badkamer modern uitgevoerd.
-De zolder was reeds voorzien van 2 dakramen en is geïsoleerd.
-Dak is voorzien van nieuwe dak- en panlatten, nieuwe pannen, ventilatie folie.
-Bouwjaar 1933;
-Vloeren zijn uit ca. 2020.
-CV ketel is uit ca. 2011 (Remeha Avanta)
-Ouderdoms-/asbestclausule van toepassing;
-Aangezien de verkoper het appartement niet zelf heeft bewoond, wordt er een niet zelf bewoond clausule in de koopakte opgenomen.
-Gebruiksoppervlakte wonen ca. 94m2 (Nennorm 2580).
-Voor de afmetingen en indeling verwijzen wij graag door naar de plattegronden;
Deze informatie is door ons met de nodige zorgvuldigheid samengesteld. Onzerzijds wordt echter geen enkele aansprakelijkheid aanvaard voor enige onvolledigheid, onjuistheid of anderszins, dan wel de gevolgen daarvan. Alle opgegeven maten en oppervlakten zijn indicatief. Van toepassing zijn de NVM voorwaarden.
Toelichtingsclausule NEN2580
De Meetinstructie is gebaseerd op de NEN2580. De Meetinstructie is bedoeld om een meer eenduidige manier van meten toe te passen voor het geven van een indicatie van de gebruiksoppervlakte. De Meetinstructie sluit verschillen in meetuitkomsten niet volledig uit, door bijvoorbeeld interpretatieverschillen, afrondingen of beperkingen bij het uitvoeren van de meting. Indien de exacte maten voor een koper van cruciaal belang zijn, adviseren wij deze zelf na te meten.
Notariskeuze en kosten
In principe ligt de notariskeuze bij de koper. Het doorhalen van de hypothecaire inschrijving in het kadaster moet door de verkoper betaald worden. Zijn de kosten voor deze doorhaling hoger dan € 400,- inclusief BTW dan wordt het meerdere bij de koper in rekening gebracht.
Indien de koper een notaris kiest buiten een straal van 20 kilometer van de verkochte onroerende zaak dan zijn de eventuele kosten die de notaris berekent voor een eventuele verkoopvolmacht ten behoeve van de verkoper voor rekening van de koper.



