-
Aantal kamers
3 kamers
-
Aantal slaapkamers
2 slaapkamers
-
Bouwjaar
1950
-
Bouwvorm
bestaande bouw
-
Inhoud
171m3
-
Oppervlakte
54 m2
Lorentzlaan 70 3112 KP SCHIEDAM
Starters opgelet!
Een super leuk, sfeervol recent gemoderniseerd 3 kamer benedenwoning met een tuin aan de voorzijde inclusief een houten berging. De woning heeft aan de achterzijde een vrije doorkijk en is de afgelopen 2 jaar gemoderniseerd en geoptimaliseerd.
-De keuken is in 2025 vernieuwd.
-Badkamer en toilet 2023
-Wanden zijn gestuukt en gesausd in 2023.
Bijzonderheden:
-De woning heeft een mooie lichtval, wordt netjes bewoond en ligt op een praktische locatie met alle voorzieningen in de nabijheid; buurtcentra, supermarkt, scholen, openbaar vervoer (NS station Schiedam). Ook het centrum van Schiedam is binnen 5 fiets minuten afstand te bereiken. Marconiplein is ook op 5 minuten afstand.
Het appartement maakt deel uit van een appartementencomplex met een lift en een actieve VvE € 128,- per maand.
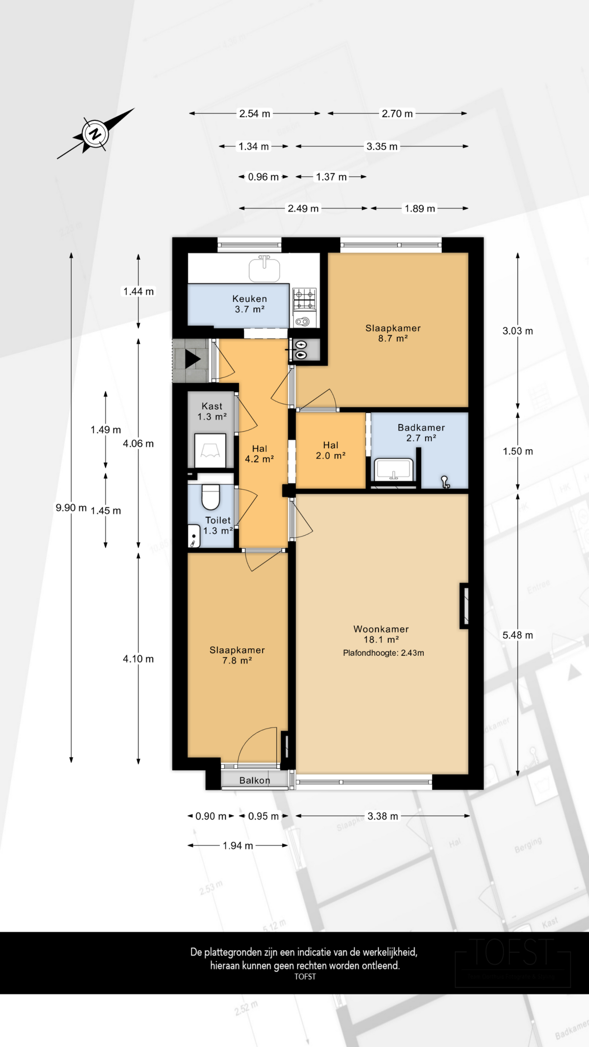
Indeling:
Entree, gang, praktische bergkast met veel voorraad/bergruimte en wasmachine opstelling. Toilet met een handwasbakje. Sfeervolle woonkamer van ca. 18,1m-2 met een mooie lichtinval en vrij zicht naar buiten. Slaapkamer van ca. 7,8m2 aan de achterzijde. Slaapkamer van ca. 8,7m2 aan de voorzijde. Moderne badkamer (2023) voorzien van een wastafelmeubel, inloopdouche en marmerlookwandtegels. Moderne keuken (2025) voorzien van een verlaagd plafond met ledverlichting, gaskookplaat, afzuigkap en een losse koelkast en vaatwasser. Toegang naar de tuin via de voorzijde.
Tuin
Leuke tuin aan de voorzijde van ca. 4m x 7m voorzien van een houten berging van ca. 5,6m2 en een achterom.
Overige:
- Oplevering in overleg, kan eventueel snel;
- CV HR Remeha uit 2017;
- Elektrische installatie is in 2023 gecontroleerd;
- Alle kozijnen zijn van kunststof met dubbelglas;
- Energielabel D 05-01-2033;
- VvE bijdrage € 128- per maand.
- In de toekomst zal er renovatie plaats vinden van de gevels.
- De woning staat op eigen grond
- Bouwjaar ca. 1950;
- De afmeting van de tuin is niet nennorm 2580 gemeten aangezien er geen plattegrond is.
- De woning is gelegen in een gebied waar opkoopbescherming van kracht is;
- Vanwege het bouwjaar wordt er een asbest- en ouderdomsclausule in de koopakte opgenomen;
- Woonoppervlakte 54m2 NEN2580.
Deze informatie is door ons met de nodige zorgvuldigheid samengesteld. Onzerzijds wordt echter geen enkele aansprakelijkheid aanvaard voor enige onvolledigheid, onjuistheid of anderszins, dan wel de gevolgen daarvan. Alle opgegeven maten en oppervlakten zijn indicatief. Van toepassing zijn de NVM voorwaarden.
Toelichtingsclausule NEN2580
De Meetinstructie is gebaseerd op de NEN2580. De Meetinstructie is bedoeld om een meer eenduidige manier van meten toe te passen voor het geven van een indicatie van de gebruiksoppervlakte. De Meetinstructie sluit verschillen in meetuitkomsten niet volledig uit, door bijvoorbeeld interpretatieverschillen, afrondingen of beperkingen bij het uitvoeren van de meting. Indien de exacte maten voor een koper van cruciaal belang zijn, adviseren wij deze zelf na te meten.
Notariskeuze en kosten
In principe ligt de notariskeuze bij de koper. Het doorhalen van de hypothecaire inschrijving in het kadaster moet door de verkoper betaald worden. Zijn de kosten voor deze doorhaling hoger dan € 400,- inclusief BTW dan wordt het meerdere bij de koper in rekening gebracht. Indien de koper een notaris kiest buiten een straal van 20 kilometer van de verkochte onroerende zaak dan zijn de eventuele kosten die de notaris berekent voor een eventuele verkoopvolmacht ten behoeve van de verkoper voor rekening van de koper.



