-
Aantal kamers
0 kamers
-
Aantal slaapkamers
0 slaapkamers
-
Bouwjaar
1990
-
Bouwvorm
bestaande bouw
-
Inhoud
m3
-
Oppervlakte
m2
Korte Haven 2 3111 BJ SCHIEDAM
Zoekt u een ruime garage met veel opslagruimte en kantoor/bergruimte op de 1e verdieping rond het centrum van Schiedam dan is dit uw kans.
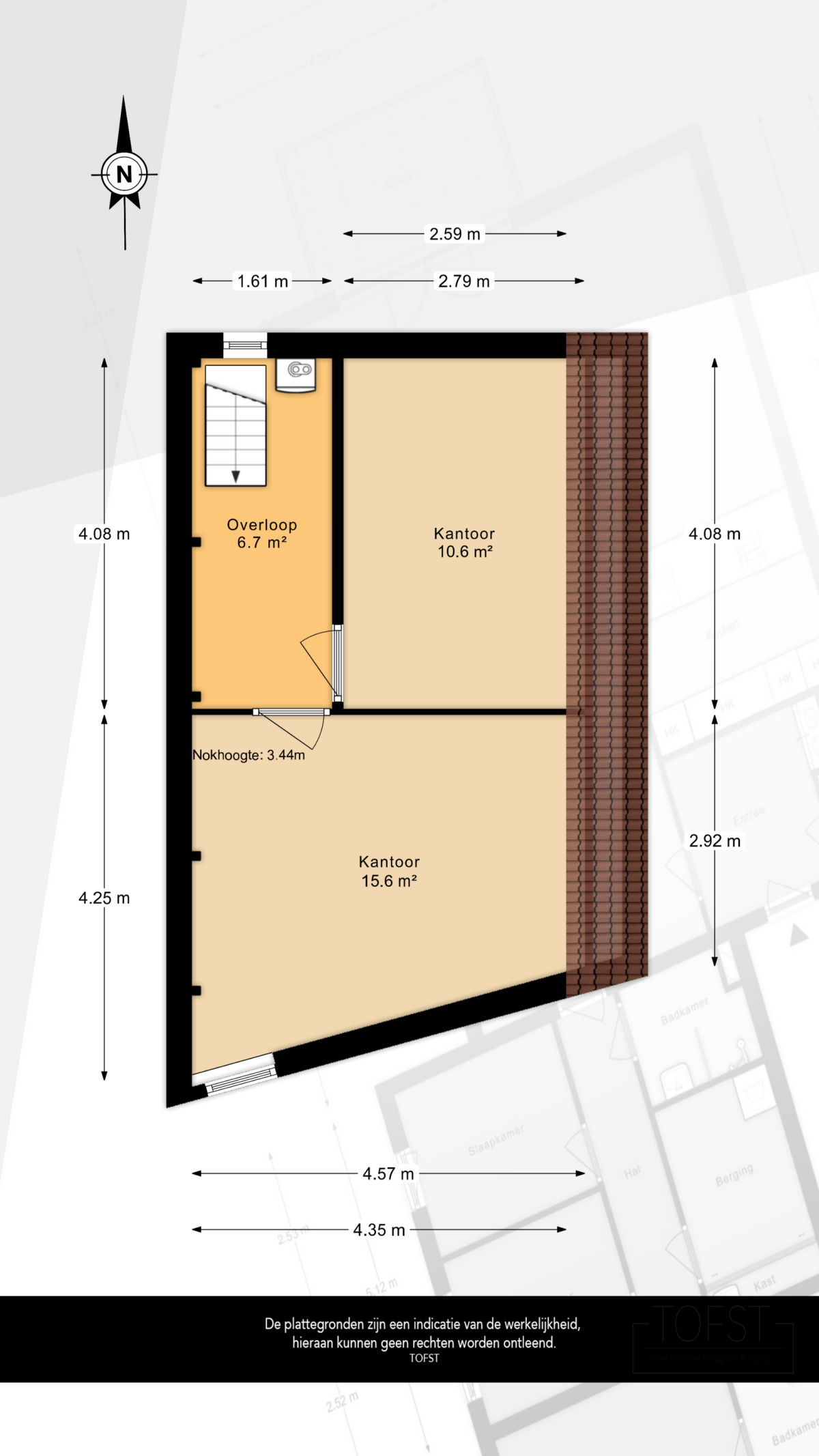
De garage is op de begane grond maar liefst 67m2 groot. Op de eerste verdieping is er nog ca. 34m2 aan gebruiksoppervlakte ingedeeld in een overloop, voorkamer en achterkamer.
Zelden staat zo'n garage te koop. Ideaal voor bedrijven en consumenten die hier naar op zoek zijn.
Aan de voorzijde is een loopdeur en een garagedeur met afmeting ca. 2.50m breed en 2.58m hoog.
Overige:
-Oplevering kan per direct.
-Bestemming is bedrijfsbestemming
-Combi cv ketel merk Nefit.
-Eigen grond
-VvE bijdrage van € 154,29 per maand.
-Gezien de leeftijd van het pand zal er een ouderdomsclausule en asbestclausule worden opgenomen in de koopovereenkomst.
Deze informatie is door ons met de nodige zorgvuldigheid samengesteld. Onzerzijds wordt echter geen enkele aansprakelijkheid aanvaard voor enige onvolledigheid, onjuistheid of anderszins, dan wel de gevolgen daarvan. Alle opgegeven maten en oppervlakten zijn indicatief. U kunt indien gewenst de garage voor het tekenen van de koopakte zelf inmeten en controleren.
Notariskeuze en kosten
In principe ligt de notariskeuze bij de koper. Het doorhalen van de hypothecaire inschrijving in het kadaster moet door de verkoper betaald worden. Zijn de kosten voor deze doorhaling hoger dan € 400,- inclusief BTW dan wordt het meerdere bij de koper in rekening gebracht.
Indien de koper een notaris kiest buiten een straal van 20 kilometer van de verkochte onroerende zaak dan zijn de eventuele kosten die de notaris berekent voor een eventuele verkoopvolmacht ten behoeve van de verkoper voor rekening van de koper.



