-
Aantal kamers
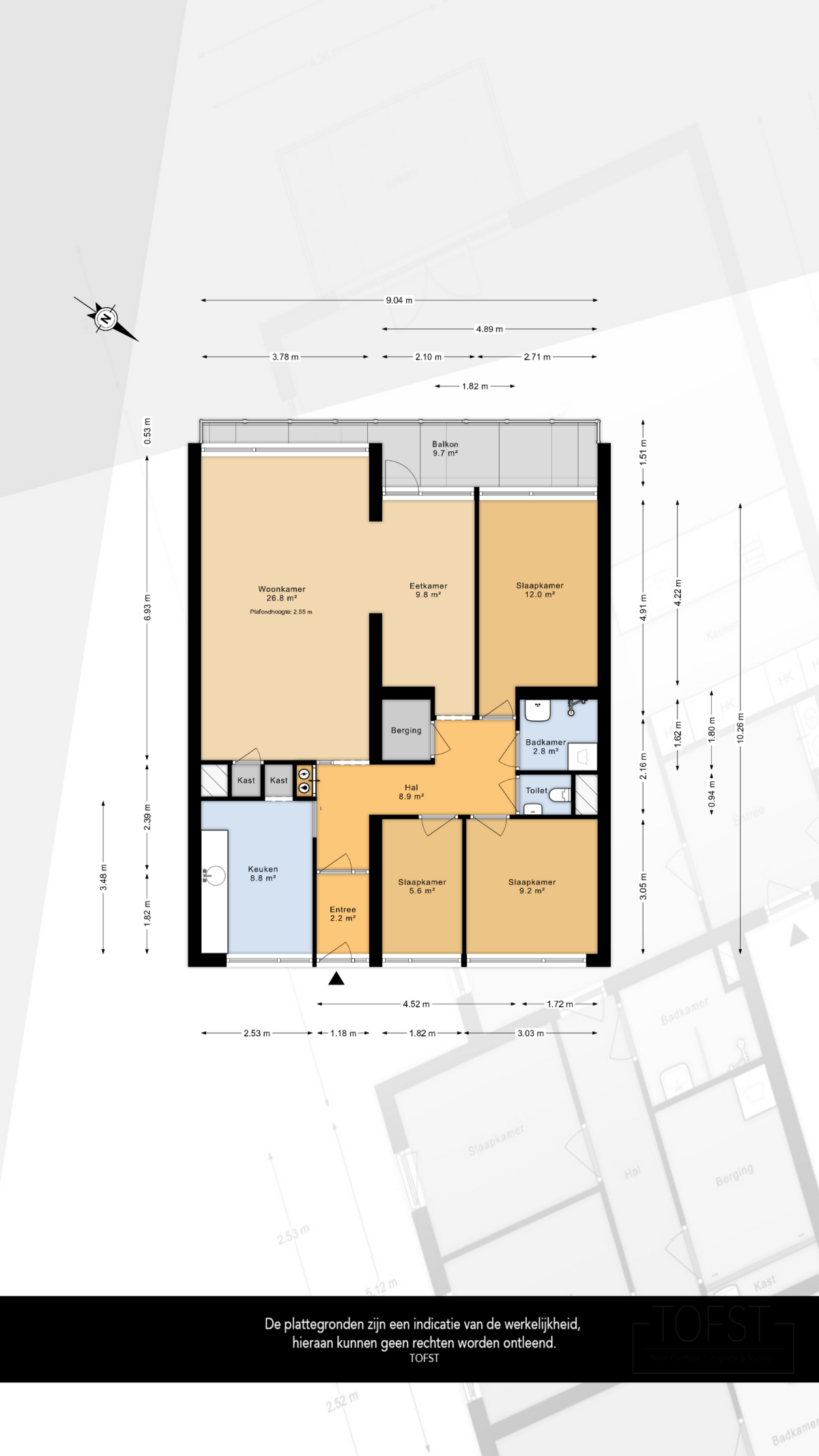
5 kamers
-
Aantal slaapkamers
4 slaapkamers
-
Bouwjaar
1970
-
Bouwvorm
bestaande bouw
-
Inhoud
297m3
-
Oppervlakte
97 m2
Griegplein 163 - 3122 VN SCHIEDAM
English version below:
Ruim 5 kamer appartement gelegen op de 7e verdieping. Dit ruime appartement is voorzien van een nette eenvoudige keuken en sanitair. Het uitzicht vanaf de 7e verdieping is bijzonder weids! De woning ligt in een goed onderhouden appartementencomplex (met een actieve VVE) welke voorzien is van meerdere liften. Aan het complex ligt een grote groenstrook, waardoor de ligging erg beschut is en het uitzicht erg fraai. De ligging Schiedam-Groenoord is erg centraal t.o.v. openbaar vervoer, winkels en de diverse uitvalswegen.
INDELING
Begane grond:
Afgesloten entree, bellen-brievenbussentableau, entree tot bergingen, liften, trappenhuis.
7e verdieping:
Entree, lange gang met ruime bergkast met boileropstelling. Ruime dichte keuken met een nette eenvoudige opstelling. Riante lichte woonkamer van ca. 27m2. De woonkamer is vergroot doordat de zijkamer van ca. 10m2 er bijgetrokken is. Hier is weer een aparte slaapkamer van te maken. Vanuit deze kamer is er toegang tot het balkon. Hoofdslaapkamer van ca. 12m2 gelegen aan de balkonzijde. Slaapkamer van ca. 6m2 en slaapkamer van ca. 9m2 gelegen aan de galerijzijde. Separaat toilet voorzien van fonteintje. Badkamer voorzien van wastafel, radiator, wasmachineaansluiting en een inloopdouche.
Balkon:
Ruim balkon van ca. 9m2 gelegen op het westen.
Bijzonderheden:
-Er wordt een as is where is clausule en een asbestclausule in de koopakte opgenomen;
-Er wordt een niet zelf bewoond clausule opgenomen in de koopakte;
-Het appartement is gelegen in Groenoord en maakt onderdeel uit van het plan "Nieuwe Energie voor Groenoord".
Bijzonderheden:
-Oplevering in overleg, kan snel;
-Verwarming middels blokverwarming en warmwater middels een boiler;
-Bouwjaar 1970
-Actieve VVE met een maandelijkse bijdrage van 243 euro + 100 euro stookkosten
-Eigen grond;
-Gebruiksoppervlakte: 96.7m² (NEN2580)
-Inhoud 297.2m³ (NEN2580)
Deze informatie is door ons met de nodige zorgvuldigheid samengesteld. Onzerzijds wordt echter geen enkele aansprakelijkheid aanvaard voor enige onvolledigheid, onjuistheid of anderszins, dan wel de gevolgen daarvan. Alle opgegeven maten en oppervlakten zijn indicatief. Van toepassing zijn de NVM voorwaarden.
Toelichtingsclausule NEN2580
De Meetinstructie is gebaseerd op de NEN2580. De Meetinstructie is bedoeld om een meer eenduidige manier van meten toe te passen voor het geven van een indicatie van de gebruiksoppervlakte. De Meetinstructie sluit verschillen in meetuitkomsten niet volledig uit, door bijvoorbeeld interpretatieverschillen, afrondingen of beperkingen bij het uitvoeren van de meting. Indien de exacte maten voor een koper van cruciaal belang zijn, adviseren wij deze zelf na te meten.
Notariskeuze en kosten
Indien de koper een notaris kiest buiten een straal van 20 kilometer van de verkochte onroerende zaak dan zijn de eventuele kosten die de notaris berekent voor een eventuele verkoopvolmacht ten behoeve van de verkoper voor rekening van de koper.
English version:
Spacious 5-room apartment located on the 7th floor. This generously sized apartment features a neat, simple kitchen and sanitary facilities. The view from the 7th floor is exceptionally wide and open! The property is situated in a well-maintained apartment complex (with an active homeowners’ association) equipped with multiple elevators. Adjacent to the complex is a large green area, providing a sheltered setting and a pleasant view. The location in Schiedam-Groenoord is very central in relation to public transport, shops, and various main roads.
LAYOUT
Ground floor:
Secured entrance, doorbell and mailbox panel, access to storage units, elevators, and stairwell.
7th floor:
Entrance, long hallway with a spacious storage cupboard housing the boiler. Spacious closed kitchen with a neat, simple layout. Generous and bright living room of approximately 27m². The living room has been enlarged by incorporating the adjacent room of approximately 10m². This space can easily be converted back into a separate bedroom. From this room, there is access to the balcony. Master bedroom of approximately 12m² located on the balcony side. Bedroom of approximately 6m² and bedroom of approximately 9m² located on the gallery side. Separate toilet with small sink. Bathroom equipped with washbasin, radiator, washing machine connection, and walk-in shower.
Balcony:
Spacious balcony of approximately 9m² facing west.
Particulars:
-An “as is, where is” clause and an asbestos clause will be included in the purchase agreement;
-A non-owner-occupied clause will be included in the purchase agreement;
-The apartment is located in Groenoord and is part of the plan “Nieuwe Energie voor Groenoord”.
Details:
-Transfer in consultation, can be quick;
-Heating via block heating system and hot water via boiler;
-Year of construction: 1970;
-Active homeowners’ association with a monthly contribution of €243 plus €100 advance heating costs;
-Freehold property;
-Usable living area: 96.7m² (NEN2580);
-Volume: 297.2m³ (NEN2580).
This information has been compiled by us with due care. However, we accept no liability for any incompleteness, inaccuracy, or otherwise, nor for the consequences thereof. All stated measurements and surface areas are indicative. NVM conditions apply.
Explanatory clause NEN2580
The Measurement Instruction is based on the NEN2580 standard. The Measurement Instruction is intended to apply a more uniform method of measuring to provide an indication of the usable floor area. The Measurement Instruction does not completely exclude differences in measurement outcomes, for example due to differences in interpretation, rounding, or limitations during the measurement process. If exact measurements are of crucial importance to a buyer, we advise measuring the property independently.
Choice of notary and costs
If the buyer selects a notary located more than 20 kilometers from the sold property, any additional costs charged by the notary for a potential power of attorney for the seller will be borne by the buyer.



