-
Aantal kamers
5 kamers
-
Aantal slaapkamers
4 slaapkamers
-
Bouwjaar
2006
-
Bouwvorm
bestaande bouw
-
Inhoud
632m3
-
Oppervlakte
170 m2
Gerardus Blankenheymstraat 2, 3117 ZA Schiedam
Een royale 2 onder 1 kapwoning uit 2006 met een gebruiksoppervlakte van 170m2, een garage en een oprit voor 2 auto's. De woning heeft 20 zonnepanelen en mede daardoor energielabel A+. Deze sfeervolle 5 kamer woning kenmerkt zich door zijn royale living ca. 64m2, luxe moderne uitvoering, grote slaapkamers en heeft een unieke riante zolderverdieping met een eigen badkamer en walk in closet. De ligging in deze kindvriendelijke wijk is ideaal ten opzichte van scholen, openbaar vervoer (metro, bus), Harga sportpark en speelweiden. Binnen 3 minuten zit u op de snelwegen A4 en A20 of pakt u de Metro.
Indeling
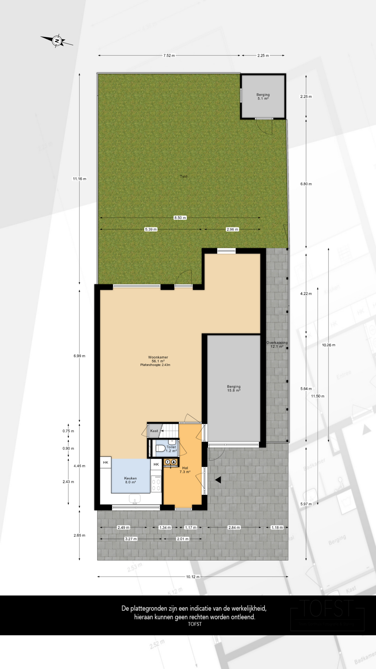
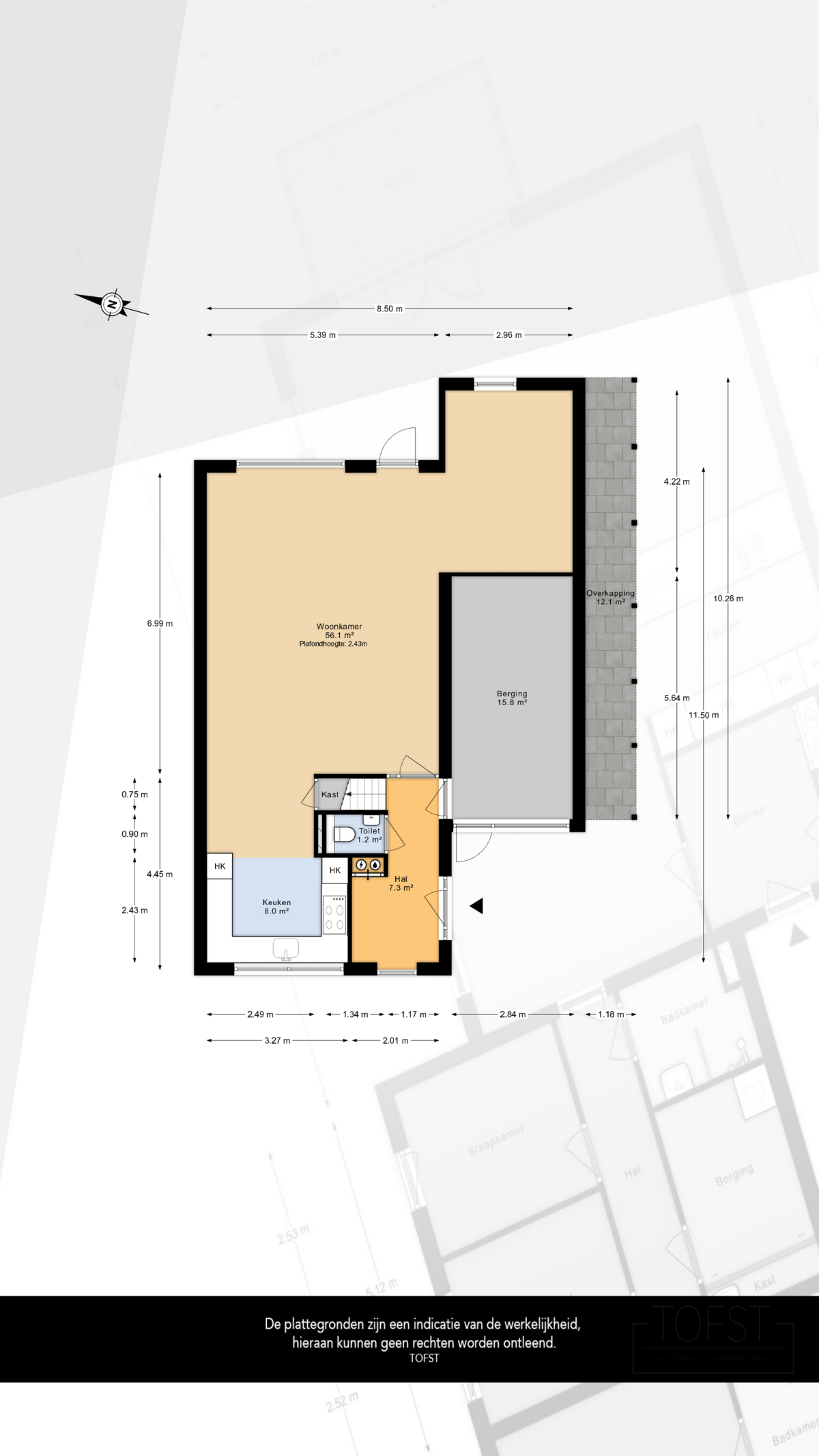
Begane grond
Entree, gang, vrij hangend toilet met fonteintje. Via de hal is tevens de garage te bereiken. Royale living van ca.64m2. De living heeft een speels en breed formaat met een mooie lichtinval en is voorzien van vloerverwarming en grenst aan een ruime zijkamer, ideaal om in te richten als speelkamer voor de kinderen, tv- kantoorruimte. De open keuken bevindt zich aan de voorzijde. kantoor ruimte en een half open luxe keuken U-vorm aan de voorzijde. De keuken is voorzien van veel kastruimten, een inductie kookplaat, rvs afzuigkap, vaatwasser en een Amerikaanse koelkast. Naast de keuken bevindt zich een trapkast, erg praktisch voor o.a. provisie.
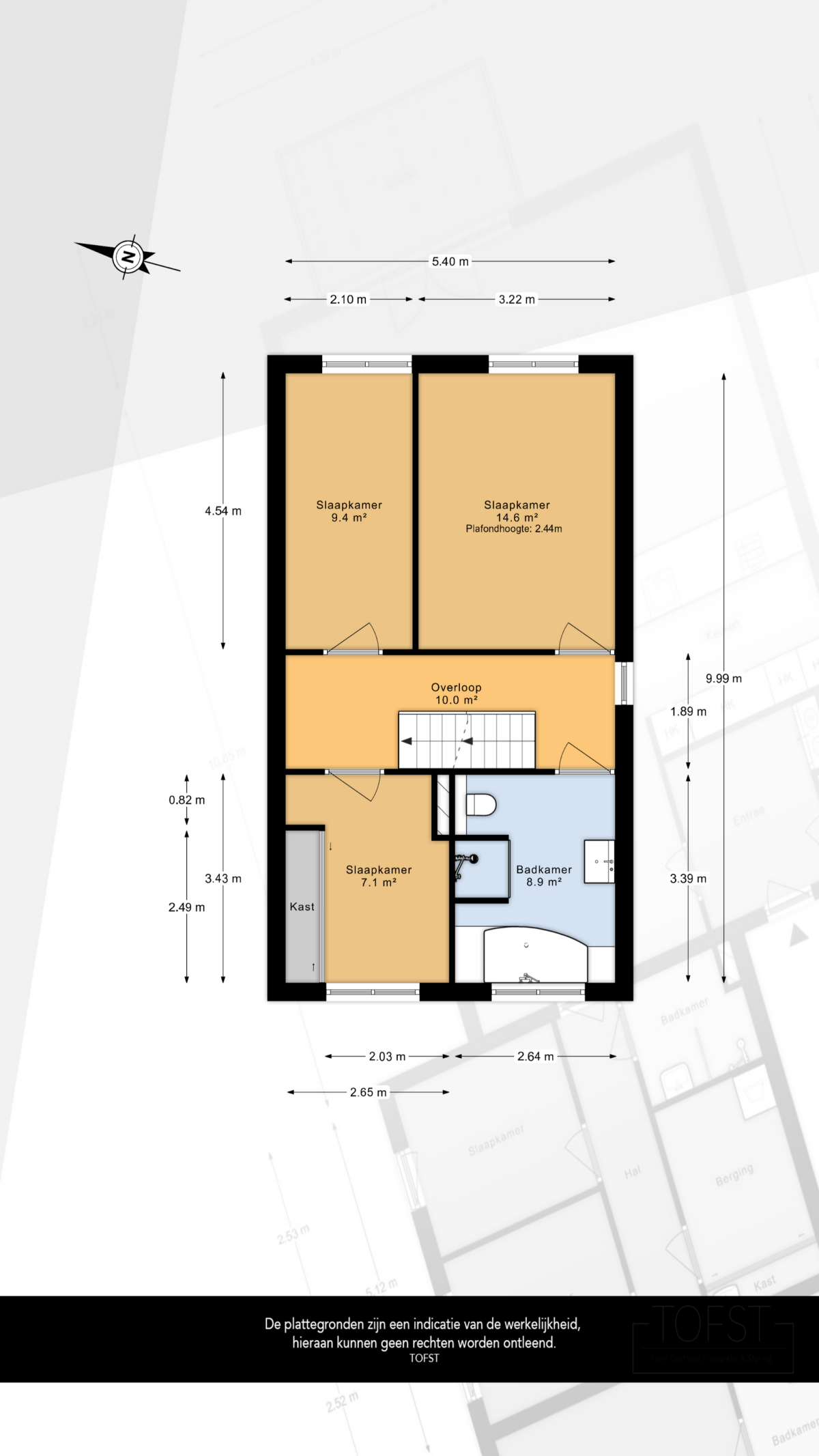
1e verdieping:
Overloop. Voorslaapkamer van ca. 9m2 voorzien van een kastenwand. Twee slaapkamers gelegen aan de achterzijde van respectievelijk ca. 14,6m en ca. 9,4m2. Modern uitgevoerde badkamer voorzien van een wastafelmeubel, ligbad, toilet en een douche.
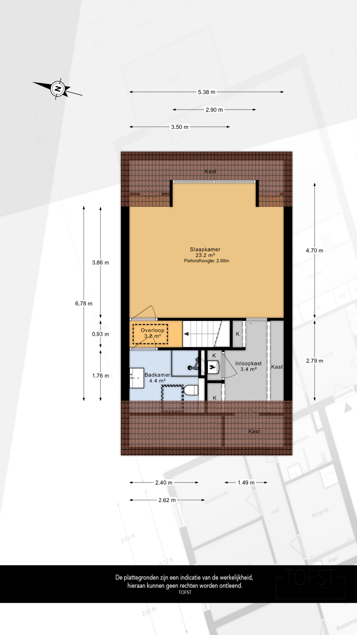
2e verdieping:
Overloop. Royale slaapkamer van ca. 23,2m2 met een dakkapel en toegang naar een walk in closet met extra kastruimten en opstelling cv ketel. Moderne 2e badkamer voorzien van een vrijhangend toilet, wastafelmeubel, designradiator en een dakraam. Vanuit de overloop is ook de toegang naar een praktische bergvliering met een nokhoogte van ca. 1.67m.
Onder het dakvlak is nog meer bergruimten. De zolderverdieping is door zijn grote ruimte en eigen badkamer ideaal te gebruiken voor tieners, ouders en of gasten.
Vliering:
Via de overloop op de 2e verdieping is middels een vlizotrap de vliering te bereiken. Deze vliering is ruim 10m2.
Garage
Praktische (voormalige)garage/kantoor van ca. 15,8m2 (5,64m x 2,84m) voorzien van veel bergruimte. De garage is van zowel binnen als buiten te bereiken, is voorzien van elektra en heeft een loopdeur.
Tuin
De royale achtertuin is ca. 11,2m diep en ca. 10m breed voorzien van een groot terras, borders, houten schuttingen, chaletberging van ca. 5,1m2 en een achterom. Naast de woning bevindt zich nog een riante overkapping van ca. 10m diep en 1,18m breed. De voortuin is geschikt voor het plaatsen van 2 auto's.
Overige:
-Oplevering in overleg.
-Energielabel A+ t/m 10 juli 2035;
-Gelegen op afgekochte erfpachtgrond t/m 28-02-2055 (einddatum recht 28-02-2104);
-Bouwjaar 2006;
-Verwarming en warm water middels CV uit 2020 ATAG;
-20 zonnepanelen;
-Gebruiksoppervlakte wonen: 169,6m2 (NEN2580);
-Gebruiksoppervlakte inpandige bergruimte: Garage/kantoor 15,8m2. (NEN2580);
-Inhoud 632,4m3 (NEN2580);
-Perceeloppervlakte 270m2 (Kadaster).
Deze informatie is door ons met de nodige zorgvuldigheid samengesteld. Onzerzijds wordt echter geen enkele aansprakelijkheid aanvaard voor enige onvolledigheid, onjuistheid of anderszins, dan wel de gevolgen daarvan. Alle opgegeven maten en oppervlakten zijn indicatief. Van toepassing zijn de NVM voorwaarden.
Toelichtingsclausule NEN2580
De Meetinstructie is gebaseerd op de NEN2580. De Meetinstructie is bedoeld om een meer eenduidige manier van meten toe te passen voor het geven van een indicatie van de gebruiksoppervlakte. De Meetinstructie sluit verschillen in meetuitkomsten niet volledig uit, door bijvoorbeeld interpretatieverschillen, afrondingen of beperkingen bij het uitvoeren van de meting. Indien de exacte maten voor een koper van cruciaal belang zijn, adviseren wij deze zelf na te meten.
Notariskeuze en kosten
In principe ligt de notariskeuze bij de koper. Het doorhalen van de hypothecaire inschrijving in het kadaster moet door de verkoper betaald worden. Zijn de kosten voor deze doorhaling hoger dan € 400,- inclusief BTW dan wordt het meerdere bij de koper in rekening gebracht. Indien de koper een notaris kiest buiten een straal van 20 kilometer van de verkochte onroerende zaak dan zijn de eventuele kosten die de notaris berekent voor een eventuele verkoopvolmacht ten behoeve van de verkoper voor rekening van de koper.



