-
Aantal kamers
4 kamers
-
Aantal slaapkamers
3 slaapkamers
-
Bouwjaar
1959
-
Bouwvorm
bestaande bouw
-
Inhoud
354m3
-
Oppervlakte
95 m2
Fazantlaan 14 - 3121 XC SCHIEDAM
PLAN NU ZELF JE BEZICHTIGING IN!
Vul via Funda de bezichtigingsaanvraag in --> ontvang direct een mail --> klik vervolgens op de link en plan de afspraak in.
Riante 4 kamer eengezinswoning met ruime voor- en achtertuin gelegen op EIGEN GROND. De woning beschikt over een aanbouw waar de keuken gesitueerd is en beschikt daarnaast over veel bergruimte en 3 slaapkamers. De woning is voorzien van 10 zonnepanelen, heeft een warmtepomp, warmtepomp boiler, voornamelijk HR+++ glas en vloerisolatie. De ligging is perfect, in een rustige, groene woonwijk op loopafstand van het winkelcentrum 'Hof van Spaland' en het Beatrixpark met al zijn voorzieningen. Een tweetal basisscholen, kinderopvang en openbaar vervoer bevinden zich eveneens op loopafstand. Via de uitvalswegen bent u binnen 5 minuten op de A4, de A20 en de A15.
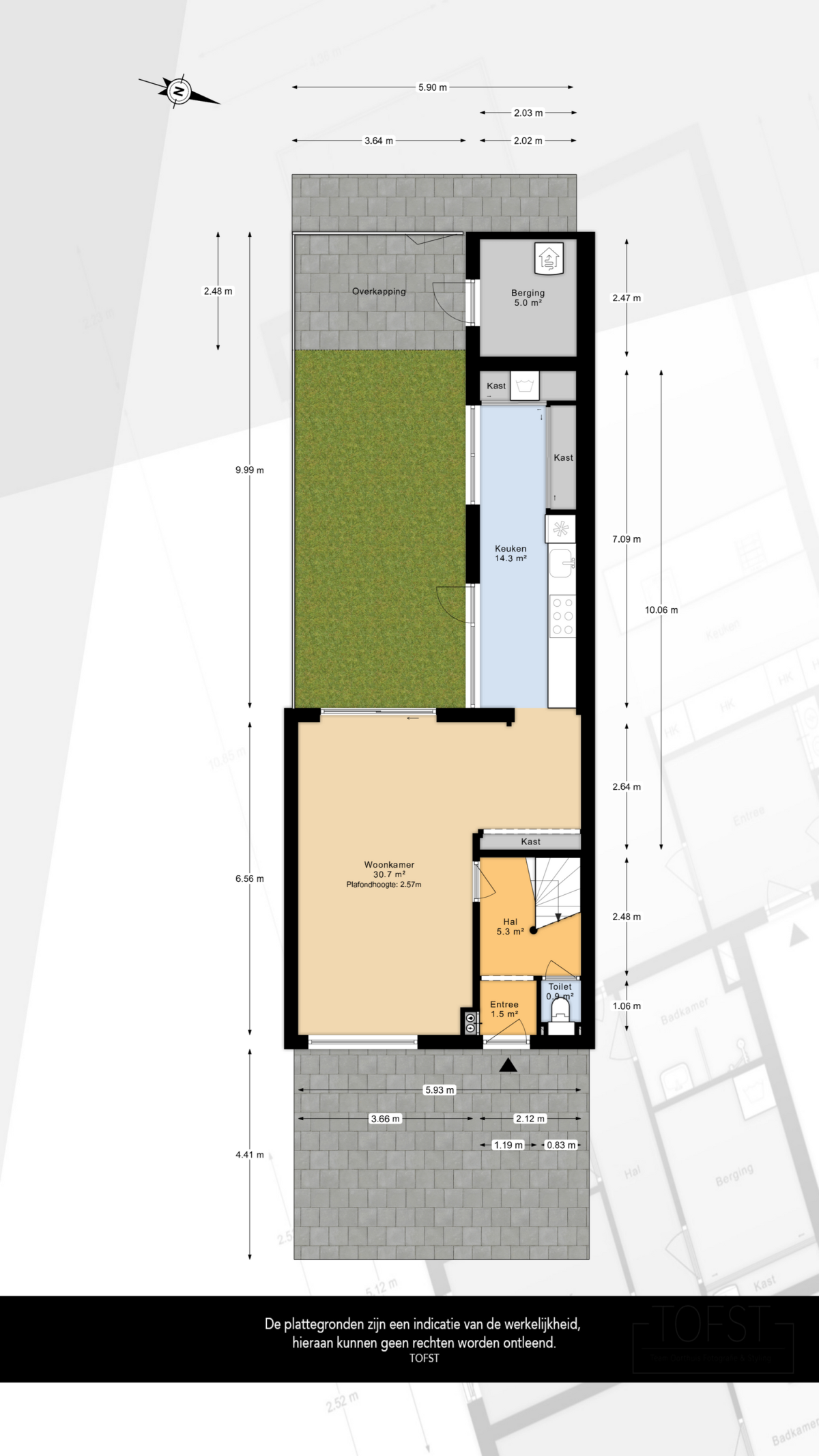
Begane grond:
Entree, hal, meterkast, modern uitgevoerd toilet, trapopgang naar de slaapverdieping. Schitterend ruime woonkamer met in het verlengde de keuken van tezamen meer dan 45m2. Het woongedeelte is voorzien van een fraaie houten vloer en geeft middels een schuifpui toegang tot de tuin. Het keuken gedeelte is voorzien van een tegelvloer en beschikt over een modern keukenblok met de navolgende apparatuur: koel/vrieskast, afzuigkap, gasfornuis en een vaatwasser. De keuken heeft vaste kasten en een kast met de wasmachine-aansluiting.
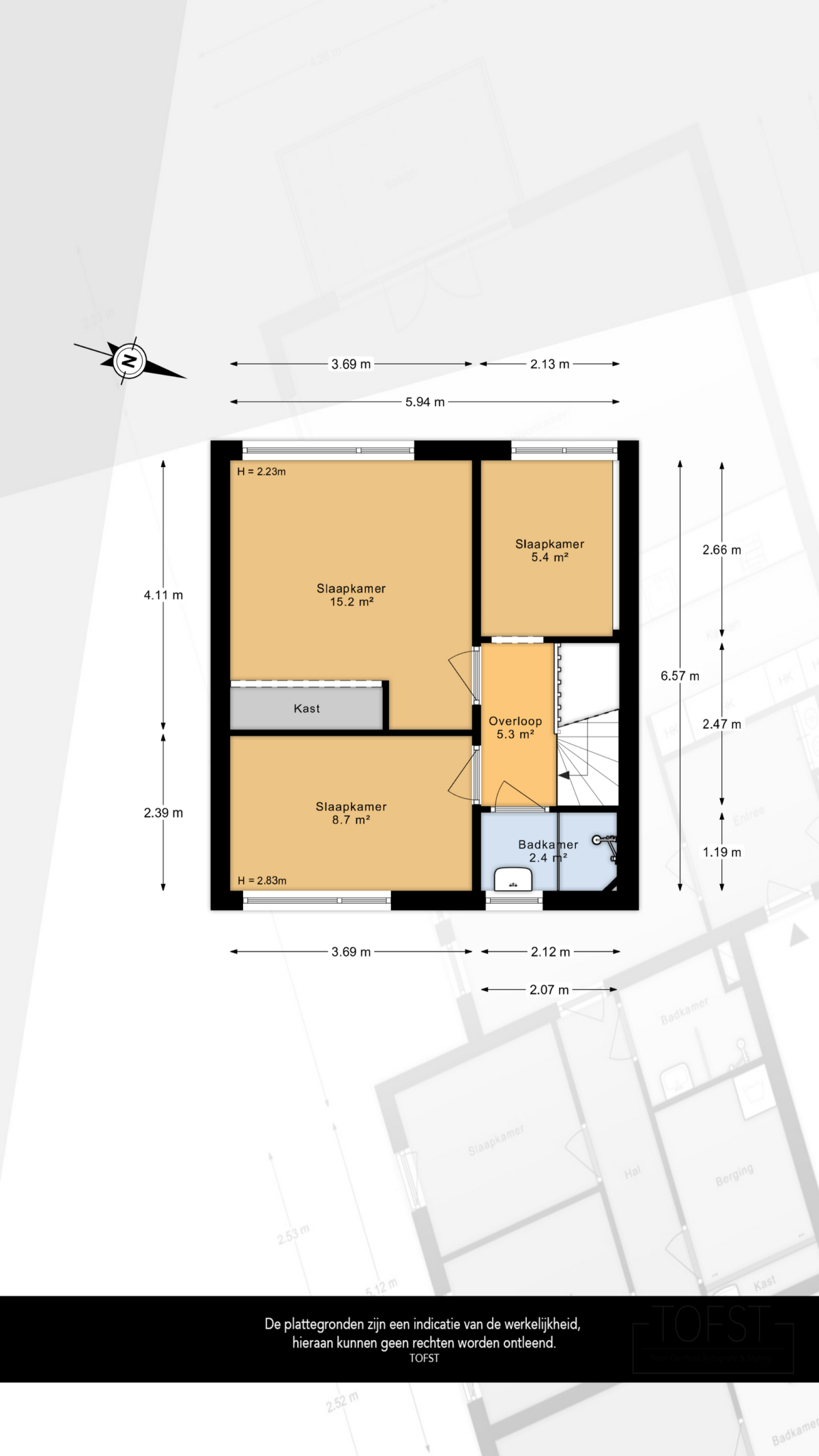
1e verdieping:
Overloop, riante hoofdslaapkamer van ruim 15m2. Slaapkamer II van 5.4m2. Beide kamers liggen aan de achterzijde. De slaapkamer van bijna 9m2 bevindt zich aan de voorzijde, evenals de badkamer. De badkamer heeft middels een raam natuurlijk licht (en ventilatie) en is tevens voorzien van een waskom met meubel, spiegel, radiator en douchehoek.
Tuin:
De riante voortuin van ca. 4.40m x 5.90m heeft meer dan voldoende ruimte voor een extra zitje en of ruimte voor fietsen. De achtertuin is sfeervol aangelegd en ca. 12.50 meter diep (vanaf de gevel). De tuin heeft nieuwe schuttingen, een overkapping en een achterom. De aangebouwde berging is voorzien van de warmtepomp. Met de ligging op het westen zijn meer dan genoeg zonnige momenten!
Overige:
-Oplevering in overleg;
-Bouwjaar 1959;
-HR cv-ketel uit 2018, Remeha elga ace warmtepomp (2024) voor het verwarmen;
-Remeha warmtepompboiler (2025) voor het douchen;
-Mitsubishi airco met 2 binnenunits ( uit te breiden naar 4 binnen units);
-Gelegen op eigen grond;
-Grotendeels HR+++ glas aanwezig (en anders HR++);
-Ouderdomsclausule en asbestclausule van toepassing;
-Vloerisolatie aanwezig;
-Gebruiksoppervlakte 94.5m2 (NEN2580);
-Inhoud 354m3 (NEN2580);
-Perceel oppervlakte 142 m2 (Kadaster)
Deze informatie is door ons met de nodige zorgvuldigheid samengesteld. Onzerzijds wordt echter geen enkele aansprakelijkheid aanvaard voor enige onvolledigheid, onjuistheid of anderszins, dan wel de gevolgen daarvan. Alle opgegeven maten en oppervlakten zijn indicatief. Van toepassing zijn de NVM voorwaarden.
Toelichtingsclausule NEN2580 De Meetinstructie is gebaseerd op de NEN2580. De Meetinstructie is bedoeld om een meer eenduidige manier van meten toe te passen voor het geven van een indicatie van de gebruiksoppervlakte. De Meetinstructie sluit verschillen in meetuitkomsten niet volledig uit, door bijvoorbeeld interpretatieverschillen, afrondingen of beperkingen bij het uitvoeren van de meting. Indien de exacte maten voor een koper van cruciaal belang zijn, adviseren wij deze zelf na te meten.
Notariskeuze en kosten In principe ligt de notariskeuze bij de koper. Het doorhalen van de hypothecaire inschrijving in het kadaster moet door de verkoper betaald worden. Zijn de kosten voor deze doorhaling hoger dan € 400,- inclusief BTW dan wordt het meerdere bij de koper in rekening gebracht. Indien de koper een notaris kiest buiten een straal van 20 kilometer van de verkochte onroerende zaak dan zijn de eventuele kosten die de notaris berekent voor een eventuele verkoopvolmacht ten behoeve van de verkoper voor rekening van de koper.



