-
Aantal kamers
4 kamers
-
Aantal slaapkamers
3 slaapkamers
-
Bouwjaar
1968
-
Bouwvorm
bestaande bouw
-
Inhoud
257m3
-
Oppervlakte
83 m2
Dirk Schäferplein 126 - 3122 EE SCHIEDAM
4-kamer appartement met zonnig balkon en eigen berging. De woning ligt op de 4e verdieping en het complex is voorzien van een lift. Op zoek naar een ruim appartement en hou je van klussen? Het ruime balkon op het zuiden ligt aan een groenstrook. De ligging in Groenoord is centraal ten opzichte van winkels, scholen en openbaar vervoer.
Begane grond:
Afgesloten entree, bellen, brievenbussen, lift, toegang tot bergingen.
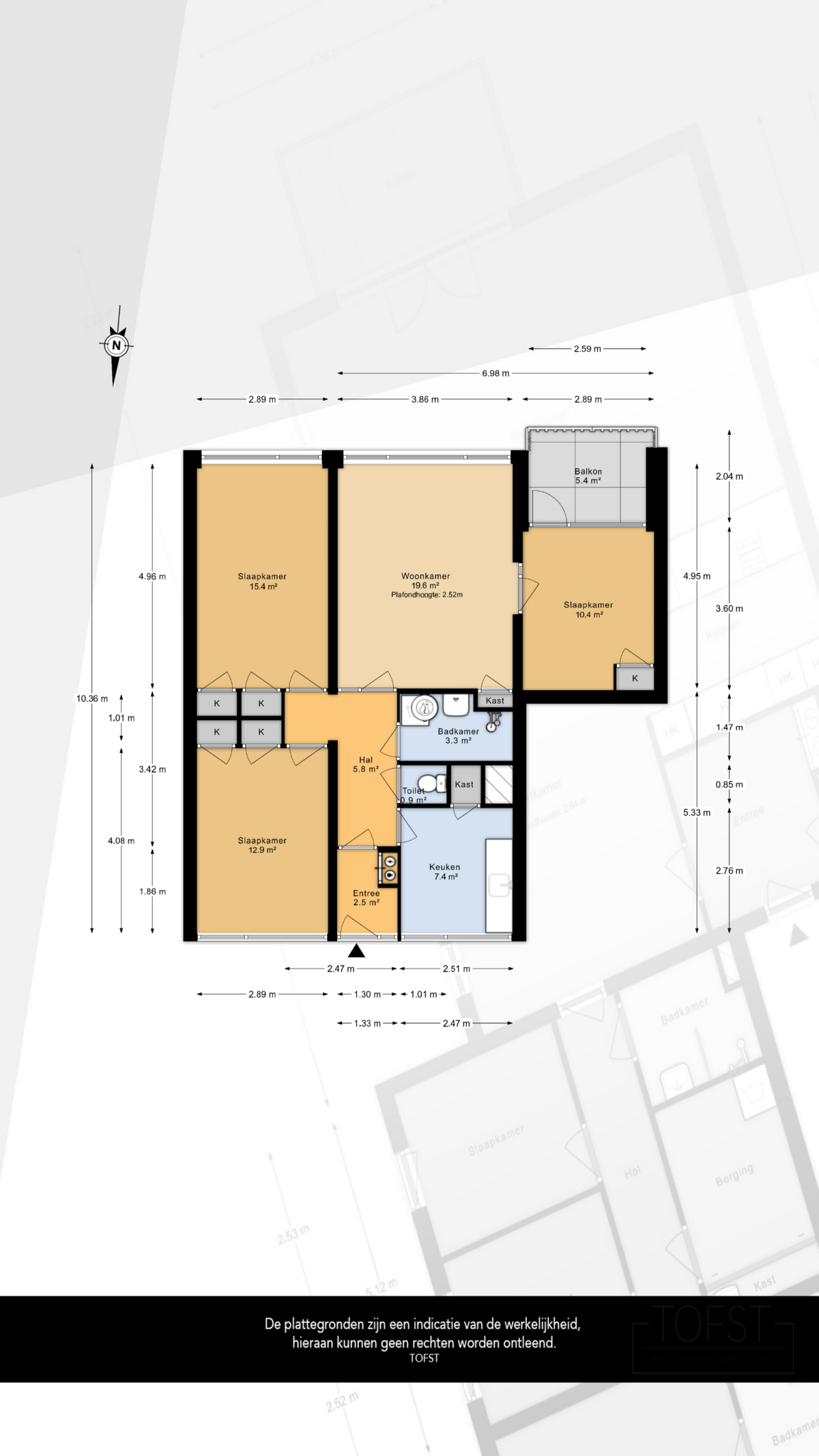
4e verdieping:
Entree appartement, hal, meterkast, aparte keuken met eenvoudig keukenblok, vaste kast en boiler. Separaat toilet. Badkamer met douche wastafel en wasmachineaansluiting. 3 ruime slaapkamers van respectievelijk 15.4m2, 10.4m2 en 12.9m2. De 'midden' slaapkamer geeft toegang tot het balkon. De woonkamer is bijna 20m2.
Balkon:
Riant balkon van meer dan 5m2 gelegen op het zuiden.
Berging:
Eigen berging op de begane van ca. 5m2.
Bijzonderheden:
- Projectnotaris: Van der Valk Netwerk Notarissen;
- Zelfbewoningsplicht;
- As is where is clausule van toepassing;
- Verkoop regulerend beding van toepassing;
- Ouderdomsclausule van toepassing;
- Asbestclausule van toepassing;
- Verkoper heeft woning zelf nooit bewoond, dit wordt specifiek in de koopakte genoemd.
Overige:
-Oplevering in overleg, kan snel;
-Bouwjaar 1965;
-Recht van erfpacht tot 1 juli 2064, erfpachtcanon afgekocht tot 1 juli 2040;
-Grotendeels voorzien van dubbel glas;
-VVE bijdrage van € 331,76 euro incl. voorschot stookkosten (woning) € 19,88 euro (berging);
-Warmwater middels boiler en verwarming via blokverwarming;
-Gebruiksoppervlakte 82.9m2 (NEN2580);
-Inhoud 256.6m3 (NEN2580);
Deze informatie is door ons met de nodige zorgvuldigheid samengesteld. Onzerzijds wordt echter geen enkele aansprakelijkheid aanvaard voor enige onvolledigheid, onjuistheid of anderszins, dan wel de gevolgen daarvan. Alle opgegeven maten en oppervlakten zijn indicatief. Van toepassing zijn de NVM voorwaarden.
Toelichtingsclausule NEN2580
De Meetinstructie is gebaseerd op de NEN2580. De Meetinstructie is bedoeld om een meer eenduidige manier van meten toe te passen voor het geven van een indicatie van de gebruiksoppervlakte. De Meetinstructie sluit verschillen in meetuitkomsten niet volledig uit, door bijvoorbeeld interpretatieverschillen, afrondingen of beperkingen bij het uitvoeren van de meting. Indien de exacte maten voor een koper van cruciaal belang zijn, adviseren wij deze zelf na te meten.



