-
Aantal kamers
4 kamers
-
Aantal slaapkamers
3 slaapkamers
-
Bouwjaar
1995
-
Bouwvorm
bestaande bouw
-
Inhoud
391m3
-
Oppervlakte
114 m2
Dirk Gerhardtstraat 18 - 3119 BT SCHIEDAM
English below
Ruime 4 kamer eengezinswoning met zonnige achtertuin en riant dakterras. De woning is voorzien van energielabel A, mede door deels nieuwe kozijnen, HR++ glas en een CV ketel uit 2022. Qua indeling is er van alles mogelijk om bijvoorbeeld een extra kamer te realiseren. De woning ligt aan de rand van het centrum van Schiedam, nabij metrostation Parkweg en Station Schiedam centrum. Vanuit de woning is zicht op 1 van Schiedams mooie molens. De winkels van het centrum van Schiedam liggen op loopafstand en de uitvalswegen zijn binnen 5 minuten te bereiken.
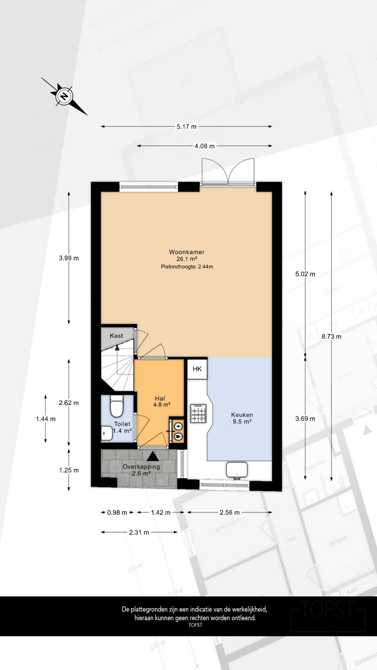
Begane grond:
Entree, hal, meterkast, toilet met fonteintje, trapopgang naar de 1e verdieping. De ruime woonkamer met open keuken zijn tezamen ca. 35m2. Er is een trapkast aanwezig en via openslaande deuren is er toegang tot de tuin. De hoekkeuken ligt aan de voorzijde en is voorzien van inbouwapparatuur: koelkast, vriezer, vaatwasser, combimagnetron, gaskookplaat en een afzuigkap.
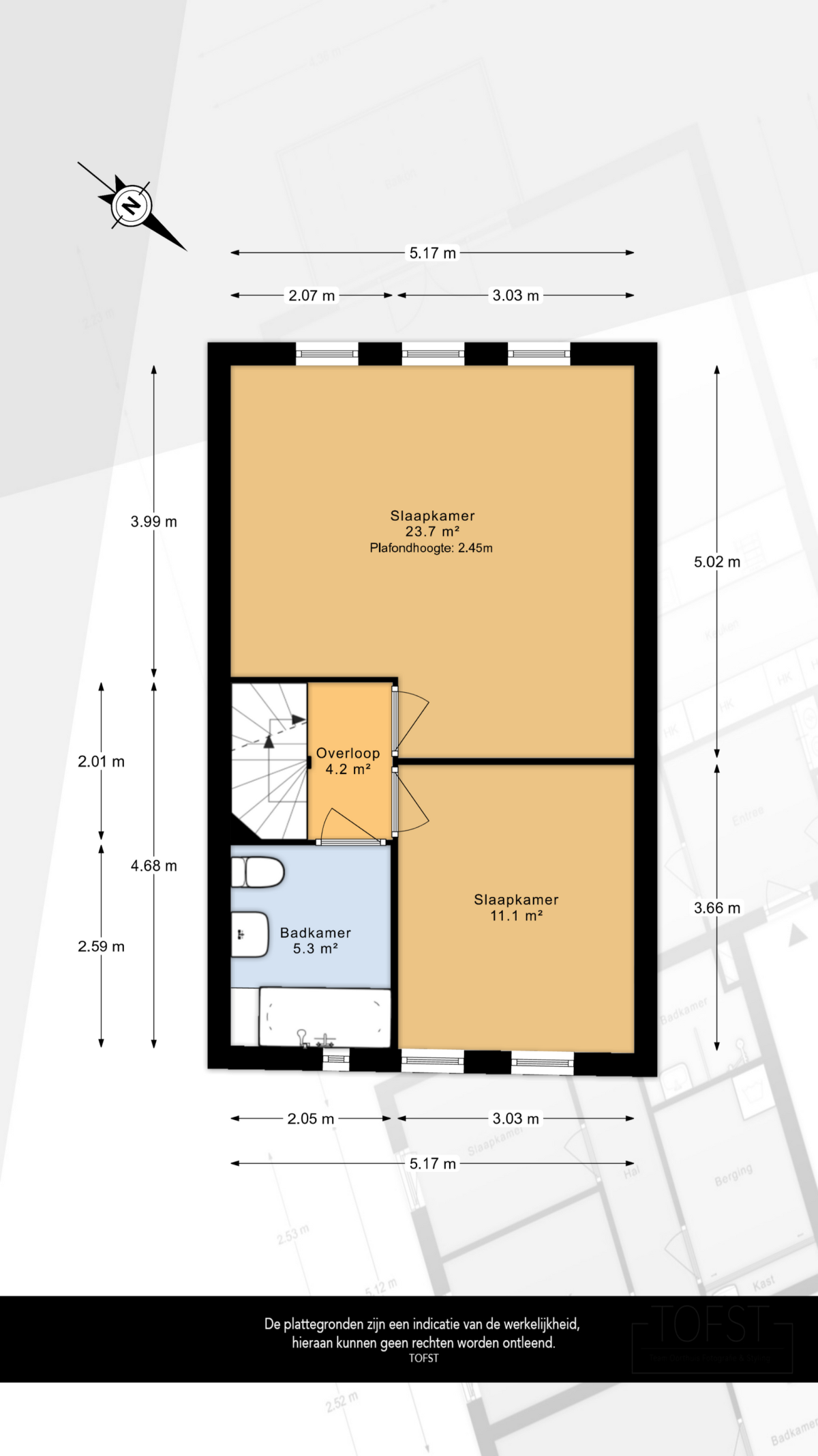
1e verdieping:
Overloop, trapopgang naar de 2e verdieping. Slaapkamer van ca. 11m2. De hoofdslaapkamer is 23.7m2. Deze kamer is op te splitsen in 2 kamers. De badkamer is verouderd, maar netjes en is voorzien van een ligbad/douche, wastafel en 2e toilet.
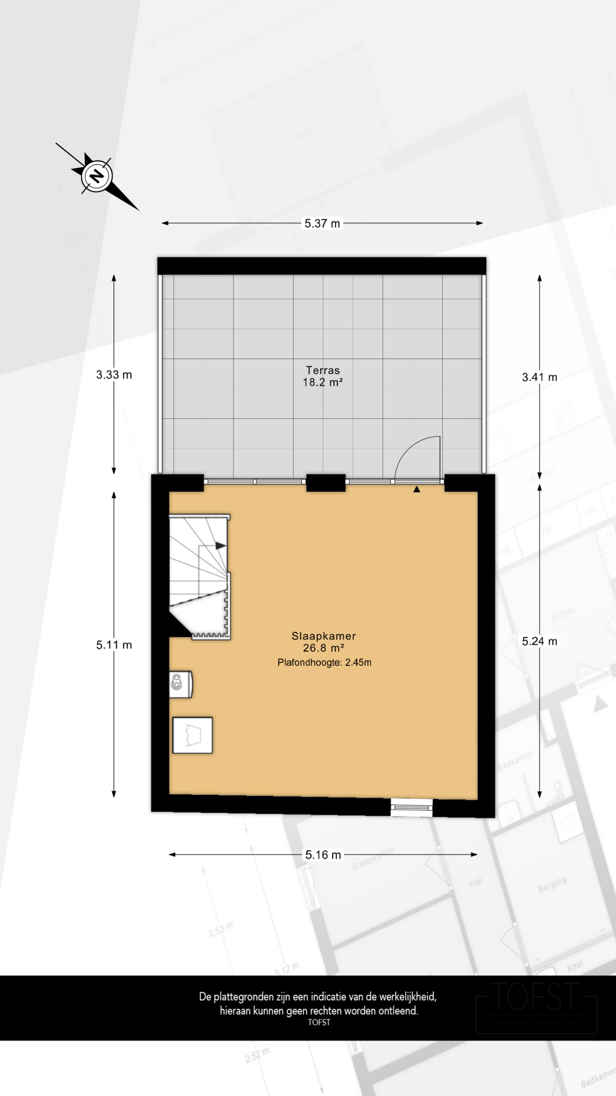
2e verdieping:
Open zolder verdieping/slaapkamer van ca. 27m2 Op deze verdieping bevinden zich de wasmachineaansluiting en de CV opstelling. Er is tevens toegang tot het terras op het zuidwesten. Het terras is meer dan 18m2.
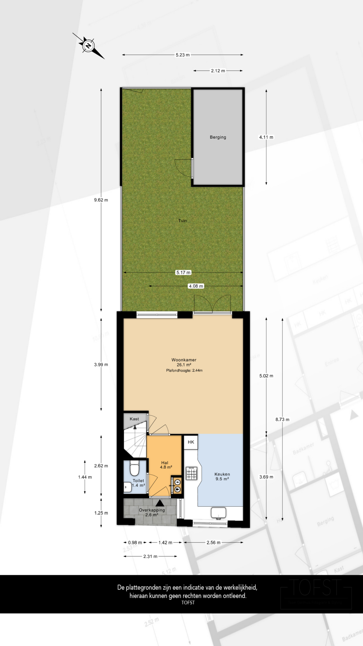
Tuin:
Riante achtertuin gelegen op het zonnige zuidwesten. De tuin is 9.60 meter diep en 5.15 meter breed. In de tuin staat een bijzonder ruime berging van ruim 9m2 en er is een achterom aanwezig. Via de achterom bereik je een openbaar parkeer terrein waar je met een vergunning kan parkeren.
Bijzonderheden:
-Er wordt een as is where is clausule in de koopakte opgenomen;
-Er wordt een niet zelf bewoond clausule opgenomen in de koopakte;
Bijzonderheden:
-Oplevering in overleg, kan snel;
-Bouwjaar 1995;
-Kozijnen met HR ++ kozijnen (deel vervangen in kunststof);
-CV ketel uit 2022;
-Energielabel A;
-Erfpacht recht tot 02-10-2093, afgekocht tot 2044;
-Gebruiksoppervlakte: 114.4m² (NEN2580);
-Inhoud 391.2m³ (NEN2580);
-Perceeloppervlakte: 113 m².
Deze informatie is door ons met de nodige zorgvuldigheid samengesteld. Onzerzijds wordt echter geen enkele aansprakelijkheid aanvaard voor enige onvolledigheid, onjuistheid of anderszins, dan wel de gevolgen daarvan. Alle opgegeven maten en oppervlakten zijn indicatief. Van toepassing zijn de NVM voorwaarden.
Toelichtingsclausule NEN2580
De Meetinstructie is gebaseerd op de NEN2580. De Meetinstructie is bedoeld om een meer eenduidige manier van meten toe te passen voor het geven van een indicatie van de gebruiksoppervlakte. De Meetinstructie sluit verschillen in meetuitkomsten niet volledig uit, door bijvoorbeeld interpretatieverschillen, afrondingen of beperkingen bij het uitvoeren van de meting. Indien de exacte maten voor een koper van cruciaal belang zijn, adviseren wij deze zelf na te meten.
Notariskeuze en kosten
Indien de koper een notaris kiest buiten een straal van 20 kilometer van de verkochte onroerende zaak dan zijn de eventuele kosten die de notaris berekent voor een eventuele verkoopvolmacht ten behoeve van de verkoper voor rekening van de koper.
English version:
Spacious 4-room family home with a sunny backyard and a large roof terrace. The house has an energy label A, thanks in part to partially new window frames, HR++ glass, and a central heating boiler from 2022. The layout offers many possibilities, including the creation of an extra room. The house is located on the edge of Schiedam's town center, near the Parkweg metro station and Schiedam Centrum Station. The house offers a view of one of Schiedam's beautiful windmills. The shops of Schiedam's town center are within walking distance, and major roads are just 5 minutes away.
Ground floor:
Entrance hall, meter cupboard, toilet with hand basin, and stairs to the first floor. The spacious living room and open-plan kitchen together measure approximately 35m². There is a storage cupboard under the stairs, and French doors provide access to the garden. The corner kitchen is located at the front of the house and is equipped with built-in appliances: a refrigerator, freezer, dishwasher, combination microwave oven, gas cooktop, and extractor hood. First floor:
Landing, stairs to the second floor. Bedroom of approximately 11m². The master bedroom is 23.7m². This room can be divided into two. The bathroom is dated but neat and equipped with a bath/shower, sink, and second toilet.
Second floor:
Open attic bedroom of approximately 27m². This floor houses the washing machine connection and the central heating system. There is also access to the southwest-facing terrace, which is over 18m².
Garden:
Spacious backyard facing the sunny southwest. The garden is 9.60 meters deep and 5.15 meters wide. There is a very spacious shed of over 9m² in the garden, and there is rear access. The rear access leads to a public parking lot where parking is permitted with a permit.
Special features:
-An "as is where is" clause will be included in the purchase agreement. -A non-occupancy clause will be included in the purchase agreement;
Details:
-Delivery by arrangement, can be done quickly;
-Year of construction: 1995;
-Frames with HR++ frames (partially replaced with uPVC);
-Central heating boiler from 2022;
-Energy label A;
-Leasehold until October 2, 2093, redeemed until 2044;
-Usable area: 114.4m² (NEN2580);
-Volume: 391.2m³ (NEN2580);
-Plot area: 113 m².
This information has been compiled with due care. However, we accept no liability for any incompleteness, inaccuracy, or otherwise, or the consequences thereof. All stated dimensions and surface areas are indicative. The NVM terms and conditions apply.
NEN2580 Explanatory Clause
The Measurement Instructions are based on NEN2580. They are intended to provide a more consistent measurement method for providing an indication of usable floor area. The Measurement Instructions do not completely eliminate differences in measurement results, for example, due to differences in interpretation, rounding, or limitations in the measurement process. If exact measurements are crucial to a buyer, we recommend that they be measured themselves.
Choice of Notary and Costs
If the buyer chooses a notary outside a 20-kilometer radius of the property being sold, any costs charged by the notary for a potential power of attorney in favor of the seller are the buyer's responsibility.



