-
Aantal kamers
3 kamers
-
Aantal slaapkamers
2 slaapkamers
-
Bouwjaar
1995
-
Bouwvorm
bestaande bouw
-
Inhoud
222m3
-
Oppervlakte
73 m2
De Velden 34 3124 CP SCHIEDAM
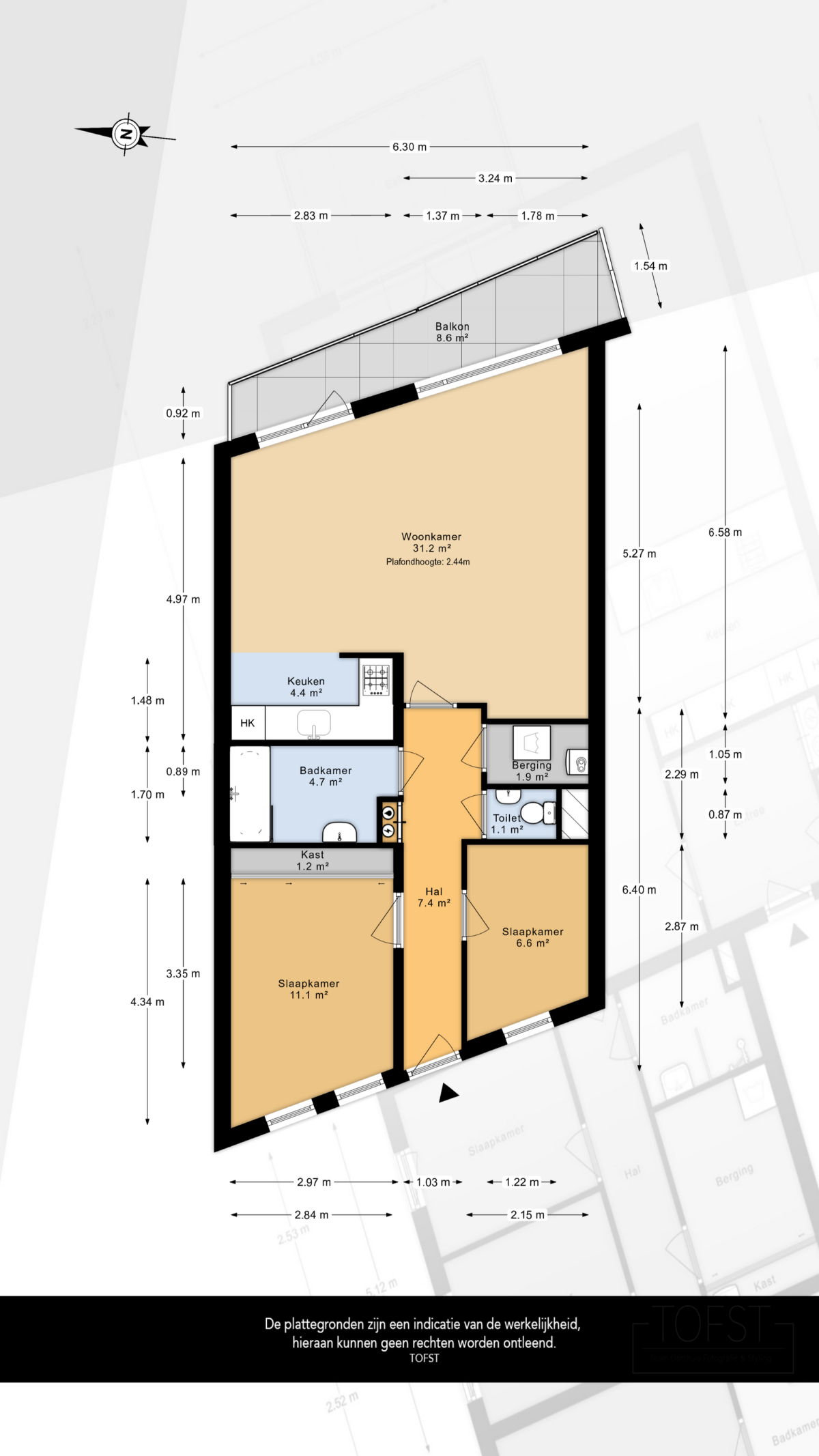
Leuk 3 kamer appartement met zonnig balkon. De woning heeft ruim 70m2 gebruiksoppervlakte, 2 slaapkamers , een balkon en een eigen berging. Het appartement maakt deel uit van een kleinschalig appartementencomplex dat is gerealiseerd in 1995. Het complex is voorzien van een lift. Ideale ligging met alles binnen handbereik: supermarkten, winkels en het centrum van Schiedam met zijn horeca en theater. U wandelt direct vanaf het zo het Midden Delfland in voor een ontspannen wandeling of fietstocht.
Begane grond:
Entree complex, bellen, brievenbussen, trappenhuis, lift, toegang tot de bergingen.
2e verdieping:
Entree, ruime gang welke toegang geeft tot alle vertrekken. Beide slaapkamers liggen aan de galerijzijde en zijn respectievelijk 11.1m2 en 6.6m2. De hoofdslaapkamer is voorzien van een schuifkastenwand. Separaat toilet met fonteintje. Inpandige berging welke fungeert als natte ruimte, maar ook gebruikt kan worden als extra bergruimte. De ruime badkamer is net uitgevoerd en voorzien van een douche/ligbad, radiator en een wastafel. Ruime woonkamer met open keuken van tezamen ruim 35m2. De keuken is voorzien van een L-vormige keukenopstelling voorzien van de volgende inbouwapparatuur: gaskookplaat, combi-oven, afzuigkap, vaatwasser en een koel/vrieskast.. Vanuit de woonkamer is er tevens het riante balkon bereikbaar.
Balkon:
Balkon van 8.6m2 gelegen op het westen.
Berging:
Op de begane grond ligt een berging van ca. 5m2.
Overige:
-Bouwjaar 1995;
-Oplevering begin 2026;
-Kozijnen voorzien van dubbel glas;
-In de koopakte wordt een ouderdomsclausule en een asbestclausule opgenomen;
-Verwarming en warm water middels CV uit 2009, welke in 2025 voorzien is van een onderhoudsbeurt;
-Actieve VVE met een bijdrage van 174 euro per maand;
-Afgekochte erfpacht tot 2044, recht loopt tot 2093;
-Gebruiksoppervlakte 73.3m2 (NEN 2580);
-Inhoud 221.9m3 (NEN2580).
Deze informatie is door ons met de nodige zorgvuldigheid samengesteld. Onzerzijds wordt echter geen enkele aansprakelijkheid aanvaard voor enige onvolledigheid, onjuistheid of anderszins, dan wel de gevolgen daarvan. Alle opgegeven maten en oppervlakten zijn indicatief. Van toepassing zijn de NVM voorwaarden.
Toelichtingsclausule NEN2580
De Meetinstructie is gebaseerd op de NEN2580. De Meetinstructie is bedoeld om een meer eenduidige manier van meten toe te passen voor het geven van een indicatie van de gebruiksoppervlakte. De Meetinstructie sluit verschillen in meetuitkomsten niet volledig uit, door bijvoorbeeld interpretatieverschillen, afrondingen of beperkingen bij het uitvoeren van de meting. Indien de exacte maten voor een koper van cruciaal belang zijn, adviseren wij deze zelf na te meten.
Notariskeuze en kosten
In principe ligt de notariskeuze bij de koper. Het doorhalen van de hypothecaire inschrijving in het kadaster moet door de verkoper betaald worden. Zijn de kosten voor deze doorhaling hoger dan € 400,- inclusief BTW dan wordt het meerdere bij de koper in rekening gebracht. Indien de koper een notaris kiest buiten een straal van 20 kilometer van de verkochte onroerende zaak dan zijn de eventuele kosten die de notaris berekent voor een eventuele verkoopvolmacht ten behoeve van de verkoper voor rekening van de koper.



