-
Aantal kamers
6 kamers
-
Aantal slaapkamers
3 slaapkamers
-
Bouwjaar
1933
-
Bouwvorm
bestaande bouw
-
Inhoud
486m3
-
Oppervlakte
130 m2
Cartesiusstraat 22 3112 XM SCHIEDAM
Bijzonder ruime eengezinswoning met 130m2 gebruiksoppervlakte, een tuin en 3 balkons! De woning is gelegen op eigen grond in gezellige volkswijk Schiedam-Oost. Het NS-station Schiedam-Centrum, het stadshart met vele winkels & horecagelegenheden en basisscholen liggen op loopafstand. De uitvalswegen A13, A20 en A4 zijn binnen enkele minuten te bereiken met de auto.
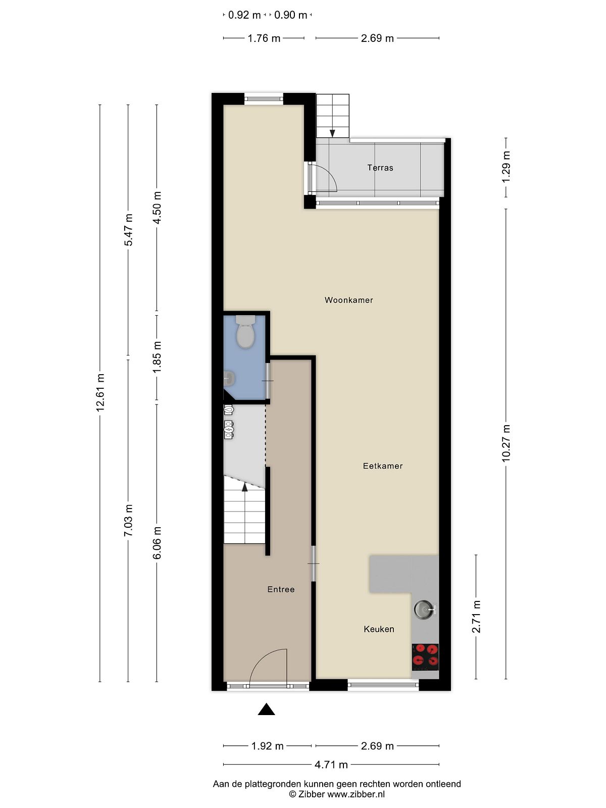
Begane grond:
Entree, hal, gang, trapkast/meterkast, ruim toilet met fonteintje. Riante woonkamer met open keuken van tezamen ruim 35m2. De woonkamer heeft toegang tot de tuin. Aan de voorzijde van de woonkamer bevindt zich de keuken. De keuken is voorzien van een keukenblok in een L-vorm met inbouwapparatuur: keramische kookplaat, afzuigkap en vaatwasser. Een 10 liter boiler is onder de keuken in de kelderruimte gesitueerd.
1e verdieping:
Overloop, trapopgang, ruime slaapkamer van ca. 16m2 met een ruime inloopkast. De tweede slaapkamer van ca. 12m2 heeft toegang dat het balkon. Het balkon is ca. 8m2 en biedt de mogelijkheid ook hier lekker buiten te zitten. De badkamer is in 2023 volledig vernieuwd en voorzien van riante douche, wastafelmeubel en spiegelkast. De badkamer is fraai betegeld en voorzien van zwarte accenten.
2e verdieping:
Overloop, toegang tot de vliering, zowel voor als achter een (berg)kamer. Deze (berg)kamers zijn ideaal als klein kantoor, hobby en/of wasruimte. De wasmachine aansluiting is hier aanwezig. De CV ketel is op de vliering gesitueerd. De slaapkamer op deze verdieping is bijzonder ruim met ca. 22m2. Het is een optie om hier 2 kamers van te maken, wat voorheen het geval was.
Tuin:
Tuin op het zonnige westen van ca. 6 meter diep en 5 meter breed. Aan de woning grenst eerst een balkon en het balkon geeft middels een trap toegang tot de tuin.
Overige:
-Oplevering in overleg;
-De woning is gelegen op eigen grond;
-Kunststof kozijnen en houten kozijnen met dubbel glas;
-Cv ketel is van 2011 en is goed onderhouden middels een service contract;
-Bouwjaar woning 1933;
-Vanwege het bouwjaar van de woning zal er in de koopakte een ouderdoms- en asbestclausule worden opgenomen;
-Gebruiksoppervlakte van 129.6m2(NEN2580);
-Inhoud 485.6m3 (NEN2580).
Deze informatie is door ons met de nodige zorgvuldigheid samengesteld. Onzerzijds wordt echter geen enkele aansprakelijkheid aanvaard voor enige onvolledigheid, onjuistheid of anderszins, dan wel de gevolgen daarvan. Alle opgegeven maten en oppervlakten zijn indicatief. Van toepassing zijn de NVM voorwaarden.
Toelichtingsclausule NEN2580
De Meetinstructie is gebaseerd op de NEN2580. De Meetinstructie is bedoeld om een meer eenduidige manier van meten toe te passen voor het geven van een indicatie van de gebruiksoppervlakte. De Meetinstructie sluit verschillen in meetuitkomsten niet volledig uit, door bijvoorbeeld interpretatieverschillen, afrondingen of beperkingen bij het uitvoeren van de meting. Indien de exacte maten voor een koper van cruciaal belang zijn, adviseren wij deze zelf na te meten.
Notariskeuze en kosten
In principe ligt de notariskeuze bij de koper. Het doorhalen van de hypothecaire inschrijving in het kadaster moet door de verkoper betaald worden. Zijn de kosten voor deze doorhaling hoger dan € 400,- inclusief BTW dan wordt het meerdere bij de koper in rekening gebracht.
Indien de koper een notaris kiest buiten een straal van 20 kilometer van de verkochte onroerende zaak dan zijn de eventuele kosten die de notaris berekent voor een eventuele verkoopvolmacht ten behoeve van de verkoper voor rekening van de koper.



