-
Aantal kamers
3 kamers
-
Aantal slaapkamers
2 slaapkamers
-
Bouwjaar
1914
-
Bouwvorm
bestaande bouw
-
Inhoud
322m3
-
Oppervlakte
98 m2
Brugmanstraat 7 A 3117 KA SCHIEDAM
Bijzonder ruime 3 kamer bovenwoning. Dit appartement is netjes afgewerkt en heeft een moderne keuken en modern sanitair. Het appartement ligt in de populaire wijk Schiedam-West met op loopafstand een metrostation. Daarnaast bevinden zich in de directe omgeving scholen, winkels en uitvalswegen. Het levendige centrum van Schiedam ligt op 10 minuten lopen en Rotterdam is binnen 20 minuten te bereiken.
INDELING
Begane grond:
Entree, trapopgang naar de 1e verdieping.
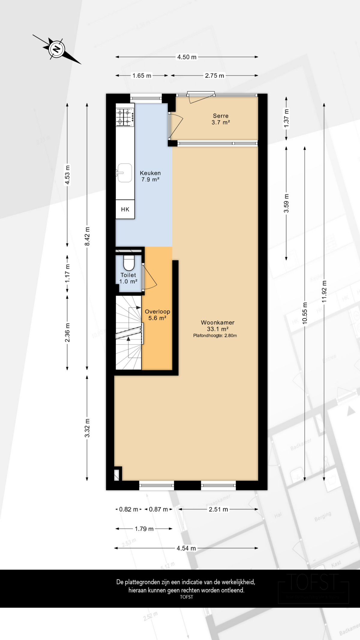
1e verdieping:
Overloop, trapopgang naar de 2e verdieping, toilet. Bijzonder ruime woonkamer met open keuken van tezamen meer dan 40m2. De keuken geeft toegang tot de serre. De keuken is voorzien van een modern keukenblok met inbouwapparatuur: koel/vrieskast, vaatwasser, oven, gaskookplaat en een afzuigkap.
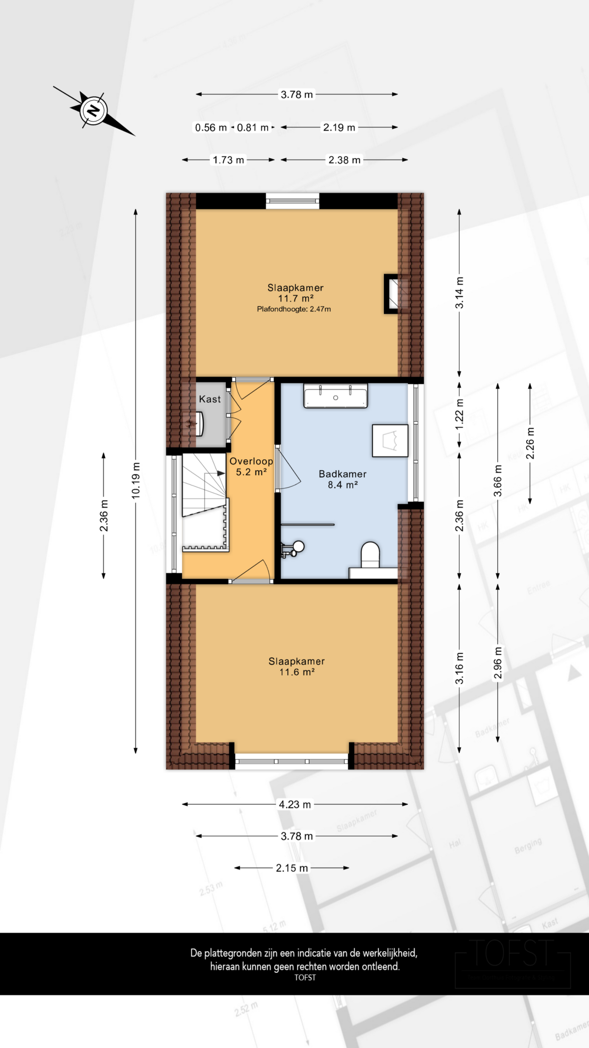
2e verdieping:
Overloop met kast met CV ketel. In het midden van deze verdieping is de badkamer gesitueerd. De slaapkamers bevinden zich voor en achter. De badkamer is modern uitgevoerd en voorzien van een inloopdouche, 2e toilet, wastafelmeubel met dubbele kraan, extra bijhorende kast, radiator en de aansluiting voor de wasmachine. De badkamer heeft tevens door de dakkapel natuurlijk ligt en in de dakkapel kan een raam geopend worden.
Afmetingen:
Voor alle afmetingen verwijzen wij graag door naar de plattegronden.
Overige
-Bouwjaar 1914;
-Eigen grond;
-As is, where is clausule van toepassing;
-Asbestclausule van toepassing;
-Verkoper heeft woning zelf nooit bewoond, dit wordt specifiek in de koopakte genoemd.
-Oplevering in overleg, op korte termijn mogelijk;
-VVE recent opgericht en de bijdrage is vastgesteld op € 146.42 per maand;
-Het gehele pand (boven en beneden) is door de opdrachtgever bouwkundig gekeurd;
-Gratis parkeren;
-Verwarming en warm water middels CV ketel;
-Volledig voorzien van dubbel glas;
-Gebruiksoppervlak 97.6m2 (NEN2580);
-Inhoud 321.5m3 (NEN2580).
Deze informatie is door ons met de nodige zorgvuldigheid samengesteld. Onzerzijds wordt echter geen enkele aansprakelijkheid aanvaard voor enige onvolledigheid, onjuistheid of anderszins, dan wel de gevolgen daarvan. Alle opgegeven maten en oppervlakten zijn indicatief. U kunt indien gewenst de woning voor het tekenen van de koopakte zelf inmeten en controleren.
Toelichtingsclausule NEN2580
De Meetinstructie is gebaseerd op de NEN2580. De Meetinstructie is bedoeld om een meer eenduidige manier van meten toe te passen voor het geven van een indicatie van de gebruiksoppervlakte. De Meetinstructie sluit verschillen in meetuitkomsten niet volledig uit, door bijvoorbeeld interpretatieverschillen, afrondingen of beperkingen bij het uitvoeren van de meting.



