-
Aantal kamers
6 kamers
-
Aantal slaapkamers
5 slaapkamers
-
Bouwjaar
1992
-
Bouwvorm
bestaande bouw
-
Inhoud
436m3
-
Oppervlakte
134 m2
Basilicumveld 18 3124 CA SCHIEDAM
Een modern, goed onderhouden, sfeervol 6 kamer hoekwoning met een nieuw aangelegde voor- en achtertuin (2024), parkeren op eigen erf en met heerlijke lichte woonkamer met een zijaanbouw. De woning is recent (2025) voorzien van nieuwe kunststof kozijnen (HR++ glas) en ligt in de kindvriendelijke wijk de Velden. Een ideale woning met grote slaapkamers, ideaal voor kandidaat kopers die ruimte zoeken, (tiener kinderen). De ligging is ideaal in de nabijheid van buurtwinkels, supermarkt, scholen, openbaar vervoer, een gezellige speeltuin om de hoek en het Midden Delflandgebied. De uitvalswegen rondom Schiedam/Rotterdam bereikt u binnen 5 autominuten en de tram- en bushaltes liggen op steenworp afstand.
Indeling
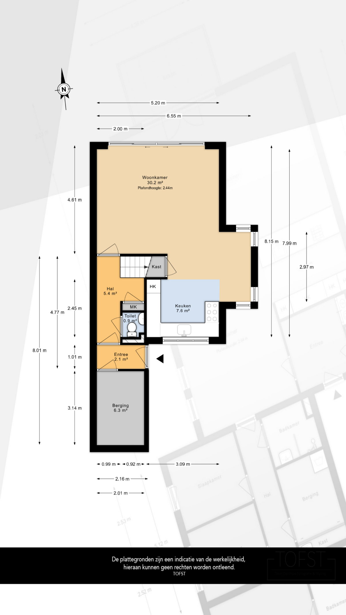
Begane grond
Entree, gang, hal, toilet met een handwasbakje en meterkast. Toegang naar de inpandige bergruimte van ca. 6,3m2. Royale lichte woonkamer van ca. 38m2 met een zijaanbouw, trapkast, grote uitbreide keuken en met een schuifpui voor toegang naar de tuin. De keuken (U-vorm) is uitgebreid uitgevoerd en voorzien van een 6 pits gasfornuis, rvs afzuigkap, koelkast/vriesladen, een vaatwasser en veel kastruimten. Vanuit de woonkamer is een leuk zicht op de tuin.
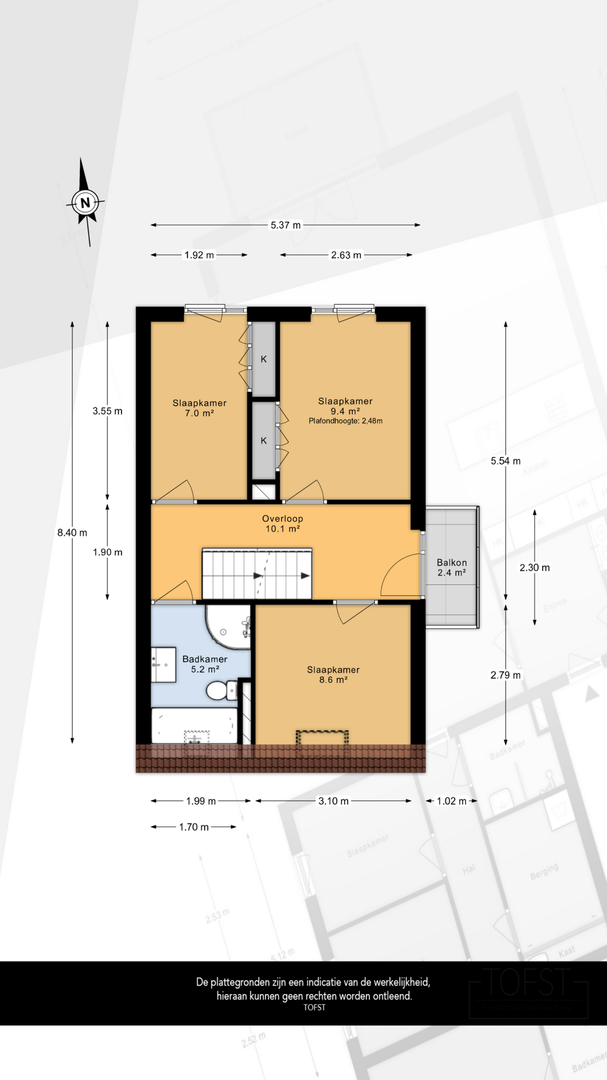
Eerste verdieping
Ruime overloop van ca. 10m2 met toegang naar een balkon (2,4m2). Voorslaapkamer van ca. 8,6m2. Achterslaapkamer van ca. 9,4m2 en ca. 7,0m2 beide met kastruimten. Badkamer voorzien van een ligbad, douchecabine, wastafelmeubel en een vrijhangend toilet.
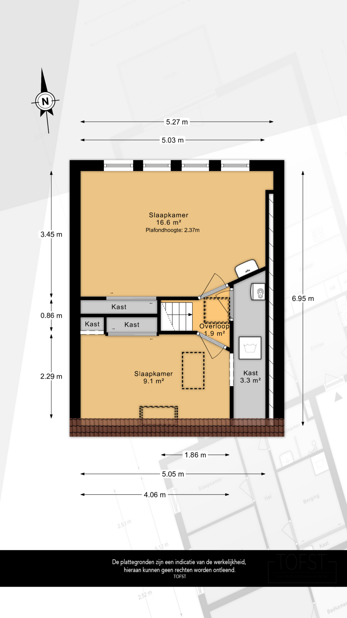
Tweede verdieping
Overloop met een lichtkoepel. Grote kastruimte ca. 3,3m2 een cv ketel en wasmachine opstelling. Voorslaapkamer van ca. 9,1m2 met toegang naar de bergvliering. Achterslaapkamer van ca. 16,6m2 voorzien van een wastafel.
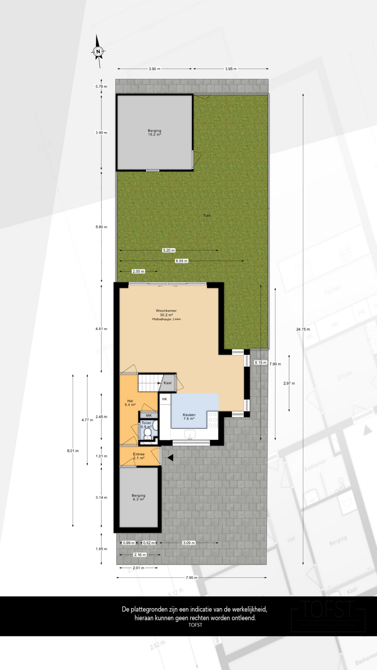
Tuin
Ruime net aangelegde voortuin (2024) met de mogelijkheid voor het parkeren van twee auto's. Mooi aangelegde grote achtertuin (2024) van ca. 10/14m diep en 7,9m breed aangelegd met nieuwe antraciet kleurige sierbestrating, schuttingen en een nieuwe grote houten berging 3,9m x 3,9m voorzien van elektra. Er is een extra brede achterom, handig voor een scooter of motor.
Bijzonderheden:
-Oplevering in overleg, kan snel;
-Bouwjaar 1992;
-Nieuwe kozijnen met HR ++ kozijnen (2025);
-Nieuwe Keralit wandpanelen op de dakopbouw (2025);
-CV ketel uit 2019 (hybride toestel);
-Energielabel B t/m 11-07-2029;
-Erfpacht recht tot 30-12-2090, afgekocht tot 1 december 2041;
-Gebruiksoppervlakte: 134,3m² (NEN2580);
-Inhoud 436,2m³ (NEN2580);
-Perceeloppervlakte: 199 m².
Deze informatie is door ons met de nodige zorgvuldigheid samengesteld. Onzerzijds wordt echter geen enkele aansprakelijkheid aanvaard voor enige onvolledigheid, onjuistheid of anderszins, dan wel de gevolgen daarvan. Alle opgegeven maten en oppervlakten zijn indicatief. U kunt indien gewenst de woning voor het tekenen van de koopakte zelf inmeten en controleren.
Toelichtingsclausule NEN2580
De Meetinstructie is gebaseerd op de NEN2580. De Meetinstructie is bedoeld om een meer eenduidige manier van meten toe te passen voor het geven van een indicatie van de gebruiksoppervlakte. De Meetinstructie sluit verschillen in meetuitkomsten niet volledig uit, door bijvoorbeeld interpretatieverschillen, afrondingen of beperkingen bij het uitvoeren van de meting.
Notariskeuze en kosten
In principe ligt de notariskeuze bij de koper. Het doorhalen van de hypothecaire inschrijving in het kadaster moet door de verkoper betaald worden. Zijn de kosten voor deze doorhaling hoger dan € 400,- inclusief BTW dan wordt het meerdere bij de koper in rekening gebracht.
Indien de koper een notaris kiest buiten een straal van 20 kilometer van de verkochte onroerende zaak dan zijn de eventuele kosten die de notaris berekent voor een eventuele verkoopvolmacht ten behoeve van de verkoper voor rekening van de koper.



