-
Aantal kamers
3 kamers
-
Aantal slaapkamers
2 slaapkamers
-
Bouwjaar
1968
-
Bouwvorm
bestaande bouw
-
Inhoud
277m3
-
Oppervlakte
89 m2
Bachplein 508 - 3122 KR SCHIEDAM
Een modern, sfeervol 3 kamer hoekappartement gelegen op de 6e verdieping met een mooie vrije ligging. De woning ligt in flat 5 wat zorgt voor een prachtig uitzicht over het pittoreske Ketel en de skyline van Rotterdam! Het appartement is voorzien van een ruime keuken en net sanitair. Ook zijn er 2 ruime slaapkamers (voorheen 3), een breed balkon en is er een eigen berging in de onderbouw. Er is afgesloten hoofdentree en voldoende vrije parkeergelegenheid voor de deur. Op loopafstand ligt het winkelcentrum Hof van Spaland. Openbaar vervoer (tram en bus) ligt op 100 m afstand. De uitvalswegen rondom Schiedam / Rotterdam bereikt u binnen enkele autominuten, evenals het centrum van wereldstad Rotterdam.
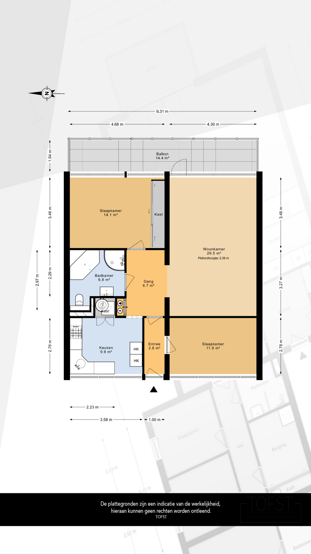
Indeling
Begane grond:
Afgesloten entree, bellen, brievenbussen, liften, trappenhuis en toegang tot de bergingen.
6e verdieping:
Entree, gang, ruime slaapkamer van bijna 12m2. De hal geeft toegang tot de overige ruimtes en in de hal bevindt zich de meterkast. Sfeervolle ruime woonkamer van ca. 30m2 met veel lichtinval en toegang tot het balkon. De hoofdslaapkamer bevindt zich aan de achterzijde, is ruim 14m2 en heeft een riante schuifkastenwand met verlichting. Deze kamer zijn voorheen 2 slaapkamers geweest. De badkamer en toilet zijn 1 geheel en voorzien van een hoekbad, douchehoek, toilet en een wastafelmeubel met spiegel en een verlaagd plafond met spotjes. De keuken is apart en voorzien van een hoekkeukenblok met luxe marmeren werkblad en de navolgende apparatuur: koelkast, vriezer, oven, 5pits gaskookplaat, afzuigkap en een vaatwasser. De praktische bergkast biedt ruimte voor de wasmachine en extra bergruimte.
Balkon:
Riant balkon van meer dan 14m2 op het oosten gelegen en over de volle breedte van het appartement. Vanaf het balkon is er weids uitzicht. Het balkon met grastapijt biedt door de hoekligging een gevoel van vrijheid en veel privacy.
Berging:
In de onderbouw is een eigen berging van ca. 7m2.
Overige:
-Oplevering in overleg, kan snel;
-Gebruiksoppervlakte 89.4m2 (NEN2580);
-Inhoud 277.3m3 (NEN2580);
-Zonnescherm aanwezig;
-Warm water middels een elektrische boiler, verwarming middels blokverwarming;
-Gelegen op afgekochte erfpachtgrond t/m 31-12-2048;
-Vanwege het bouwjaar van het appartementencomplex wordt er een asbest- en ouderdomsclausule opgenomen in de koopakte;
-Het appartement is gelegen in Groenoord en maakt onderdeel uit van het plan "Nieuwe Energie voor Groenoord".
-Bouwjaar woning 1968;
-Actieve vereniging van eigenaren met een maandelijkse bijdrage van € 192,- aan service kosten en € 74,- aan voorschot stookkosten.
Deze informatie is door ons met de nodige zorgvuldigheid samengesteld. Onzerzijds wordt echter geen enkele aansprakelijkheid aanvaard voor enige onvolledigheid, onjuistheid of anderszins, dan wel de gevolgen daarvan. Alle opgegeven maten en oppervlakten zijn indicatief. Van toepassing zijn de NVM voorwaarden.
Toelichtingsclausule NEN2580
De Meetinstructie is gebaseerd op de NEN2580. De Meetinstructie is bedoeld om een meer eenduidige manier van meten toe te passen voor het geven van een indicatie van de gebruiksoppervlakte. De Meetinstructie sluit verschillen in meetuitkomsten niet volledig uit, door bijvoorbeeld interpretatieverschillen, afrondingen of beperkingen bij het uitvoeren van de meting. Indien de exacte maten voor een koper van cruciaal belang zijn, adviseren wij deze zelf na te meten.
Notariskeuze en kosten
In principe ligt de notariskeuze bij de koper. Het doorhalen van de hypothecaire inschrijving in het kadaster moet door de verkoper betaald worden. Zijn de kosten voor deze doorhaling hoger dan € 400,- inclusief BTW dan wordt het meerdere bij de koper in rekening gebracht. Indien de koper een notaris kiest buiten een straal van 20 kilometer van de verkochte onroerende zaak dan zijn de eventuele kosten die de notaris berekent voor een eventuele verkoopvolmacht ten behoeve van de verkoper voor rekening van de koper.



