-
Aantal kamers
4 kamers
-
Aantal slaapkamers
3 slaapkamers
-
Bouwjaar
1968
-
Bouwvorm
bestaande bouw
-
Inhoud
277m3
-
Oppervlakte
89 m2
Bachplein 281 3122 JC SCHIEDAM
Ruim 4 kamer appartement gelegen in flat 3 aan het Bachplein. Het appartement is gelegen op de 6e verdieping en heeft een ruime woonkamer en heerlijk ruim en zonnig balkon. Het complex wordt goed onderhouden door een actieve Vereniging van Eigenaren en het complex is voorzien van liften. De ligging is ideaal met de tram en Hof van Spaland op loopafstand en scholen en uitvalswegen in de directe omgeving.
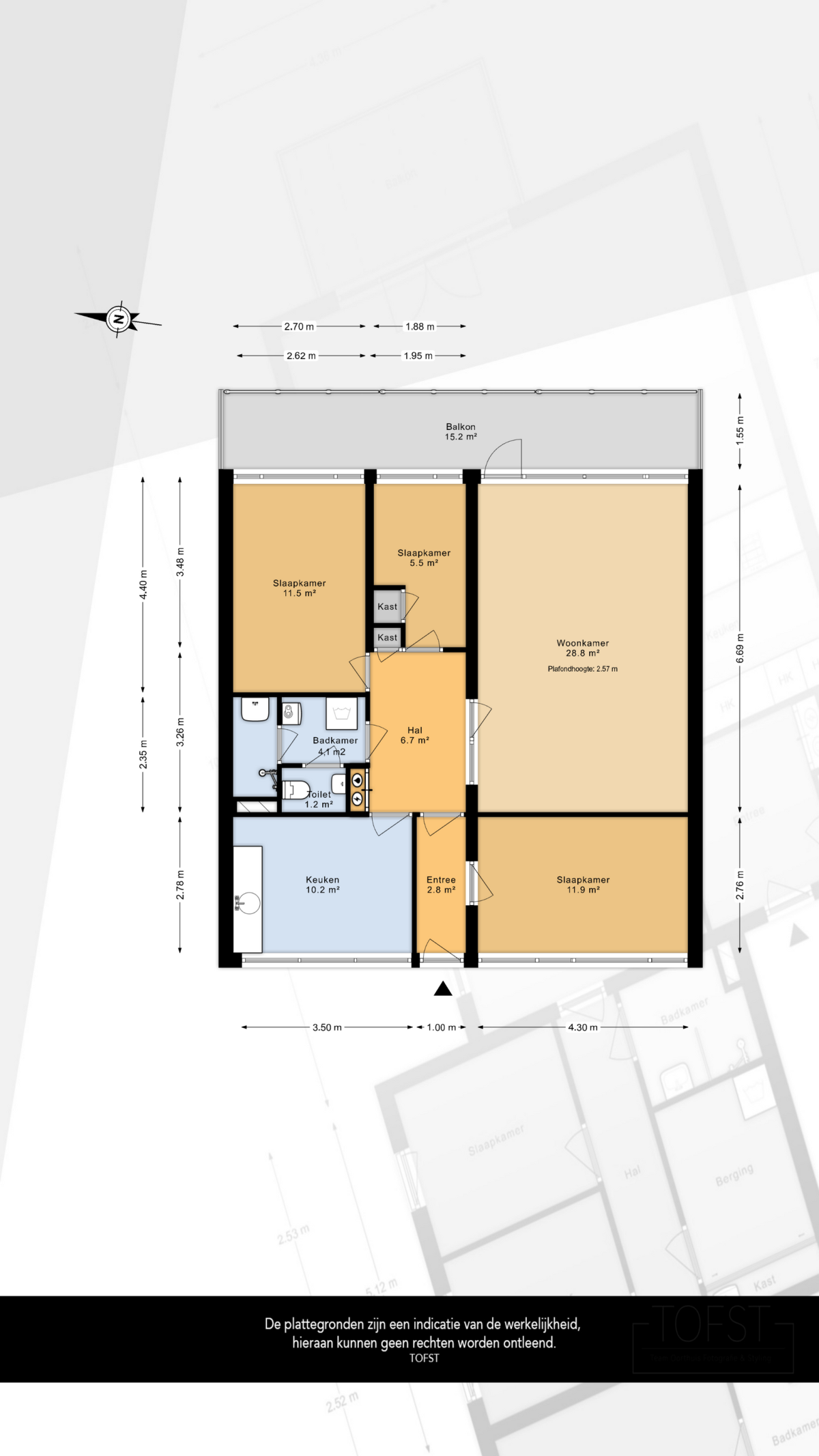
INDELING
Begane grond:
Afgesloten entree met intercominstallatie. Centrale entree met brievenbussen, 2 liften en toegang tot de bergingen.
6e verdieping:
Entree appartement, tochtportaal. Ruime hal meterkast. Woonkeuken met eenvoudig, maar net keukenblok. Portaal met toegang tot geheel betegeld toilet en badkamer. Ruime woonkamer van ca. 29m² met toegang tot het balkon. Het balkon is gelegen op het Westen van ca. 14m². Vanaf het balkon is er vrij uitzicht. Slaapkamer I van ca. 7m². Slaapkamer II van ca. 9m². Slaapkamer III van ca. 12m².
Berging:
Op de begane grond bevindt zich een eigen berging.
Overige:
- Energielabel E;
- Bouwjaar 1968;
- Actieve VvE, bijdrage € 227,90, per maand (exclusief stookkosten à € 93,60);
- Verwarming middels blokverwarming en warm water middels geiser;
- Gebruiksoppervlakte 89.1m2 NEN2580;
- Gelegen op erfpachtgrond, waarbij de canon is afgekocht (voor de gehele looptijd) tot 31-12-2048
- Inhoud 281m3 NEN2580;
- Oplevering maart 2026;
- Het appartement is gelegen in Groenoord en maakt onderdeel uit van het plan "Nieuwe Energie voor Groenoord".
Bijzonderheden:
- Projectnotaris: Van der Valk Netwerk Notarissen;
- Zelfbewoningsplicht;
- As is where is clausule van toepassing;
- Verkoop regulerend beding van toepassing;
- Ouderdomsclausule van toepassing;
- Asbestclausule van toepassing;
- Verkoper heeft woning zelf nooit bewoond, dit wordt specifiek in de koopakte genoemd.
Deze informatie is door ons met de nodige zorgvuldigheid samengesteld. Onzerzijds wordt echter geen enkele aansprakelijkheid aanvaard voor enige onvolledigheid, onjuistheid of anderszins, dan wel de gevolgen daarvan. Alle opgegeven maten en oppervlakten zijn indicatief. Van toepassing zijn de NVM voorwaarden.
Toelichtingsclausule NEN2580
De Meetinstructie is gebaseerd op de NEN2580. De Meetinstructie is bedoeld om een meer eenduidige manier van meten toe te passen voor het geven van een indicatie van de gebruiksoppervlakte. De Meetinstructie sluit verschillen in meetuitkomsten niet volledig uit, door bijvoorbeeld interpretatieverschillen, afrondingen of beperkingen bij het uitvoeren van de meting. Indien de exacte maten voor een koper van cruciaal belang zijn, adviseren wij deze zelf na te meten.



