-
Aantal kamers
4 kamers
-
Aantal slaapkamers
3 slaapkamers
-
Bouwjaar
1968
-
Bouwvorm
bestaande bouw
-
Inhoud
277m3
-
Oppervlakte
89 m2
Bachplein 233 - 3122 JA SCHIEDAM
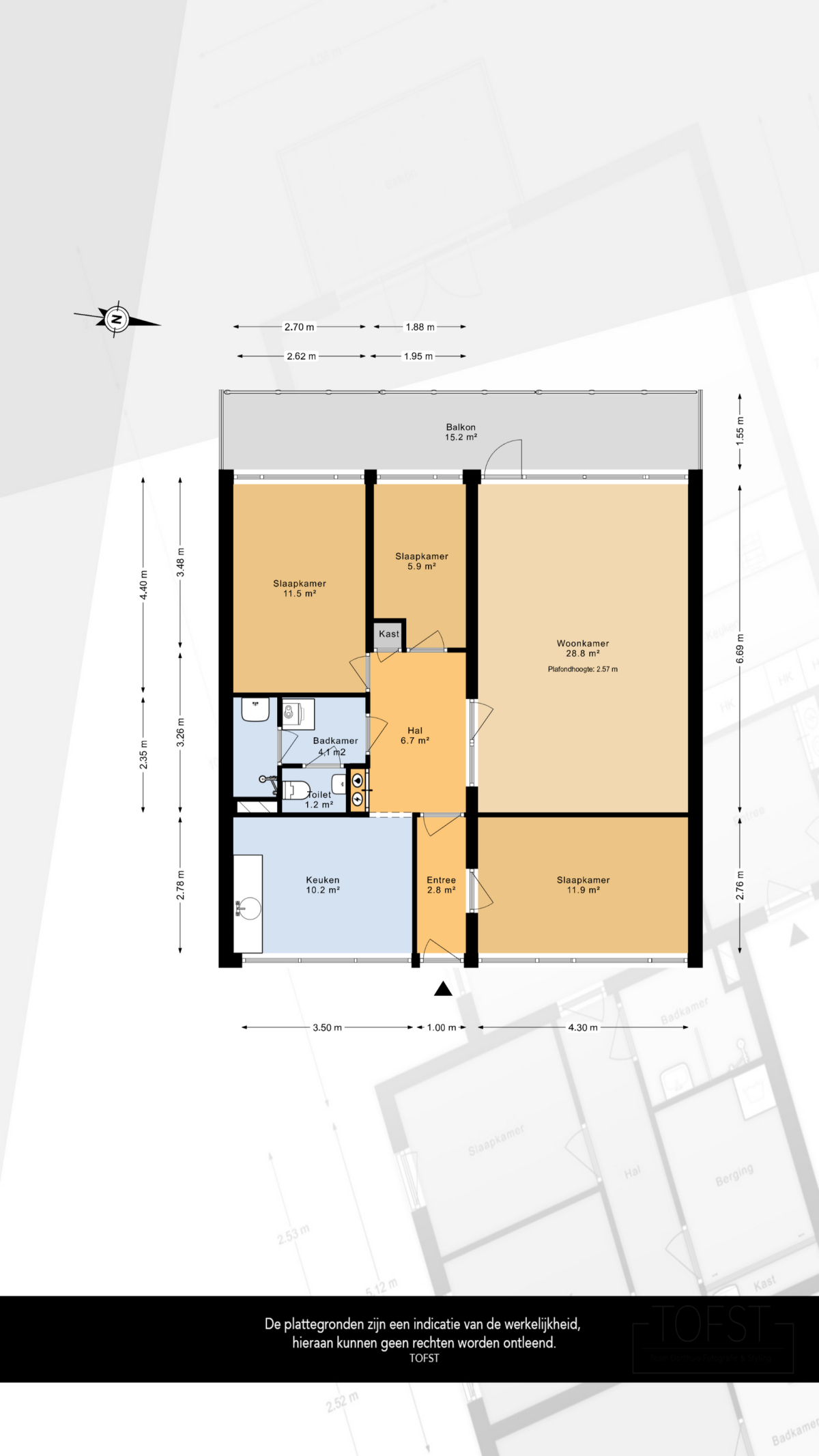
Ruim 4 kamer appartement gelegen in flat 3 aan het Bachplein. Het appartement is gelegen op de 2e verdieping en heeft een ruime woonkamer en heerlijk ruim en zonnig balkon. Het complex wordt goed onderhouden door een actieve Vereniging van Eigenaren en het complex is voorzien van liften. De ligging is ideaal met de tram en Hof van Spaland op loopafstand en scholen en uitvalswegen in de directe omgeving.
INDELING
Begane grond:
Afgesloten entree met intercominstallatie. Centrale entree met brievenbussen, 2 liften en toegang tot de bergingen.
2e verdieping:
Entree appartement, tochtportaal. Ruime hal meterkast. Woonkeuken met eenvoudig, maar net keukenblok. Portaal met toegang tot geheel betegeld toilet en badkamer. Ruime woonkamer van ca. 29m² met toegang tot het balkon. Het balkon is gelegen op het Westen van ca. 14m². Vanaf het balkon is er vrij uitzicht. Slaapkamer I van ca. 7m². Slaapkamer II van ca. 9m². Slaapkamer III van ca. 12m².
Berging:
Op de begane grond bevindt zich een eigen berging.
Overige:
- Energielabel E;
- Bouwjaar 1968;
- Actieve VvE, bijdrage € 227,90, per maand excl. € 93.60 voorschot stookkosten;
- Verwarming middels blokverwarming en warm water middels geiser;
- Gebruiksoppervlakte 89m2;
- Gelegen op erfpachtgrond, waarbij de canon is afgekocht (voor de gehele looptijd) tot 31-12-2048;
- Inhoud 281m3;
- Oplevering kan snel;
- Het appartement is gelegen in Groenoord en maakt onderdeel uit van het plan "Nieuwe Energie voor Groenoord".
Bijzonderheden:
- Projectnotaris: Van der Valk Netwerk Notarissen;
- Zelfbewoningsplicht;
- As is where is clausule van toepassing;
- Verkoop regulerend beding van toepassing;
- Ouderdomsclausule van toepassing;
- Asbestclausule van toepassing;
- Verkoper heeft woning zelf nooit bewoond, dit wordt specifiek in de koopakte genoemd.
Deze informatie is door ons met de nodige zorgvuldigheid samengesteld. Onzerzijds wordt echter geen enkele aansprakelijkheid aanvaard voor enige onvolledigheid, onjuistheid of anderszins, dan wel de gevolgen daarvan. Alle opgegeven maten en oppervlakten zijn indicatief. Van toepassing zijn de NVM voorwaarden.
Toelichtingsclausule NEN2580
De Meetinstructie is gebaseerd op de NEN2580. De Meetinstructie is bedoeld om een meer eenduidige manier van meten toe te passen voor het geven van een indicatie van de gebruiksoppervlakte. De Meetinstructie sluit verschillen in meetuitkomsten niet volledig uit, door bijvoorbeeld interpretatieverschillen, afrondingen of beperkingen bij het uitvoeren van de meting. Indien de exacte maten voor een koper van cruciaal belang zijn, adviseren wij deze zelf na te meten.
English below:
Bachplein 233 - 3122 JA SCHIEDAM
Spacious 4-room apartment located in building 3 on Bachplein. The apartment is situated on the 2nd floor and features a spacious living room and a wonderfully spacious and sunny balcony. The complex is well-maintained by an active Owners' Association and is equipped with elevators. The location is ideal, with the tram and Hof van Spaland within walking distance, and schools and arterial roads in the immediate vicinity.
LAYOUT
Ground floor:
Secured entrance with intercom system. Central entrance with mailboxes, 2 elevators, and access to the storage units.
2nd floor:
Apartment entrance, vestibule. Spacious hall with meter cupboard. Eat-in kitchen with a simple but neat kitchen unit. Hallway with access to a fully tiled toilet and bathroom. Spacious living room of approx. 29m² with access to the balcony. The balcony faces west and measures approx. 14m². There is an unobstructed view from the balcony. Bedroom 1 of approx. 7m². Bedroom II of approx. 9m². Bedroom III of approx. 12m².
Storage:
There is a private storage unit on the ground floor.
Other:
- Energy label E;
- Year of construction 1968;
- Active Owners' Association, contribution € 227.90 per month excl. € 93.60 advance payment for heating costs;
- Heating via central heating and hot water via geyser;
- Usable floor area 89m²;
- Situated on leasehold land, where the ground rent has been redeemed (for the entire term) until 31-12-2048;
- Volume 281m³;
- Quick handover possible;
- The apartment is located in Groenoord and is part of the "New Energy for Groenoord" plan.
Particulars:
- Project notary: Van der Valk Netwerk Notarissen;
- Occupancy requirement;
- As is where is clause applies;
- Sale regulating clause applies;
- Age clause applies;
- Asbestos clause applies;
- The seller has never lived in the property themselves; this is specifically mentioned in the purchase agreement.
This information has been compiled by us with due care. However, we accept no liability whatsoever for any incompleteness, inaccuracy, or otherwise, or the consequences thereof. All stated dimensions and surface areas are indicative. The NVM conditions apply.
Explanatory Clause NEN2580
The Measurement Instruction is based on NEN2580. The Measurement Instruction is intended to apply a more uniform method of measurement to provide an indication of the usable floor area. The Measurement Instruction does not completely rule out differences in measurement results, for example due to differences in interpretation, rounding, or limitations in carrying out the measurement. If the exact dimensions are of crucial importance to a buyer, we advise them to measure them themselves.



