-
Aantal kamers
3 kamers
-
Aantal slaapkamers
2 slaapkamers
-
Bouwjaar
1928
-
Bouwvorm
bestaande bouw
-
Inhoud
262m3
-
Oppervlakte
82 m2
Aleidastraat 40 C 3117 DH SCHIEDAM
Een modern, sfeervol, goed onderhouden, ruim 3 kamer jaren'30 appartement op de 2e (bovenste verdieping).
De woning heeft een goede vibe, heeft een nette, strakke uitstraling en voelt heel prettig aan. De woonkamer inclusief half open keuken is mooi ruim ca. 40m2 en heeft een mooi lichtinval en ruim balkon. Er zijn 2 ruime slaapkamers. Alle kozijnen zijn uitgevoerd in kunststof met dubbelglas. Het appartement maakt deel uit van een actieve VvE, onlangs is het dak vernieuwd (2021), buitenschilderwerk (2022) en is de gezamenlijke portiek (voorzijde gebouw) gerenoveerd (nov 2025).
Omgeving/locatie
Het appartement is gelegen in een leuk gedeelte van Schiedam-West met buurtwinkels in de directe omgeving en binnen een paar minuten lopen van het stadspark en het historische centrum van Schiedam. Hier slenter je langs oude grachten en kleine ophaal bruggen en vindt je hippe tentjes, supermarkten, theater, Vlaams Broodhuys, Café Sjiek, Wijning, Bonte Koe, Hosman Vins, gezellige pleintjes, terrasjes, andere cafe's en uitstekende restaurants. Er is ook nog een overdekt winkelcentrum. In de nabijheid van uitvalswegen (A20&A4) en metro/trein (station NS Schiedam) en bus met directe verbinding naar Schiedam CS en het centrum van Rotterdam. De locatie is erg leuk en praktisch met alle voorzieningen in de directe omgeving en ook dicht bij het centrum van Schiedam. Openbaar vervoer is op 3 minuten loopafstand (metro en bus), snelwegen zijn ook zo te bereiken.
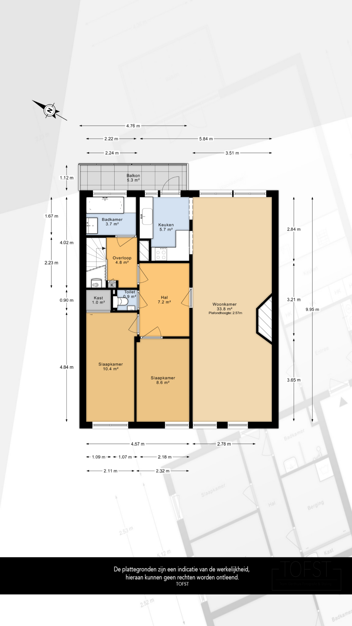
INDELING
Begane grond:
Entree, trapopgang naar de woonverdieping.
1e verdieping:
ruime hal van ca. 7m2, toilet met een handwasbakje. Sfeervolle ruime doorzon woonkamer met een half open keuken van totaal ca. 40m2. De woonkamer heeft een strakke afwerking, mooie lichtinval en doordoor een prettige ambiance. De keuken is voorzien van een oven, inductie kookplaat, vaatwasser, afzuigkap en een losse koel/vriescombinatie. Toegang tot het balkon. Moderne badkamer voorzien van een ligbad/douchecombinatie, wastafelmeubel en mechanische ventilatie. Voorslaapkamer I van ca. 8m2. Voorslaapkamer II van ca. 10,4m2 met een inbouwkast. In de overloop bevindt zich de cv ketel opstellen en de meterkast.
Buitenruimte:
Woonverdieping: heerlijk balkon van ca. 5,3m2 (4,76m x 1,12m).
Overige:
-Oplevering in overleg.
-Eigen grond.
-Dakbedekking is in 2021 volledig vernieuwd incl. dakisolatie.
-Vloer is voorzien van vloerisolatie Redupax 10 Db dikte 9 mm.
-Al het buitenschilderwerk is recent opnieuw geschilderd samen met traprenovatie.
-CV ketel uit 2013.
-Bouwjaar ca. 1923.
-Vanwege de leeftijd van de woning zal er een ouderdom en asbestclausule in de koopakte worden opgenomen.
-Actieve VVE met een bijdrage van €80,- per maand. Vve wordt professioneel beheerd.
-Gebruiksoppervlakte ca. 82,3m2 (NEN2580).
Deze informatie is door ons met de nodige zorgvuldigheid samengesteld. Onzerzijds wordt echter geen enkele aansprakelijkheid aanvaard voor enige onvolledigheid, onjuistheid of anderszins, dan wel de gevolgen daarvan. Alle opgegeven maten en oppervlakten zijn indicatief. U kunt indien gewenst de woning voor het tekenen van de koopakte zelf inmeten en controleren.
Toelichtingsclausule NEN2580
De Meetinstructie is gebaseerd op de NEN2580. De Meetinstructie is bedoeld om een meer eenduidige manier van meten toe te passen voor het geven van een indicatie van de gebruiksoppervlakte. De Meetinstructie sluit verschillen in meetuitkomsten niet volledig uit, door bijvoorbeeld interpretatieverschillen, afrondingen of beperkingen bij het uitvoeren van de meting.
Notariskeuze en kosten
In principe ligt de notariskeuze bij de koper. Het doorhalen van de hypothecaire inschrijving in het kadaster moet door de verkoper betaald worden. Zijn de kosten voor deze doorhaling hoger dan € 400,- inclusief BTW dan wordt het meerdere bij de koper in rekening gebracht.
Indien de koper een notaris kiest buiten een straal van 20 kilometer van de verkochte onroerende zaak dan zijn de eventuele kosten die de notaris berekent voor een eventuele verkoopvolmacht ten behoeve van de verkoper voor rekening van de koper.



