-
Aantal kamers
5 kamers
-
Aantal slaapkamers
4 slaapkamers
-
Bouwjaar
1918
-
Bouwvorm
bestaande bouw
-
Inhoud
543m3
-
Oppervlakte
144 m2
Abbenbroeksestraat 1 - 3114 XA SCHIEDAM
Bijzonder ruime, unieke 5 kamer eengezinswoning! De woning werd in 1918 ontworpen door stadsarchitect Piet Sanders en werd in 2007 geheel gerenoveerd waarbij het historische karakter behouden is. De afgelopen jaren is veel hoogwaardig onderhoud uitgevoerd. De woning ligt in een beschermd stadsgezicht in de gezellige wijk de Gorzen, dichtbij de Maasboulevard, winkelstraat de Groenelaan en op loopafstand van goede busverbindingen. Het centrum van Schiedam ligt op loopafstand en het centrum van Rotterdam is eenvoudige te bereiken, met bijvoorbeeld de watertaxi.
Indeling
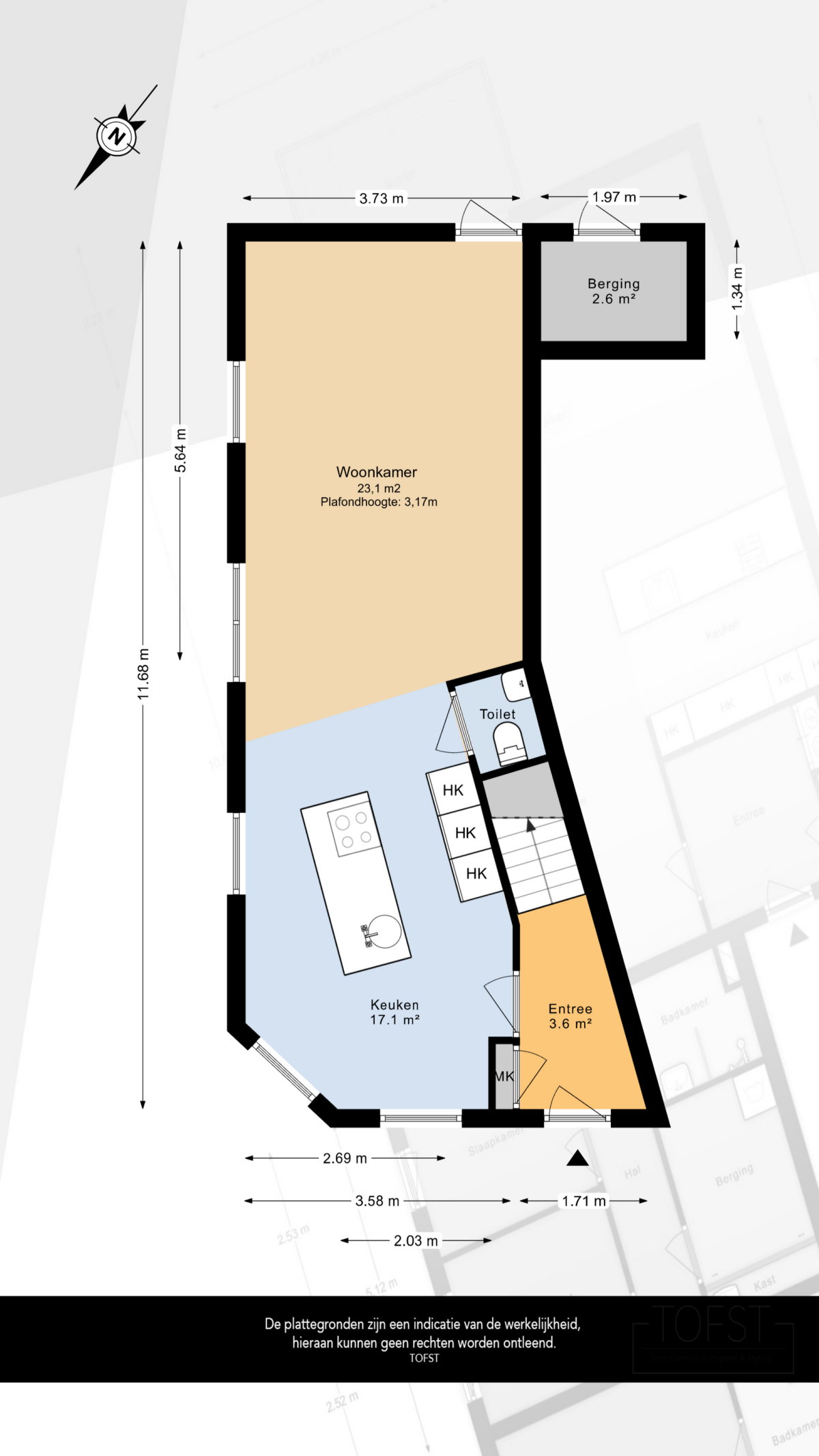
Begane grond:
Entree met ruimte hal, meterkast en trap naar de eerste etage. Heerlijk ruime en lichte woonkamer met open keuken aan de voorzijde van tezamen meer dan 40m2. Aan de achterzijde is er toegang tot de zonnige achtertuin. De moderne open keuken in wit hoogglans heeft een spoel-/kookeiland en is voorzien van kwalitatief goede inbouwapparatuur zoals een afzuigkap, 5-pits gaskookplaat, oven, koelkast en vaatwasser. Toilet tevens op de begane grond.
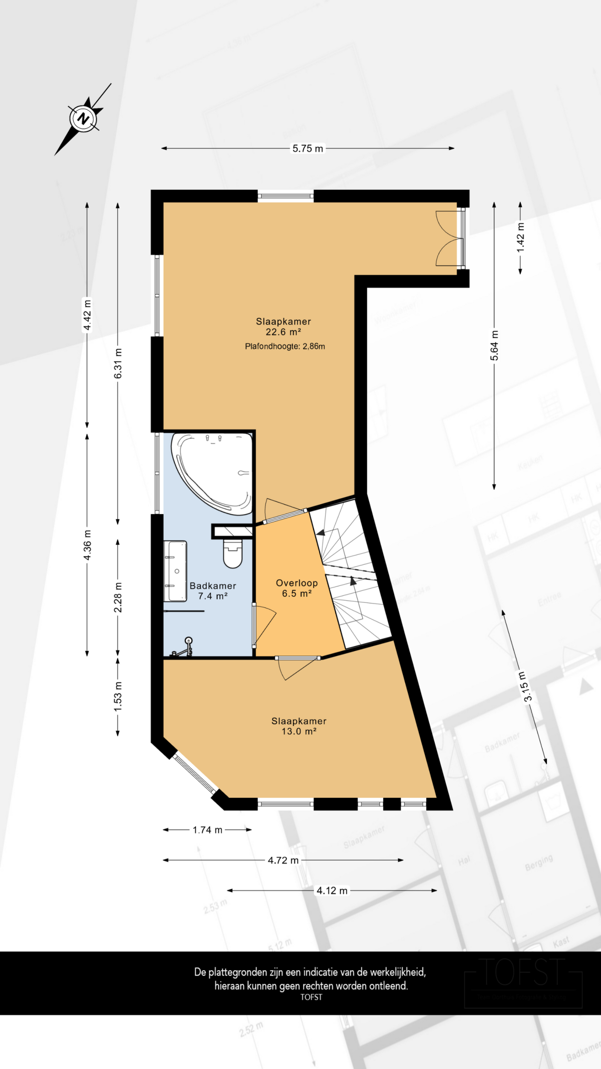
1e verdieping:
Overloop, trapopgang en toegang tot alle vertrekken. De slaapkamers zijn ruim met bijna 23m2 (met frans balkon) en 13m2. De badkamer is fraai betegeld en voorzien van een douchecabine, dubbel wastafelmeubel, tweede toilet en een heerlijke hoekjacuzzi.
2e verdieping:
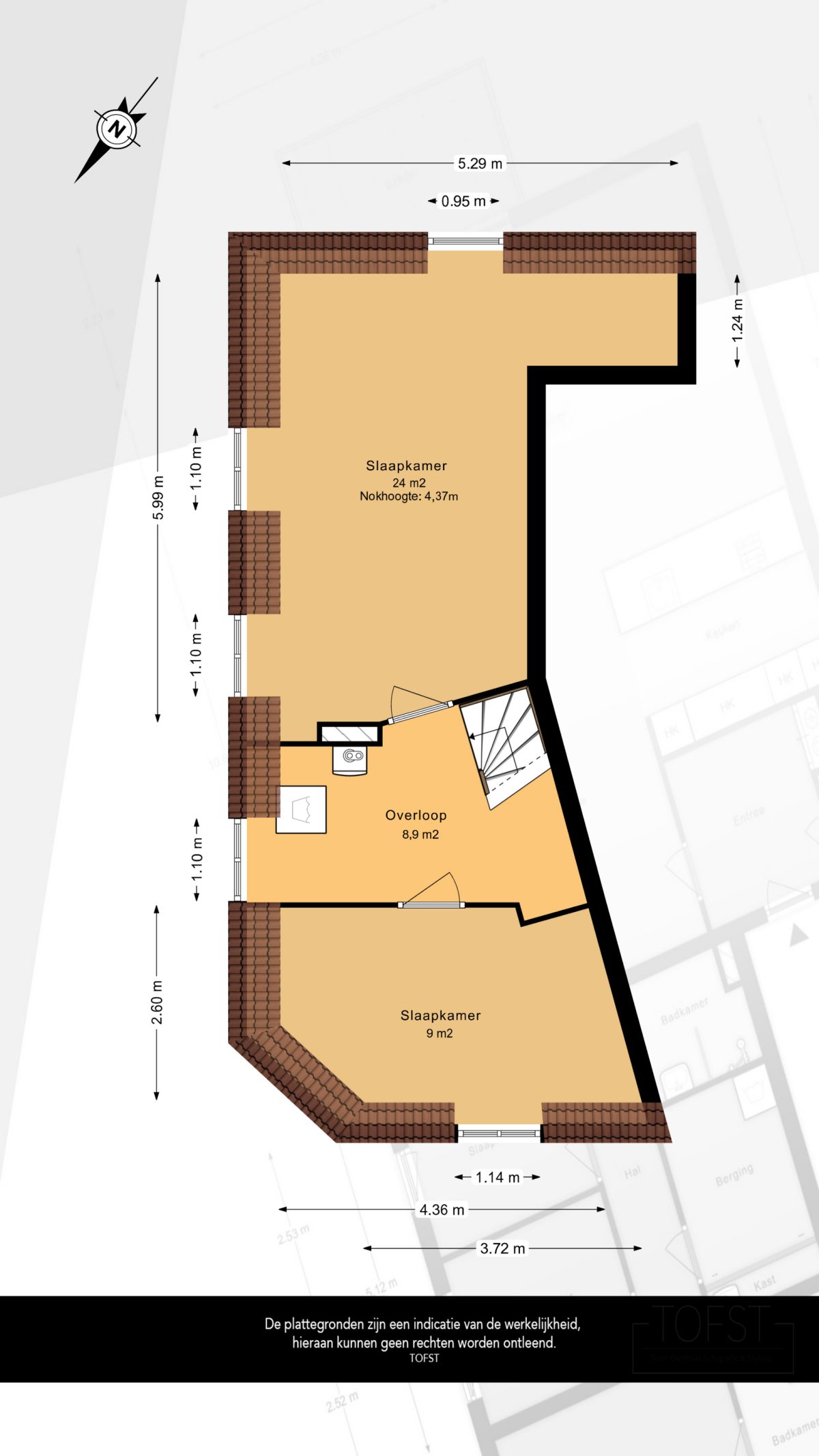
Ruime overloop met opstelplaats voor de wasmachine en -droger, de CV-ketel en de unit van de mechanische ventilatie. De hoofdslaapkamer is bijzonder ruim met 24m2! De 2e slaapkamer op deze verdieping is 9m2. Er hangt een fraaie vibe op deze verdieping door de karakteristieke balken en de forse nokhoogte.
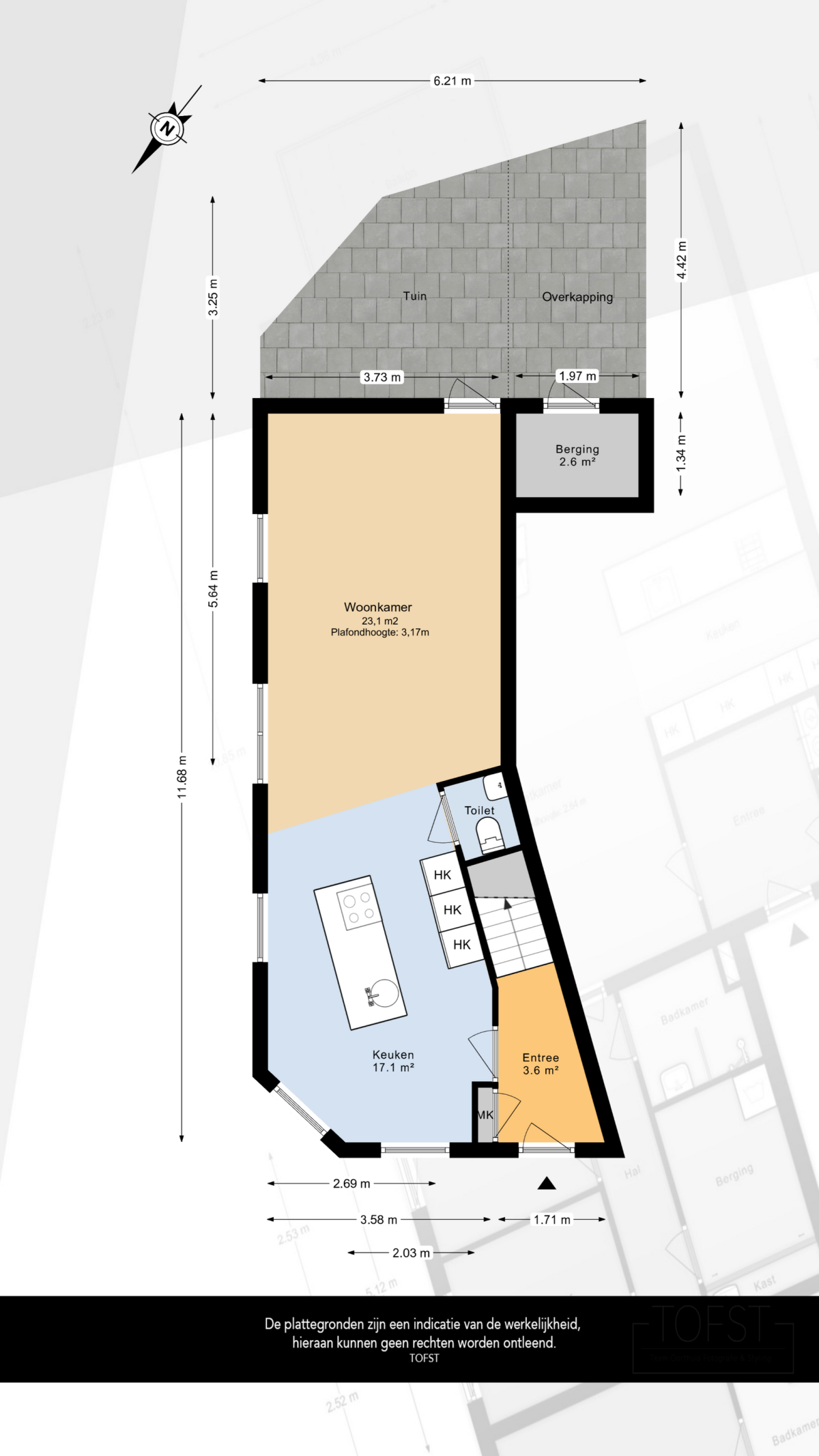
Tuin:
Achtertuin gelegen op zuid/zuidoost. De achtertuin is deels overdekt zodat dit een fantastische speel- en/of barbecue plek is. De tuin is voorzien van een achterom en een berging.
Kenmerken:
-Bouwjaar 1918, geheel in- en uitwendig gerenoveerd in 2007;
-Beschermd stadsgezicht;
-Geheel voorzien van hardhouten kozijnen met dubbel glas;
-Verwarming en warmwater middels cv-combiketel, Remeha 2018;
-Schilderwerk buitenzijde 2022;
-Gelegen op eigen grond;
-Oplevering in overleg;
-Gebruiksoppervlakte 143.9m2 (NEN2580);
-Inhoud 524.7m3 (NEN2580).
Deze informatie is door ons met de nodige zorgvuldigheid samengesteld. Onzerzijds wordt echter geen enkele aansprakelijkheid aanvaard voor enige onvolledigheid, onjuistheid of anderszins, dan wel de gevolgen daarvan. Alle opgegeven maten en oppervlakten zijn indicatief. Van toepassing zijn de NVM voorwaarden.
Toelichtingsclausule NEN2580
De Meetinstructie is gebaseerd op de NEN2580. De Meetinstructie is bedoeld om een meer eenduidige manier van meten toe te passen voor het geven van een indicatie van de gebruiksoppervlakte. De Meetinstructie sluit verschillen in meetuitkomsten niet volledig uit, door bijvoorbeeld interpretatieverschillen, afrondingen of beperkingen bij het uitvoeren van de meting. Indien de exacte maten voor een koper van cruciaal belang zijn, adviseren wij deze zelf na te meten.
Notariskeuze en kosten
In principe ligt de notariskeuze bij de koper. Het doorhalen van de hypothecaire inschrijving in het kadaster moet door de verkoper betaald worden. Zijn de kosten voor deze doorhaling hoger dan € 400,- inclusief BTW dan wordt het meerdere bij de koper in rekening gebracht. Indien de koper een notaris kiest buiten een straal van 20 kilometer van de verkochte onroerende zaak dan zijn de eventuele kosten die de notaris berekent voor een eventuele verkoopvolmacht ten behoeve van de verkoper voor rekening van de koper



