-
Aantal kamers
4 kamers
-
Aantal slaapkamers
3 slaapkamers
-
Bouwjaar
1938
-
Bouwvorm
bestaande bouw
-
Inhoud
274m3
-
Oppervlakte
80 m2
Russischestraat 90 B 01 - 3028 BJ ROTTERDAM
Ruim vierkamer appartement met balkon gelegen in een rustige straat in Oud-Mathenesse - Delfshaven. Het appartement is gelegen op de hele 1e en halve 3e verdieping en heeft daarnaast nog een zolder. De ligging van het appartement is zeer gunstig. Het openbaar vervoer ligt op twee minuten loopafstand. Ook met de auto is de wijk eenvoudig bereikbaar via de uitvalswegen A20 en A13. De gezellige Franselaan met een grote diversiteit aan winkels, supermarkten, scholen en diverse recreatiemogelijkheden zijn allen dichtbij gelegen. Ook Schiedam Centrum ligt op loopafstand.
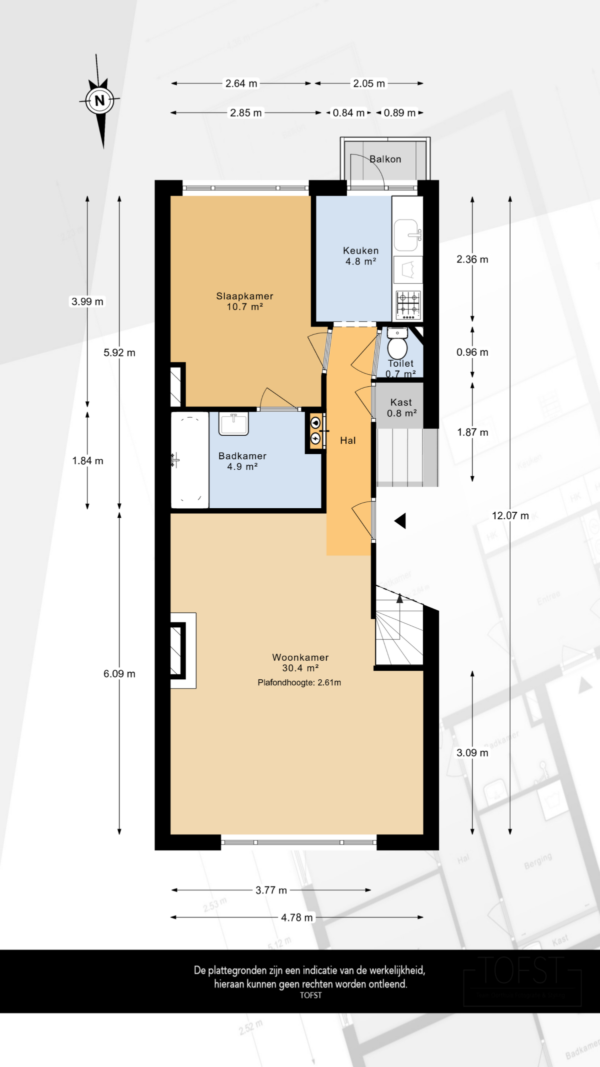
Indeling
Begane grond:
Gedeelde opgang naar eigen voordeur op de eerste verdieping.
1e verdieping:
Hal, kast, toilet, riante woonkamer ruim 30m2. De keuken is voorzien van eenvoudig keukenblok aangevuld met losse apparatuur. Vanuit de keuken is er toegang tot een klein balkon. De badkamer is eenvoudig uitgevoerd en voorzien van een douche/ligbad en een wastafel. Slaapkamer van bijna 11m2.
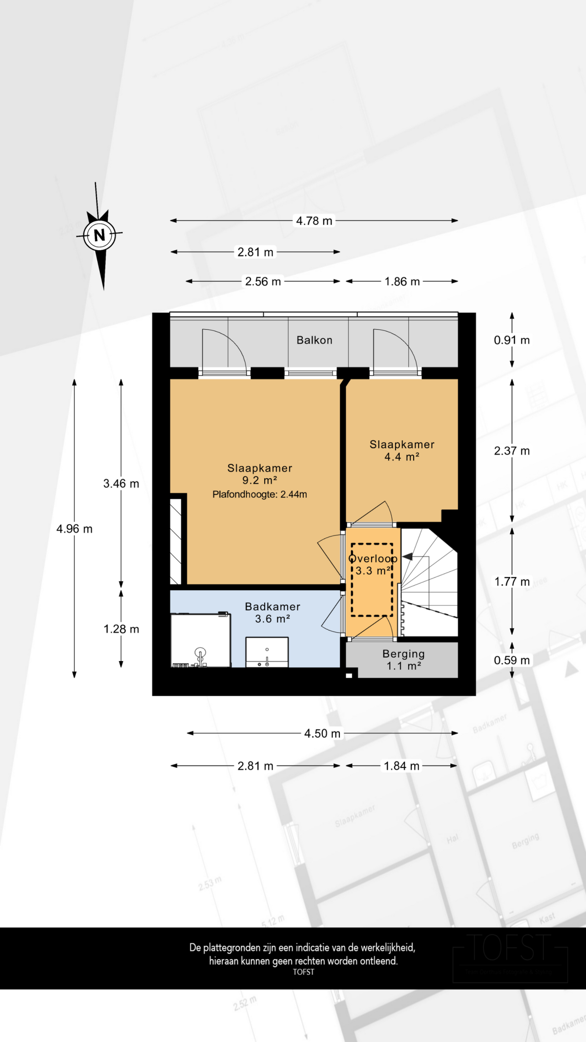
Halve 3e verdieping.
Overloop, toegang tot vliering, 2 slaapkamers van respectievelijk ca. 9.2m2 en ca. 4.4m2 (met beide toegang tot het balkon). De badkamer is net uitgevoerd en voorzien van een douchehoek en een wastafelmeubel.
Buitenruimte:
De woning heeft de beschikking over een balkon.
Overige:
-Bouwjaar 1938;
-Voorzien van dubbel glas;
-Energielabel C;
-'As is where is' clausule van toepassing;
-Asbest- en ouderdomsclausule van toepassing;
-VVE bijdrage van 137 euro per maand;
-Verkoper heeft de woning nooit bewoond, dit wordt specifiek in de koopakte opgenomen
-Gebruiksoppervlakte volgens NEN2580 79.7m2
-Inhoud volgens NEN2580 273.8m3
Deze informatie is door ons met de nodige zorgvuldigheid samengesteld. Onzerzijds wordt echter geen enkele aansprakelijkheid aanvaard voor enige onvolledigheid, onjuistheid of anderszins, dan wel de gevolgen daarvan. Alle opgegeven maten en oppervlakten zijn indicatief. Van toepassing zijn de NVM voorwaarden.
Toelichtingsclausule NEN2580
De Meetinstructie is gebaseerd op de NEN2580. De Meetinstructie is bedoeld om een meer eenduidige manier van meten toe te passen voor het geven van een indicatie van de gebruiksoppervlakte. De Meetinstructie sluit verschillen in meetuitkomsten niet volledig uit, door bijvoorbeeld interpretatieverschillen, afrondingen of beperkingen bij het uitvoeren van de meting. Indien de exacte maten voor een koper van cruciaal belang zijn, adviseren wij deze zelf na te meten.
Notariskeuze en kosten
In principe ligt de notariskeuze bij de koper. Het doorhalen van de hypothecaire inschrijving in het kadaster moet door de verkoper betaald worden. Zijn de kosten voor deze doorhaling hoger dan € 400,- inclusief BTW dan wordt het meerdere bij de koper in rekening gebracht.
Indien de koper een notaris kiest buiten een straal van 20 kilometer van de verkochte onroerende zaak dan zijn de eventuele kosten die de notaris berekent voor een eventuele verkoopvolmacht ten behoeve van de verkoper voor rekening van de koper.



